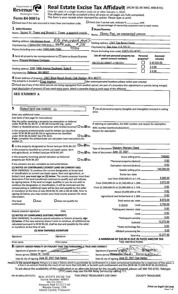
Property
Account |
| Property ID: | 312931 | Abbreviated Legal Description: | LOST LK GRV 5 LOT 2 BLK 2 |
| Geographic ID: | S7410-05-02002-0 | Agent Code: | |
| Type: | Real | | |
| Tax Area: | 510 - APPRAISER-Stan/Cam Schl Dist, improved & 1 acre or less | Land Use Code | 11 |
| Open Space: | N | DFL | N |
| Historic Property: | N | Remodel Property: | N |
| Multi-Family Redevelopment: | N | | |
| Township: | | Section: | |
| Range: | |
Location |
| Address: | 1649 OAK RIDGE DR CAMANO ISLAND, WA 98282 | Mapsco: | |
| Neighborhood: | Cycle 5 | Map ID: | 511 |
| Neighborhood CD: | 5 |
Owner |
| Name: | OELWEIN, WALTER C | Owner ID: | 297618 |
| Mailing Address: | APRIL J OELWEIN 1649 OAK RIDGE DR CAMANO ISLAND, WA 98282 | % Ownership: | 100.0000000000% |
| | | Exemptions: | |
Taxes and Assessment Details
Values
| (+) Improvement Homesite Value: | + | $0 | |
| (+) Improvement Non-Homesite Value: | + | $105,988 | |
| (+) Land Homesite Value: | + | $0 | |
| (+) Land Non-Homesite Value: | + | $250,000 | |
| (+) Curr Use (HS): | + | $0 | $0 |
| (+) Curr Use (NHS): | + | $0 | $0 |
| | | -------------------------- | |
| (=) Market Value: | = | $355,988 | |
| (–) Productivity Loss: | – | $0 | |
| | | -------------------------- | |
| (=) Subtotal: | = | $355,988 | |
| (+) Senior Appraised Value: | + | $0 | |
| (+) Non-Senior Appraised Value: | + | $355,988 | |
| | | -------------------------- | |
| (=) Total Appraised Value: | = | $355,988 | |
| (–) Senior Exemption Loss: | – | $0 | |
| (–) Exemption Loss: | – | $0 | |
| | | -------------------------- | |
| (=) Taxable Value: | = | $355,988 | |
Taxing Jurisdiction
| Owner: | OELWEIN, WALTER C | | |
| % Ownership: | 100.0000000000% | | |
| Total Value: | $355,988 | | |
| Tax Area: | 510 - APPRAISER-Stan/Cam Schl Dist, improved & 1 acre or less |
| CF | Conservation Futures | 0.0316035091 | $355,988 | $355,988 | $11.25 | | |
| EMS1 | Fire & Rescue Dist #1 Camano GEN (EMS) | 0.3677864386 | $355,988 | $355,988 | $130.93 | | |
| FIRE1 | Fire & Rescue Dist #1 Camano GEN | 1.2502910536 | $355,988 | $355,988 | $445.09 | | |
| FIRE1BOND | Fire & Rescue Dist #1 Camano BOND | 0.1570001679 | $355,988 | $355,988 | $55.89 | | |
| CE | County Current Expense | 0.3708482477 | $355,988 | $355,988 | $132.02 | | |
| CR | County Roads | 0.4584763726 | $355,988 | $355,988 | $163.21 | | |
| LCIB | Library Sno-Isle BOND (Camano Island) | 0.0396325772 | $355,988 | $355,988 | $14.11 | | |
| LIB | Library Sno-Isle GEN | 0.3153421757 | $355,988 | $355,988 | $112.26 | | |
| SCH205_401 | School 205-401 Enrichment | 1.2698420524 | $355,988 | $355,988 | $452.05 | | |
| SCH205BOND | School 205-401 BOND | 0.9396497583 | $355,988 | $355,988 | $334.50 | | |
| ST | State School | 1.3035497053 | $355,988 | $355,988 | $464.05 | | |
| ST2 | State School Part 2 | 0.8169543533 | $355,988 | $355,988 | $290.83 | | |
| | Total Tax Rate: | 7.3209764117 | | | | | |
| | | | | Taxes w/Current Exemptions: | $2,606.19 | | |
| | | | | Taxes w/o Exemptions: | $2,606.19 | | |
Improvement / Building
| Improvement #1: | MANUFACTURED HOME | State Code: | Y | 1400.0 sqft | Value: | $105,988 |
| Bathrooms: | 0 | Bedrooms: | 0 | | Ceiling: | PLASTER PAINTED | Cooling: | EVAP NO DUCT | | Exterior Wall/Cover: | VINYL | Floor Covering: | CARPET 100% | | Heating: | FHA ELECTRIC | Interior Finish: | PLASTER | | Plumbing Fixture Cnt: | 1 | Roof Slope: | FLAT | | Roof Structure/Cover: | CJ ALUMINIUM HEAVY |   |   |
|
| | Type | Description | Class CD | Sub Class CD | Year Built | Area |
| | BAS | BASE/MAIN FLOOR | 4 | 0 | 1999 | 1400.0 |
| | OWP | OPEN WOOD PORCH W/STEPS | 4 | 0 | 1999 | 48.0 |
| | OWP | OPEN WOOD PORCH W/STEPS | 4 | 0 | 1999 | 128.0 |
| | CPD | OPEN CARPORT DIRT FLOOR | 4 | 0 | 1999 | 64.0 |
| | UTY | STORAGE/UTILITY | 4 | 0 | 1999 | 64.0 |
| | UTY | STORAGE/UTILITY | 4 | 0 | 1999 | 160.0 |
Sketch
Property Image
Land
| 1 | 15 | SQ (12001-21780) | 0.0000 | 0.00 | 0.00 | 0.00 | 1.00 | $250,000 | $0 |
Roll Value History
| 2026 | N/A | N/A | N/A | N/A | N/A |
| 2025 | $105,988 | $250,000 | $0 | $355,988 | $355,988 |
| 2024 | $108,813 | $240,000 | $0 | $348,813 | $348,813 |
| 2023 | $97,075 | $240,000 | $0 | $337,075 | $337,075 |
| 2022 | $90,132 | $210,000 | $0 | $300,132 | $300,132 |
| 2021 | $65,150 | $170,000 | $0 | $235,150 | $235,150 |
| 2020 | $60,044 | $130,000 | $0 | $190,044 | $190,044 |
| 2019 | $48,552 | $150,000 | $0 | $198,552 | $198,552 |
| 2018 | $49,813 | $125,000 | $0 | $174,813 | $174,813 |
| 2017 | $51,074 | $90,000 | $0 | $141,074 | $141,074 |
| 2016 | $52,336 | $75,000 | $0 | $127,336 | $127,336 |
| 2015 | $51,592 | $52,000 | $0 | $103,592 | $103,592 |
| 2014 | $52,747 | $52,000 | $0 | $104,747 | $104,747 |
| 2013 | $53,902 | $52,000 | $0 | $105,902 | $105,902 |
| 2012 | $54,479 | $52,000 | $0 | $106,479 | $106,479 |
| 2011 | $55,057 | $65,000 | $0 | $120,057 | $120,057 |
| 2010 | $53,463 | $84,000 | $0 | $137,463 | $137,463 |
| 2009 | $56,203 | $90,000 | $0 | $146,203 | $146,203 |
| 2008 | $57,556 | $90,000 | $0 | $147,556 | $147,556 |
| 2007 | $58,911 | $90,000 | $0 | $148,911 | $148,911 |
Deed and Sales History
| 1 | 12/29/2020 | WD | Warranty Deed | JOHNSON, BRYAN | OELWEIN, WALTER C | | | $305,000.00 | 46441 | 4507061 |
| 2 | 11/11/2012 | WD | Warranty Deed | SECRETARY OF HOUSING & URBAN DEVELOPMENT | JOHNSON, BRYAN | | | $39,000.00 | 9911 | 4330084 |
| 3 | 01/17/2012 | WD | Warranty Deed | CITIMORTGAGE INC | SECRETARY OF HOUSING & URBAN DEVELOPMENT | | | $0.00 | 7030 | 4310941 |
| 4 | 12/13/2011 | TRUSTEED | Trustee's Deed | WILKE, JODI | CITIMORTGAGE INC | | | $0.00 | 6417 | 4306518 |
| 5 | 01/20/2000 | WD | Warranty Deed | ELLIS, BEVERLY B | WILKE, JODI | | | $127,000.00 | 374 | 20001983 |
| 6 | 02/10/1999 | WD | Warranty Deed | AMCO, INVESTMENTS, I | ELLIS, BEVERLY B | | | $21,500.00 | 91406 | 99009691 |
| 7 | 10/01/1998 | WD | Warranty Deed | VENEMA, WALTER C | AMCO, INVESTMENTS, I | | | $21,500.00 | 80419 | 98002134 |
| 8 | 05/01/1991 | WD | Warranty Deed | PHILLIPS, RODNEY E | VENEMA, WALTER C | | | $4,850.00 | 12102 | 91008904 |
| 9 | 01/01/1900 | OTHER | Other - Misc. Documents | Unknown | PHILLIPS, RODNEY E | | | $0.00 | 0 | 0 |
Payout Agreement
| No payout information available.. |