Property
Account |
| Property ID: | 313093 | Abbreviated Legal Description: | LOST LK GRV 5 LOT 18 BLK 2 |
| Geographic ID: | S7410-05-02018-0 | Agent Code: | |
| Type: | Real | | |
| Tax Area: | 510 - APPRAISER-Stan/Cam Schl Dist, improved & 1 acre or less | Land Use Code | 11 |
| Open Space: | N | DFL | N |
| Historic Property: | N | Remodel Property: | N |
| Multi-Family Redevelopment: | N | | |
| Township: | | Section: | |
| Range: | |
Location |
| Address: | | Mapsco: | |
| Neighborhood: | Cycle 5 | Map ID: | 511 |
| Neighborhood CD: | 5 |
Owner |
| Name: | OGARD, DANELLE MARIE | Owner ID: | 305282 |
| Mailing Address: | 1635 OAK RIDGE DR CAMANO ISLAND, WA 98282 | % Ownership: | 100.0000000000% |
| | | Exemptions: | |
Taxes and Assessment Details
Values
| (+) Improvement Homesite Value: | + | $0 | |
| (+) Improvement Non-Homesite Value: | + | $496 | |
| (+) Land Homesite Value: | + | $0 | |
| (+) Land Non-Homesite Value: | + | $12,000 | |
| (+) Curr Use (HS): | + | $0 | $0 |
| (+) Curr Use (NHS): | + | $0 | $0 |
| | | -------------------------- | |
| (=) Market Value: | = | $12,496 | |
| (–) Productivity Loss: | – | $0 | |
| | | -------------------------- | |
| (=) Subtotal: | = | $12,496 | |
| (+) Senior Appraised Value: | + | $0 | |
| (+) Non-Senior Appraised Value: | + | $12,496 | |
| | | -------------------------- | |
| (=) Total Appraised Value: | = | $12,496 | |
| (–) Senior Exemption Loss: | – | $0 | |
| (–) Exemption Loss: | – | $0 | |
| | | -------------------------- | |
| (=) Taxable Value: | = | $12,496 | |
Taxing Jurisdiction
| Owner: | OGARD, DANELLE MARIE | | |
| % Ownership: | 100.0000000000% | | |
| Total Value: | $12,496 | | |
| Tax Area: | 510 - APPRAISER-Stan/Cam Schl Dist, improved & 1 acre or less |
| CF | Conservation Futures | 0.0316035091 | $12,496 | $12,496 | $0.39 | | |
| EMS1 | Fire & Rescue Dist #1 Camano GEN (EMS) | 0.3677864386 | $12,496 | $12,496 | $4.60 | | |
| FIRE1 | Fire & Rescue Dist #1 Camano GEN | 1.2502910536 | $12,496 | $12,496 | $15.62 | | |
| FIRE1BOND | Fire & Rescue Dist #1 Camano BOND | 0.1570001679 | $12,496 | $12,496 | $1.96 | | |
| CE | County Current Expense | 0.3708482477 | $12,496 | $12,496 | $4.63 | | |
| CR | County Roads | 0.4584763726 | $12,496 | $12,496 | $5.73 | | |
| LCIB | Library Sno-Isle BOND (Camano Island) | 0.0396325772 | $12,496 | $12,496 | $0.50 | | |
| LIB | Library Sno-Isle GEN | 0.3153421757 | $12,496 | $12,496 | $3.94 | | |
| SCH205_401 | School 205-401 Enrichment | 1.2698420524 | $12,496 | $12,496 | $15.87 | | |
| SCH205BOND | School 205-401 BOND | 0.9396497583 | $12,496 | $12,496 | $11.74 | | |
| ST | State School | 1.3035497053 | $12,496 | $12,496 | $16.29 | | |
| ST2 | State School Part 2 | 0.8169543533 | $12,496 | $12,496 | $10.21 | | |
| | Total Tax Rate: | 7.3209764117 | | | | | |
| | | | | Taxes w/Current Exemptions: | $91.48 | | |
| | | | | Taxes w/o Exemptions: | $91.48 | | |
Improvement / Building
| Improvement #1: | RESIDENTIAL | State Code: | Y | 0.0 sqft | Value: | $496 |
Sketch
| No sketches available for this property. |
Property Image
Land
| 1 | 15 | SQ (12001-21780) | 0.0000 | 0.00 | 0.00 | 0.00 | 1.00 | $12,000 | $0 |
Roll Value History
| 2026 | N/A | N/A | N/A | N/A | N/A |
| 2025 | $496 | $12,000 | $0 | $12,496 | $12,496 |
| 2024 | $496 | $12,000 | $0 | $12,496 | $12,496 |
| 2023 | $496 | $9,000 | $0 | $9,496 | $9,496 |
| 2022 | $496 | $9,000 | $0 | $9,496 | $9,496 |
| 2021 | $496 | $45,000 | $0 | $45,496 | $45,496 |
| 2020 | $496 | $45,000 | $0 | $45,496 | $45,496 |
| 2019 | $496 | $45,000 | $0 | $45,496 | $45,496 |
| 2018 | $496 | $5,000 | $0 | $5,496 | $5,496 |
| 2017 | $496 | $5,000 | $0 | $5,496 | $5,496 |
| 2016 | $496 | $5,000 | $0 | $5,496 | $5,496 |
| 2015 | $496 | $9,000 | $0 | $9,496 | $9,496 |
| 2014 | $496 | $9,000 | $0 | $9,496 | $9,496 |
| 2013 | $496 | $7,200 | $0 | $7,696 | $7,696 |
| 2012 | $496 | $7,200 | $0 | $7,696 | $7,696 |
| 2011 | $496 | $9,000 | $0 | $9,496 | $9,496 |
| 2010 | $496 | $14,850 | $0 | $15,346 | $15,346 |
| 2009 | $496 | $14,985 | $0 | $15,481 | $15,481 |
| 2008 | $496 | $15,000 | $0 | $15,496 | $15,496 |
| 2007 | $496 | $15,000 | $0 | $15,496 | $15,496 |
Deed and Sales History
| 1 | 07/22/2022 | WD | Warranty Deed | YOUNG, JUSTIN | OGARD, DANELLE MARIE | | | $435,000.00 | 54024 | 4549142 |
|   | |
| 2 | 09/15/2020 | WD | Warranty Deed | BUYERS CLUB, LLC | YOUNG, JUSTIN | | | $326,500.00 | 44793 | 4496815 |
|   | |
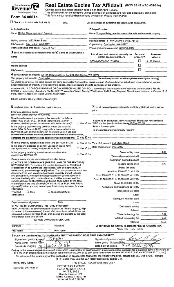
| 3 | 04/13/2018 | QCD | Quit Claim Deed | MARIN, ANDREW D | BUYERS CLUB, LLC | | | $0.00 | 33699 | 4442708 |
| 4 | 12/27/2017 | WD | Warranty Deed | COHRS, DELORES M | MARIN, ANDREW D | | | $50,000.00 | 32434 | 4436479 |
|   | |
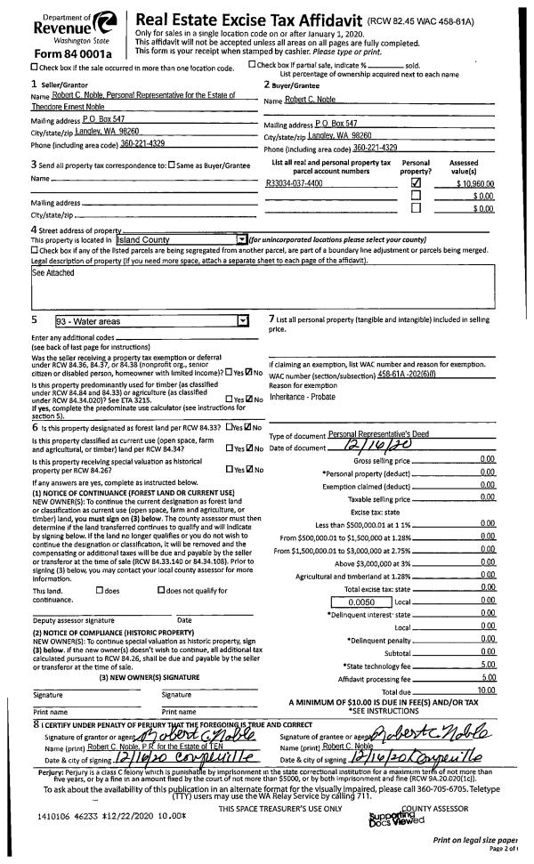
| 5 | 10/30/2013 | PRD | Personal Representatives Deed | COHRS, VICTOR W & DELORES M | COHRS, DELORES M | | | $0.00 | 13447 | 4351480 |
| 6 | 12/01/1979 | CD | DNU - Correction Deed | COHRS, VICTOR W | COE, ROBERT C | | | $0.00 | 95952 | 363344 |
| 7 | 12/01/1979 | TRUSTEED | Trustee's Deed | BOETTCHER, HELMUTH F | COHRS, VICTOR W | | | $2,000.00 | 95967 | 363374 |
| 8 | 10/01/1979 | EXECUTORD | Executor Deed | BISHOP, CLAIR C | BOETTCHER, HELMUTH F | | | $3,200.00 | 56745 | 0 |
| 9 | 01/01/1900 | OTHER | Other - Misc. Documents | Unknown | BISHOP, CLAIR C | | | $0.00 | 0 | 0 |
Payout Agreement
| No payout information available.. |