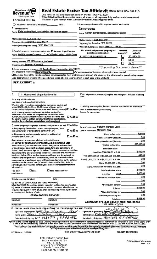
Property
Account |
| Property ID: | 313128 | Abbreviated Legal Description: | LOST LK GRV 5 LOT 2 BLK 3 |
| Geographic ID: | S7410-05-03002-0 | Agent Code: | |
| Type: | Real | | |
| Tax Area: | 510 - APPRAISER-Stan/Cam Schl Dist, improved & 1 acre or less | Land Use Code | 11 |
| Open Space: | N | DFL | N |
| Historic Property: | N | Remodel Property: | N |
| Multi-Family Redevelopment: | N | | |
| Township: | | Section: | |
| Range: | |
Location |
| Address: | 1542 SILVER FIR DR CAMANO ISLAND, WA 98282 | Mapsco: | |
| Neighborhood: | Cycle 5 | Map ID: | 505 |
| Neighborhood CD: | 5 |
Owner |
| Name: | NICHOLSON, PAMELA | Owner ID: | 295925 |
| Mailing Address: | 1542 SILVER FIR DR CAMANO ISLAND, WA 98282 | % Ownership: | 100.0000000000% |
| | | Exemptions: | |
Taxes and Assessment Details
Values
| (+) Improvement Homesite Value: | + | $0 | |
| (+) Improvement Non-Homesite Value: | + | $190,912 | |
| (+) Land Homesite Value: | + | $0 | |
| (+) Land Non-Homesite Value: | + | $250,000 | |
| (+) Curr Use (HS): | + | $0 | $0 |
| (+) Curr Use (NHS): | + | $0 | $0 |
| | | -------------------------- | |
| (=) Market Value: | = | $440,912 | |
| (–) Productivity Loss: | – | $0 | |
| | | -------------------------- | |
| (=) Subtotal: | = | $440,912 | |
| (+) Senior Appraised Value: | + | $0 | |
| (+) Non-Senior Appraised Value: | + | $440,912 | |
| | | -------------------------- | |
| (=) Total Appraised Value: | = | $440,912 | |
| (–) Senior Exemption Loss: | – | $0 | |
| (–) Exemption Loss: | – | $0 | |
| | | -------------------------- | |
| (=) Taxable Value: | = | $440,912 | |
Taxing Jurisdiction
| Owner: | NICHOLSON, PAMELA | | |
| % Ownership: | 100.0000000000% | | |
| Total Value: | $440,912 | | |
| Tax Area: | 510 - APPRAISER-Stan/Cam Schl Dist, improved & 1 acre or less |
| CF | Conservation Futures | 0.0316035091 | $440,912 | $440,912 | $13.93 | | |
| EMS1 | Fire & Rescue Dist #1 Camano GEN (EMS) | 0.3677864386 | $440,912 | $440,912 | $162.16 | | |
| FIRE1 | Fire & Rescue Dist #1 Camano GEN | 1.2502910536 | $440,912 | $440,912 | $551.27 | | |
| FIRE1BOND | Fire & Rescue Dist #1 Camano BOND | 0.1570001679 | $440,912 | $440,912 | $69.22 | | |
| CE | County Current Expense | 0.3708482477 | $440,912 | $440,912 | $163.51 | | |
| CR | County Roads | 0.4584763726 | $440,912 | $440,912 | $202.15 | | |
| LCIB | Library Sno-Isle BOND (Camano Island) | 0.0396325772 | $440,912 | $440,912 | $17.47 | | |
| LIB | Library Sno-Isle GEN | 0.3153421757 | $440,912 | $440,912 | $139.04 | | |
| SCH205_401 | School 205-401 Enrichment | 1.2698420524 | $440,912 | $440,912 | $559.89 | | |
| SCH205BOND | School 205-401 BOND | 0.9396497583 | $440,912 | $440,912 | $414.30 | | |
| ST | State School | 1.3035497053 | $440,912 | $440,912 | $574.75 | | |
| ST2 | State School Part 2 | 0.8169543533 | $440,912 | $440,912 | $360.20 | | |
| | Total Tax Rate: | 7.3209764117 | | | | | |
| | | | | Taxes w/Current Exemptions: | $3,227.89 | | |
| | | | | Taxes w/o Exemptions: | $3,227.89 | | |
Improvement / Building
| Improvement #1: | RESIDENTIAL | State Code: | Y | 1024.0 sqft | Value: | $190,912 |
| Bathrooms: | 1 | Bedrooms: | 2 | | Ceiling: | TONGUE & GROOVE | Exterior Wall/Cover: | PLY/HARDBOARD T-111 | | Floor Covering: | HARDWOOD/CARP 60-40 | Floor Structure: | WOOD W/SUBFLOOR | | Foundation: | CONCRETE | Heating: | BASEBOARD ELECTRIC | | Interior Finish: | DRYWALL PAINT | Plumbing Fixture Cnt: | 6 | | Roof Slope: | 8" IN 12" | Roof Structure/Cover: | BEAM ASPHALT |
|
| | Type | Description | Class CD | Sub Class CD | Year Built | Area |
| | BAS | BASE/MAIN FLOOR | 3 | 0 | 1978 | 768.0 |
| | OWP | OPEN WOOD PORCH W/STEPS | 3 | 0 | 1978 | 528.0 |
| | UTY | STORAGE/UTILITY | 3 | 0 | 1978 | 160.0 |
| | UPH | HALF STORY | 3 | 0 | 1978 | 256.0 |
Sketch
Property Image
Land
| 1 | 15 | SQ (12001-21780) | 0.0000 | 0.00 | 0.00 | 0.00 | 1.00 | $250,000 | $0 |
Roll Value History
| 2026 | N/A | N/A | N/A | N/A | N/A |
| 2025 | $190,912 | $250,000 | $0 | $440,912 | $440,912 |
| 2024 | $197,118 | $240,000 | $0 | $437,118 | $437,118 |
| 2023 | $199,573 | $240,000 | $0 | $439,573 | $439,573 |
| 2022 | $182,934 | $210,000 | $0 | $392,934 | $392,934 |
| 2021 | $160,307 | $170,000 | $0 | $330,307 | $330,307 |
| 2020 | $156,393 | $130,000 | $0 | $286,393 | $286,393 |
| 2019 | $113,097 | $150,000 | $0 | $263,097 | $263,097 |
| 2018 | $113,436 | $125,000 | $0 | $238,436 | $238,436 |
| 2017 | $108,090 | $90,000 | $0 | $198,090 | $198,090 |
| 2016 | $101,239 | $75,000 | $0 | $176,239 | $176,239 |
| 2015 | $83,447 | $52,000 | $0 | $135,447 | $135,447 |
| 2014 | $84,631 | $52,000 | $0 | $136,631 | $136,631 |
| 2013 | $85,815 | $52,000 | $0 | $137,815 | $137,815 |
| 2012 | $86,998 | $52,000 | $0 | $138,998 | $138,998 |
| 2011 | $88,181 | $65,000 | $0 | $153,181 | $153,181 |
| 2010 | $92,287 | $84,000 | $0 | $176,287 | $176,287 |
| 2009 | $96,328 | $90,000 | $0 | $186,328 | $186,328 |
| 2008 | $97,817 | $90,000 | $0 | $187,817 | $187,817 |
| 2007 | $98,419 | $90,848 | $0 | $189,267 | $189,267 |
Deed and Sales History
| 1 | 08/28/2020 | WD | Warranty Deed | GLADFELTER, MICHAEL | NICHOLSON, PAMELA | | | $335,000.00 | 44548 | 4495407 |
| 2 | 06/15/2016 | WD | Warranty Deed | CALDWELL, MICHAEL E | GLADFELTER, MICHAEL | | | $221,950.00 | 24921 | 4401827 |
| 3 | 10/19/2007 | WD | Warranty Deed | VON KOPP, RONALD R | CALDWELL, MICHAEL E | | | $225,000.00 | 73584 | 4215128 |
| 4 | 12/09/2002 | TRUSTEED | Trustee's Deed | SECRETARY OF HOUSING AND, | VON KOPP, RONALD R | | | $105,000.00 | 24968 | 4040380 |
| 5 | 06/18/2002 | WD | Warranty Deed | IRWIN MORTGAGE CORP, | SECRETARY OF HOUSING AND, | | | $0.00 | 22379 | 4023463 |
| 6 | 05/03/2002 | TRUSTEED | Trustee's Deed | WORTHINGTON, JEFFERY D | IRWIN MORTGAGE CORP, | | | $156,196.00 | 21917 | 4020673 |
| 7 | 09/22/2000 | WD | Warranty Deed | BURROW, MICHAEL D | WORTHINGTON, JEFFERY D | | | $133,797.00 | 3683 | 20016907 |
| 8 | 11/12/1998 | WD | Warranty Deed | TIFFANY, RACHAEL A | BURROW, MICHAEL D | | | $103,000.00 | 84574 | 98024901 |
| 9 | 07/01/1995 | QCD | Quit Claim Deed | LINDAHL, RACHAEL A | TIFFANY, RACHAEL A | | | $0.00 | 52669 | 95012254 |
| 10 | 07/01/1991 | WD | Warranty Deed | PAVISH, CHRISTOPHER L | LINDAHL, RACHAEL A | | | $75,000.00 | 12515 | 91010707 |
| 11 | 09/01/1987 | WD | Warranty Deed | BAIRD, H B | PAVISH, CHRISTOPHER L | | | $45,000.00 | 72746 | 87012388 |
| 12 | 01/01/1900 | OTHER | Other - Misc. Documents | Unknown | BAIRD, H B | | | $0.00 | 0 | 0 |
Payout Agreement
| No payout information available.. |