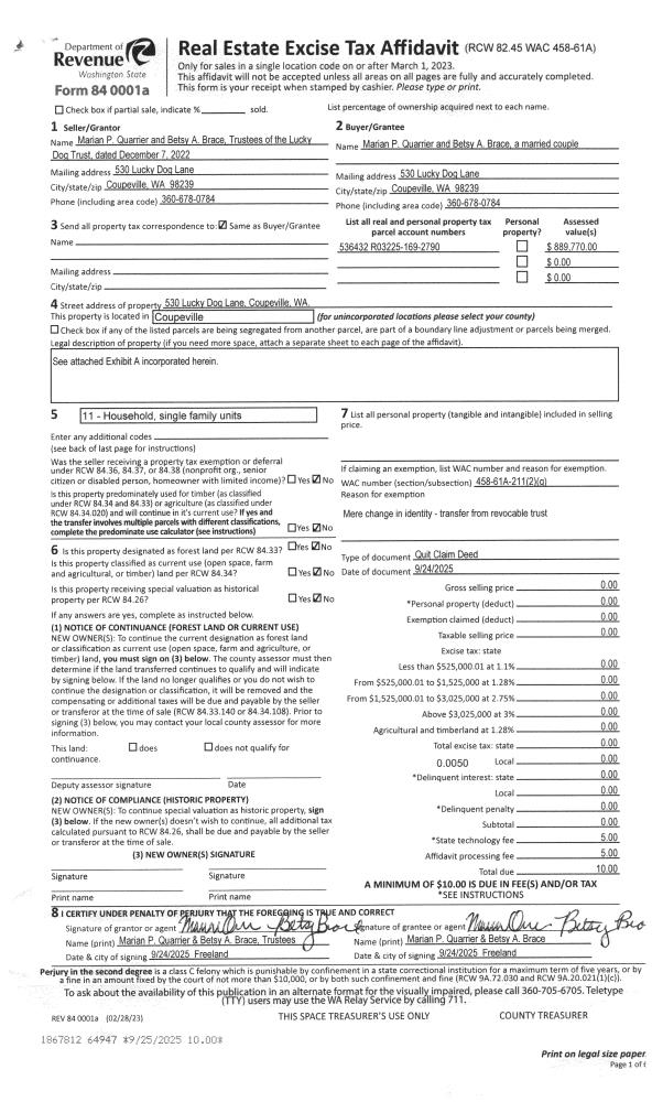
Property
Account |
| Property ID: | 313137 | Abbreviated Legal Description: | LOST LK GRV 5 LOT 3 BLK 3 |
| Geographic ID: | S7410-05-03003-0 | Agent Code: | |
| Type: | Real | | |
| Tax Area: | 510 - APPRAISER-Stan/Cam Schl Dist, improved & 1 acre or less | Land Use Code | 11 |
| Open Space: | N | DFL | N |
| Historic Property: | N | Remodel Property: | N |
| Multi-Family Redevelopment: | N | | |
| Township: | | Section: | |
| Range: | |
Location |
| Address: | 1538 SILVER FIR DR CAMANO ISLAND, WA 98282 | Mapsco: | |
| Neighborhood: | Cycle 5 | Map ID: | 505 |
| Neighborhood CD: | 5 |
Owner |
| Name: | LOYD, MICHAEL W | Owner ID: | 317236 |
| Mailing Address: | PAMELA D HARDESTY LOYD 1538 SILVER FIR DR CAMANO ISLAND, WA 98282 | % Ownership: | 100.0000000000% |
| | | Exemptions: | |
Taxes and Assessment Details
Values
| (+) Improvement Homesite Value: | + | $0 | |
| (+) Improvement Non-Homesite Value: | + | $324,664 | |
| (+) Land Homesite Value: | + | $0 | |
| (+) Land Non-Homesite Value: | + | $250,000 | |
| (+) Curr Use (HS): | + | $0 | $0 |
| (+) Curr Use (NHS): | + | $0 | $0 |
| | | -------------------------- | |
| (=) Market Value: | = | $574,664 | |
| (–) Productivity Loss: | – | $0 | |
| | | -------------------------- | |
| (=) Subtotal: | = | $574,664 | |
| (+) Senior Appraised Value: | + | $0 | |
| (+) Non-Senior Appraised Value: | + | $574,664 | |
| | | -------------------------- | |
| (=) Total Appraised Value: | = | $574,664 | |
| (–) Senior Exemption Loss: | – | $0 | |
| (–) Exemption Loss: | – | $0 | |
| | | -------------------------- | |
| (=) Taxable Value: | = | $574,664 | |
Taxing Jurisdiction
| Owner: | LOYD, MICHAEL W | | |
| % Ownership: | 100.0000000000% | | |
| Total Value: | $574,664 | | |
| Tax Area: | 510 - APPRAISER-Stan/Cam Schl Dist, improved & 1 acre or less |
| CF | Conservation Futures | 0.0316035091 | $574,664 | $574,664 | $18.16 | | |
| EMS1 | Fire & Rescue Dist #1 Camano GEN (EMS) | 0.3677864386 | $574,664 | $574,664 | $211.35 | | |
| FIRE1 | Fire & Rescue Dist #1 Camano GEN | 1.2502910536 | $574,664 | $574,664 | $718.50 | | |
| FIRE1BOND | Fire & Rescue Dist #1 Camano BOND | 0.1570001679 | $574,664 | $574,664 | $90.22 | | |
| CE | County Current Expense | 0.3708482477 | $574,664 | $574,664 | $213.11 | | |
| CR | County Roads | 0.4584763726 | $574,664 | $574,664 | $263.47 | | |
| LCIB | Library Sno-Isle BOND (Camano Island) | 0.0396325772 | $574,664 | $574,664 | $22.78 | | |
| LIB | Library Sno-Isle GEN | 0.3153421757 | $574,664 | $574,664 | $181.22 | | |
| SCH205_401 | School 205-401 Enrichment | 1.2698420524 | $574,664 | $574,664 | $729.73 | | |
| SCH205BOND | School 205-401 BOND | 0.9396497583 | $574,664 | $574,664 | $539.98 | | |
| ST | State School | 1.3035497053 | $574,664 | $574,664 | $749.10 | | |
| ST2 | State School Part 2 | 0.8169543533 | $574,664 | $574,664 | $469.47 | | |
| | Total Tax Rate: | 7.3209764117 | | | | | |
| | | | | Taxes w/Current Exemptions: | $4,207.09 | | |
| | | | | Taxes w/o Exemptions: | $4,207.09 | | |
Improvement / Building
| Improvement #1: | RESIDENTIAL | State Code: | Y | 1536.0 sqft | Value: | $324,664 |
| Bathrooms: | 2 | Bedrooms: | 2 | | Ceiling: | DRYWALL PAINTED | Cooling: | HEAT PUMP/CONV/V | | Exterior Wall/Cover: | CEMENT FIBER | Floor Covering: | HARDWOOD/CARP 20-80 | | Floor Structure: | WOOD W/SUBFLOOR | Foundation: | CONCRETE | | Interior Finish: | DRYWALL PAINT | Plumbing Fixture Cnt: | 15 | | Roof Slope: | 5" IN 12" | Roof Structure/Cover: | CJ ASPHALT |
|
| | Type | Description | Class CD | Sub Class CD | Year Built | Area |
| | BAS | BASE/MAIN FLOOR | 3 | 0 | 2007 | 1536.0 |
| | AGR | ATTACHED GARAGE | 3 | 0 | 2007 | 511.4 |
| | OWP | OPEN WOOD PORCH W/STEPS | 3 | 0 | 2007 | 24.0 |
| | OWR | OPEN WOOD PORCH W/STEPS/ROOF | 3 | 0 | 2007 | 18.0 |
| | OWC | OPEN WOOD PORCH W/STEPS/ROOF/C | 3 | 0 | 2007 | 169.0 |
Sketch
Property Image
Land
| 1 | 15 | SQ (12001-21780) | 0.0000 | 0.00 | 0.00 | 0.00 | 1.00 | $250,000 | $0 |
Roll Value History
| 2026 | N/A | N/A | N/A | N/A | N/A |
| 2025 | $324,664 | $250,000 | $0 | $574,664 | $574,664 |
| 2024 | $328,473 | $240,000 | $0 | $568,473 | $568,473 |
| 2023 | $332,281 | $240,000 | $0 | $572,281 | $572,281 |
| 2022 | $304,335 | $210,000 | $0 | $514,335 | $514,335 |
| 2021 | $258,436 | $170,000 | $0 | $428,436 | $428,436 |
| 2020 | $250,664 | $130,000 | $0 | $380,664 | $380,664 |
| 2019 | $177,598 | $150,000 | $0 | $327,598 | $327,598 |
| 2018 | $178,095 | $125,000 | $0 | $303,095 | $303,095 |
| 2017 | $175,133 | $90,000 | $0 | $265,133 | $265,133 |
| 2016 | $177,101 | $75,000 | $0 | $252,101 | $252,101 |
| 2015 | $174,580 | $52,000 | $0 | $226,580 | $226,580 |
| 2014 | $176,498 | $52,000 | $0 | $228,498 | $228,498 |
| 2013 | $178,417 | $52,000 | $0 | $230,417 | $230,417 |
| 2012 | $180,335 | $52,000 | $0 | $232,335 | $232,335 |
| 2011 | $182,254 | $65,000 | $0 | $247,254 | $247,254 |
| 2010 | $187,250 | $84,000 | $0 | $271,250 | $271,250 |
| 2009 | $193,790 | $91,195 | $0 | $284,985 | $284,985 |
| 2008 | $195,142 | $90,000 | $0 | $285,142 | $285,142 |
| 2007 | $97,261 | $90,000 | $0 | $187,261 | $187,261 |
Deed and Sales History
| 1 | 06/23/2025 | WD | Warranty Deed | PETERSON, VERNON L | LOYD, MICHAEL W | | | $540,000.00 | 64041 | 4587772 |
| 2 | 06/23/2025 | LACPROBATE | Lack of Probate | PETERSON, VERNON L | PETERSON, VERNON L | | | $0.00 | 64040 | 4587771 |
| 3 | 07/13/2015 | WD | Warranty Deed | ROOT, TRAVIS K | PETERSON, VERNON L | | | $232,500.00 | 20469 | 4382164 |
| 4 | 11/14/2012 | WD | Warranty Deed | SECRETARY OF HOUSING & URBAN DEVELOPMENT | ROOT, TRAVIS K | | | $134,000.00 | 10146 | 4331479 |
| 5 | 07/16/2012 | WD | Warranty Deed | JP MORGAN CHASE BANK NATIONAL ASSOCIATION | SECRETARY OF HOUSING & URBAN DEVELOPMENT | | | $277,154.00 | 8368 | 4320085 |
| 6 | 05/29/2012 | TRUSTEED | Trustee's Deed | PHILLIPS, NOLAN M | JP MORGAN CHASE BANK NATIONAL ASSOCIATION | | | $322,557.00 | 7836 | 4316490 |
| 7 | 06/24/2008 | WD | Warranty Deed | PAC N.W. HOMES, INC, | PHILLIPS, NOLAN M | | | $288,145.00 | 81719 | 4232037 |
| 8 | 06/27/2003 | WD | Warranty Deed | INGALLS, LEE | PAC N.W. HOMES, INC, | | | $15,000.00 | 32817 | 4064979 |
| 9 | 10/20/1999 | WD | Warranty Deed | FORTIER, JANE E | INGALLS, LEE | | | $7,800.00 | 94459 | 99024300 |
| 10 | 05/01/1995 | DECREE | Divorce Decree/Legal Separation | FORTIER, WILFRED C | FORTIER, JANE E | | | $0.00 | 51699 | 95008010 |
| 11 | 08/01/1990 | QCD | Quit Claim Deed | ADAMS, RONALD | FORTIER, WILFRED C | | | $0.00 | 5988 | 90020355 |
| 12 | 04/01/1979 | OTHER | Other - Misc. Documents | Unknown | ADAMS, RONALD | | | $4,400.00 | 92010 | 351685 |
Payout Agreement
| No payout information available.. |