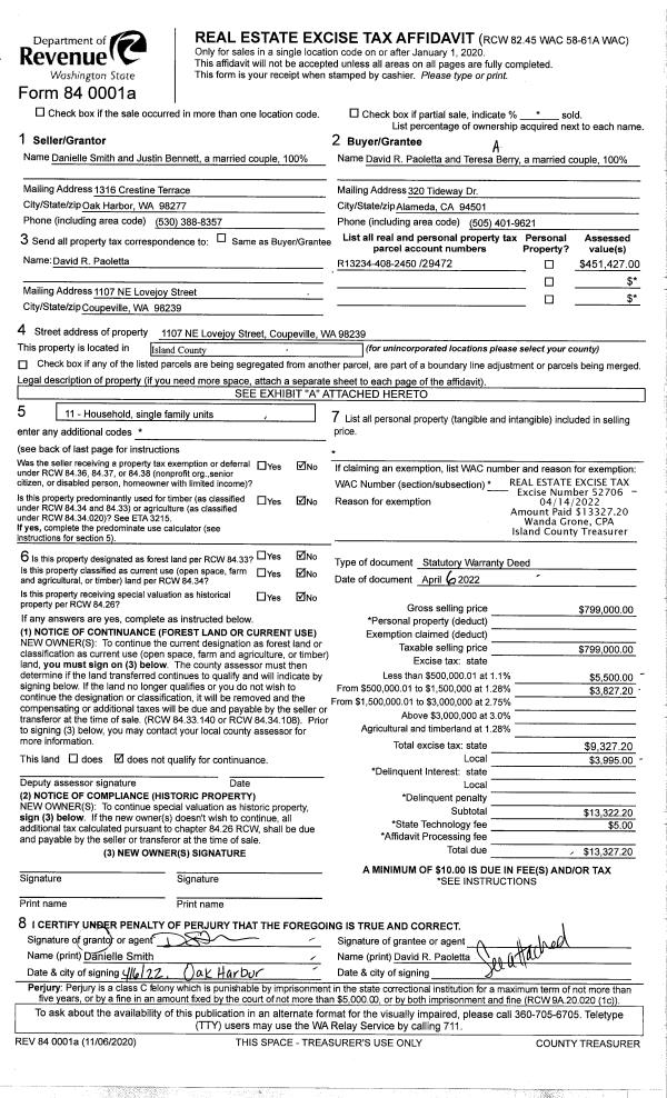
Property
Account |
| Property ID: | 313164 | Abbreviated Legal Description: | LOST LK GRV 5 LOTS 6 & 7 BLK 3 COMB 7/90 |
| Geographic ID: | S7410-05-03006-0 | Agent Code: | |
| Type: | Real | | |
| Tax Area: | 510 - APPRAISER-Stan/Cam Schl Dist, improved & 1 acre or less | Land Use Code | 11 |
| Open Space: | N | DFL | N |
| Historic Property: | N | Remodel Property: | N |
| Multi-Family Redevelopment: | N | | |
| Township: | | Section: | |
| Range: | |
Location |
| Address: | 1655 LAKE DR CAMANO ISLAND, WA 98282 | Mapsco: | |
| Neighborhood: | Cycle 5 | Map ID: | 511 |
| Neighborhood CD: | 5 |
Owner |
| Name: | FAWCETT, DAVID J | Owner ID: | 312020 |
| Mailing Address: | AMEE R FAWCETT 1655 LAKE DR CAMANO ISLAND, WA 98282 | % Ownership: | 100.0000000000% |
| | | Exemptions: | |
Taxes and Assessment Details
Values
| (+) Improvement Homesite Value: | + | $0 | |
| (+) Improvement Non-Homesite Value: | + | $349,291 | |
| (+) Land Homesite Value: | + | $0 | |
| (+) Land Non-Homesite Value: | + | $250,000 | |
| (+) Curr Use (HS): | + | $0 | $0 |
| (+) Curr Use (NHS): | + | $0 | $0 |
| | | -------------------------- | |
| (=) Market Value: | = | $599,291 | |
| (–) Productivity Loss: | – | $0 | |
| | | -------------------------- | |
| (=) Subtotal: | = | $599,291 | |
| (+) Senior Appraised Value: | + | $0 | |
| (+) Non-Senior Appraised Value: | + | $599,291 | |
| | | -------------------------- | |
| (=) Total Appraised Value: | = | $599,291 | |
| (–) Senior Exemption Loss: | – | $0 | |
| (–) Exemption Loss: | – | $0 | |
| | | -------------------------- | |
| (=) Taxable Value: | = | $599,291 | |
Taxing Jurisdiction
| Owner: | FAWCETT, DAVID J | | |
| % Ownership: | 100.0000000000% | | |
| Total Value: | $599,291 | | |
| Tax Area: | 510 - APPRAISER-Stan/Cam Schl Dist, improved & 1 acre or less |
| CF | Conservation Futures | 0.0316035091 | $599,291 | $599,291 | $18.94 | | |
| EMS1 | Fire & Rescue Dist #1 Camano GEN (EMS) | 0.3677864386 | $599,291 | $599,291 | $220.41 | | |
| FIRE1 | Fire & Rescue Dist #1 Camano GEN | 1.2502910536 | $599,291 | $599,291 | $749.29 | | |
| FIRE1BOND | Fire & Rescue Dist #1 Camano BOND | 0.1570001679 | $599,291 | $599,291 | $94.09 | | |
| CE | County Current Expense | 0.3708482477 | $599,291 | $599,291 | $222.25 | | |
| CR | County Roads | 0.4584763726 | $599,291 | $599,291 | $274.76 | | |
| LCIB | Library Sno-Isle BOND (Camano Island) | 0.0396325772 | $599,291 | $599,291 | $23.75 | | |
| LIB | Library Sno-Isle GEN | 0.3153421757 | $599,291 | $599,291 | $188.98 | | |
| SCH205_401 | School 205-401 Enrichment | 1.2698420524 | $599,291 | $599,291 | $761.00 | | |
| SCH205BOND | School 205-401 BOND | 0.9396497583 | $599,291 | $599,291 | $563.12 | | |
| ST | State School | 1.3035497053 | $599,291 | $599,291 | $781.21 | | |
| ST2 | State School Part 2 | 0.8169543533 | $599,291 | $599,291 | $489.59 | | |
| | Total Tax Rate: | 7.3209764117 | | | | | |
| | | | | Taxes w/Current Exemptions: | $4,387.39 | | |
| | | | | Taxes w/o Exemptions: | $4,387.39 | | |
Improvement / Building
| Improvement #1: | RESIDENTIAL | State Code: | Y | 1774.0 sqft | Value: | $349,291 |
| Bathrooms: | 2 | Bedrooms: | 2 | | Ceiling: | TONGUE & GROOVE | Cooling: | HEAT PUMP/CONV/V | | Exterior Wall/Cover: | WOOD SIDING | Floor Covering: | HARDWOOD/CARP 20-80 | | Floor Structure: | WOOD W/SUBFLOOR | Foundation: | CONCRETE | | Interior Finish: | DRYWALL PAINT | Plumbing Fixture Cnt: | 11 | | Roof Slope: | 5" IN 12" | Roof Structure/Cover: | BEAM ASPHALT |
|
| | Type | Description | Class CD | Sub Class CD | Year Built | Area |
| | BAS | BASE/MAIN FLOOR | 3 | 0 | 1990 | 1774.0 |
| | AGR | ATTACHED GARAGE | 3 | 0 | 1990 | 352.0 |
| | OCP | OPEN CARPORT | 3 | 0 | 1990 | 440.0 |
| | OWP | OPEN WOOD PORCH W/STEPS | 3 | 0 | 1990 | 536.5 |
| | OWC | OPEN WOOD PORCH W/STEPS/ROOF/C | 3 | 0 | 1990 | 50.0 |
| | OWC | OPEN WOOD PORCH W/STEPS/ROOF/C | 3 | 0 | 1990 | 36.0 |
Sketch
Property Image
Land
| 1 | 16 | AC (00.51-01.00) | 0.0000 | 0.00 | 0.00 | 0.00 | 1.00 | $250,000 | $0 |
Roll Value History
| 2026 | N/A | N/A | N/A | N/A | N/A |
| 2025 | $349,291 | $250,000 | $0 | $599,291 | $599,291 |
| 2024 | $353,488 | $240,000 | $0 | $593,488 | $593,488 |
| 2023 | $357,682 | $240,000 | $0 | $597,682 | $597,682 |
| 2022 | $312,271 | $210,000 | $0 | $522,271 | $522,271 |
| 2021 | $268,394 | $170,000 | $0 | $438,394 | $438,394 |
| 2020 | $261,387 | $130,000 | $0 | $391,387 | $391,387 |
| 2019 | $192,823 | $150,000 | $0 | $342,823 | $342,823 |
| 2018 | $193,377 | $125,000 | $0 | $318,377 | $318,377 |
| 2017 | $166,723 | $90,000 | $0 | $256,723 | $256,723 |
| 2016 | $168,709 | $75,000 | $0 | $243,709 | $243,709 |
| 2015 | $155,451 | $52,000 | $0 | $207,451 | $207,451 |
| 2014 | $157,440 | $52,000 | $0 | $209,440 | $209,440 |
| 2013 | $159,424 | $52,000 | $0 | $211,424 | $211,424 |
| 2012 | $161,413 | $52,000 | $0 | $213,413 | $213,413 |
| 2011 | $163,400 | $65,000 | $0 | $228,400 | $228,400 |
| 2010 | $171,353 | $84,000 | $0 | $255,353 | $255,353 |
| 2009 | $173,291 | $90,000 | $0 | $263,291 | $263,291 |
| 2008 | $175,503 | $90,000 | $0 | $265,503 | $265,503 |
| 2007 | $177,710 | $90,000 | $0 | $267,710 | $267,710 |
Deed and Sales History
| 1 | 04/16/2024 | WD | Warranty Deed | BELLUOMINI TTEE, KERRI | FAWCETT, DAVID J | | | $553,000.00 | 59682 | 4571378 |
| 2 | 03/15/2023 | WD | Warranty Deed | WILLIAMS, SHERRY | BELLUOMINI TTEE, KERRI | | | $550,000.00 | 56135 | 4557828 |
| 3 | 03/03/2023 | QCD | Quit Claim Deed | SCHIEFER, ERIC P | WILLIAMS, SHERRY | | | $0.00 | 56123 | 4557778 |
| 4 | 02/27/2023 | QCD | Quit Claim Deed | SCHIEFER, ERIC P | WILLIAMS, SHERRY | | | $0.00 | 56023 | 4557346 |
| 5 | 06/12/2017 | WD | Warranty Deed | BATCHELOR, R STEVEN | WILLIAMS, SHERRY | | | $340,000.00 | 29721 | 4424197 |
| 6 | 04/01/1995 | WD | Warranty Deed | CARR, MALCOLM C | BATCHELOR, R S | | | $143,000.00 | 51359 | 95006404 |
| 7 | 12/01/1992 | QCD | Quit Claim Deed | CARR, MALCOLM C | CARR, MALCOLM C | | | $0.00 | 25064 | 92024998 |
| 8 | 11/01/1992 | QCD | Quit Claim Deed | CARR, MALCOLM C | CARR, MALCOLM C | | | $0.00 | 24645 | 92022849 |
| 9 | 10/01/1992 | QCD | Quit Claim Deed | CARR, MALCOLM C | CARR, MALCOLM C | | | $0.00 | 24206 | 92020508 |
| 10 | 07/01/1990 | OTHER | Other - Misc. Documents | CARR, MALCOLM C | CARR, MALCOLM C | | | $0.00 | 63761 | 90013472 |
| 11 | 06/01/1990 | WD | Warranty Deed | WEST, WILLIAM J | CARR, MALCOLM C | | | $23,000.00 | 3969 | 90012932 |
| 12 | 01/01/1900 | OTHER | Other - Misc. Documents | Unknown | WEST, WILLIAM J | | | $0.00 | 0 | 0 |
Payout Agreement
| No payout information available.. |