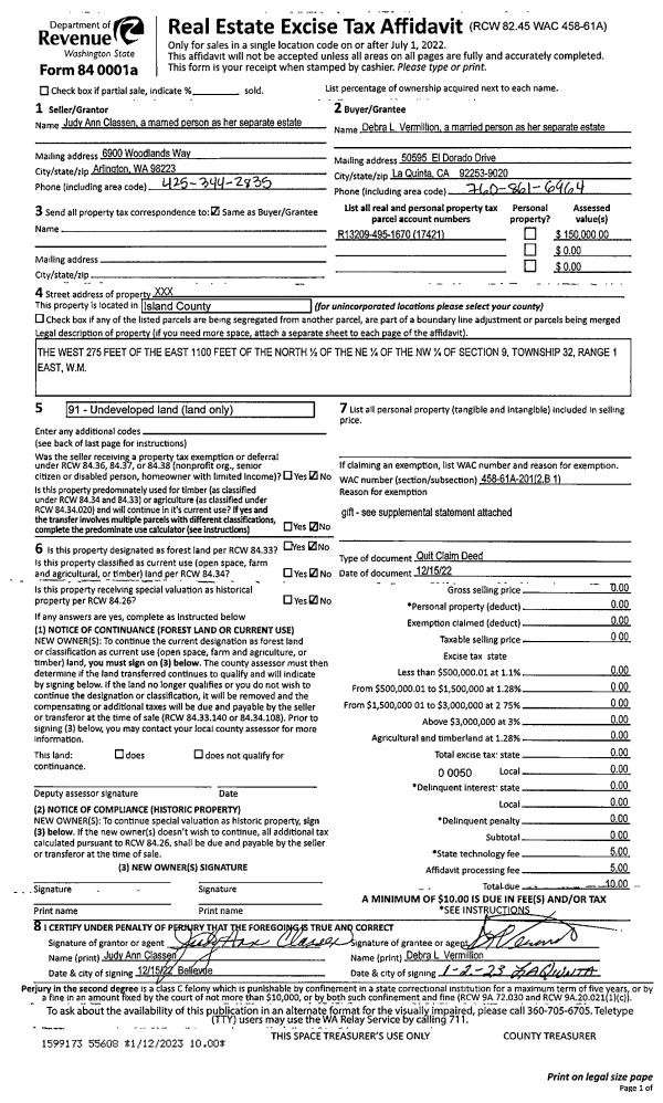
Property
Account |
| Property ID: | 313379 | Abbreviated Legal Description: | LOST LK GRV 6 LOT 3 BLK 2 |
| Geographic ID: | S7410-06-02003-0 | Agent Code: | |
| Type: | Real | | |
| Tax Area: | 510 - APPRAISER-Stan/Cam Schl Dist, improved & 1 acre or less | Land Use Code | 11 |
| Open Space: | N | DFL | N |
| Historic Property: | N | Remodel Property: | N |
| Multi-Family Redevelopment: | N | | |
| Township: | | Section: | |
| Range: | |
Location |
| Address: | 1613 POPLAR LN CAMANO ISLAND, WA 98282 | Mapsco: | |
| Neighborhood: | Cycle 5 | Map ID: | 511 |
| Neighborhood CD: | 5 |
Owner |
| Name: | DILLIER, CHRISTINE | Owner ID: | 306636 |
| Mailing Address: | 1613 POPLAR LN CAMANO ISLAND, WA 98282 | % Ownership: | 100.0000000000% |
| | | Exemptions: | SNR/DSBL |
Taxes and Assessment Details
Values
| (+) Improvement Homesite Value: | + | $331,531 | |
| (+) Improvement Non-Homesite Value: | + | $0 | |
| (+) Land Homesite Value: | + | $250,000 | |
| (+) Land Non-Homesite Value: | + | $0 | |
| (+) Curr Use (HS): | + | $0 | $0 |
| (+) Curr Use (NHS): | + | $0 | $0 |
| | | -------------------------- | |
| (=) Market Value: | = | $581,531 | |
| (–) Productivity Loss: | – | $0 | |
| | | -------------------------- | |
| (=) Subtotal: | = | $581,531 | |
| (+) Senior Appraised Value: | + | $524,000 | |
| (+) Non-Senior Appraised Value: | + | $0 | |
| | | -------------------------- | |
| (=) Total Appraised Value: | = | $524,000 | |
| (–) Senior Exemption Loss: | – | $314,400 | |
| (–) Exemption Loss: | – | $0 | |
| | | -------------------------- | |
| (=) Taxable Value: | = | $209,600 | |
Taxing Jurisdiction
| Owner: | DILLIER, CHRISTINE | | |
| % Ownership: | 100.0000000000% | | |
| Total Value: | $581,531 | | |
| Tax Area: | 510 - APPRAISER-Stan/Cam Schl Dist, improved & 1 acre or less |
| CF | Conservation Futures | 0.0316035091 | $581,531 | $209,600 | $6.62 | | |
| EMS1 | Fire & Rescue Dist #1 Camano GEN (EMS) | 0.3677864386 | $581,531 | $209,600 | $77.09 | | |
| FIRE1 | Fire & Rescue Dist #1 Camano GEN | 1.2502910536 | $581,531 | $209,600 | $262.06 | | |
| FIRE1BOND | Fire & Rescue Dist #1 Camano BOND | 0.0000000000 | $581,531 | $0 | $0.00 | | |
| CE | County Current Expense | 0.3708482477 | $581,531 | $209,600 | $77.73 | | |
| CR | County Roads | 0.4584763726 | $581,531 | $209,600 | $96.10 | | |
| LCIB | Library Sno-Isle BOND (Camano Island) | 0.0000000000 | $581,531 | $0 | $0.00 | | |
| LIB | Library Sno-Isle GEN | 0.3153421757 | $581,531 | $209,600 | $66.10 | | |
| SCH205_401 | School 205-401 Enrichment | 0.0000000000 | $581,531 | $0 | $0.00 | | |
| SCH205BOND | School 205-401 BOND | 0.0000000000 | $581,531 | $0 | $0.00 | | |
| ST | State School | 1.3035497053 | $581,531 | $209,600 | $273.22 | | |
| ST2 | State School Part 2 | 0.0000000000 | $581,531 | $0 | $0.00 | | |
| | Total Tax Rate: | 4.0978975026 | | | | | |
| | | | | Taxes w/Current Exemptions: | $858.92 | | |
| | | | | Taxes w/o Exemptions: | $4,257.37 | | |
Improvement / Building
| Improvement #1: | RESIDENTIAL | State Code: | Y | 1534.5 sqft | Value: | $331,531 |
| Bathrooms: | 2 | Bedrooms: | 2 | | Ceiling: | DRYWALL PAINTED | Exterior Wall/Cover: | CEMENT FIBER | | Floor Covering: | HARDWOOD/CARP 20-80 | Floor Structure: | WOOD W/SUBFLOOR | | Foundation: | CONCRETE | Heating: | FHA ELECTRIC | | Interior Finish: | DRYWALL PAINT | Plumbing Fixture Cnt: | 10 | | Roof Slope: | 6" IN 12" | Roof Structure/Cover: | CJ ASPHALT |
|
| | Type | Description | Class CD | Sub Class CD | Year Built | Area |
| | BAS | BASE/MAIN FLOOR | 3 | 0 | 2018 | 1534.5 |
| | AGR | ATTACHED GARAGE | 3 | 0 | 2018 | 410.0 |
| | OWP | OPEN WOOD PORCH W/STEPS | 3 | 0 | 2018 | 240.0 |
| | OP4 | OPEN PORCH W/CEILING-ROOF | 3 | 0 | 2018 | 135.5 |
Sketch
Property Image
Land
| 1 | 15 | SQ (12001-21780) | 0.0000 | 0.00 | 0.00 | 0.00 | 1.00 | $250,000 | $0 |
Roll Value History
| 2026 | N/A | N/A | N/A | N/A | N/A |
| 2025 | $331,531 | $250,000 | $0 | $581,531 | $209,600 |
| 2024 | $334,225 | $240,000 | $0 | $574,225 | $209,600 |
| 2023 | $314,000 | $210,000 | $0 | $524,000 | $209,600 |
| 2022 | $307,532 | $210,000 | $0 | $517,532 | $517,532 |
| 2021 | $269,530 | $170,000 | $0 | $439,530 | $439,530 |
| 2020 | $262,068 | $130,000 | $0 | $392,068 | $392,068 |
| 2019 | $193,825 | $150,000 | $0 | $343,825 | $343,825 |
| 2018 | $39,337 | $45,000 | $0 | $84,337 | $84,337 |
| 2017 | $0 | $45,000 | $0 | $45,000 | $45,000 |
| 2016 | $0 | $45,000 | $0 | $45,000 | $45,000 |
| 2015 | $0 | $45,000 | $0 | $45,000 | $45,000 |
| 2014 | $0 | $45,000 | $0 | $45,000 | $45,000 |
| 2013 | $0 | $45,000 | $0 | $45,000 | $45,000 |
| 2012 | $0 | $45,000 | $0 | $45,000 | $45,000 |
| 2011 | $0 | $45,000 | $0 | $45,000 | $45,000 |
| 2010 | $0 | $45,000 | $0 | $45,000 | $45,000 |
| 2009 | $0 | $45,000 | $0 | $45,000 | $45,000 |
| 2008 | $0 | $45,000 | $0 | $45,000 | $45,000 |
| 2007 | $0 | $45,000 | $0 | $45,000 | $45,000 |
Deed and Sales History
| 1 | 11/10/2022 | WD | Warranty Deed | PENNINGTON, PHIL L | DILLIER, CHRISTINE | | | $515,000.00 | 55137 | 4553766 |
| 2 | 10/10/2018 | WD | Warranty Deed | TITAN FRAMING, LLC | PENNINGTON, PHIL L | | | $355,000.00 | 36317 | 4453537 |
| 3 | 12/04/2017 | WD | Warranty Deed | ROSSI TRUSTEE, JACQUELINE M | TITAN FRAMING, LLC | | | $85,000.00 | 32338 | 4436089 |
|   | |
| 4 | 02/01/1986 | EXECUTORD | Executor Deed | ROSSI, JOHN A | ROSSI, JACQUELINE M | | | $0.00 | 60473 | 86002340 |
| 5 | 01/01/1900 | OTHER | Other - Misc. Documents | Unknown | ROSSI, JOHN A | | | $0.00 | 0 | 0 |
Payout Agreement
| No payout information available.. |