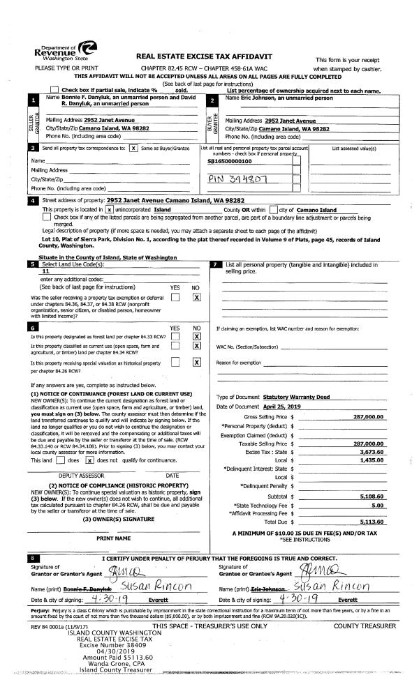
Property
Account |
| Property ID: | 313431 | Abbreviated Legal Description: | LOST LK GRV 6 LOT 9 BLK 2 |
| Geographic ID: | S7410-06-02009-0 | Agent Code: | |
| Type: | Real | | |
| Tax Area: | 510 - APPRAISER-Stan/Cam Schl Dist, improved & 1 acre or less | Land Use Code | 11 |
| Open Space: | N | DFL | N |
| Historic Property: | N | Remodel Property: | N |
| Multi-Family Redevelopment: | N | | |
| Township: | | Section: | |
| Range: | |
Location |
| Address: | 1649 POPLAR LN CAMANO ISLAND, WA 98282 | Mapsco: | |
| Neighborhood: | Cycle 5 | Map ID: | 511 |
| Neighborhood CD: | 5 |
Owner |
| Name: | HOLLOWAY, JAIME | Owner ID: | 289002 |
| Mailing Address: | 1649 POPLAR LN CAMANO ISLAND, WA 98282 | % Ownership: | 100.0000000000% |
| | | Exemptions: | |
Taxes and Assessment Details
Values
| (+) Improvement Homesite Value: | + | $0 | |
| (+) Improvement Non-Homesite Value: | + | $294,840 | |
| (+) Land Homesite Value: | + | $0 | |
| (+) Land Non-Homesite Value: | + | $250,000 | |
| (+) Curr Use (HS): | + | $0 | $0 |
| (+) Curr Use (NHS): | + | $0 | $0 |
| | | -------------------------- | |
| (=) Market Value: | = | $544,840 | |
| (–) Productivity Loss: | – | $0 | |
| | | -------------------------- | |
| (=) Subtotal: | = | $544,840 | |
| (+) Senior Appraised Value: | + | $0 | |
| (+) Non-Senior Appraised Value: | + | $544,840 | |
| | | -------------------------- | |
| (=) Total Appraised Value: | = | $544,840 | |
| (–) Senior Exemption Loss: | – | $0 | |
| (–) Exemption Loss: | – | $0 | |
| | | -------------------------- | |
| (=) Taxable Value: | = | $544,840 | |
Taxing Jurisdiction
| Owner: | HOLLOWAY, JAIME | | |
| % Ownership: | 100.0000000000% | | |
| Total Value: | $544,840 | | |
| Tax Area: | 510 - APPRAISER-Stan/Cam Schl Dist, improved & 1 acre or less |
| CF | Conservation Futures | 0.0316035091 | $544,840 | $544,840 | $17.22 | | |
| EMS1 | Fire & Rescue Dist #1 Camano GEN (EMS) | 0.3677864386 | $544,840 | $544,840 | $200.38 | | |
| FIRE1 | Fire & Rescue Dist #1 Camano GEN | 1.2502910536 | $544,840 | $544,840 | $681.21 | | |
| FIRE1BOND | Fire & Rescue Dist #1 Camano BOND | 0.1570001679 | $544,840 | $544,840 | $85.54 | | |
| CE | County Current Expense | 0.3708482477 | $544,840 | $544,840 | $202.05 | | |
| CR | County Roads | 0.4584763726 | $544,840 | $544,840 | $249.80 | | |
| LCIB | Library Sno-Isle BOND (Camano Island) | 0.0396325772 | $544,840 | $544,840 | $21.59 | | |
| LIB | Library Sno-Isle GEN | 0.3153421757 | $544,840 | $544,840 | $171.81 | | |
| SCH205_401 | School 205-401 Enrichment | 1.2698420524 | $544,840 | $544,840 | $691.86 | | |
| SCH205BOND | School 205-401 BOND | 0.9396497583 | $544,840 | $544,840 | $511.96 | | |
| ST | State School | 1.3035497053 | $544,840 | $544,840 | $710.23 | | |
| ST2 | State School Part 2 | 0.8169543533 | $544,840 | $544,840 | $445.11 | | |
| | Total Tax Rate: | 7.3209764117 | | | | | |
| | | | | Taxes w/Current Exemptions: | $3,988.76 | | |
| | | | | Taxes w/o Exemptions: | $3,988.76 | | |
Improvement / Building
| Improvement #1: | RESIDENTIAL | State Code: | Y | 1868.0 sqft | Value: | $294,840 |
| Bathrooms: | 2 | Bedrooms: | 3 | | Ceiling: | DRYWALL PAINTED | Exterior Wall/Cover: | PLY/HARDBOARD T-111 | | Floor Covering: | CARPET/VINYL 80-20 | Floor Structure: | WOOD W/SUBFLOOR | | Foundation: | CONCRETE | Heating: | FHA ELECTRIC | | Interior Finish: | DRYWALL PAINT | Plumbing Fixture Cnt: | 9 | | Roof Slope: | 4" IN 12" | Roof Structure/Cover: | CJ ASPHALT |
|
| | Type | Description | Class CD | Sub Class CD | Year Built | Area |
| | BAS | BASE/MAIN FLOOR | 3 | 0 | 2001 | 1316.0 |
| | DWN | DOWNSTAIRS LIVING AREA | 3 | 0 | 2001 | 552.0 |
| | BIG | BUILT IN GARAGE | 3 | 0 | 2001 | 648.0 |
| | OWP | OPEN WOOD PORCH W/STEPS | 3 | 0 | 2001 | 92.0 |
| | OWP | OPEN WOOD PORCH W/STEPS | 3 | 0 | 2001 | 250.0 |
Sketch
Property Image
Land
| 1 | 15 | SQ (12001-21780) | 0.0000 | 0.00 | 0.00 | 0.00 | 1.00 | $250,000 | $0 |
Roll Value History
| 2026 | N/A | N/A | N/A | N/A | N/A |
| 2025 | $294,840 | $250,000 | $0 | $544,840 | $544,840 |
| 2024 | $298,381 | $240,000 | $0 | $538,381 | $538,381 |
| 2023 | $301,923 | $240,000 | $0 | $541,923 | $541,923 |
| 2022 | $276,606 | $210,000 | $0 | $486,606 | $486,606 |
| 2021 | $243,312 | $170,000 | $0 | $413,312 | $413,312 |
| 2020 | $237,253 | $130,000 | $0 | $367,253 | $367,253 |
| 2019 | $178,540 | $150,000 | $0 | $328,540 | $328,540 |
| 2018 | $158,098 | $125,000 | $0 | $283,098 | $283,098 |
| 2017 | $159,046 | $90,000 | $0 | $249,046 | $249,046 |
| 2016 | $160,940 | $75,000 | $0 | $235,940 | $235,940 |
| 2015 | $159,260 | $52,000 | $0 | $211,260 | $211,260 |
| 2014 | $161,135 | $52,000 | $0 | $213,135 | $213,135 |
| 2013 | $163,008 | $52,000 | $0 | $215,008 | $215,008 |
| 2012 | $164,881 | $52,000 | $0 | $216,881 | $216,881 |
| 2011 | $166,754 | $65,000 | $0 | $231,754 | $231,754 |
| 2010 | $173,069 | $84,000 | $0 | $257,069 | $257,069 |
| 2009 | $178,249 | $90,000 | $0 | $268,249 | $268,249 |
| 2008 | $178,289 | $90,000 | $0 | $268,289 | $268,289 |
| 2007 | $180,213 | $90,000 | $0 | $270,213 | $270,213 |
Deed and Sales History
| 1 | 03/01/2019 | WD | Warranty Deed | SIERRA, CATHERINE LUCILLE | HOLLOWAY, JAIME | | | $360,000.00 | 37783 | 4460093 |
| 2 | 11/10/2015 | WD | Warranty Deed | FIELDS, KIMBERLEE | SIERRA, CATHERINE LUCILLE | | | $224,900.00 | 22189 | 4389659 |
| 3 | 05/21/2015 | BARGSLD | Bargain And Sale Deed | BAC HOME LOANS SERVICING LP | FIELDS, KIMBERLEE | | | $134,500.00 | 19724 | 4379104 |
| 4 | 02/18/2015 | TRUSTEED | Trustee's Deed | SPEERBRECHER, DEAN | BAC HOME LOANS SERVICING LP | | | $0.00 | 18552 | 4373651 |
| 5 | 10/08/2001 | WD | Warranty Deed | KOCH, CRAIG J | SPEERBRECHER, DEAN | | | $164,950.00 | 14031 | 4000325 |
| 6 | 10/03/2000 | WD | Warranty Deed | THOM, MEL & | KOCH, CRAIG J | | | $30,000.00 | 3882 | 20017755 |
| 7 | 09/01/1995 | WD | Warranty Deed | CORP, OF C | THOM, MEL & | | | $4,000.00 | 53426 | 95015758 |
| 8 | 01/01/1900 | OTHER | Other - Misc. Documents | Unknown | CORP, OF C | | | $0.00 | 0 | 0 |
Payout Agreement
| No payout information available.. |