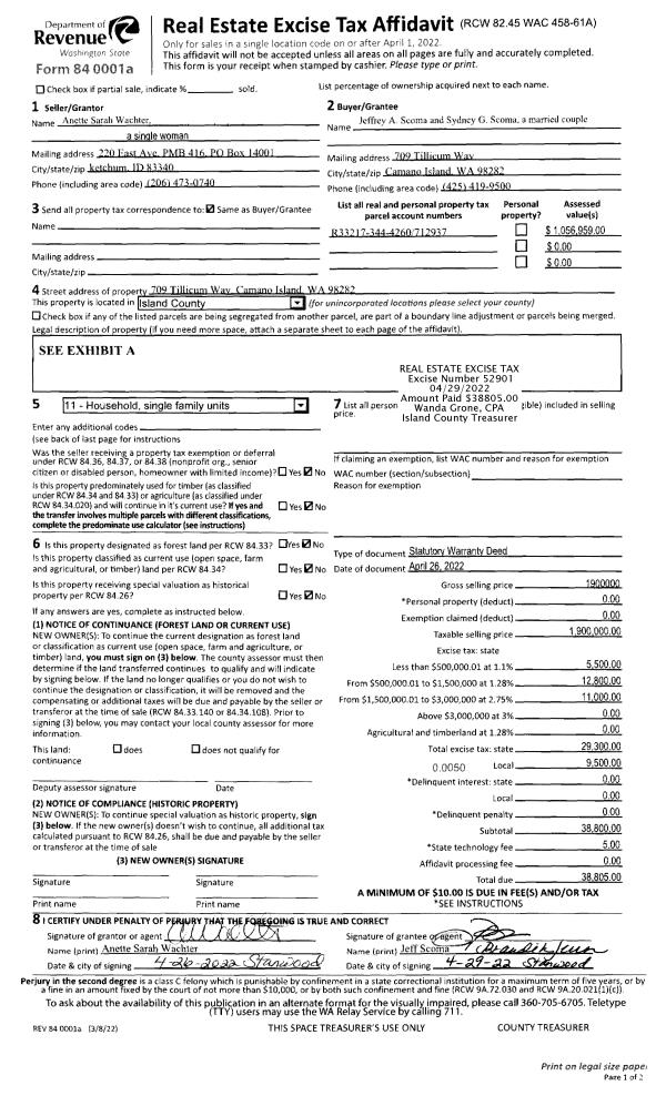
Property
Account |
| Property ID: | 313477 | Abbreviated Legal Description: | LOST LK GRV 6 LOT 13 BLK 2 |
| Geographic ID: | S7410-06-02013-0 | Agent Code: | |
| Type: | Real | | |
| Tax Area: | 510 - APPRAISER-Stan/Cam Schl Dist, improved & 1 acre or less | Land Use Code | 11 |
| Open Space: | N | DFL | N |
| Historic Property: | N | Remodel Property: | N |
| Multi-Family Redevelopment: | N | | |
| Township: | | Section: | |
| Range: | |
Location |
| Address: | 1673 POPLAR LN CAMANO ISLAND, WA 98282 | Mapsco: | |
| Neighborhood: | Cycle 5 | Map ID: | 511 |
| Neighborhood CD: | 5 |
Owner |
| Name: | HOWIE, CLAYTON | Owner ID: | 65777 |
| Mailing Address: | REBECCA L HOWIE 1673 POPLAR LN CAMANO ISLAND, WA 98282-7628 | % Ownership: | 100.0000000000% |
| | | Exemptions: | |
Taxes and Assessment Details
Values
| (+) Improvement Homesite Value: | + | $0 | |
| (+) Improvement Non-Homesite Value: | + | $242,161 | |
| (+) Land Homesite Value: | + | $0 | |
| (+) Land Non-Homesite Value: | + | $250,000 | |
| (+) Curr Use (HS): | + | $0 | $0 |
| (+) Curr Use (NHS): | + | $0 | $0 |
| | | -------------------------- | |
| (=) Market Value: | = | $492,161 | |
| (–) Productivity Loss: | – | $0 | |
| | | -------------------------- | |
| (=) Subtotal: | = | $492,161 | |
| (+) Senior Appraised Value: | + | $0 | |
| (+) Non-Senior Appraised Value: | + | $492,161 | |
| | | -------------------------- | |
| (=) Total Appraised Value: | = | $492,161 | |
| (–) Senior Exemption Loss: | – | $0 | |
| (–) Exemption Loss: | – | $0 | |
| | | -------------------------- | |
| (=) Taxable Value: | = | $492,161 | |
Taxing Jurisdiction
| Owner: | HOWIE, CLAYTON | | |
| % Ownership: | 100.0000000000% | | |
| Total Value: | $492,161 | | |
| Tax Area: | 510 - APPRAISER-Stan/Cam Schl Dist, improved & 1 acre or less |
| CF | Conservation Futures | 0.0316035091 | $492,161 | $492,161 | $15.55 | | |
| EMS1 | Fire & Rescue Dist #1 Camano GEN (EMS) | 0.3677864386 | $492,161 | $492,161 | $181.01 | | |
| FIRE1 | Fire & Rescue Dist #1 Camano GEN | 1.2502910536 | $492,161 | $492,161 | $615.34 | | |
| FIRE1BOND | Fire & Rescue Dist #1 Camano BOND | 0.1570001679 | $492,161 | $492,161 | $77.27 | | |
| CE | County Current Expense | 0.3708482477 | $492,161 | $492,161 | $182.52 | | |
| CR | County Roads | 0.4584763726 | $492,161 | $492,161 | $225.64 | | |
| LCIB | Library Sno-Isle BOND (Camano Island) | 0.0396325772 | $492,161 | $492,161 | $19.51 | | |
| LIB | Library Sno-Isle GEN | 0.3153421757 | $492,161 | $492,161 | $155.20 | | |
| SCH205_401 | School 205-401 Enrichment | 1.2698420524 | $492,161 | $492,161 | $624.97 | | |
| SCH205BOND | School 205-401 BOND | 0.9396497583 | $492,161 | $492,161 | $462.46 | | |
| ST | State School | 1.3035497053 | $492,161 | $492,161 | $641.56 | | |
| ST2 | State School Part 2 | 0.8169543533 | $492,161 | $492,161 | $402.07 | | |
| | Total Tax Rate: | 7.3209764117 | | | | | |
| | | | | Taxes w/Current Exemptions: | $3,603.10 | | |
| | | | | Taxes w/o Exemptions: | $3,603.10 | | |
Improvement / Building
| Improvement #1: | RESIDENTIAL | State Code: | Y | 1423.3 sqft | Value: | $242,161 |
| Bathrooms: | 2 | Bedrooms: | 3 | | Ceiling: | DRYWALL PAINTED | Exterior Wall/Cover: | CEMENT FIBER | | Floor Covering: | VINYL/HARDWOOD 80-20 | Floor Structure: | WOOD W/SUBFLOOR | | Foundation: | CONCRETE | Heating: | WALL HEAT ELECTRIC | | Interior Finish: | DRYWALL PAINT | Plumbing Fixture Cnt: | 9 | | Roof Slope: | 4" IN 12" | Roof Structure/Cover: | CJ ASPHALT |
|
| | Type | Description | Class CD | Sub Class CD | Year Built | Area |
| | BAS | BASE/MAIN FLOOR | 3 | 0 | 1994 | 1423.3 |
| | OP3 | OPEN PORCH W/ROOF | 3 | 0 | 1994 | 128.9 |
| | AGR | ATTACHED GARAGE | 3 | 0 | 1994 | 441.0 |
| | OWP | OPEN WOOD PORCH W/STEPS | 3 | 0 | 1994 | 216.0 |
Sketch
Property Image
Land
| 1 | 15 | SQ (12001-21780) | 0.0000 | 0.00 | 0.00 | 0.00 | 1.00 | $250,000 | $0 |
Roll Value History
| 2026 | N/A | N/A | N/A | N/A | N/A |
| 2025 | $242,161 | $250,000 | $0 | $492,161 | $492,161 |
| 2024 | $245,296 | $240,000 | $0 | $485,296 | $485,296 |
| 2023 | $248,430 | $240,000 | $0 | $488,430 | $488,430 |
| 2022 | $227,792 | $210,000 | $0 | $437,792 | $437,792 |
| 2021 | $193,147 | $170,000 | $0 | $363,147 | $363,147 |
| 2020 | $188,207 | $130,000 | $0 | $318,207 | $318,207 |
| 2019 | $136,093 | $150,000 | $0 | $286,093 | $286,093 |
| 2018 | $136,517 | $125,000 | $0 | $261,517 | $261,517 |
| 2017 | $137,335 | $90,000 | $0 | $227,335 | $227,335 |
| 2016 | $139,030 | $75,000 | $0 | $214,030 | $214,030 |
| 2015 | $131,993 | $52,000 | $0 | $183,993 | $183,993 |
| 2014 | $133,664 | $52,000 | $0 | $185,664 | $185,664 |
| 2013 | $135,335 | $52,000 | $0 | $187,335 | $187,335 |
| 2012 | $137,005 | $52,000 | $0 | $189,005 | $189,005 |
| 2011 | $138,676 | $65,000 | $0 | $203,676 | $203,676 |
| 2010 | $143,074 | $84,000 | $0 | $227,074 | $227,074 |
| 2009 | $154,971 | $90,000 | $0 | $244,971 | $244,971 |
| 2008 | $156,792 | $90,000 | $0 | $246,792 | $246,792 |
| 2007 | $158,611 | $90,000 | $0 | $248,611 | $248,611 |
Deed and Sales History
| 1 | 01/27/2005 | WD | Warranty Deed | LAMIE, SHANE M | HOWIE, CLAYTON | | | $180,000.00 | 50408 | 4124615 |
| 2 | 07/17/2000 | WD | Warranty Deed | BANASZAK, JOHN F | LAMIE, SHANE M | | | $146,000.00 | 2766 | 20013101 |
| 3 | 04/01/1995 | WD | Warranty Deed | TUSS, JOHN & | BANASZAK, JOHN F | | | $118,000.00 | 51433 | 95006726 |
| 4 | 04/01/1994 | WD | Warranty Deed | RYAN, JACK J | TUSS, JOHN & | | | $19,950.00 | 41709 | 94010125 |
| 5 | 01/01/1900 | OTHER | Other - Misc. Documents | Unknown | RYAN, JACK J | | | $0.00 | 0 | 0 |
Payout Agreement
| No payout information available.. |