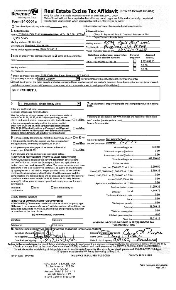
Property
Account |
| Property ID: | 313565 | Abbreviated Legal Description: | LOST LAKE GROVE 6 LOT 22 BLK 2 |
| Geographic ID: | S7410-06-02022-0 | Agent Code: | |
| Type: | Real | | |
| Tax Area: | 510 - APPRAISER-Stan/Cam Schl Dist, improved & 1 acre or less | Land Use Code | 11 |
| Open Space: | N | DFL | N |
| Historic Property: | N | Remodel Property: | N |
| Multi-Family Redevelopment: | N | | |
| Township: | | Section: | |
| Range: | |
Location |
| Address: | 1636 HEMLOCK DR CAMANO ISLAND, WA 98282 | Mapsco: | |
| Neighborhood: | Cycle 5 | Map ID: | 511 |
| Neighborhood CD: | 5 |
Owner |
| Name: | MIKO, CHRISTOPHER J | Owner ID: | 275525 |
| Mailing Address: | JESSICA L MIKO 1636 HEMLOCK DR CAMANO ISLAND, WA 98282 | % Ownership: | 100.0000000000% |
| | | Exemptions: | |
Taxes and Assessment Details
Values
| (+) Improvement Homesite Value: | + | $0 | |
| (+) Improvement Non-Homesite Value: | + | $236,836 | |
| (+) Land Homesite Value: | + | $0 | |
| (+) Land Non-Homesite Value: | + | $250,000 | |
| (+) Curr Use (HS): | + | $0 | $0 |
| (+) Curr Use (NHS): | + | $0 | $0 |
| | | -------------------------- | |
| (=) Market Value: | = | $486,836 | |
| (–) Productivity Loss: | – | $0 | |
| | | -------------------------- | |
| (=) Subtotal: | = | $486,836 | |
| (+) Senior Appraised Value: | + | $0 | |
| (+) Non-Senior Appraised Value: | + | $486,836 | |
| | | -------------------------- | |
| (=) Total Appraised Value: | = | $486,836 | |
| (–) Senior Exemption Loss: | – | $0 | |
| (–) Exemption Loss: | – | $0 | |
| | | -------------------------- | |
| (=) Taxable Value: | = | $486,836 | |
Taxing Jurisdiction
| Owner: | MIKO, CHRISTOPHER J | | |
| % Ownership: | 100.0000000000% | | |
| Total Value: | $486,836 | | |
| Tax Area: | 510 - APPRAISER-Stan/Cam Schl Dist, improved & 1 acre or less |
| CF | Conservation Futures | 0.0316035091 | $486,836 | $486,836 | $15.39 | | |
| EMS1 | Fire & Rescue Dist #1 Camano GEN (EMS) | 0.3677864386 | $486,836 | $486,836 | $179.05 | | |
| FIRE1 | Fire & Rescue Dist #1 Camano GEN | 1.2502910536 | $486,836 | $486,836 | $608.69 | | |
| FIRE1BOND | Fire & Rescue Dist #1 Camano BOND | 0.1570001679 | $486,836 | $486,836 | $76.43 | | |
| CE | County Current Expense | 0.3708482477 | $486,836 | $486,836 | $180.54 | | |
| CR | County Roads | 0.4584763726 | $486,836 | $486,836 | $223.20 | | |
| LCIB | Library Sno-Isle BOND (Camano Island) | 0.0396325772 | $486,836 | $486,836 | $19.29 | | |
| LIB | Library Sno-Isle GEN | 0.3153421757 | $486,836 | $486,836 | $153.52 | | |
| SCH205_401 | School 205-401 Enrichment | 1.2698420524 | $486,836 | $486,836 | $618.20 | | |
| SCH205BOND | School 205-401 BOND | 0.9396497583 | $486,836 | $486,836 | $457.46 | | |
| ST | State School | 1.3035497053 | $486,836 | $486,836 | $634.61 | | |
| ST2 | State School Part 2 | 0.8169543533 | $486,836 | $486,836 | $397.72 | | |
| | Total Tax Rate: | 7.3209764117 | | | | | |
| | | | | Taxes w/Current Exemptions: | $3,564.10 | | |
| | | | | Taxes w/o Exemptions: | $3,564.10 | | |
Improvement / Building
| Improvement #1: | RESIDENTIAL | State Code: | Y | 1320.0 sqft | Value: | $236,836 |
| Bathrooms: | 2 | Bedrooms: | 3 | | Ceiling: | BEAM PAINTED | Exterior Wall/Cover: | PLY/HARDBOARD T-111 | | Floor Covering: | CARPET/VINYL 20-80 | Floor Structure: | WOOD W/SUBFLOOR | | Foundation: | CONCRETE | Heating: | BASEBOARD ELECTRIC | | Interior Finish: | DRYWALL PAINT | Plumbing Fixture Cnt: | 9 | | Roof Slope: | 3" IN 12" | Roof Structure/Cover: | BEAM ASPHALT |
|
| | Type | Description | Class CD | Sub Class CD | Year Built | Area |
| | BAS | BASE/MAIN FLOOR | 3 | 0 | 1975 | 1320.0 |
| | OWP | OPEN WOOD PORCH W/STEPS | 3 | 0 | 1975 | 40.0 |
| | OWP | OPEN WOOD PORCH W/STEPS | 3 | 0 | 1975 | 120.0 |
| | DGR | DETACHED GARAGE | 3 | 0 | 1975 | 480.0 |
Sketch
Property Image
Land
| 1 | 15 | SQ (12001-21780) | 0.0000 | 0.00 | 0.00 | 0.00 | 1.00 | $250,000 | $0 |
Roll Value History
| 2026 | N/A | N/A | N/A | N/A | N/A |
| 2025 | $236,836 | $250,000 | $0 | $486,836 | $486,836 |
| 2024 | $240,292 | $240,000 | $0 | $480,292 | $480,292 |
| 2023 | $243,145 | $240,000 | $0 | $483,145 | $483,145 |
| 2022 | $222,750 | $210,000 | $0 | $432,750 | $432,750 |
| 2021 | $195,948 | $170,000 | $0 | $365,948 | $365,948 |
| 2020 | $190,627 | $130,000 | $0 | $320,627 | $320,627 |
| 2019 | $135,220 | $150,000 | $0 | $285,220 | $285,220 |
| 2018 | $135,599 | $125,000 | $0 | $260,599 | $260,599 |
| 2017 | $136,357 | $90,000 | $0 | $226,357 | $226,357 |
| 2016 | $137,872 | $75,000 | $0 | $212,872 | $212,872 |
| 2015 | $92,047 | $52,000 | $0 | $144,047 | $144,047 |
| 2014 | $93,391 | $52,000 | $0 | $145,391 | $145,391 |
| 2013 | $94,735 | $52,000 | $0 | $146,735 | $146,735 |
| 2012 | $96,079 | $52,000 | $0 | $148,079 | $148,079 |
| 2011 | $97,423 | $65,000 | $0 | $162,423 | $162,423 |
| 2010 | $105,332 | $84,000 | $0 | $189,332 | $189,332 |
| 2009 | $106,736 | $90,000 | $0 | $196,736 | $196,736 |
| 2008 | $108,347 | $90,000 | $0 | $198,347 | $198,347 |
| 2007 | $109,959 | $90,000 | $0 | $199,959 | $199,959 |
Deed and Sales History
| 1 | 08/26/2025 | WD | Warranty Deed | MIKO, CHRISTOPHER J | CLAPPER, JOSEPH | | | $467,000.00 | 64640 | 4590224 |
| 2 | 06/02/2016 | WD | Warranty Deed | SHULER, JAMES | MIKO, CHRISTOPHER J | | | $249,000.00 | 24656 | 4400691 |
| 3 | 04/15/2015 | SPWARDEED | Special Warranty Deed | DEPARTMENT OF HOUSING AND URBAN DEVELOPMENT | SHULER, JAMES | | | $98,200.00 | 19204 | 4376788 |
| 4 | 06/19/2014 | SPWARDEED | Special Warranty Deed | FEDERAL NATIONAL MORTGAGE ASSOCIATION | DEPARTMENT OF HOUSING AND URBAN DEVELOPMENT | | | $0.00 | 16435 | 4364054 |
| 5 | 12/19/2012 | TRUSTEED | Trustee's Deed | WEAVER, LIESL A | FEDERAL NATIONAL MORTGAGE ASSOCIATION | | | $228,011.00 | 9850 | 4329705 |
| 6 | 02/09/2007 | QCD | Quit Claim Deed | WEAVER, LIESL A | WEAVER, LIESL A | | | $0.00 | 70503 | 4194251 |
| 7 | 02/07/2005 | ESTSEPPROP | Establish Separate Property | WEAVER, MICHAEL A | WEAVER, LIESL A | | | $0.00 | 50539 | 4125561 |
| 8 | 10/25/2000 | WD | Warranty Deed | MCLAUGHLIN, LARRY E | WEAVER, MICHAEL A | | | $130,000.00 | 4089 | 20018758 |
| 9 | 04/01/1997 | WD | Warranty Deed | CHRIEST, VICTOR J | MCLAUGHLIN, LARRY E | | | $89,300.00 | 71229 | 97005531 |
| 10 | 01/01/1900 | OTHER | Other - Misc. Documents | Unknown | CHRIEST, VICTOR J | | | $0.00 | 0 | 0 |
Payout Agreement
| No payout information available.. |