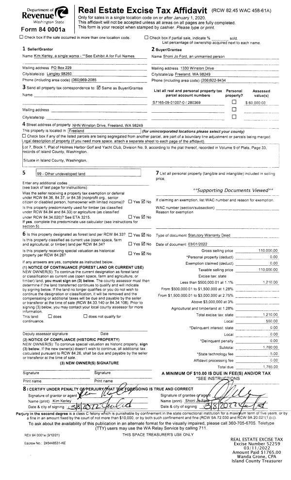
Property
Account |
| Property ID: | 313574 | Abbreviated Legal Description: | LOST LK GRV 6 LOT 23 BLK 2 |
| Geographic ID: | S7410-06-02023-0 | Agent Code: | |
| Type: | Real | | |
| Tax Area: | 510 - APPRAISER-Stan/Cam Schl Dist, improved & 1 acre or less | Land Use Code | 11 |
| Open Space: | N | DFL | N |
| Historic Property: | N | Remodel Property: | N |
| Multi-Family Redevelopment: | N | | |
| Township: | | Section: | |
| Range: | |
Location |
| Address: | 1628 HEMLOCK DR CAMANO ISLAND, WA 98282 | Mapsco: | |
| Neighborhood: | Cycle 5 | Map ID: | 511 |
| Neighborhood CD: | 5 |
Owner |
| Name: | LEKH, YAROSLAV & MARIA | Owner ID: | 65787 |
| Mailing Address: | 3609 138TH ST SW LYNNWOOD, WA 98087-5239 | % Ownership: | 100.0000000000% |
| | | Exemptions: | |
Taxes and Assessment Details
Values
| (+) Improvement Homesite Value: | + | $0 | |
| (+) Improvement Non-Homesite Value: | + | $518,177 | |
| (+) Land Homesite Value: | + | $0 | |
| (+) Land Non-Homesite Value: | + | $250,000 | |
| (+) Curr Use (HS): | + | $0 | $0 |
| (+) Curr Use (NHS): | + | $0 | $0 |
| | | -------------------------- | |
| (=) Market Value: | = | $768,177 | |
| (–) Productivity Loss: | – | $0 | |
| | | -------------------------- | |
| (=) Subtotal: | = | $768,177 | |
| (+) Senior Appraised Value: | + | $0 | |
| (+) Non-Senior Appraised Value: | + | $768,177 | |
| | | -------------------------- | |
| (=) Total Appraised Value: | = | $768,177 | |
| (–) Senior Exemption Loss: | – | $0 | |
| (–) Exemption Loss: | – | $0 | |
| | | -------------------------- | |
| (=) Taxable Value: | = | $768,177 | |
Taxing Jurisdiction
| Owner: | LEKH, YAROSLAV & MARIA | | |
| % Ownership: | 100.0000000000% | | |
| Total Value: | $768,177 | | |
| Tax Area: | 510 - APPRAISER-Stan/Cam Schl Dist, improved & 1 acre or less |
| CF | Conservation Futures | 0.0316035091 | $768,177 | $768,177 | $24.28 | | |
| EMS1 | Fire & Rescue Dist #1 Camano GEN (EMS) | 0.3677864386 | $768,177 | $768,177 | $282.53 | | |
| FIRE1 | Fire & Rescue Dist #1 Camano GEN | 1.2502910536 | $768,177 | $768,177 | $960.44 | | |
| FIRE1BOND | Fire & Rescue Dist #1 Camano BOND | 0.1570001679 | $768,177 | $768,177 | $120.60 | | |
| CE | County Current Expense | 0.3708482477 | $768,177 | $768,177 | $284.88 | | |
| CR | County Roads | 0.4584763726 | $768,177 | $768,177 | $352.19 | | |
| LCIB | Library Sno-Isle BOND (Camano Island) | 0.0396325772 | $768,177 | $768,177 | $30.44 | | |
| LIB | Library Sno-Isle GEN | 0.3153421757 | $768,177 | $768,177 | $242.24 | | |
| SCH205_401 | School 205-401 Enrichment | 1.2698420524 | $768,177 | $768,177 | $975.46 | | |
| SCH205BOND | School 205-401 BOND | 0.9396497583 | $768,177 | $768,177 | $721.82 | | |
| ST | State School | 1.3035497053 | $768,177 | $768,177 | $1,001.36 | | |
| ST2 | State School Part 2 | 0.8169543533 | $768,177 | $768,177 | $627.57 | | |
| | Total Tax Rate: | 7.3209764117 | | | | | |
| | | | | Taxes w/Current Exemptions: | $5,623.81 | | |
| | | | | Taxes w/o Exemptions: | $5,623.81 | | |
Improvement / Building
| Improvement #1: | RESIDENTIAL | State Code: | Y | 3122.0 sqft | Value: | $518,177 |
| Bathrooms: | 3 | Bedrooms: | 3 | | Ceiling: | DRYWALL PAINTED | Exterior Wall/Cover: | CEMENT FIBER | | Floor Covering: | TILE CERAMIC | Floor Structure: | WOOD W/SUBFLOOR | | Foundation: | CONCRETE | Heating: | FHA ELECTRIC | | Interior Finish: | DRYWALL PAINT | Plumbing Fixture Cnt: | 11 | | Roof Slope: | 8" IN 12" | Roof Structure/Cover: | CJ ASPHALT |
|
| | Type | Description | Class CD | Sub Class CD | Year Built | Area |
| | BAS | BASE/MAIN FLOOR | 4 | 0 | 2000 | 1795.0 |
| | DWN | DOWNSTAIRS LIVING AREA | 4 | 0 | 2000 | 1327.0 |
| | UTY | STORAGE/UTILITY | 4 | 0 | 2000 | 120.0 |
| | OP2 | OPEN PORCH W/STEPS | 4 | 0 | 2000 | 218.0 |
| | OP4 | OPEN PORCH W/CEILING-ROOF | 4 | 0 | 2000 | 84.0 |
| | BIG | BUILT IN GARAGE | 4 | 0 | 2000 | 468.0 |
| | BAW | BALCONY WOOD RAIL | 4 | 0 | 2000 | 108.0 |
| | ATU | ATTIC UNFINISHED | 4 | 0 | 2000 | 978.2 |
| | OWP | OPEN WOOD PORCH W/STEPS | 4 | 0 | 2000 | 50.0 |
| | OWR | OPEN WOOD PORCH W/STEPS/ROOF | 4 | 0 | 2000 | 81.0 |
| | UTY | STORAGE/UTILITY | 4 | 0 | 2000 | 81.0 |
Sketch
Property Image
Land
| 1 | 15 | SQ (12001-21780) | 0.0000 | 0.00 | 0.00 | 0.00 | 1.00 | $250,000 | $0 |
Roll Value History
| 2026 | N/A | N/A | N/A | N/A | N/A |
| 2025 | $518,177 | $250,000 | $0 | $768,177 | $768,177 |
| 2024 | $524,555 | $240,000 | $0 | $764,555 | $764,555 |
| 2023 | $530,932 | $240,000 | $0 | $770,932 | $770,932 |
| 2022 | $486,541 | $210,000 | $0 | $696,541 | $696,541 |
| 2021 | $408,008 | $170,000 | $0 | $578,008 | $578,008 |
| 2020 | $399,010 | $130,000 | $0 | $529,010 | $529,010 |
| 2019 | $316,202 | $150,000 | $0 | $466,202 | $466,202 |
| 2018 | $317,153 | $125,000 | $0 | $442,153 | $442,153 |
| 2017 | $319,052 | $90,000 | $0 | $409,052 | $409,052 |
| 2016 | $322,849 | $75,000 | $0 | $397,849 | $397,849 |
| 2015 | $323,622 | $52,000 | $0 | $375,622 | $375,622 |
| 2014 | $327,379 | $52,000 | $0 | $379,379 | $379,379 |
| 2013 | $331,139 | $52,000 | $0 | $383,139 | $383,139 |
| 2012 | $334,898 | $52,000 | $0 | $386,898 | $386,898 |
| 2011 | $338,657 | $65,000 | $0 | $403,657 | $403,657 |
| 2010 | $356,938 | $84,000 | $0 | $440,938 | $440,938 |
| 2009 | $381,354 | $90,000 | $0 | $471,354 | $471,354 |
| 2008 | $385,913 | $90,000 | $0 | $475,913 | $475,913 |
| 2007 | $386,503 | $90,000 | $0 | $476,503 | $476,503 |
Deed and Sales History
| 1 | 07/01/1995 | WD | Warranty Deed | SCOTT, CELIA M | LEKH, YAROSLAV & | | | $24,000.00 | 52470 | 95011409 |
| 2 | 01/01/1900 | OTHER | Other - Misc. Documents | Unknown | SCOTT, CELIA M | | | $0.00 | 0 | 0 |
Payout Agreement
| No payout information available.. |