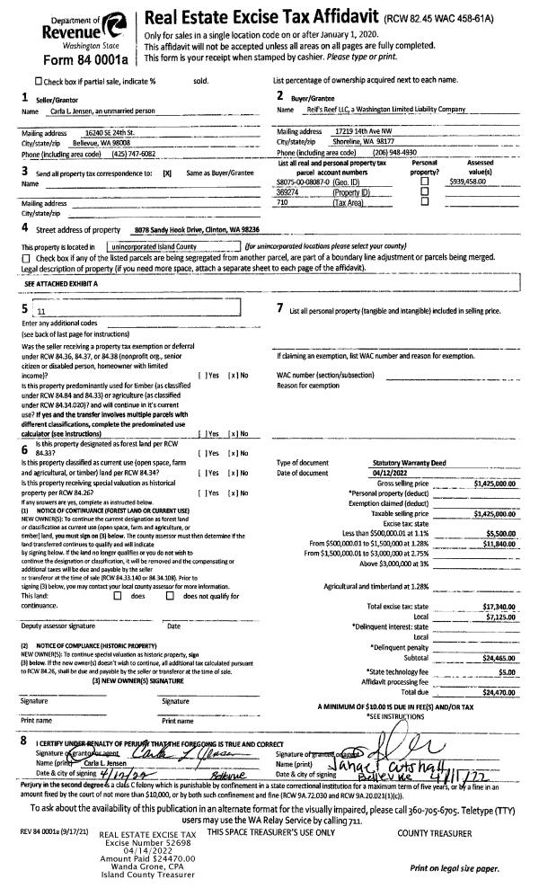
Property
Account |
| Property ID: | 313645 | Abbreviated Legal Description: | LOST LK GRV 6 LOT 30 BLK 2 |
| Geographic ID: | S7410-06-02030-0 | Agent Code: | |
| Type: | Real | | |
| Tax Area: | 510 - APPRAISER-Stan/Cam Schl Dist, improved & 1 acre or less | Land Use Code | 11 |
| Open Space: | N | DFL | N |
| Historic Property: | N | Remodel Property: | N |
| Multi-Family Redevelopment: | N | | |
| Township: | | Section: | |
| Range: | |
Location |
| Address: | 1592 LAKE DR CAMANO ISLAND, WA 98282 | Mapsco: | |
| Neighborhood: | Cycle 5 | Map ID: | 505 |
| Neighborhood CD: | 5 |
Owner |
| Name: | SCARBER, JO E | Owner ID: | 277064 |
| Mailing Address: | 26910 92ND AVE NW CS #141 STANWOOD, WA 98292 | % Ownership: | 100.0000000000% |
| | | Exemptions: | |
Taxes and Assessment Details
Values
| (+) Improvement Homesite Value: | + | $0 | |
| (+) Improvement Non-Homesite Value: | + | $276,767 | |
| (+) Land Homesite Value: | + | $0 | |
| (+) Land Non-Homesite Value: | + | $250,000 | |
| (+) Curr Use (HS): | + | $0 | $0 |
| (+) Curr Use (NHS): | + | $0 | $0 |
| | | -------------------------- | |
| (=) Market Value: | = | $526,767 | |
| (–) Productivity Loss: | – | $0 | |
| | | -------------------------- | |
| (=) Subtotal: | = | $526,767 | |
| (+) Senior Appraised Value: | + | $0 | |
| (+) Non-Senior Appraised Value: | + | $526,767 | |
| | | -------------------------- | |
| (=) Total Appraised Value: | = | $526,767 | |
| (–) Senior Exemption Loss: | – | $0 | |
| (–) Exemption Loss: | – | $0 | |
| | | -------------------------- | |
| (=) Taxable Value: | = | $526,767 | |
Taxing Jurisdiction
| Owner: | SCARBER, JO E | | |
| % Ownership: | 100.0000000000% | | |
| Total Value: | $526,767 | | |
| Tax Area: | 510 - APPRAISER-Stan/Cam Schl Dist, improved & 1 acre or less |
| CF | Conservation Futures | 0.0316035091 | $526,767 | $526,767 | $16.65 | | |
| EMS1 | Fire & Rescue Dist #1 Camano GEN (EMS) | 0.3677864386 | $526,767 | $526,767 | $193.74 | | |
| FIRE1 | Fire & Rescue Dist #1 Camano GEN | 1.2502910536 | $526,767 | $526,767 | $658.61 | | |
| FIRE1BOND | Fire & Rescue Dist #1 Camano BOND | 0.1570001679 | $526,767 | $526,767 | $82.70 | | |
| CE | County Current Expense | 0.3708482477 | $526,767 | $526,767 | $195.35 | | |
| CR | County Roads | 0.4584763726 | $526,767 | $526,767 | $241.51 | | |
| LCIB | Library Sno-Isle BOND (Camano Island) | 0.0396325772 | $526,767 | $526,767 | $20.88 | | |
| LIB | Library Sno-Isle GEN | 0.3153421757 | $526,767 | $526,767 | $166.11 | | |
| SCH205_401 | School 205-401 Enrichment | 1.2698420524 | $526,767 | $526,767 | $668.91 | | |
| SCH205BOND | School 205-401 BOND | 0.9396497583 | $526,767 | $526,767 | $494.98 | | |
| ST | State School | 1.3035497053 | $526,767 | $526,767 | $686.67 | | |
| ST2 | State School Part 2 | 0.8169543533 | $526,767 | $526,767 | $430.34 | | |
| | Total Tax Rate: | 7.3209764117 | | | | | |
| | | | | Taxes w/Current Exemptions: | $3,856.45 | | |
| | | | | Taxes w/o Exemptions: | $3,856.45 | | |
Improvement / Building
| Improvement #1: | RESIDENTIAL | State Code: | Y | 1698.9 sqft | Value: | $276,767 |
| Bathrooms: | 2 | Bedrooms: | 3 | | Ceiling: | DRYWALL PAINTED | Exterior Wall/Cover: | PLY/HARDBOARD T-111 | | Floor Covering: | HARDWOOD/CARP 20-80 | Floor Structure: | WOOD W/SUBFLOOR | | Foundation: | CONCRETE | Heating: | FHA ELECTRIC | | Interior Finish: | DRYWALL PAINT | Plumbing Fixture Cnt: | 9 | | Roof Slope: | 4" IN 12" | Roof Structure/Cover: | CJ ASPHALT |
|
| | Type | Description | Class CD | Sub Class CD | Year Built | Area |
| | BAS | BASE/MAIN FLOOR | 3 | 0 | 2002 | 1194.9 |
| | DWN | DOWNSTAIRS LIVING AREA | 3 | 0 | 2002 | 504.0 |
| | BIG | BUILT IN GARAGE | 3 | 0 | 2002 | 576.0 |
| | OWP | OPEN WOOD PORCH W/STEPS | 3 | 0 | 2002 | 60.0 |
| | OWP | OPEN WOOD PORCH W/STEPS | 3 | 0 | 2002 | 184.0 |
Sketch
Property Image
Land
| 1 | 14 | SQ (08001-12000) | 0.0000 | 0.00 | 0.00 | 0.00 | 1.00 | $250,000 | $0 |
Roll Value History
| 2026 | N/A | N/A | N/A | N/A | N/A |
| 2025 | $276,767 | $250,000 | $0 | $526,767 | $526,767 |
| 2024 | $280,014 | $240,000 | $0 | $520,014 | $520,014 |
| 2023 | $283,261 | $240,000 | $0 | $523,261 | $523,261 |
| 2022 | $259,434 | $210,000 | $0 | $469,434 | $469,434 |
| 2021 | $217,931 | $170,000 | $0 | $387,931 | $387,931 |
| 2020 | $212,443 | $130,000 | $0 | $342,443 | $342,443 |
| 2019 | $156,337 | $150,000 | $0 | $306,337 | $306,337 |
| 2018 | $156,786 | $125,000 | $0 | $281,786 | $281,786 |
| 2017 | $157,682 | $90,000 | $0 | $247,682 | $247,682 |
| 2016 | $122,987 | $75,000 | $0 | $197,987 | $197,987 |
| 2015 | $142,792 | $52,000 | $0 | $194,792 | $194,792 |
| 2014 | $144,453 | $52,000 | $0 | $196,453 | $196,453 |
| 2013 | $146,111 | $52,000 | $0 | $198,111 | $198,111 |
| 2012 | $147,771 | $52,000 | $0 | $199,771 | $199,771 |
| 2011 | $149,432 | $65,000 | $0 | $214,432 | $214,432 |
| 2010 | $154,792 | $84,000 | $0 | $238,792 | $238,792 |
| 2009 | $160,702 | $90,000 | $0 | $250,702 | $250,702 |
| 2008 | $162,432 | $90,000 | $0 | $252,432 | $252,432 |
| 2007 | $165,863 | $90,000 | $0 | $255,863 | $255,863 |
Deed and Sales History
| 1 | 09/30/2016 | WD | Warranty Deed | HOSKINS, JEREMY | SCARBER, JO E | | | $250,000.00 | 26438 | 4408747 |
| 2 | 06/03/2016 | SPWARDEED | Special Warranty Deed | BANK OF NEW YORK MELLON TRUST COMPANY | HOSKINS, JEREMY | | | $161,500.00 | 24665 | 4400764 |
| 3 | 09/08/2015 | TRUSTEED | Trustee's Deed | GELINAS, DAVID R | BANK OF NEW YORK MELLON TRUST COMPANY | | | $0.00 | 21316 | 4385807 |
| 4 | 11/09/2005 | WD | Warranty Deed | MILLER, MYRTLE E | GELINAS, DAVID R | | | $230,000.00 | 55714 | 4154042 |
| 5 | 01/10/2002 | WD | Warranty Deed | KOCH, RICHARD M | MILLER, MYRTLE E | | | $165,000.00 | 20150 | 4008238 |
| 6 | 07/31/2000 | WD | Warranty Deed | RYAN, LYDIA M | KOCH, RICHARD M | | | $13,000.00 | 2863 | 20013492 |
Payout Agreement
| No payout information available.. |