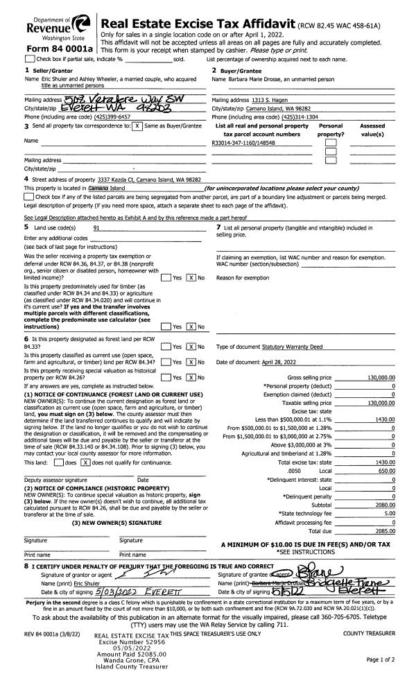
Property
Account |
| Property ID: | 313690 | Abbreviated Legal Description: | LOST LK GRV 6 LOT 5 BLK 3 |
| Geographic ID: | S7410-06-03005-0 | Agent Code: | |
| Type: | Real | | |
| Tax Area: | 510 - APPRAISER-Stan/Cam Schl Dist, improved & 1 acre or less | Land Use Code | 11 |
| Open Space: | N | DFL | N |
| Historic Property: | N | Remodel Property: | N |
| Multi-Family Redevelopment: | N | | |
| Township: | | Section: | |
| Range: | |
Location |
| Address: | 1695 HEMLOCK DR CAMANO ISLAND, WA 98282 | Mapsco: | |
| Neighborhood: | Cycle 5 | Map ID: | 511 |
| Neighborhood CD: | 5 |
Owner |
| Name: | WOLF, ALVINA EALINE | Owner ID: | 278306 |
| Mailing Address: | 1695 HEMLOCK DR CAMANO ISLAND, WA 98282 | % Ownership: | 100.0000000000% |
| | | Exemptions: | |
Taxes and Assessment Details
Values
| (+) Improvement Homesite Value: | + | $0 | |
| (+) Improvement Non-Homesite Value: | + | $261,250 | |
| (+) Land Homesite Value: | + | $0 | |
| (+) Land Non-Homesite Value: | + | $250,000 | |
| (+) Curr Use (HS): | + | $0 | $0 |
| (+) Curr Use (NHS): | + | $0 | $0 |
| | | -------------------------- | |
| (=) Market Value: | = | $511,250 | |
| (–) Productivity Loss: | – | $0 | |
| | | -------------------------- | |
| (=) Subtotal: | = | $511,250 | |
| (+) Senior Appraised Value: | + | $0 | |
| (+) Non-Senior Appraised Value: | + | $511,250 | |
| | | -------------------------- | |
| (=) Total Appraised Value: | = | $511,250 | |
| (–) Senior Exemption Loss: | – | $0 | |
| (–) Exemption Loss: | – | $0 | |
| | | -------------------------- | |
| (=) Taxable Value: | = | $511,250 | |
Taxing Jurisdiction
| Owner: | WOLF, ALVINA EALINE | | |
| % Ownership: | 100.0000000000% | | |
| Total Value: | $511,250 | | |
| Tax Area: | 510 - APPRAISER-Stan/Cam Schl Dist, improved & 1 acre or less |
| CF | Conservation Futures | 0.0316035091 | $511,250 | $511,250 | $16.16 | | |
| EMS1 | Fire & Rescue Dist #1 Camano GEN (EMS) | 0.3677864386 | $511,250 | $511,250 | $188.03 | | |
| FIRE1 | Fire & Rescue Dist #1 Camano GEN | 1.2502910536 | $511,250 | $511,250 | $639.21 | | |
| FIRE1BOND | Fire & Rescue Dist #1 Camano BOND | 0.1570001679 | $511,250 | $511,250 | $80.27 | | |
| CE | County Current Expense | 0.3708482477 | $511,250 | $511,250 | $189.60 | | |
| CR | County Roads | 0.4584763726 | $511,250 | $511,250 | $234.40 | | |
| LCIB | Library Sno-Isle BOND (Camano Island) | 0.0396325772 | $511,250 | $511,250 | $20.26 | | |
| LIB | Library Sno-Isle GEN | 0.3153421757 | $511,250 | $511,250 | $161.22 | | |
| SCH205_401 | School 205-401 Enrichment | 1.2698420524 | $511,250 | $511,250 | $649.21 | | |
| SCH205BOND | School 205-401 BOND | 0.9396497583 | $511,250 | $511,250 | $480.40 | | |
| ST | State School | 1.3035497053 | $511,250 | $511,250 | $666.44 | | |
| ST2 | State School Part 2 | 0.8169543533 | $511,250 | $511,250 | $417.67 | | |
| | Total Tax Rate: | 7.3209764117 | | | | | |
| | | | | Taxes w/Current Exemptions: | $3,742.87 | | |
| | | | | Taxes w/o Exemptions: | $3,742.87 | | |
Improvement / Building
| Improvement #1: | RESIDENTIAL | State Code: | Y | 1394.0 sqft | Value: | $261,250 |
| Bathrooms: | 2 | Bedrooms: | 3 | | Ceiling: | DRYWALL PAINTED | Exterior Wall/Cover: | WOOD SIDING | | Floor Covering: | HARDWOOD/CARP 80-20 | Floor Structure: | WOOD W/SUBFLOOR | | Foundation: | CONCRETE | Heating: | FHA ELECTRIC | | Interior Finish: | DRYWALL PAINT | Plumbing Fixture Cnt: | 10 | | Roof Slope: | 4" IN 12" | Roof Structure/Cover: | CJ ASPHALT |
|
| | Type | Description | Class CD | Sub Class CD | Year Built | Area |
| | BAS | BASE/MAIN FLOOR | 3 | 0 | 1993 | 1394.0 |
| | OP4 | OPEN PORCH W/CEILING-ROOF | 3 | 0 | 1993 | 20.0 |
| | AGR | ATTACHED GARAGE | 3 | 0 | 1993 | 420.0 |
| | OWP | OPEN WOOD PORCH W/STEPS | 3 | 0 | 1993 | 108.0 |
Sketch
Property Image
Land
| 1 | 15 | SQ (12001-21780) | 0.0000 | 0.00 | 0.00 | 0.00 | 1.00 | $250,000 | $0 |
Roll Value History
| 2026 | N/A | N/A | N/A | N/A | N/A |
| 2025 | $261,250 | $250,000 | $0 | $511,250 | $511,250 |
| 2024 | $264,546 | $240,000 | $0 | $504,546 | $504,546 |
| 2023 | $267,843 | $240,000 | $0 | $507,843 | $507,843 |
| 2022 | $245,513 | $210,000 | $0 | $455,513 | $455,513 |
| 2021 | $210,896 | $170,000 | $0 | $380,896 | $380,896 |
| 2020 | $205,363 | $130,000 | $0 | $335,363 | $335,363 |
| 2019 | $147,987 | $150,000 | $0 | $297,987 | $297,987 |
| 2018 | $148,433 | $125,000 | $0 | $273,433 | $273,433 |
| 2017 | $149,320 | $90,000 | $0 | $239,320 | $239,320 |
| 2016 | $151,098 | $75,000 | $0 | $226,098 | $226,098 |
| 2015 | $121,712 | $52,000 | $0 | $173,712 | $173,712 |
| 2014 | $123,293 | $52,000 | $0 | $175,293 | $175,293 |
| 2013 | $124,875 | $52,000 | $0 | $176,875 | $176,875 |
| 2012 | $126,455 | $52,000 | $0 | $178,455 | $178,455 |
| 2011 | $128,035 | $65,000 | $0 | $193,035 | $193,035 |
| 2010 | $135,453 | $84,000 | $0 | $219,453 | $219,453 |
| 2009 | $141,286 | $90,000 | $0 | $231,286 | $231,286 |
| 2008 | $140,038 | $90,000 | $0 | $230,038 | $230,038 |
| 2007 | $141,760 | $90,000 | $0 | $231,760 | $231,760 |
Deed and Sales History
| 1 | 01/17/2017 | WD | Warranty Deed | RICE, BRIAN P | WOLF, ALVINA EALINE | | | $298,500.00 | 27806 | 4415570 |
| 2 | 03/21/2007 | WD | Warranty Deed | HALL, DAVID J | RICE, BRIAN P | | | $249,200.00 | 70987 | 4197620 |
| 3 | 06/12/2001 | WD | Warranty Deed | SEEGMILLER, DOUGLAS R | HALL, DAVID J | | | $150,000.00 | 12308 | 20035636 |
| 4 | 04/01/1994 | WD | Warranty Deed | PETTERSON, ELM N | SEEGMILLER, DOUGLAS R | | | $112,500.00 | 41403 | 94008675 |
| 5 | 05/01/1993 | WD | Warranty Deed | DAI, ROGER F | PETTERSON, ELM N | | | $19,000.00 | 31633 | 93008458 |
Payout Agreement
| No payout information available.. |