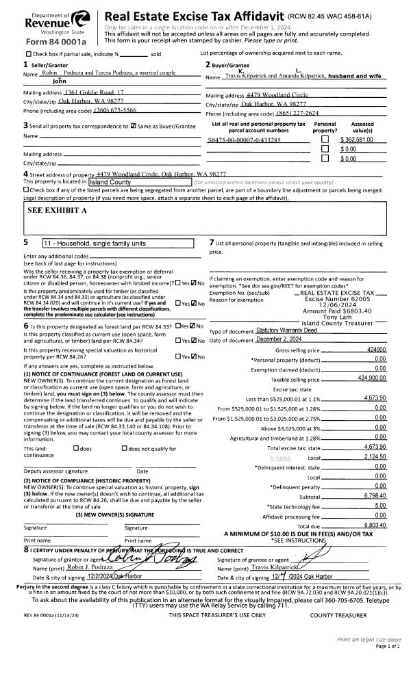
Property
Account |
| Property ID: | 314010 | Abbreviated Legal Description: | MABANA LOT 20 |
| Geographic ID: | S7420-00-00020-0 | Agent Code: | |
| Type: | Real | | |
| Tax Area: | 549 - APPRAISER-Stan/Cam Schl Dist, Special Dist, vacant & 50 acres or less | Land Use Code | 99 |
| Open Space: | N | DFL | N |
| Historic Property: | N | Remodel Property: | N |
| Multi-Family Redevelopment: | N | | |
| Township: | | Section: | |
| Range: | |
Location |
| Address: | 3198 SOUTH CAMANO DR CAMANO ISLAND, WA 98282 | Mapsco: | |
| Neighborhood: | Cycle 5 | Map ID: | 862 |
| Neighborhood CD: | 5 |
Owner |
| Name: | STOKES, TERRY C | Owner ID: | 312175 |
| Mailing Address: | CAROL A DAVIS 17236 NE 6TH PL BELLEVUE, WA 98008 | % Ownership: | 100.0000000000% |
| | | Exemptions: | |
Taxes and Assessment Details
Values
| (+) Improvement Homesite Value: | + | $0 | |
| (+) Improvement Non-Homesite Value: | + | $132,215 | |
| (+) Land Homesite Value: | + | $0 | |
| (+) Land Non-Homesite Value: | + | $402,000 | |
| (+) Curr Use (HS): | + | $0 | $0 |
| (+) Curr Use (NHS): | + | $0 | $0 |
| | | -------------------------- | |
| (=) Market Value: | = | $534,215 | |
| (–) Productivity Loss: | – | $0 | |
| | | -------------------------- | |
| (=) Subtotal: | = | $534,215 | |
| (+) Senior Appraised Value: | + | $0 | |
| (+) Non-Senior Appraised Value: | + | $534,215 | |
| | | -------------------------- | |
| (=) Total Appraised Value: | = | $534,215 | |
| (–) Senior Exemption Loss: | – | $0 | |
| (–) Exemption Loss: | – | $0 | |
| | | -------------------------- | |
| (=) Taxable Value: | = | $534,215 | |
Taxing Jurisdiction
| Owner: | STOKES, TERRY C | | |
| % Ownership: | 100.0000000000% | | |
| Total Value: | $534,215 | | |
| Tax Area: | 549 - APPRAISER-Stan/Cam Schl Dist, Special Dist, vacant & 50 acres or less |
| CF | Conservation Futures | 0.0316035091 | $534,215 | $534,215 | $16.88 | | |
| EMS1 | Fire & Rescue Dist #1 Camano GEN (EMS) | 0.3677864386 | $534,215 | $534,215 | $196.48 | | |
| CE | County Current Expense | 0.3708482477 | $534,215 | $534,215 | $198.11 | | |
| CR | County Roads | 0.4584763726 | $534,215 | $534,215 | $244.92 | | |
| LCIB | Library Sno-Isle BOND (Camano Island) | 0.0396325772 | $534,215 | $534,215 | $21.17 | | |
| LIB | Library Sno-Isle GEN | 0.3153421757 | $534,215 | $534,215 | $168.46 | | |
| SCH205_401 | School 205-401 Enrichment | 1.2698420524 | $534,215 | $534,215 | $678.37 | | |
| SCH205BOND | School 205-401 BOND | 0.9396497583 | $534,215 | $534,215 | $501.97 | | |
| ST | State School | 1.3035497053 | $534,215 | $534,215 | $696.38 | | |
| ST2 | State School Part 2 | 0.8169543533 | $534,215 | $534,215 | $436.43 | | |
| | Total Tax Rate: | 5.9136851902 | | | | | |
| | | | | Taxes w/Current Exemptions: | $3,159.17 | | |
| | | | | Taxes w/o Exemptions: | $3,159.17 | | |
Improvement / Building
| Improvement #1: | RESIDENTIAL | State Code: | Y | 2514.6 sqft | Value: | $132,215 |
| Bathrooms: | 3 | Bedrooms: | 3 | | Ceiling: | TONGUE & GROOVE | Exterior Wall/Cover: | CEMENT FIBER | | Floor Covering: | (NONE) | Floor Structure: | WOOD W/SUBFLOOR | | Foundation: | CONCRETE | Heating: | HEAT PUMP | | Interior Finish: | DRYWALL PAINT | Plumbing Fixture Cnt: | 14 | | Roof Slope: | 2" IN 12" | Roof Structure/Cover: | CJ ALUMINIUM HEAVY |
|
| | Type | Description | Class CD | Sub Class CD | Year Built | Area |
| | BAS | BASE/MAIN FLOOR | 4 | 0 | 2025 | 2514.6 |
| | AGR | ATTACHED GARAGE | 4 | 0 | 2025 | 763.3 |
| | ENP | ENCLOSED PORCH | 4 | 0 | 2025 | 431.2 |
| | OWR | OPEN WOOD PORCH W/STEPS/ROOF | 4 | 0 | 2025 | 0.0 |
| | OWR | OPEN WOOD PORCH W/STEPS/ROOF | 4 | 0 | 2025 | 0.0 |
Sketch
| No sketches available for this property. |
Property Image
Land
| 1 | HB | HIGH BLUFF | 4.1590 | 181168.00 | 200.00 | 905.84 | 1.00 | $400,000 | $0 |
| 2 | 55 | TIDES | 0.0000 | 0.00 | 200.00 | 0.00 | 1.00 | $2,000 | $0 |
Roll Value History
| 2026 | N/A | N/A | N/A | N/A | N/A |
| 2025 | $132,215 | $402,000 | $0 | $534,215 | $534,215 |
| 2024 | $0 | $377,000 | $0 | $377,000 | $377,000 |
| 2023 | $0 | $377,000 | $0 | $377,000 | $377,000 |
| 2022 | $0 | $352,000 | $0 | $352,000 | $352,000 |
| 2021 | $0 | $427,000 | $0 | $427,000 | $427,000 |
| 2020 | $0 | $352,000 | $0 | $352,000 | $352,000 |
| 2019 | $0 | $402,000 | $0 | $402,000 | $402,000 |
| 2018 | $0 | $402,000 | $0 | $402,000 | $402,000 |
| 2017 | $0 | $402,000 | $0 | $402,000 | $402,000 |
| 2016 | $0 | $402,000 | $0 | $402,000 | $402,000 |
| 2015 | $0 | $402,000 | $0 | $402,000 | $402,000 |
| 2014 | $0 | $402,000 | $0 | $402,000 | $402,000 |
| 2013 | $0 | $414,664 | $0 | $414,664 | $414,664 |
| 2012 | $0 | $414,664 | $0 | $414,664 | $414,664 |
| 2011 | $0 | $517,830 | $0 | $517,830 | $517,830 |
| 2010 | $0 | $517,830 | $0 | $517,830 | $517,830 |
| 2009 | $0 | $557,510 | $0 | $557,510 | $557,510 |
| 2008 | $0 | $297,170 | $0 | $297,170 | $297,170 |
| 2007 | $0 | $295,770 | $0 | $295,770 | $295,770 |
Deed and Sales History
| 1 | 04/25/2024 | WD | Warranty Deed | SPINELLI, DOUGLAS J | STOKES, TERRY C | | | $350,000.00 | 59800 | 4571827 |
Payout Agreement
| No payout information available.. |