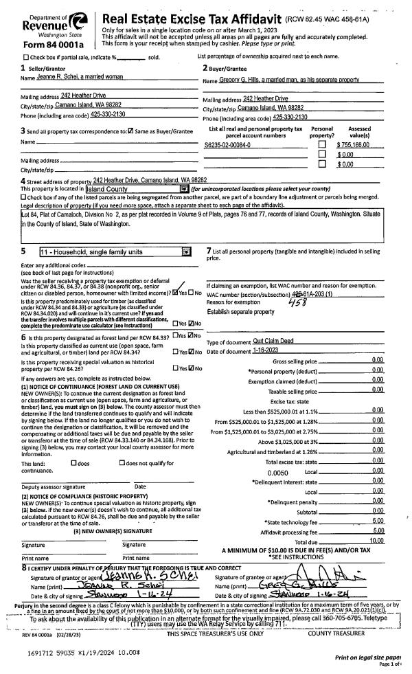
Property
Account |
| Property ID: | 314920 | Abbreviated Legal Description: | MADRONA ANNEX RES TRACT D: ALL RES EX S177.72' TGW & SUB TO EZ E30' INCL ADJ TIDES TGW & SUB EZ AF#96012132 |
| Geographic ID: | S7435-00-0000D-0 | Agent Code: | |
| Type: | Real | | |
| Tax Area: | 510 - APPRAISER-Stan/Cam Schl Dist, improved & 1 acre or less | Land Use Code | 11 |
| Open Space: | N | DFL | N |
| Historic Property: | N | Remodel Property: | N |
| Multi-Family Redevelopment: | N | | |
| Township: | | Section: | |
| Range: | |
Location |
| Address: | 315 SEASCAPE DR CAMANO ISLAND, WA 98282 | Mapsco: | |
| Neighborhood: | North Camano | Map ID: | 574 |
| Neighborhood CD: | 06-C |
Owner |
| Name: | COX JR, VICTOR EARL | Owner ID: | 309676 |
| Mailing Address: | CAROL GARNER-COX 315 SEASCAPE DR CAMANO ISLAND, WA 98282 | % Ownership: | 100.0000000000% |
| | | Exemptions: | |
Taxes and Assessment Details
Values
| (+) Improvement Homesite Value: | + | $0 | |
| (+) Improvement Non-Homesite Value: | + | $299,912 | |
| (+) Land Homesite Value: | + | $0 | |
| (+) Land Non-Homesite Value: | + | $850,600 | |
| (+) Curr Use (HS): | + | $0 | $0 |
| (+) Curr Use (NHS): | + | $0 | $0 |
| | | -------------------------- | |
| (=) Market Value: | = | $1,150,512 | |
| (–) Productivity Loss: | – | $0 | |
| | | -------------------------- | |
| (=) Subtotal: | = | $1,150,512 | |
| (+) Senior Appraised Value: | + | $0 | |
| (+) Non-Senior Appraised Value: | + | $1,150,512 | |
| | | -------------------------- | |
| (=) Total Appraised Value: | = | $1,150,512 | |
| (–) Senior Exemption Loss: | – | $0 | |
| (–) Exemption Loss: | – | $0 | |
| | | -------------------------- | |
| (=) Taxable Value: | = | $1,150,512 | |
Taxing Jurisdiction
| Owner: | COX JR, VICTOR EARL | | |
| % Ownership: | 100.0000000000% | | |
| Total Value: | $1,150,512 | | |
| Tax Area: | 510 - APPRAISER-Stan/Cam Schl Dist, improved & 1 acre or less |
| CF | Conservation Futures | 0.0316035091 | $1,150,512 | $1,150,512 | $36.36 | | |
| EMS1 | Fire & Rescue Dist #1 Camano GEN (EMS) | 0.3677864386 | $1,150,512 | $1,150,512 | $423.14 | | |
| FIRE1 | Fire & Rescue Dist #1 Camano GEN | 1.2502910536 | $1,150,512 | $1,150,512 | $1,438.47 | | |
| FIRE1BOND | Fire & Rescue Dist #1 Camano BOND | 0.1570001679 | $1,150,512 | $1,150,512 | $180.63 | | |
| CE | County Current Expense | 0.3708482477 | $1,150,512 | $1,150,512 | $426.67 | | |
| CR | County Roads | 0.4584763726 | $1,150,512 | $1,150,512 | $527.48 | | |
| LCIB | Library Sno-Isle BOND (Camano Island) | 0.0396325772 | $1,150,512 | $1,150,512 | $45.60 | | |
| LIB | Library Sno-Isle GEN | 0.3153421757 | $1,150,512 | $1,150,512 | $362.80 | | |
| SCH205_401 | School 205-401 Enrichment | 1.2698420524 | $1,150,512 | $1,150,512 | $1,460.97 | | |
| SCH205BOND | School 205-401 BOND | 0.9396497583 | $1,150,512 | $1,150,512 | $1,081.08 | | |
| ST | State School | 1.3035497053 | $1,150,512 | $1,150,512 | $1,499.75 | | |
| ST2 | State School Part 2 | 0.8169543533 | $1,150,512 | $1,150,512 | $939.92 | | |
| | Total Tax Rate: | 7.3209764117 | | | | | |
| | | | | Taxes w/Current Exemptions: | $8,422.87 | | |
| | | | | Taxes w/o Exemptions: | $8,422.87 | | |
Improvement / Building
| Improvement #1: | RESIDENTIAL | State Code: | Y | 1484.0 sqft | Value: | $299,912 |
| Bathrooms: | 1.75 | Bedrooms: | 3 | | Ceiling: | DRYWALL PAINTED | Exterior Wall/Cover: | WOOD SIDING | | Floor Covering: | HARDWOOD/CARP 20-80 | Floor Structure: | WOOD W/SUBFLOOR | | Foundation: | CONCRETE | Heating: | HEAT PUMP | | Interior Finish: | DRYWALL PAINT | Plumbing Fixture Cnt: | 8 | | Roof Slope: | 6" IN 12" | Roof Structure/Cover: | CJ ALUMINIUM HEAVY |
|
| | Type | Description | Class CD | Sub Class CD | Year Built | Area |
| | BAS | BASE/MAIN FLOOR | 3 | 0 | 1976 | 1484.0 |
| | DGR | DETACHED GARAGE | 3 | 0 | 1976 | 500.0 |
| | OWP | OPEN WOOD PORCH W/STEPS | 3 | 0 | 1976 | 607.0 |
| | OWC | OPEN WOOD PORCH W/STEPS/ROOF/C | 3 | 0 | 1976 | 66.0 |
Sketch
Property Image
Land
| 1 | LB | LOW BANK | 0.3424 | 14913.00 | 60.00 | 0.00 | 1.00 | $850,000 | $0 |
| 2 | 55 | TIDES | 0.0000 | 0.00 | 60.00 | 0.00 | 1.00 | $600 | $0 |
Roll Value History
| 2026 | N/A | N/A | N/A | N/A | N/A |
| 2025 | $299,912 | $850,600 | $0 | $1,150,512 | $1,150,512 |
| 2024 | $252,398 | $850,600 | $0 | $1,102,998 | $1,102,998 |
| 2023 | $210,800 | $650,600 | $0 | $861,400 | $861,400 |
| 2022 | $187,758 | $700,600 | $0 | $888,358 | $888,358 |
| 2021 | $165,980 | $500,600 | $0 | $666,580 | $666,580 |
| 2020 | $162,491 | $500,600 | $0 | $663,091 | $663,091 |
| 2019 | $119,086 | $500,600 | $0 | $619,686 | $619,686 |
| 2018 | $119,558 | $500,600 | $0 | $620,158 | $620,158 |
| 2017 | $120,499 | $500,600 | $0 | $621,099 | $621,099 |
| 2016 | $123,298 | $500,600 | $0 | $623,898 | $623,898 |
| 2015 | $125,195 | $500,600 | $0 | $625,795 | $625,795 |
| 2014 | $127,093 | $500,600 | $0 | $627,693 | $627,693 |
| 2013 | $128,989 | $466,325 | $0 | $595,314 | $595,314 |
| 2012 | $130,884 | $466,325 | $0 | $597,209 | $597,209 |
| 2011 | $132,783 | $582,756 | $0 | $715,539 | $715,539 |
| 2010 | $147,092 | $582,756 | $0 | $729,848 | $729,848 |
| 2009 | $153,520 | $627,252 | $0 | $780,772 | $780,772 |
| 2008 | $155,619 | $757,959 | $0 | $913,578 | $913,578 |
| 2007 | $157,774 | $411,768 | $0 | $569,542 | $569,542 |
Deed and Sales History
| 1 | 08/08/2023 | WD | Warranty Deed | KENNA, RICHARD J | COX JR, VICTOR EARL | | | $1,215,000.00 | 57634 | 4563556 |
| 2 | 08/02/2017 | QCD | Quit Claim Deed | KENNA, RICHARD J | KENNA, RICHARD J | | | $0.00 | 30532 | 4427734 |
| 3 | 03/01/1997 | PRD | Personal Representatives Deed | KENNA, RICHARD F | KENNA, RICHARD J | | | $0.00 | 71087 | 97004909 |
| 4 | 08/01/1986 | WD | Warranty Deed | MUSSER, W J | KENNA, RICHARD F | | | $175,000.00 | 62455 | 86011134 |
| 5 | 06/01/1984 | WD | Warranty Deed | REYNOLDS, JOHN W | MUSSER, W J | | | $198,500.00 | 41830 | 426353 |
| 6 | 01/01/1900 | OTHER | Other - Misc. Documents | Unknown | REYNOLDS, JOHN W | | | $0.00 | 0 | 0 |
Payout Agreement
| No payout information available.. |