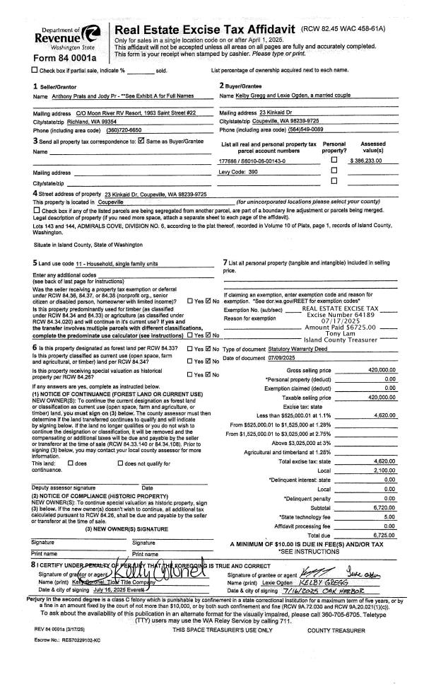
Property
Account |
| Property ID: | 31511 | Abbreviated Legal Description: | 77 - IN N/2 NW SW:BG NW CR N/2 NW SW S208' TPB E290' S152' W290' N152' TPB EX RDS |
| Geographic ID: | R13301-237-0140 | Agent Code: | |
| Type: | Real | | |
| Tax Area: | 110 - APPRAISER-OH Schl Dist, outside OH, improved & 1 acre or less | Land Use Code | 11 |
| Open Space: | N | DFL | N |
| Historic Property: | N | Remodel Property: | N |
| Multi-Family Redevelopment: | N | | |
| Township: | 33 | Section: | 01 |
| Range: | R1 |
Location |
| Address: | 4588 MONKEY HILL RD OAK HARBOR, WA 98277 | Mapsco: | |
| Neighborhood: | Cycle 6 | Map ID: | 189 |
| Neighborhood CD: | 6 |
Owner |
| Name: | TRUEX, MARY A | Owner ID: | 314357 |
| Mailing Address: | 4556 MONKEY HILL RD OAK HARBOR, WA 98277 | % Ownership: | 100.0000000000% |
| | | Exemptions: | |
Taxes and Assessment Details
Values
| (+) Improvement Homesite Value: | + | $0 | |
| (+) Improvement Non-Homesite Value: | + | $5,885 | |
| (+) Land Homesite Value: | + | $0 | |
| (+) Land Non-Homesite Value: | + | $200,000 | |
| (+) Curr Use (HS): | + | $0 | $0 |
| (+) Curr Use (NHS): | + | $0 | $0 |
| | | -------------------------- | |
| (=) Market Value: | = | $205,885 | |
| (–) Productivity Loss: | – | $0 | |
| | | -------------------------- | |
| (=) Subtotal: | = | $205,885 | |
| (+) Senior Appraised Value: | + | $0 | |
| (+) Non-Senior Appraised Value: | + | $205,885 | |
| | | -------------------------- | |
| (=) Total Appraised Value: | = | $205,885 | |
| (–) Senior Exemption Loss: | – | $0 | |
| (–) Exemption Loss: | – | $0 | |
| | | -------------------------- | |
| (=) Taxable Value: | = | $205,885 | |
Taxing Jurisdiction
| Owner: | TRUEX, MARY A | | |
| % Ownership: | 100.0000000000% | | |
| Total Value: | $205,885 | | |
| Tax Area: | 110 - APPRAISER-OH Schl Dist, outside OH, improved & 1 acre or less |
| CF | Conservation Futures | 0.0316035091 | $205,885 | $205,885 | $6.51 | | |
| CEM1 | Cemetery #1 | 0.0040320932 | $205,885 | $205,885 | $0.83 | | |
| FIRE2 | Fire & Rescue Dist #2 N Whidbey GEN | 0.5475949600 | $205,885 | $205,885 | $112.74 | | |
| HOBOND | Hospital BOND | 0.1910887512 | $205,885 | $205,885 | $39.34 | | |
| HOGEN | Hospital GEN | 0.3902502903 | $205,885 | $205,885 | $80.35 | | |
| CE | County Current Expense | 0.3708482477 | $205,885 | $205,885 | $76.35 | | |
| CR | County Roads | 0.4584763726 | $205,885 | $205,885 | $94.39 | | |
| ISLANDEMS | Hospital GEN (EMS) | 0.5000000000 | $205,885 | $205,885 | $102.94 | | |
| LIB | Library Sno-Isle GEN | 0.3153421757 | $205,885 | $205,885 | $64.92 | | |
| NWHIDPRMT | P & R N Whidbey GEN | 0.2004466701 | $205,885 | $205,885 | $41.27 | | |
| SCH201MO | School 201 Enrichment | 1.8559231640 | $205,885 | $205,885 | $382.11 | | |
| ST | State School | 1.3035497053 | $205,885 | $205,885 | $268.38 | | |
| ST2 | State School Part 2 | 0.8169543533 | $205,885 | $205,885 | $168.20 | | |
| | Total Tax Rate: | 6.9861102925 | | | | | |
| | | | | Taxes w/Current Exemptions: | $1,438.33 | | |
| | | | | Taxes w/o Exemptions: | $1,438.33 | | |
Improvement / Building
| Improvement #1: | MANUFACTURED HOME | State Code: | Y | 570.0 sqft | Value: | $5,885 |
| Bathrooms: | 0 | Bedrooms: | 0 | | Ceiling: | PLASTER PAINTED | Cooling: | EVAP NO DUCT | | Exterior Wall/Cover: | VINYL | Floor Covering: | CARPET 100% | | Floor Structure: | SLAB ON GRADE | Foundation: | SLAB | | Heating: | FHA ELECTRIC | Interior Finish: | PLASTER | | Plumbing Fixture Cnt: | 1 | Roof Slope: | FLAT | | Roof Structure/Cover: | CJ ALUMINIUM HEAVY |   |   |
|
Sketch
Property Image
Land
| 1 | 16 | AC (00.51-01.00) | 0.0000 | 0.00 | 0.00 | 0.00 | 1.00 | $200,000 | $0 |
Roll Value History
| 2026 | N/A | N/A | N/A | N/A | N/A |
| 2025 | $5,885 | $200,000 | $0 | $205,885 | $205,885 |
| 2024 | $5,885 | $190,000 | $0 | $195,885 | $195,885 |
| 2023 | $5,117 | $190,000 | $0 | $195,117 | $195,117 |
| 2022 | $4,634 | $160,000 | $0 | $164,634 | $164,634 |
| 2021 | $4,029 | $125,000 | $0 | $129,029 | $129,029 |
| 2020 | $3,911 | $110,000 | $0 | $113,911 | $113,911 |
| 2019 | $3,081 | $150,000 | $0 | $153,081 | $153,081 |
| 2018 | $3,081 | $150,000 | $0 | $153,081 | $153,081 |
| 2017 | $3,081 | $75,000 | $0 | $78,081 | $78,081 |
| 2016 | $2,421 | $75,000 | $0 | $77,421 | $77,421 |
| 2015 | $2,421 | $75,000 | $0 | $77,421 | $77,421 |
| 2014 | $2,421 | $72,250 | $0 | $74,671 | $74,671 |
| 2013 | $2,421 | $72,250 | $0 | $74,671 | $74,671 |
| 2012 | $2,421 | $72,250 | $0 | $74,671 | $74,671 |
| 2011 | $2,421 | $85,000 | $0 | $87,421 | $87,421 |
| 2010 | $9,544 | $85,000 | $0 | $94,544 | $94,544 |
| 2009 | $9,812 | $100,000 | $0 | $109,812 | $109,812 |
| 2008 | $9,863 | $104,000 | $0 | $113,863 | $113,863 |
| 2007 | $9,912 | $97,000 | $0 | $106,912 | $106,912 |
Deed and Sales History
| 1 | 05/16/2024 | MANHOME | Manufactured Home | TRUEX, JACK L | TRUEX, MARY A | | | $0.00 | 61668 | |
| 2 | 05/16/2024 | CPADC | Comm Prop Agmnt & Death Cert | TRUEX, JACK L | TRUEX, MARY A | | | $0.00 | 61666 | 4538741 |
| 3 | 07/01/1984 | OTHER | Other - Misc. Documents | TRUEX, JACK L | TRUEX, JACK L | | | $2,500.00 | 42025 | 0 |
| 4 | 06/01/1984 | WD | Warranty Deed | TALLEY, MERRILDA, E | TRUEX, JACK L | | | $0.00 | 41883 | 84000076 |
| 5 | 01/01/1900 | OTHER | Other - Misc. Documents | Unknown | TALLEY, MERRILDA, E | | | $0.00 | 0 | 0 |
| 6 | 01/01/1900 | OTHER | Other - Misc. Documents | TALLEY, MERRILDA, E | TALLEY, MERRILDA, E | | | $0.00 | 0 | 0 |
Payout Agreement
| No payout information available.. |