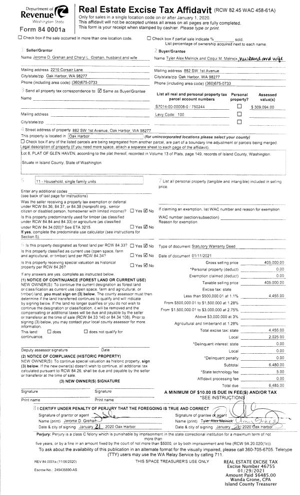
Property
Account |
| Property ID: | 315288 | Abbreviated Legal Description: | MADRONA ANNEX LOT 39 TGW PT ADJ VAC 10TH ST |
| Geographic ID: | S7435-00-00039-0 | Agent Code: | |
| Type: | Real | | |
| Tax Area: | 510 - APPRAISER-Stan/Cam Schl Dist, improved & 1 acre or less | Land Use Code | 11 |
| Open Space: | N | DFL | N |
| Historic Property: | N | Remodel Property: | N |
| Multi-Family Redevelopment: | N | | |
| Township: | | Section: | |
| Range: | |
Location |
| Address: | 343 N SUNSET DR CAMANO ISLAND, WA 98282 | Mapsco: | |
| Neighborhood: | North Camano | Map ID: | 574 |
| Neighborhood CD: | 06-C |
Owner |
| Name: | KURT EMIL WEISS, PETER-GEORG | Owner ID: | 297310 |
| Mailing Address: | 343 NORTH SUNSET DR CAMANO ISLAND, WA 98282 | % Ownership: | 100.0000000000% |
| | | Exemptions: | SNR/DSBL |
Taxes and Assessment Details
Values
| (+) Improvement Homesite Value: | + | $261,732 | |
| (+) Improvement Non-Homesite Value: | + | $0 | |
| (+) Land Homesite Value: | + | $360,000 | |
| (+) Land Non-Homesite Value: | + | $0 | |
| (+) Curr Use (HS): | + | $0 | $0 |
| (+) Curr Use (NHS): | + | $0 | $0 |
| | | -------------------------- | |
| (=) Market Value: | = | $621,732 | |
| (–) Productivity Loss: | – | $0 | |
| | | -------------------------- | |
| (=) Subtotal: | = | $621,732 | |
| (+) Senior Appraised Value: | + | $431,181 | |
| (+) Non-Senior Appraised Value: | + | $0 | |
| | | -------------------------- | |
| (=) Total Appraised Value: | = | $431,181 | |
| (–) Senior Exemption Loss: | – | $258,709 | |
| (–) Exemption Loss: | – | $0 | |
| | | -------------------------- | |
| (=) Taxable Value: | = | $172,472 | |
Taxing Jurisdiction
| Owner: | KURT EMIL WEISS, PETER-GEORG | | |
| % Ownership: | 100.0000000000% | | |
| Total Value: | $621,732 | | |
| Tax Area: | 510 - APPRAISER-Stan/Cam Schl Dist, improved & 1 acre or less |
| CF | Conservation Futures | 0.0316035091 | $621,732 | $172,472 | $5.45 | | |
| EMS1 | Fire & Rescue Dist #1 Camano GEN (EMS) | 0.3677864386 | $621,732 | $172,472 | $63.43 | | |
| FIRE1 | Fire & Rescue Dist #1 Camano GEN | 1.2502910536 | $621,732 | $172,472 | $215.64 | | |
| FIRE1BOND | Fire & Rescue Dist #1 Camano BOND | 0.0000000000 | $621,732 | $0 | $0.00 | | |
| CE | County Current Expense | 0.3708482477 | $621,732 | $172,472 | $63.96 | | |
| CR | County Roads | 0.4584763726 | $621,732 | $172,472 | $79.07 | | |
| LCIB | Library Sno-Isle BOND (Camano Island) | 0.0000000000 | $621,732 | $0 | $0.00 | | |
| LIB | Library Sno-Isle GEN | 0.3153421757 | $621,732 | $172,472 | $54.39 | | |
| SCH205_401 | School 205-401 Enrichment | 0.0000000000 | $621,732 | $0 | $0.00 | | |
| SCH205BOND | School 205-401 BOND | 0.0000000000 | $621,732 | $0 | $0.00 | | |
| ST | State School | 1.3035497053 | $621,732 | $172,472 | $224.83 | | |
| ST2 | State School Part 2 | 0.0000000000 | $621,732 | $0 | $0.00 | | |
| | Total Tax Rate: | 4.0978975026 | | | | | |
| | | | | Taxes w/Current Exemptions: | $706.77 | | |
| | | | | Taxes w/o Exemptions: | $4,551.69 | | |
Improvement / Building
| Improvement #1: | RESIDENTIAL | State Code: | Y | 1948.0 sqft | Value: | $261,732 |
| Bathrooms: | 2 | Bedrooms: | 3 | | Ceiling: | TONGUE & GROOVE | Cooling: | HEAT PUMP/CONV/V | | Exterior Wall/Cover: | WOOD SIDING | Floor Covering: | HARDWOOD/CARP 60-40 | | Floor Structure: | WOOD W/SUBFLOOR | Foundation: | CONCRETE | | Interior Finish: | DRYWALL PAINT | Plumbing Fixture Cnt: | 9 | | Roof Slope: | 12" IN 12" | Roof Structure/Cover: | CJ WOOD SHAKES |
|
| | Type | Description | Class CD | Sub Class CD | Year Built | Area |
| | BAS | BASE/MAIN FLOOR | 3 | 0 | 1986 | 792.0 |
| | BAW | BALCONY WOOD RAIL | 3 | 0 | 1986 | 36.0 |
| | OWP | OPEN WOOD PORCH W/STEPS | 3 | 0 | 1986 | 220.0 |
| | OWP | OPEN WOOD PORCH W/STEPS | 3 | 0 | 1986 | 220.0 |
| | UPH | HALF STORY | 3 | 0 | 1986 | 364.0 |
| | DWN | DOWNSTAIRS LIVING AREA | 3 | 0 | 1986 | 792.0 |
Sketch
Property Image
Land
| 1 | 12 | SQ (00000-06000) | 0.0000 | 0.00 | 0.00 | 0.00 | 1.00 | $360,000 | $0 |
Roll Value History
| 2026 | N/A | N/A | N/A | N/A | N/A |
| 2025 | $261,732 | $360,000 | $0 | $621,732 | $172,472 |
| 2024 | $265,211 | $360,000 | $0 | $625,211 | $172,472 |
| 2023 | $268,689 | $360,000 | $0 | $628,689 | $172,472 |
| 2022 | $205,260 | $310,000 | $0 | $515,260 | $431,181 |
| 2021 | $181,181 | $250,000 | $0 | $431,181 | $431,181 |
| 2020 | $177,421 | $210,000 | $0 | $387,421 | $387,421 |
| 2019 | $136,010 | $210,000 | $0 | $346,010 | $65,698 |
| 2018 | $136,501 | $180,000 | $0 | $316,501 | $65,698 |
| 2017 | $137,483 | $130,000 | $0 | $267,483 | $65,698 |
| 2016 | $140,365 | $130,000 | $0 | $270,365 | $65,698 |
| 2015 | $142,343 | $92,800 | $0 | $235,143 | $65,698 |
| 2014 | $144,320 | $92,800 | $0 | $237,120 | $65,698 |
| 2013 | $146,296 | $92,800 | $0 | $239,096 | $65,698 |
| 2012 | $148,275 | $92,800 | $0 | $241,075 | $65,698 |
| 2011 | $150,250 | $116,000 | $0 | $266,250 | $65,698 |
| 2010 | $152,625 | $116,000 | $0 | $268,625 | $65,698 |
| 2009 | $159,266 | $200,000 | $0 | $359,266 | $65,698 |
| 2008 | $161,262 | $200,000 | $0 | $361,262 | $65,698 |
| 2007 | $152,570 | $210,693 | $0 | $363,263 | $65,698 |
Deed and Sales History
| 1 | 10/02/2020 | WD | Warranty Deed | ROTHSCHILDE, MYSTI | KURT EMIL WEISS, PETER-GEORG | | | $440,000.00 | 45091 | 4498728 |
| 2 | 09/22/2000 | QCD | Quit Claim Deed | ROTHSCHILDE, MYSTI | ROTHSCHILDE, MYSTI | | | $0.00 | 10655 | 20026405 |
| 3 | 03/13/2000 | QCD | Quit Claim Deed | ROTHSCHILDE, MYSTI L | ROTHSCHILDE, MYSTI | | | $0.00 | 882 | 20004678 |
| 4 | 02/01/1998 | WD | Warranty Deed | DUDLEY, M D | ROTHSCHILDE, MYSTI L | | | $160,000.00 | 80549 | 98002952 |
| 5 | 10/01/1990 | WD | Warranty Deed | , | DUDLEY, M D | | | $175,000.00 | 5695 | 90019201 |
| 6 | 01/01/1900 | OTHER | Other - Misc. Documents | Unknown | , | | | $0.00 | 0 | 0 |
Payout Agreement
| No payout information available.. |