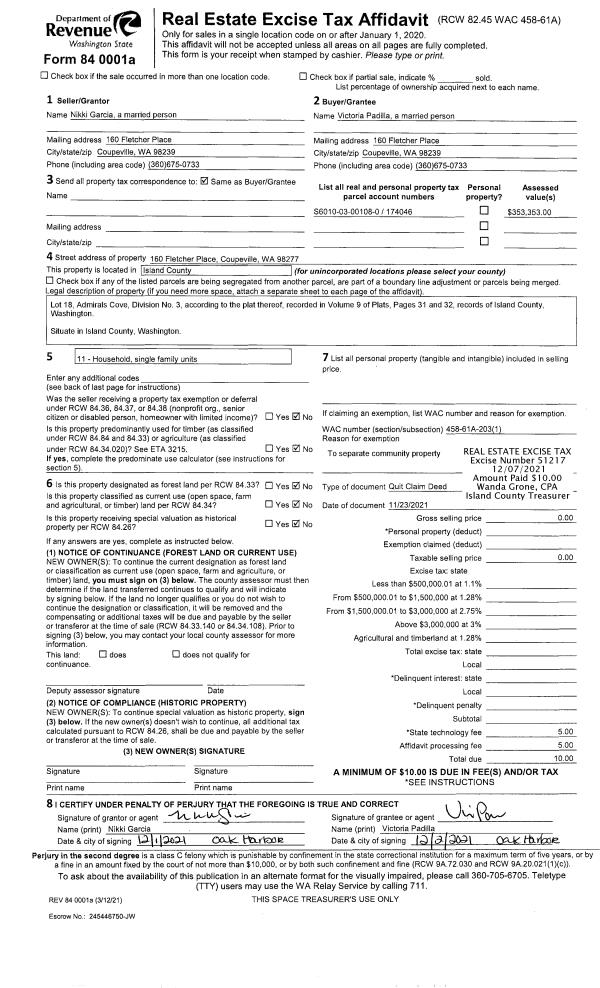
Property
Account |
| Property ID: | 315297 | Abbreviated Legal Description: | MADRONA ANNEX LOT 40 TGW PT ADJ VAC 10TH ST |
| Geographic ID: | S7435-00-00040-0 | Agent Code: | |
| Type: | Real | | |
| Tax Area: | 510 - APPRAISER-Stan/Cam Schl Dist, improved & 1 acre or less | Land Use Code | 11 |
| Open Space: | N | DFL | N |
| Historic Property: | N | Remodel Property: | N |
| Multi-Family Redevelopment: | N | | |
| Township: | | Section: | |
| Range: | |
Location |
| Address: | 345 N SUNSET DR CAMANO ISLAND, WA 98282 | Mapsco: | |
| Neighborhood: | North Camano | Map ID: | 574 |
| Neighborhood CD: | 06-C |
Owner |
| Name: | BARTMAN, MARK E | Owner ID: | 301154 |
| Mailing Address: | BRITTANY BARTMAN 11121 E LAKE JOY DR NE CARNATION, WA 98014 | % Ownership: | 100.0000000000% |
| | | Exemptions: | |
Taxes and Assessment Details
Values
| (+) Improvement Homesite Value: | + | $0 | |
| (+) Improvement Non-Homesite Value: | + | $196,707 | |
| (+) Land Homesite Value: | + | $0 | |
| (+) Land Non-Homesite Value: | + | $360,000 | |
| (+) Curr Use (HS): | + | $0 | $0 |
| (+) Curr Use (NHS): | + | $0 | $0 |
| | | -------------------------- | |
| (=) Market Value: | = | $556,707 | |
| (–) Productivity Loss: | – | $0 | |
| | | -------------------------- | |
| (=) Subtotal: | = | $556,707 | |
| (+) Senior Appraised Value: | + | $0 | |
| (+) Non-Senior Appraised Value: | + | $556,707 | |
| | | -------------------------- | |
| (=) Total Appraised Value: | = | $556,707 | |
| (–) Senior Exemption Loss: | – | $0 | |
| (–) Exemption Loss: | – | $0 | |
| | | -------------------------- | |
| (=) Taxable Value: | = | $556,707 | |
Taxing Jurisdiction
| Owner: | BARTMAN, MARK E | | |
| % Ownership: | 100.0000000000% | | |
| Total Value: | $556,707 | | |
| Tax Area: | 510 - APPRAISER-Stan/Cam Schl Dist, improved & 1 acre or less |
| CF | Conservation Futures | 0.0316035091 | $556,707 | $556,707 | $17.59 | | |
| EMS1 | Fire & Rescue Dist #1 Camano GEN (EMS) | 0.3677864386 | $556,707 | $556,707 | $204.75 | | |
| FIRE1 | Fire & Rescue Dist #1 Camano GEN | 1.2502910536 | $556,707 | $556,707 | $696.05 | | |
| FIRE1BOND | Fire & Rescue Dist #1 Camano BOND | 0.1570001679 | $556,707 | $556,707 | $87.40 | | |
| CE | County Current Expense | 0.3708482477 | $556,707 | $556,707 | $206.45 | | |
| CR | County Roads | 0.4584763726 | $556,707 | $556,707 | $255.24 | | |
| LCIB | Library Sno-Isle BOND (Camano Island) | 0.0396325772 | $556,707 | $556,707 | $22.06 | | |
| LIB | Library Sno-Isle GEN | 0.3153421757 | $556,707 | $556,707 | $175.55 | | |
| SCH205_401 | School 205-401 Enrichment | 1.2698420524 | $556,707 | $556,707 | $706.93 | | |
| SCH205BOND | School 205-401 BOND | 0.9396497583 | $556,707 | $556,707 | $523.11 | | |
| ST | State School | 1.3035497053 | $556,707 | $556,707 | $725.70 | | |
| ST2 | State School Part 2 | 0.8169543533 | $556,707 | $556,707 | $454.80 | | |
| | Total Tax Rate: | 7.3209764117 | | | | | |
| | | | | Taxes w/Current Exemptions: | $4,075.63 | | |
| | | | | Taxes w/o Exemptions: | $4,075.63 | | |
Improvement / Building
| Improvement #1: | RESIDENTIAL | State Code: | Y | 1430.0 sqft | Value: | $196,707 |
| Bathrooms: | 1 | Bedrooms: | 2 | | Ceiling: | BEAM PAINTED | Cooling: | HEAT PUMP/CONV/V | | Exterior Wall/Cover: | ASBESTOES/ASPHALT | Floor Covering: | CARPET/VINYL 20-80 | | Floor Structure: | WOOD W/SUBFLOOR | Foundation: | CONCRETE | | Interior Finish: | DRYWALL PAINT | Plumbing Fixture Cnt: | 6 | | Roof Slope: | 4" IN 12" | Roof Structure/Cover: | CJ ASPHALT |
|
| | Type | Description | Class CD | Sub Class CD | Year Built | Area |
| | BAS | BASE/MAIN FLOOR | 3 | 0 | 1940 | 723.0 |
| | DWN | DOWNSTAIRS LIVING AREA | 3 | 0 | 1940 | 707.0 |
| | OWP | OPEN WOOD PORCH W/STEPS | 3 | 0 | 1940 | 64.0 |
| | OWP | OPEN WOOD PORCH W/STEPS | 3 | 0 | 1940 | 207.0 |
Sketch
Property Image
Land
| 1 | 12 | SQ (00000-06000) | 0.0000 | 0.00 | 0.00 | 0.00 | 1.00 | $360,000 | $0 |
Roll Value History
| 2026 | N/A | N/A | N/A | N/A | N/A |
| 2025 | $196,707 | $360,000 | $0 | $556,707 | $556,707 |
| 2024 | $195,594 | $360,000 | $0 | $555,594 | $555,594 |
| 2023 | $198,159 | $360,000 | $0 | $558,159 | $558,159 |
| 2022 | $181,766 | $310,000 | $0 | $491,766 | $491,766 |
| 2021 | $157,100 | $300,000 | $0 | $457,100 | $457,100 |
| 2020 | $153,472 | $210,000 | $0 | $363,472 | $363,472 |
| 2019 | $90,575 | $210,000 | $0 | $300,575 | $300,575 |
| 2018 | $35,686 | $180,000 | $0 | $215,686 | $215,686 |
| 2017 | $36,002 | $130,000 | $0 | $166,002 | $166,002 |
| 2016 | $32,237 | $130,000 | $0 | $162,237 | $162,237 |
| 2015 | $33,276 | $92,800 | $0 | $126,076 | $126,076 |
| 2014 | $34,317 | $92,800 | $0 | $127,117 | $127,117 |
| 2013 | $35,356 | $92,800 | $0 | $128,156 | $128,156 |
| 2012 | $36,396 | $92,800 | $0 | $129,196 | $129,196 |
| 2011 | $37,437 | $116,000 | $0 | $153,437 | $153,437 |
| 2010 | $46,186 | $116,000 | $0 | $162,186 | $162,186 |
| 2009 | $48,577 | $200,000 | $0 | $248,577 | $248,577 |
| 2008 | $49,610 | $200,000 | $0 | $249,610 | $249,610 |
| 2007 | $47,638 | $203,089 | $0 | $250,727 | $250,727 |
Deed and Sales History
| 1 | 09/03/2021 | WD | Warranty Deed | SKORDAL, AMY J | BARTMAN, MARK E | | | $495,000.00 | 50027 | 4529110 |
| 2 | 08/20/2019 | WD | Warranty Deed | RAGSDALE, TRACY | SKORDAL, AMY J | | | $425,000.00 | 40065 | 4470501 |
| 3 | 06/01/2018 | QCD | Quit Claim Deed | RAGSDALE, TRACY | RAGSDALE, TRACY | | | $0.00 | 34433 | 4445800 |
| 4 | 06/01/2018 | WD | Warranty Deed | SMERSH, WILLIAM J | RAGSDALE, TRACY | | | $280,000.00 | 34432 | 4445799 |
| 5 | 11/09/2010 | OTHER | Other - Misc. Documents | TANABE, BOB | SMERSH, WILLIAM J | | | $125,000.00 | 2844 | 4284688 |
| 6 | 05/08/2006 | OTHER | Other - Misc. Documents | TANABE, BOB & | TANABE, BOB | | | $0.00 | 70933 | 0 |
| 7 | 11/01/1990 | WD | Warranty Deed | , | TANABE, BOB & | | | $90,000.00 | 6313 | 90021865 |
| 8 | 01/01/1900 | OTHER | Other - Misc. Documents | Unknown | , | | | $0.00 | 0 | 0 |
Payout Agreement
| No payout information available.. |