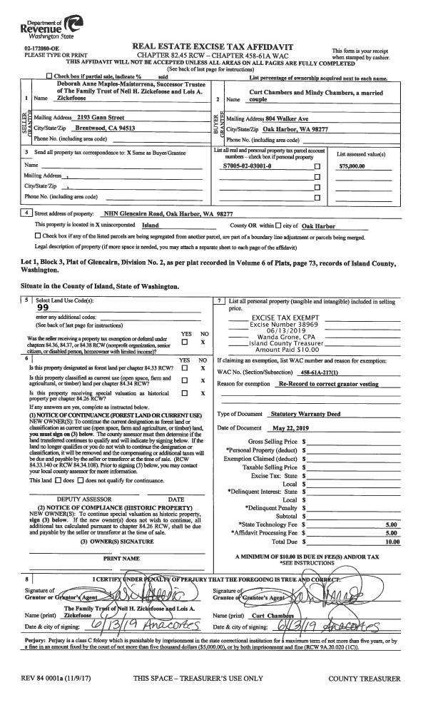
Property
Account |
| Property ID: | 315448 | Abbreviated Legal Description: | MADRONA ANNEX LOTS 57 & 58 |
| Geographic ID: | S7435-00-00057-0 | Agent Code: | |
| Type: | Real | | |
| Tax Area: | 510 - APPRAISER-Stan/Cam Schl Dist, improved & 1 acre or less | Land Use Code | 11 |
| Open Space: | N | DFL | N |
| Historic Property: | N | Remodel Property: | N |
| Multi-Family Redevelopment: | N | | |
| Township: | | Section: | |
| Range: | |
Location |
| Address: | 394 N SUNSET DR CAMANO ISLAND, WA 98282 | Mapsco: | |
| Neighborhood: | North Camano | Map ID: | 574 |
| Neighborhood CD: | 06-C |
Owner |
| Name: | CORRALL II, CARMEN JAMES | Owner ID: | 291329 |
| Mailing Address: | SANDRA KRISTINA MCKENZIE 407 VANDERLIN DRIVE CAMANO ISLAND, WA 98282 | % Ownership: | 100.0000000000% |
| | | Exemptions: | |
Taxes and Assessment Details
Values
| (+) Improvement Homesite Value: | + | $0 | |
| (+) Improvement Non-Homesite Value: | + | $186,882 | |
| (+) Land Homesite Value: | + | $0 | |
| (+) Land Non-Homesite Value: | + | $377,000 | |
| (+) Curr Use (HS): | + | $0 | $0 |
| (+) Curr Use (NHS): | + | $0 | $0 |
| | | -------------------------- | |
| (=) Market Value: | = | $563,882 | |
| (–) Productivity Loss: | – | $0 | |
| | | -------------------------- | |
| (=) Subtotal: | = | $563,882 | |
| (+) Senior Appraised Value: | + | $0 | |
| (+) Non-Senior Appraised Value: | + | $563,882 | |
| | | -------------------------- | |
| (=) Total Appraised Value: | = | $563,882 | |
| (–) Senior Exemption Loss: | – | $0 | |
| (–) Exemption Loss: | – | $0 | |
| | | -------------------------- | |
| (=) Taxable Value: | = | $563,882 | |
Taxing Jurisdiction
| Owner: | CORRALL II, CARMEN JAMES | | |
| % Ownership: | 100.0000000000% | | |
| Total Value: | $563,882 | | |
| Tax Area: | 510 - APPRAISER-Stan/Cam Schl Dist, improved & 1 acre or less |
| CF | Conservation Futures | 0.0316035091 | $563,882 | $563,882 | $17.82 | | |
| EMS1 | Fire & Rescue Dist #1 Camano GEN (EMS) | 0.3677864386 | $563,882 | $563,882 | $207.39 | | |
| FIRE1 | Fire & Rescue Dist #1 Camano GEN | 1.2502910536 | $563,882 | $563,882 | $705.02 | | |
| FIRE1BOND | Fire & Rescue Dist #1 Camano BOND | 0.1570001679 | $563,882 | $563,882 | $88.53 | | |
| CE | County Current Expense | 0.3708482477 | $563,882 | $563,882 | $209.11 | | |
| CR | County Roads | 0.4584763726 | $563,882 | $563,882 | $258.53 | | |
| LCIB | Library Sno-Isle BOND (Camano Island) | 0.0396325772 | $563,882 | $563,882 | $22.35 | | |
| LIB | Library Sno-Isle GEN | 0.3153421757 | $563,882 | $563,882 | $177.82 | | |
| SCH205_401 | School 205-401 Enrichment | 1.2698420524 | $563,882 | $563,882 | $716.04 | | |
| SCH205BOND | School 205-401 BOND | 0.9396497583 | $563,882 | $563,882 | $529.85 | | |
| ST | State School | 1.3035497053 | $563,882 | $563,882 | $735.05 | | |
| ST2 | State School Part 2 | 0.8169543533 | $563,882 | $563,882 | $460.67 | | |
| | Total Tax Rate: | 7.3209764117 | | | | | |
| | | | | Taxes w/Current Exemptions: | $4,128.18 | | |
| | | | | Taxes w/o Exemptions: | $4,128.18 | | |
Improvement / Building
| Improvement #1: | RESIDENTIAL | State Code: | Y | 1050.0 sqft | Value: | $186,882 |
| Bathrooms: | 1 | Bedrooms: | 2 | | Ceiling: | PLYWOOD PAINTED | Exterior Wall/Cover: | WOOD SIDING | | Floor Covering: | CARPET/VINYL 80-20 | Floor Structure: | WOOD W/SUBFLOOR | | Foundation: | CONCRETE | Heating: | BASEBOARD ELECTRIC | | Interior Finish: | DRYWALL PAINT | Plumbing Fixture Cnt: | 7 | | Roof Slope: | FLAT | Roof Structure/Cover: | BEAM ROLL COMPOSITION |
|
| | Type | Description | Class CD | Sub Class CD | Year Built | Area |
| | BAS | BASE/MAIN FLOOR | 3 | 0 | 1955 | 1050.0 |
| | OP3 | OPEN PORCH W/ROOF | 3 | 0 | 1955 | 39.5 |
| | OWP | OPEN WOOD PORCH W/STEPS | 3 | 0 | 1955 | 351.1 |
| | DGR | DETACHED GARAGE | 3 | 0 | 1955 | 0.0 |
Sketch
Property Image
Land
| 1 | 12 | SQ (00000-06000) | 0.0000 | 0.00 | 0.00 | 0.00 | 1.00 | $360,000 | $0 |
| 2 | 12 | SQ (00000-06000) | 0.0000 | 0.00 | 0.00 | 0.00 | 1.00 | $17,000 | $0 |
Roll Value History
| 2026 | N/A | N/A | N/A | N/A | N/A |
| 2025 | $186,882 | $377,000 | $0 | $563,882 | $563,882 |
| 2024 | $192,899 | $377,000 | $0 | $569,899 | $569,899 |
| 2023 | $195,121 | $369,000 | $0 | $564,121 | $564,121 |
| 2022 | $176,464 | $319,000 | $0 | $495,464 | $495,464 |
| 2021 | $157,677 | $257,000 | $0 | $414,677 | $414,677 |
| 2020 | $153,991 | $217,000 | $0 | $370,991 | $370,991 |
| 2019 | $113,500 | $197,000 | $0 | $310,500 | $310,500 |
| 2018 | $113,805 | $187,000 | $0 | $300,805 | $300,805 |
| 2017 | $114,407 | $240,000 | $0 | $354,407 | $354,407 |
| 2016 | $114,895 | $140,000 | $0 | $254,895 | $254,895 |
| 2015 | $116,140 | $108,896 | $0 | $225,036 | $225,036 |
| 2014 | $117,387 | $108,896 | $0 | $226,283 | $226,283 |
| 2013 | $118,632 | $108,896 | $0 | $227,528 | $227,528 |
| 2012 | $119,876 | $108,896 | $0 | $228,772 | $228,772 |
| 2011 | $121,122 | $136,120 | $0 | $257,242 | $257,242 |
| 2010 | $121,214 | $136,120 | $0 | $257,334 | $257,334 |
| 2009 | $125,852 | $200,000 | $0 | $325,852 | $325,852 |
| 2008 | $127,630 | $190,000 | $0 | $317,630 | $317,630 |
| 2007 | $107,451 | $190,000 | $0 | $297,451 | $297,451 |
Deed and Sales History
| 1 | 08/13/2019 | WD | Warranty Deed | BRIGGS, MICHAEL D | CORRALL II, CARMEN JAMES | | | $391,500.00 | 39841 | 4469299 |
| 2 | 06/06/2019 | QCD | Quit Claim Deed | BRIGGS JTWROS, MICHAEL D | BRIGGS, MICHAEL D | | | $0.00 | 38896 | 4465059 |
| 3 | 08/31/2015 | OTHER | Other - Misc. Documents | BRIGGS, MICHAEL D | BRIGGS JTWROS, MICHAEL D | | | $0.00 | 21465 | 4386487 |
| 4 | 08/02/2005 | WD | Warranty Deed | CHRISTIANSEN, DANA | BRIGGS, MICHAEL D | | | $223,000.00 | 53880 | 4143604 |
| 5 | 04/15/2004 | QCD | Quit Claim Deed | BANK OF AMERICA TRUSTEE, | CHRISTIANSEN, DANA | | | $0.00 | 41804 | 4099293 |
| 6 | 04/12/2002 | QCD | Quit Claim Deed | CHRISTIANSEN, ROGER N | BANK OF AMERICA TRUSTEE, | | | $0.00 | 21616 | 4018508 |
| 7 | 04/01/1982 | TRUSTEED | Trustee's Deed | CHAPMAN, HORACE H | CHRISTIANSEN, ROGER N | | | $35,000.00 | 20784 | 394921 |
| 8 | 01/01/1900 | OTHER | Other - Misc. Documents | Unknown | CHAPMAN, HORACE H | | | $0.00 | 0 | 0 |
Payout Agreement
| No payout information available.. |