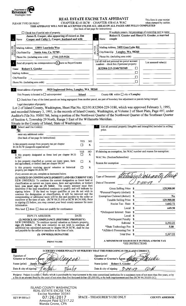
Property
Account |
| Property ID: | 315876 | Abbreviated Legal Description: | MADRONA BCH LOT 3 BLK 3 INCL ADJ TIDES |
| Geographic ID: | S7440-00-03003-0 | Agent Code: | |
| Type: | Real | | |
| Tax Area: | 510 - APPRAISER-Stan/Cam Schl Dist, improved & 1 acre or less | Land Use Code | 11 |
| Open Space: | N | DFL | N |
| Historic Property: | N | Remodel Property: | N |
| Multi-Family Redevelopment: | N | | |
| Township: | | Section: | |
| Range: | |
Location |
| Address: | 185 N SUNSET DR CAMANO ISLAND, WA 98282 | Mapsco: | |
| Neighborhood: | North Camano | Map ID: | 573 |
| Neighborhood CD: | 06-C |
Owner |
| Name: | UHLMANSIEK TTEE, ROBERT R | Owner ID: | 292145 |
| Mailing Address: | NANCY E UHLMANSIEK 185 N SUNSET DR CAMANO ISLAND, WA 98282 | % Ownership: | 100.0000000000% |
| | | Exemptions: | |
Taxes and Assessment Details
Values
| (+) Improvement Homesite Value: | + | $0 | |
| (+) Improvement Non-Homesite Value: | + | $1,039,754 | |
| (+) Land Homesite Value: | + | $0 | |
| (+) Land Non-Homesite Value: | + | $600,550 | |
| (+) Curr Use (HS): | + | $0 | $0 |
| (+) Curr Use (NHS): | + | $0 | $0 |
| | | -------------------------- | |
| (=) Market Value: | = | $1,640,304 | |
| (–) Productivity Loss: | – | $0 | |
| | | -------------------------- | |
| (=) Subtotal: | = | $1,640,304 | |
| (+) Senior Appraised Value: | + | $0 | |
| (+) Non-Senior Appraised Value: | + | $1,640,304 | |
| | | -------------------------- | |
| (=) Total Appraised Value: | = | $1,640,304 | |
| (–) Senior Exemption Loss: | – | $0 | |
| (–) Exemption Loss: | – | $0 | |
| | | -------------------------- | |
| (=) Taxable Value: | = | $1,640,304 | |
Taxing Jurisdiction
| Owner: | UHLMANSIEK TTEE, ROBERT R | | |
| % Ownership: | 100.0000000000% | | |
| Total Value: | $1,640,304 | | |
| Tax Area: | 510 - APPRAISER-Stan/Cam Schl Dist, improved & 1 acre or less |
| CF | Conservation Futures | 0.0316035091 | $1,640,304 | $1,640,304 | $51.84 | | |
| EMS1 | Fire & Rescue Dist #1 Camano GEN (EMS) | 0.3677864386 | $1,640,304 | $1,640,304 | $603.28 | | |
| FIRE1 | Fire & Rescue Dist #1 Camano GEN | 1.2502910536 | $1,640,304 | $1,640,304 | $2,050.86 | | |
| FIRE1BOND | Fire & Rescue Dist #1 Camano BOND | 0.1570001679 | $1,640,304 | $1,640,304 | $257.53 | | |
| CE | County Current Expense | 0.3708482477 | $1,640,304 | $1,640,304 | $608.30 | | |
| CR | County Roads | 0.4584763726 | $1,640,304 | $1,640,304 | $752.04 | | |
| LCIB | Library Sno-Isle BOND (Camano Island) | 0.0396325772 | $1,640,304 | $1,640,304 | $65.01 | | |
| LIB | Library Sno-Isle GEN | 0.3153421757 | $1,640,304 | $1,640,304 | $517.26 | | |
| SCH205_401 | School 205-401 Enrichment | 1.2698420524 | $1,640,304 | $1,640,304 | $2,082.93 | | |
| SCH205BOND | School 205-401 BOND | 0.9396497583 | $1,640,304 | $1,640,304 | $1,541.31 | | |
| ST | State School | 1.3035497053 | $1,640,304 | $1,640,304 | $2,138.22 | | |
| ST2 | State School Part 2 | 0.8169543533 | $1,640,304 | $1,640,304 | $1,340.05 | | |
| | Total Tax Rate: | 7.3209764117 | | | | | |
| | | | | Taxes w/Current Exemptions: | $12,008.63 | | |
| | | | | Taxes w/o Exemptions: | $12,008.63 | | |
Improvement / Building
| Improvement #1: | RESIDENTIAL | State Code: | Y | 3643.9 sqft | Value: | $1,039,754 |
| Bathrooms: | 2 | Bedrooms: | 2 | | Ceiling: | DRYWALL PAINTED | Exterior Wall/Cover: | SHINGLE | | Floor Covering: | VINYL TILE/HARWD 20-80 | Floor Structure: | WOOD W/SUBFLOOR | | Foundation: | CONCRETE | Heating: | RADIANT FLOOR | | Interior Finish: | DRYWALL PAINT | Plumbing Fixture Cnt: | 13 | | Roof Slope: | 6" IN 12" | Roof Structure/Cover: | CJ ASPHALT |
|
| | Type | Description | Class CD | Sub Class CD | Year Built | Area |
| | BAS | BASE/MAIN FLOOR | 6 | 0 | 2003 | 1633.1 |
| | OP1 | OPEN PORCH SLAB | 6 | 0 | 2003 | 1463.5 |
| | OWP | OPEN WOOD PORCH W/STEPS | 6 | 0 | 2003 | 312.0 |
| | OP2 | OPEN PORCH W/STEPS | 6 | 0 | 2003 | 129.0 |
| | OP2 | OPEN PORCH W/STEPS | 6 | 0 | 2003 | 517.0 |
| | OP4 | OPEN PORCH W/CEILING-ROOF | 6 | 0 | 2003 | 61.2 |
| | OP4 | OPEN PORCH W/CEILING-ROOF | 6 | 0 | 2003 | 42.0 |
| | OP4 | OPEN PORCH W/CEILING-ROOF | 6 | 0 | 2003 | 159.9 |
| | OP4 | OPEN PORCH W/CEILING-ROOF | 6 | 0 | 2003 | 70.8 |
| | OP4 | OPEN PORCH W/CEILING-ROOF | 6 | 0 | 2003 | 48.0 |
| | DGR | DETACHED GARAGE | 6 | 0 | 2003 | 290.0 |
| | DGR | DETACHED GARAGE | 6 | 0 | 2003 | 1162.6 |
| | UPS | UPPER STORY | 6 | 0 | 2003 | 659.2 |
| | UPS | UPPER STORY | 6 | 0 | 2003 | 586.5 |
| | BAW | BALCONY WOOD RAIL | 6 | 0 | 2003 | 84.7 |
| | UPH | HALF STORY | 6 | 0 | 2003 | 382.0 |
| | LOF | LOFT | 6 | 0 | 2003 | 383.1 |
Sketch
Property Image
Land
| 1 | LB | LOW BANK | 0.0000 | 0.00 | 50.00 | 0.00 | 1.00 | $600,000 | $0 |
| 2 | 55 | TIDES | 0.0000 | 0.00 | 55.00 | 0.00 | 1.00 | $550 | $0 |
Roll Value History
| 2026 | N/A | N/A | N/A | N/A | N/A |
| 2025 | $1,039,754 | $600,550 | $0 | $1,640,304 | $1,640,304 |
| 2024 | $1,051,673 | $600,550 | $0 | $1,652,223 | $1,652,223 |
| 2023 | $1,063,588 | $600,550 | $0 | $1,664,138 | $1,664,138 |
| 2022 | $919,897 | $650,550 | $0 | $1,570,447 | $1,570,447 |
| 2021 | $809,309 | $550,550 | $0 | $1,359,859 | $1,359,859 |
| 2020 | $789,831 | $450,550 | $0 | $1,240,381 | $1,240,381 |
| 2019 | $735,495 | $450,550 | $0 | $1,186,045 | $1,186,045 |
| 2018 | $737,578 | $450,550 | $0 | $1,188,128 | $1,188,128 |
| 2017 | $741,704 | $450,550 | $0 | $1,192,254 | $1,192,254 |
| 2016 | $752,577 | $450,550 | $0 | $1,203,127 | $1,203,127 |
| 2015 | $761,329 | $450,550 | $0 | $1,211,879 | $1,211,879 |
| 2014 | $770,079 | $450,550 | $0 | $1,220,629 | $1,220,629 |
| 2013 | $778,832 | $400,297 | $0 | $1,179,129 | $1,179,129 |
| 2012 | $787,580 | $400,297 | $0 | $1,187,877 | $1,187,877 |
| 2011 | $796,332 | $500,234 | $0 | $1,296,566 | $1,296,566 |
| 2010 | $814,950 | $500,234 | $0 | $1,315,184 | $1,315,184 |
| 2009 | $849,087 | $538,427 | $0 | $1,387,514 | $1,387,514 |
| 2008 | $867,244 | $650,617 | $0 | $1,517,861 | $1,517,861 |
| 2007 | $867,883 | $576,234 | $0 | $1,444,117 | $1,444,117 |
Deed and Sales History
| 1 | 10/01/2019 | QCD | Quit Claim Deed | UHLMANSIEK, ROBERT R / NANCY | UHLMANSIEK TTEE, ROBERT R | | | $0.00 | 40608 | 4473032 |
| 2 | 05/01/1994 | WD | Warranty Deed | TAVERNITI, TONY | UHLMANSIEK, ROBERT R | | | $290,000.00 | 41782 | 94010543 |
| 3 | 01/01/1900 | OTHER | Other - Misc. Documents | Unknown | TAVERNITI, TONY | | | $0.00 | 0 | 0 |
Payout Agreement
| No payout information available.. |