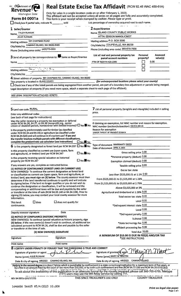
Property
Account |
| Property ID: | 31593 | Abbreviated Legal Description: | 4 - E150' OF W300' OF NE SE EX S1059' EX N30' TGW 1/4 INT IN WELL & WATER SYSTEM |
| Geographic ID: | R13301-249-4150 | Agent Code: | |
| Type: | Real | | |
| Tax Area: | 110 - APPRAISER-OH Schl Dist, outside OH, improved & 1 acre or less | Land Use Code | 11 |
| Open Space: | N | DFL | N |
| Historic Property: | N | Remodel Property: | N |
| Multi-Family Redevelopment: | N | | |
| Township: | 33 | Section: | 01 |
| Range: | R1 |
Location |
| Address: | 85 W TROXELL RD OAK HARBOR, WA 98277 | Mapsco: | |
| Neighborhood: | Cycle 6 | Map ID: | 190 |
| Neighborhood CD: | 6 |
Owner |
| Name: | DANIELS, DEBRA J | Owner ID: | 278123 |
| Mailing Address: | 85 W TROXELL RD OAK HARBOR, WA 98277 | % Ownership: | 100.0000000000% |
| | | Exemptions: | SNR/DSBL |
Taxes and Assessment Details
Values
| (+) Improvement Homesite Value: | + | $82,522 | |
| (+) Improvement Non-Homesite Value: | + | $0 | |
| (+) Land Homesite Value: | + | $200,000 | |
| (+) Land Non-Homesite Value: | + | $0 | |
| (+) Curr Use (HS): | + | $0 | $0 |
| (+) Curr Use (NHS): | + | $0 | $0 |
| | | -------------------------- | |
| (=) Market Value: | = | $282,522 | |
| (–) Productivity Loss: | – | $0 | |
| | | -------------------------- | |
| (=) Subtotal: | = | $282,522 | |
| (+) Senior Appraised Value: | + | $269,230 | |
| (+) Non-Senior Appraised Value: | + | $0 | |
| | | -------------------------- | |
| (=) Total Appraised Value: | = | $269,230 | |
| (–) Senior Exemption Loss: | – | $161,538 | |
| (–) Exemption Loss: | – | $0 | |
| | | -------------------------- | |
| (=) Taxable Value: | = | $107,692 | |
Taxing Jurisdiction
| Owner: | DANIELS, DEBRA J | | |
| % Ownership: | 100.0000000000% | | |
| Total Value: | $282,522 | | |
| Tax Area: | 110 - APPRAISER-OH Schl Dist, outside OH, improved & 1 acre or less |
| CF | Conservation Futures | 0.0316035091 | $282,522 | $107,692 | $3.40 | | |
| CEM1 | Cemetery #1 | 0.0040320932 | $282,522 | $107,692 | $0.43 | | |
| FIRE2 | Fire & Rescue Dist #2 N Whidbey GEN | 0.5475949600 | $282,522 | $107,692 | $58.97 | | |
| HOBOND | Hospital BOND | 0.0000000000 | $282,522 | $0 | $0.00 | | |
| HOGEN | Hospital GEN | 0.3902502903 | $282,522 | $107,692 | $42.03 | | |
| CE | County Current Expense | 0.3708482477 | $282,522 | $107,692 | $39.94 | | |
| CR | County Roads | 0.4584763726 | $282,522 | $107,692 | $49.37 | | |
| ISLANDEMS | Hospital GEN (EMS) | 0.5000000000 | $282,522 | $107,692 | $53.85 | | |
| LIB | Library Sno-Isle GEN | 0.3153421757 | $282,522 | $107,692 | $33.96 | | |
| NWHIDPRMT | P & R N Whidbey GEN | 0.2004466701 | $282,522 | $107,692 | $21.59 | | |
| SCH201MO | School 201 Enrichment | 0.0000000000 | $282,522 | $0 | $0.00 | | |
| ST | State School | 1.3035497053 | $282,522 | $107,692 | $140.38 | | |
| ST2 | State School Part 2 | 0.0000000000 | $282,522 | $0 | $0.00 | | |
| | Total Tax Rate: | 4.1221440240 | | | | | |
| | | | | Taxes w/Current Exemptions: | $443.92 | | |
| | | | | Taxes w/o Exemptions: | $1,973.73 | | |
Improvement / Building
| Improvement #1: | MANUFACTURED HOME | State Code: | Y | 1440.0 sqft | Value: | $82,522 |
| Bathrooms: | 0 | Bedrooms: | 0 | | Ceiling: | PLASTER PAINTED | Cooling: | EVAP NO DUCT | | Exterior Wall/Cover: | VINYL | Floor Covering: | CARPET 100% | | Floor Structure: | SLAB ON GRADE | Foundation: | SLAB | | Heating: | FHA ELECTRIC | Interior Finish: | PLASTER | | Plumbing Fixture Cnt: | 1 | Roof Slope: | FLAT | | Roof Structure/Cover: | CJ ALUMINIUM HEAVY |   |   |
|
| | Type | Description | Class CD | Sub Class CD | Year Built | Area |
| | BAS | BASE/MAIN FLOOR | 4 | 0 | 1978 | 1440.0 |
| | UTY | STORAGE/UTILITY | 4 | 0 | 1978 | 480.0 |
| | OP3 | OPEN PORCH W/ROOF | 4 | 0 | 1978 | 150.0 |
| | OWP | OPEN WOOD PORCH W/STEPS | 4 | 0 | 1978 | 208.0 |
Sketch
Property Image
Land
| 1 | 16 | AC (00.51-01.00) | 0.0000 | 0.00 | 0.00 | 0.00 | 1.00 | $200,000 | $0 |
Roll Value History
| 2026 | N/A | N/A | N/A | N/A | N/A |
| 2025 | $82,522 | $200,000 | $0 | $282,522 | $107,692 |
| 2024 | $87,678 | $190,000 | $0 | $277,678 | $107,692 |
| 2023 | $79,230 | $190,000 | $0 | $269,230 | $107,692 |
| 2022 | $56,855 | $160,000 | $0 | $216,855 | $216,855 |
| 2021 | $52,532 | $125,000 | $0 | $177,532 | $177,532 |
| 2020 | $52,998 | $110,000 | $0 | $162,998 | $162,998 |
| 2019 | $43,318 | $150,000 | $0 | $193,318 | $193,318 |
| 2018 | $44,893 | $75,000 | $0 | $119,893 | $119,893 |
| 2017 | $47,256 | $75,000 | $0 | $122,256 | $122,256 |
| 2016 | $27,138 | $75,000 | $0 | $102,138 | $102,138 |
| 2015 | $29,464 | $75,000 | $0 | $104,464 | $104,464 |
| 2014 | $31,015 | $72,250 | $0 | $103,265 | $103,265 |
| 2013 | $32,566 | $72,250 | $0 | $104,816 | $104,816 |
| 2012 | $34,117 | $72,250 | $0 | $106,367 | $106,367 |
| 2011 | $35,667 | $85,000 | $0 | $120,667 | $120,667 |
| 2010 | $44,809 | $85,000 | $0 | $129,809 | $129,809 |
| 2009 | $47,567 | $100,000 | $0 | $147,567 | $147,567 |
| 2008 | $49,311 | $104,000 | $0 | $153,311 | $153,311 |
| 2007 | $50,234 | $104,000 | $0 | $154,234 | $154,234 |
Deed and Sales History
| 1 | 12/20/2016 | WD | Warranty Deed | MADIGAN, LINDA S | DANIELS, DEBRA J | | | $220,000.00 | 27622 | 4414632 |
| 2 | 09/20/2012 | WD | Warranty Deed | MADIGAN, LINDA S | MADIGAN, LINDA S | | | $0.00 | 8904 | 4323389 |
| 3 | 09/20/2010 | WD | Warranty Deed | BOATRIGHT, DON C | MADIGAN, LINDA S | | | $175,000.00 | 2392 | 4281593 |
| 4 | 06/01/1987 | OTHER | Other - Misc. Documents | BOATRIGHT, DON C | BOATRIGHT, DON C | | | $0.00 | 71871 | 0 |
| 5 | 07/01/1981 | REC | Real Estate Contract | BOATRIGHT, DON C | BOATRIGHT, DON C | | | $15,000.00 | 12079 | 385084 |
| 6 | 07/01/1981 | OTHER | Other - Misc. Documents | ARCHER, MICHAEL H | BOATRIGHT, DON C | | | $27,500.00 | 12075 | 0 |
Payout Agreement
| No payout information available.. |