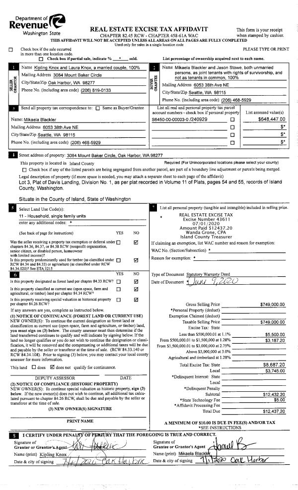
Property
Account |
| Property ID: | 315947 | Abbreviated Legal Description: | MADRONA BCH LOT 11 BLK 3 INCL ADJ TIDES |
| Geographic ID: | S7440-00-03011-0 | Agent Code: | |
| Type: | Real | | |
| Tax Area: | 510 - APPRAISER-Stan/Cam Schl Dist, improved & 1 acre or less | Land Use Code | 11 |
| Open Space: | N | DFL | N |
| Historic Property: | N | Remodel Property: | N |
| Multi-Family Redevelopment: | N | | |
| Township: | | Section: | |
| Range: | |
Location |
| Address: | 215 N SUNSET DR CAMANO ISLAND, WA 98282 | Mapsco: | |
| Neighborhood: | North Camano | Map ID: | 574 |
| Neighborhood CD: | 06-C |
Owner |
| Name: | ALLMARAS, STEVEN | Owner ID: | 291842 |
| Mailing Address: | LORENE ALLMARAS 215 N SUNSET DR CAMANO ISLAND, WA 98282 | % Ownership: | 100.0000000000% |
| | | Exemptions: | |
Taxes and Assessment Details
Values
| (+) Improvement Homesite Value: | + | $0 | |
| (+) Improvement Non-Homesite Value: | + | $469,050 | |
| (+) Land Homesite Value: | + | $0 | |
| (+) Land Non-Homesite Value: | + | $625,500 | |
| (+) Curr Use (HS): | + | $0 | $0 |
| (+) Curr Use (NHS): | + | $0 | $0 |
| | | -------------------------- | |
| (=) Market Value: | = | $1,094,550 | |
| (–) Productivity Loss: | – | $0 | |
| | | -------------------------- | |
| (=) Subtotal: | = | $1,094,550 | |
| (+) Senior Appraised Value: | + | $0 | |
| (+) Non-Senior Appraised Value: | + | $1,094,550 | |
| | | -------------------------- | |
| (=) Total Appraised Value: | = | $1,094,550 | |
| (–) Senior Exemption Loss: | – | $0 | |
| (–) Exemption Loss: | – | $0 | |
| | | -------------------------- | |
| (=) Taxable Value: | = | $1,094,550 | |
Taxing Jurisdiction
| Owner: | ALLMARAS, STEVEN | | |
| % Ownership: | 100.0000000000% | | |
| Total Value: | $1,094,550 | | |
| Tax Area: | 510 - APPRAISER-Stan/Cam Schl Dist, improved & 1 acre or less |
| CF | Conservation Futures | 0.0316035091 | $1,094,550 | $1,094,550 | $34.59 | | |
| EMS1 | Fire & Rescue Dist #1 Camano GEN (EMS) | 0.3677864386 | $1,094,550 | $1,094,550 | $402.56 | | |
| FIRE1 | Fire & Rescue Dist #1 Camano GEN | 1.2502910536 | $1,094,550 | $1,094,550 | $1,368.51 | | |
| FIRE1BOND | Fire & Rescue Dist #1 Camano BOND | 0.1570001679 | $1,094,550 | $1,094,550 | $171.84 | | |
| CE | County Current Expense | 0.3708482477 | $1,094,550 | $1,094,550 | $405.91 | | |
| CR | County Roads | 0.4584763726 | $1,094,550 | $1,094,550 | $501.83 | | |
| LCIB | Library Sno-Isle BOND (Camano Island) | 0.0396325772 | $1,094,550 | $1,094,550 | $43.38 | | |
| LIB | Library Sno-Isle GEN | 0.3153421757 | $1,094,550 | $1,094,550 | $345.16 | | |
| SCH205_401 | School 205-401 Enrichment | 1.2698420524 | $1,094,550 | $1,094,550 | $1,389.91 | | |
| SCH205BOND | School 205-401 BOND | 0.9396497583 | $1,094,550 | $1,094,550 | $1,028.49 | | |
| ST | State School | 1.3035497053 | $1,094,550 | $1,094,550 | $1,426.80 | | |
| ST2 | State School Part 2 | 0.8169543533 | $1,094,550 | $1,094,550 | $894.20 | | |
| | Total Tax Rate: | 7.3209764117 | | | | | |
| | | | | Taxes w/Current Exemptions: | $8,013.18 | | |
| | | | | Taxes w/o Exemptions: | $8,013.18 | | |
Improvement / Building
| Improvement #1: | RESIDENTIAL | State Code: | Y | 2433.1 sqft | Value: | $469,050 |
| Bathrooms: | 3 | Bedrooms: | 3 | | Ceiling: | DRYWALL PAINTED | Cooling: | HEAT PUMP/CONV/V | | Exterior Wall/Cover: | WOOD SIDING | Floor Covering: | HARDWOOD/CARP 60-40 | | Floor Structure: | WOOD W/SUBFLOOR | Foundation: | CONCRETE | | Interior Finish: | DRYWALL PAINT | Plumbing Fixture Cnt: | 15 | | Roof Slope: | 5" IN 12" | Roof Structure/Cover: | CJ ASPHALT |
|
| | Type | Description | Class CD | Sub Class CD | Year Built | Area |
| | BAS | BASE/MAIN FLOOR | 4 | 0 | 1954 | 1558.2 |
| | UB8 | BASEMENT UNFINISHED 8" | 4 | 0 | 1954 | 591.2 |
| | OP3 | OPEN PORCH W/ROOF | 4 | 0 | 1954 | 152.0 |
| | AGR | ATTACHED GARAGE | 4 | 0 | 1954 | 433.4 |
| | OWP | OPEN WOOD PORCH W/STEPS | 4 | 0 | 1954 | 337.5 |
| | OWP | OPEN WOOD PORCH W/STEPS | 4 | 0 | 1954 | 1013.9 |
| | DWN | DOWNSTAIRS LIVING AREA | 4 | 0 | 1954 | 874.9 |
Sketch
Property Image
Land
| 1 | MB | MEDIUM BANK | 0.0000 | 0.00 | 50.00 | 0.00 | 1.00 | $625,000 | $0 |
| 2 | 55 | TIDES | 0.0000 | 0.00 | 50.00 | 0.00 | 1.00 | $500 | $0 |
Roll Value History
| 2026 | N/A | N/A | N/A | N/A | N/A |
| 2025 | $469,050 | $625,500 | $0 | $1,094,550 | $1,094,550 |
| 2024 | $475,121 | $625,500 | $0 | $1,100,621 | $1,100,621 |
| 2023 | $481,193 | $625,500 | $0 | $1,106,693 | $1,106,693 |
| 2022 | $435,040 | $650,500 | $0 | $1,085,540 | $1,085,540 |
| 2021 | $383,130 | $550,500 | $0 | $933,630 | $933,630 |
| 2020 | $373,379 | $450,500 | $0 | $823,879 | $823,879 |
| 2019 | $231,337 | $450,500 | $0 | $681,837 | $681,837 |
| 2018 | $232,107 | $450,500 | $0 | $682,607 | $682,607 |
| 2017 | $233,549 | $450,500 | $0 | $684,049 | $684,049 |
| 2016 | $206,151 | $450,500 | $0 | $656,651 | $656,651 |
| 2015 | $209,232 | $450,500 | $0 | $659,732 | $659,732 |
| 2014 | $212,306 | $450,500 | $0 | $662,806 | $662,806 |
| 2013 | $215,384 | $400,247 | $0 | $615,631 | $615,631 |
| 2012 | $218,461 | $400,247 | $0 | $618,708 | $618,708 |
| 2011 | $221,539 | $500,184 | $0 | $721,723 | $721,723 |
| 2010 | $221,980 | $500,184 | $0 | $722,164 | $722,164 |
| 2009 | $231,512 | $538,377 | $0 | $769,889 | $769,889 |
| 2008 | $236,248 | $650,567 | $0 | $886,815 | $886,815 |
| 2007 | $239,137 | $576,219 | $0 | $815,356 | $815,356 |
Deed and Sales History
| 1 | 09/18/2019 | WD | Warranty Deed | LIEN, DAN H | ALLMARAS, STEVEN | | | $1,150,000.00 | 40361 | 4471768 |
| 2 | 08/14/2012 | CCOMPROP | Create Community Property | LIEN, DAN H | LIEN, DAN H | | | $0.00 | 8546 | 4321258 |
| 3 | 09/27/2011 | DECREE | Divorce Decree/Legal Separation | LIEN, DAN H | LIEN, DAN H | | | $0.00 | 5748 | 4302459 |
| 4 | 03/15/2007 | WD | Warranty Deed | CASHMANO COMPANY LLC, | LIEN, DAN H | | | $913,250.00 | 70991 | 4197630 |
| 5 | 12/28/1998 | QCD | Quit Claim Deed | LOWERS, H A | CASHMANO COMPANY LLC, | | | $0.00 | 90264 | 99001740 |
| 6 | 06/05/1998 | WD | Warranty Deed | PHILLIPS, JAMES R | LOWERS, H A | | | $460,000.00 | 82218 | 98011560 |
| 7 | 12/01/1994 | QCD | Quit Claim Deed | PHILLIPS, JAMES R | PHILLIPS, JAMES R | | | $0.00 | 50177 | 95000905 |
| 8 | 12/01/1980 | TRUSTEED | Trustee's Deed | BROOMFIELD, MILDRED E | PHILLIPS, JAMES R | | | $100,000.00 | 10038 | 378049 |
| 9 | 01/01/1900 | OTHER | Other - Misc. Documents | Unknown | LOWERS, HA A | | | $0.00 | 82218 | 98011560 |
| 10 | 01/01/1900 | OTHER | Other - Misc. Documents | LOWERS, HA A | BROOMFIELD, MILDRED E | | | $0.00 | 0 | 0 |
Payout Agreement
| No payout information available.. |