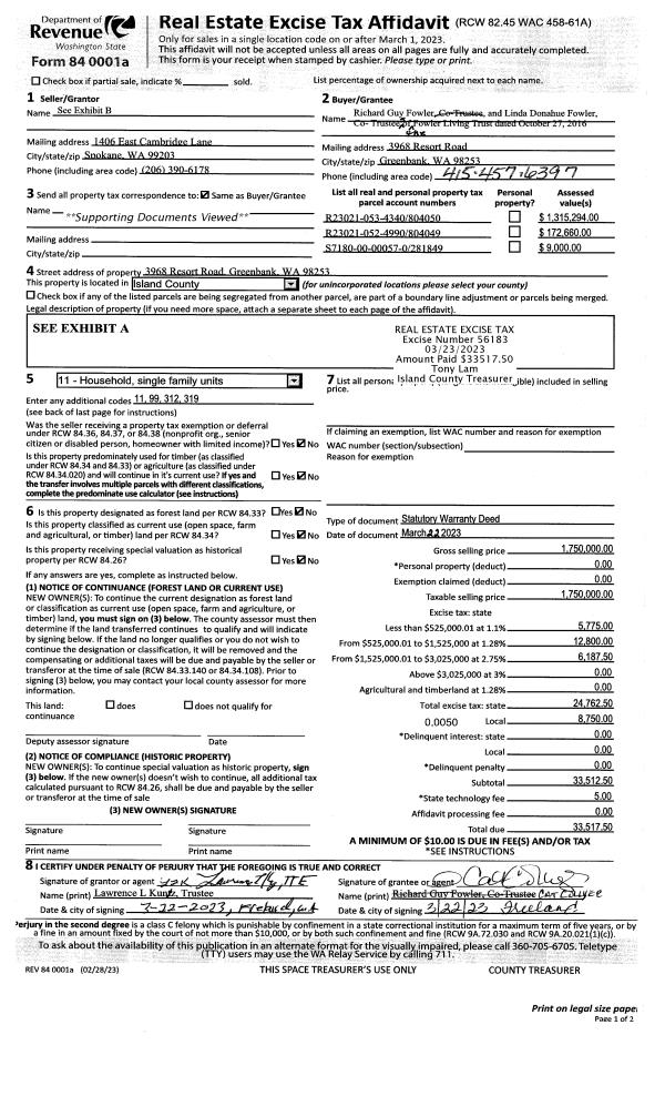
Property
Account |
| Property ID: | 316125 | Abbreviated Legal Description: | MADRONA BCH 1ST LOT 1 BLK 3 |
| Geographic ID: | S7440-01-03001-0 | Agent Code: | |
| Type: | Real | | |
| Tax Area: | 510 - APPRAISER-Stan/Cam Schl Dist, improved & 1 acre or less | Land Use Code | 11 |
| Open Space: | N | DFL | N |
| Historic Property: | N | Remodel Property: | N |
| Multi-Family Redevelopment: | N | | |
| Township: | | Section: | |
| Range: | |
Location |
| Address: | 273 ALDER ST CAMANO ISLAND, WA 98282 | Mapsco: | |
| Neighborhood: | North Camano | Map ID: | 574 |
| Neighborhood CD: | 06-C |
Owner |
| Name: | BELLES, RANDY L | Owner ID: | 285178 |
| Mailing Address: | TAMMY LYNN MCGREW BELLES 273 ALDER ST CAMANO ISLAND, WA 98282 | % Ownership: | 100.0000000000% |
| | | Exemptions: | |
Taxes and Assessment Details
Values
| (+) Improvement Homesite Value: | + | $0 | |
| (+) Improvement Non-Homesite Value: | + | $135,077 | |
| (+) Land Homesite Value: | + | $0 | |
| (+) Land Non-Homesite Value: | + | $600,000 | |
| (+) Curr Use (HS): | + | $0 | $0 |
| (+) Curr Use (NHS): | + | $0 | $0 |
| | | -------------------------- | |
| (=) Market Value: | = | $735,077 | |
| (–) Productivity Loss: | – | $0 | |
| | | -------------------------- | |
| (=) Subtotal: | = | $735,077 | |
| (+) Senior Appraised Value: | + | $0 | |
| (+) Non-Senior Appraised Value: | + | $735,077 | |
| | | -------------------------- | |
| (=) Total Appraised Value: | = | $735,077 | |
| (–) Senior Exemption Loss: | – | $0 | |
| (–) Exemption Loss: | – | $0 | |
| | | -------------------------- | |
| (=) Taxable Value: | = | $735,077 | |
Taxing Jurisdiction
| Owner: | BELLES, RANDY L | | |
| % Ownership: | 100.0000000000% | | |
| Total Value: | $735,077 | | |
| Tax Area: | 510 - APPRAISER-Stan/Cam Schl Dist, improved & 1 acre or less |
| CF | Conservation Futures | 0.0316035091 | $735,077 | $735,077 | $23.23 | | |
| EMS1 | Fire & Rescue Dist #1 Camano GEN (EMS) | 0.3677864386 | $735,077 | $735,077 | $270.35 | | |
| FIRE1 | Fire & Rescue Dist #1 Camano GEN | 1.2502910536 | $735,077 | $735,077 | $919.06 | | |
| FIRE1BOND | Fire & Rescue Dist #1 Camano BOND | 0.1570001679 | $735,077 | $735,077 | $115.41 | | |
| CE | County Current Expense | 0.3708482477 | $735,077 | $735,077 | $272.60 | | |
| CR | County Roads | 0.4584763726 | $735,077 | $735,077 | $337.02 | | |
| LCIB | Library Sno-Isle BOND (Camano Island) | 0.0396325772 | $735,077 | $735,077 | $29.13 | | |
| LIB | Library Sno-Isle GEN | 0.3153421757 | $735,077 | $735,077 | $231.80 | | |
| SCH205_401 | School 205-401 Enrichment | 1.2698420524 | $735,077 | $735,077 | $933.43 | | |
| SCH205BOND | School 205-401 BOND | 0.9396497583 | $735,077 | $735,077 | $690.71 | | |
| ST | State School | 1.3035497053 | $735,077 | $735,077 | $958.21 | | |
| ST2 | State School Part 2 | 0.8169543533 | $735,077 | $735,077 | $600.52 | | |
| | Total Tax Rate: | 7.3209764117 | | | | | |
| | | | | Taxes w/Current Exemptions: | $5,381.47 | | |
| | | | | Taxes w/o Exemptions: | $5,381.47 | | |
Improvement / Building
| Improvement #1: | RESIDENTIAL | State Code: | Y | 912.0 sqft | Value: | $135,077 |
| Bathrooms: | 1 | Bedrooms: | 2 | | Ceiling: | DRYWALL PAINTED | Exterior Wall/Cover: | ASBESTOES/ASPHALT | | Floor Covering: | CARPET/VINYL 80-20 | Floor Structure: | WOOD W/SUBFLOOR | | Foundation: | CONCRETE | Heating: | BASEBOARD ELECTRIC | | Interior Finish: | DRYWALL PAINT | Plumbing Fixture Cnt: | 6 | | Roof Slope: | 5" IN 12" | Roof Structure/Cover: | CJ ASPHALT |
|
| | Type | Description | Class CD | Sub Class CD | Year Built | Area |
| | BAS | BASE/MAIN FLOOR | 3 | 0 | 1926 | 912.0 |
| | UB6 | BASEMENT UNFINISHED 6" | 3 | 0 | 1926 | 630.0 |
| | OWP | OPEN WOOD PORCH W/STEPS | 3 | 0 | 1926 | 252.0 |
| | OWR | OPEN WOOD PORCH W/STEPS/ROOF | 3 | 0 | 1926 | 42.0 |
Sketch
Property Image
Land
| 1 | LB | LOW BANK | 0.0000 | 0.00 | 40.00 | 0.00 | 1.00 | $600,000 | $0 |
Roll Value History
| 2026 | N/A | N/A | N/A | N/A | N/A |
| 2025 | $135,077 | $600,000 | $0 | $735,077 | $735,077 |
| 2024 | $140,187 | $600,000 | $0 | $740,187 | $740,187 |
| 2023 | $142,369 | $600,000 | $0 | $742,369 | $742,369 |
| 2022 | $134,688 | $600,000 | $0 | $734,688 | $734,688 |
| 2021 | $119,470 | $500,000 | $0 | $619,470 | $619,470 |
| 2020 | $115,576 | $400,000 | $0 | $515,576 | $515,576 |
| 2019 | $58,911 | $325,000 | $0 | $383,911 | $383,911 |
| 2018 | $59,198 | $250,000 | $0 | $309,198 | $309,198 |
| 2017 | $59,773 | $250,000 | $0 | $309,773 | $309,773 |
| 2016 | $48,392 | $250,000 | $0 | $298,392 | $298,392 |
| 2015 | $49,518 | $250,000 | $0 | $299,518 | $299,518 |
| 2014 | $50,643 | $250,000 | $0 | $300,643 | $300,643 |
| 2013 | $51,768 | $249,162 | $0 | $300,930 | $300,930 |
| 2012 | $52,894 | $249,162 | $0 | $302,056 | $302,056 |
| 2011 | $54,019 | $311,453 | $0 | $365,472 | $365,472 |
| 2010 | $51,340 | $311,453 | $0 | $362,793 | $362,793 |
| 2009 | $53,921 | $335,259 | $0 | $389,180 | $389,180 |
| 2008 | $44,551 | $360,454 | $0 | $405,005 | $405,005 |
| 2007 | $56,090 | $293,600 | $0 | $349,690 | $349,690 |
Deed and Sales History
| 1 | 05/25/2018 | WD | Warranty Deed | MONTGOMERY, TERRY D | BELLES, RANDY L | | | $389,000.00 | 34253 | 4445092 |
| 2 | 11/20/2014 | SPWARDEED | Special Warranty Deed | MONTGOMERY, TERRY D | MONTGOMERY, TERRY D | | | $0.00 | 17704 | 4369122 |
| 3 | 08/01/1986 | WD | Warranty Deed | LOCKNANE, KENNETH C | MONTGOMERY, TERRY D | | | $82,000.00 | 62026 | 86009503 |
| 4 | 01/01/1900 | OTHER | Other - Misc. Documents | Unknown | LOCKNANE, KENNETH C | | | $0.00 | 0 | 0 |
Payout Agreement
| No payout information available.. |