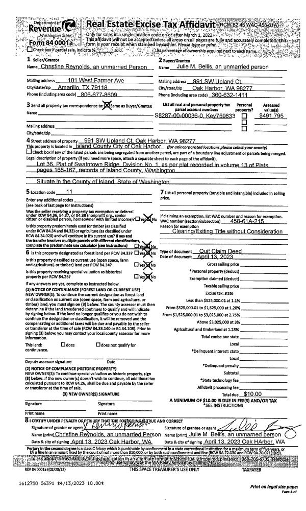
Property
Account |
| Property ID: | 316232 | Abbreviated Legal Description: | MADRONA BCH 1ST LOT 3 BLK 4 |
| Geographic ID: | S7440-01-04003-0 | Agent Code: | |
| Type: | Real | | |
| Tax Area: | 510 - APPRAISER-Stan/Cam Schl Dist, improved & 1 acre or less | Land Use Code | 11 |
| Open Space: | N | DFL | N |
| Historic Property: | N | Remodel Property: | N |
| Multi-Family Redevelopment: | N | | |
| Township: | | Section: | |
| Range: | |
Location |
| Address: | 299 ALDER ST CAMANO ISLAND, WA 98282 | Mapsco: | |
| Neighborhood: | North Camano | Map ID: | 574 |
| Neighborhood CD: | 06-C |
Owner |
| Name: | ANDERSON, GREGORY L | Owner ID: | 271957 |
| Mailing Address: | 5261 16TH AVE NE SEATTLE, WA 98105 | % Ownership: | 100.0000000000% |
| | | Exemptions: | |
Taxes and Assessment Details
Values
| (+) Improvement Homesite Value: | + | $0 | |
| (+) Improvement Non-Homesite Value: | + | $425,783 | |
| (+) Land Homesite Value: | + | $0 | |
| (+) Land Non-Homesite Value: | + | $625,000 | |
| (+) Curr Use (HS): | + | $0 | $0 |
| (+) Curr Use (NHS): | + | $0 | $0 |
| | | -------------------------- | |
| (=) Market Value: | = | $1,050,783 | |
| (–) Productivity Loss: | – | $0 | |
| | | -------------------------- | |
| (=) Subtotal: | = | $1,050,783 | |
| (+) Senior Appraised Value: | + | $0 | |
| (+) Non-Senior Appraised Value: | + | $1,050,783 | |
| | | -------------------------- | |
| (=) Total Appraised Value: | = | $1,050,783 | |
| (–) Senior Exemption Loss: | – | $0 | |
| (–) Exemption Loss: | – | $0 | |
| | | -------------------------- | |
| (=) Taxable Value: | = | $1,050,783 | |
Taxing Jurisdiction
| Owner: | ANDERSON, GREGORY L | | |
| % Ownership: | 100.0000000000% | | |
| Total Value: | $1,050,783 | | |
| Tax Area: | 510 - APPRAISER-Stan/Cam Schl Dist, improved & 1 acre or less |
| CF | Conservation Futures | 0.0316035091 | $1,050,783 | $1,050,783 | $33.21 | | |
| EMS1 | Fire & Rescue Dist #1 Camano GEN (EMS) | 0.3677864386 | $1,050,783 | $1,050,783 | $386.46 | | |
| FIRE1 | Fire & Rescue Dist #1 Camano GEN | 1.2502910536 | $1,050,783 | $1,050,783 | $1,313.78 | | |
| FIRE1BOND | Fire & Rescue Dist #1 Camano BOND | 0.1570001679 | $1,050,783 | $1,050,783 | $164.97 | | |
| CE | County Current Expense | 0.3708482477 | $1,050,783 | $1,050,783 | $389.68 | | |
| CR | County Roads | 0.4584763726 | $1,050,783 | $1,050,783 | $481.76 | | |
| LCIB | Library Sno-Isle BOND (Camano Island) | 0.0396325772 | $1,050,783 | $1,050,783 | $41.65 | | |
| LIB | Library Sno-Isle GEN | 0.3153421757 | $1,050,783 | $1,050,783 | $331.36 | | |
| SCH205_401 | School 205-401 Enrichment | 1.2698420524 | $1,050,783 | $1,050,783 | $1,334.33 | | |
| SCH205BOND | School 205-401 BOND | 0.9396497583 | $1,050,783 | $1,050,783 | $987.37 | | |
| ST | State School | 1.3035497053 | $1,050,783 | $1,050,783 | $1,369.75 | | |
| ST2 | State School Part 2 | 0.8169543533 | $1,050,783 | $1,050,783 | $858.44 | | |
| | Total Tax Rate: | 7.3209764117 | | | | | |
| | | | | Taxes w/Current Exemptions: | $7,692.76 | | |
| | | | | Taxes w/o Exemptions: | $7,692.76 | | |
Improvement / Building
| Improvement #1: | RESIDENTIAL | State Code: | Y | 2128.0 sqft | Value: | $425,783 |
| Bathrooms: | 1.75 | Bedrooms: | 2 | | Ceiling: | DRYWALL PAINTED | Cooling: | HEAT PUMP/CONV/V | | Exterior Wall/Cover: | WOOD SIDING | Floor Covering: | HARDWOOD/CARP 60-40 | | Floor Structure: | WOOD W/SUBFLOOR | Foundation: | CONCRETE | | Interior Finish: | DRYWALL PAINT | Plumbing Fixture Cnt: | 13 | | Roof Slope: | 4" IN 12" | Roof Structure/Cover: | CJ WOOD SHAKES |
|
| | Type | Description | Class CD | Sub Class CD | Year Built | Area |
| | BAS | BASE/MAIN FLOOR | 4 | 0 | 1974 | 1064.0 |
| | OP2 | OPEN PORCH W/STEPS | 4 | 0 | 1974 | 192.0 |
| | AGR | ATTACHED GARAGE | 4 | 0 | 1974 | 576.0 |
| | OWP | OPEN WOOD PORCH W/STEPS | 4 | 0 | 1974 | 432.0 |
| | OWP | OPEN WOOD PORCH W/STEPS | 4 | 0 | 1974 | 157.8 |
| | OWC | OPEN WOOD PORCH W/STEPS/ROOF/C | 4 | 0 | 1974 | 152.0 |
| | OWC | OPEN WOOD PORCH W/STEPS/ROOF/C | 4 | 0 | 1974 | 209.6 |
| | DWN | DOWNSTAIRS LIVING AREA | 4 | 0 | 1974 | 1064.0 |
Sketch
Property Image
Land
| 1 | MB | MEDIUM BANK | 0.1551 | 6756.16 | 50.00 | 0.00 | 1.00 | $625,000 | $0 |
Roll Value History
| 2026 | N/A | N/A | N/A | N/A | N/A |
| 2025 | $425,783 | $625,000 | $0 | $1,050,783 | $1,050,783 |
| 2024 | $430,899 | $625,000 | $0 | $1,055,899 | $1,055,899 |
| 2023 | $436,014 | $625,000 | $0 | $1,061,014 | $1,061,014 |
| 2022 | $383,239 | $650,000 | $0 | $1,033,239 | $1,033,239 |
| 2021 | $337,255 | $500,000 | $0 | $837,255 | $837,255 |
| 2020 | $328,518 | $400,000 | $0 | $728,518 | $728,518 |
| 2019 | $243,186 | $350,000 | $0 | $593,186 | $593,186 |
| 2018 | $243,891 | $350,000 | $0 | $593,891 | $593,891 |
| 2017 | $245,286 | $350,000 | $0 | $595,286 | $595,286 |
| 2016 | $238,725 | $350,000 | $0 | $588,725 | $588,725 |
| 2015 | $241,534 | $350,000 | $0 | $591,534 | $591,534 |
| 2014 | $244,342 | $350,000 | $0 | $594,342 | $594,342 |
| 2013 | $247,149 | $332,217 | $0 | $579,366 | $579,366 |
| 2012 | $249,957 | $332,217 | $0 | $582,174 | $582,174 |
| 2011 | $252,767 | $415,271 | $0 | $668,038 | $668,038 |
| 2010 | $256,579 | $415,271 | $0 | $671,850 | $671,850 |
| 2009 | $267,116 | $447,012 | $0 | $714,128 | $714,128 |
| 2008 | $269,942 | $461,764 | $0 | $731,706 | $731,706 |
| 2007 | $269,999 | $293,600 | $0 | $563,599 | $563,599 |
Deed and Sales History
| 1 | 08/25/2015 | WD | Warranty Deed | WARREN, CHARLES H / JEAN M | ANDERSON, GREGORY L | | | $595,000.00 | 21154 | 4385014 |
| 2 | 12/01/1995 | WD | Warranty Deed | JACOBS, MICHAEL A | WARREN, CHARLES H | | | $262,000.00 | 54339 | 95020051 |
| 3 | 07/01/1991 | WD | Warranty Deed | WANGSMO, LUCILLE O | JACOBS, MICHAEL A | | | $250,000.00 | 12697 | 91011529 |
| 4 | 07/01/1982 | PACD | Purchaser's Assignment | WANGSMO, ARNOLD C | WANGSMO, LUCILLE O | | | $0.00 | 59568 | 398319 |
| 5 | 01/01/1900 | OTHER | Other - Misc. Documents | Unknown | WANGSMO, ARNOLD C | | | $0.00 | 0 | 0 |
Payout Agreement
| No payout information available.. |