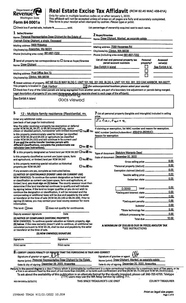
Property
Account |
| Property ID: | 316278 | Abbreviated Legal Description: | MADRONA BCH 1ST LOT 1 BLK 5 |
| Geographic ID: | S7440-01-05001-0 | Agent Code: | |
| Type: | Real | | |
| Tax Area: | 510 - APPRAISER-Stan/Cam Schl Dist, improved & 1 acre or less | Land Use Code | 11 |
| Open Space: | N | DFL | N |
| Historic Property: | N | Remodel Property: | N |
| Multi-Family Redevelopment: | N | | |
| Township: | | Section: | |
| Range: | |
Location |
| Address: | 898 EIGHTH ST CAMANO ISLAND, WA 98282 | Mapsco: | |
| Neighborhood: | North Camano | Map ID: | 574 |
| Neighborhood CD: | 06-C |
Owner |
| Name: | LINDA DEMETRE 2, LLC | Owner ID: | 305957 |
| Mailing Address: | 3190 HIDDEN SHORES LN CAMANO ISLAND, WA 98282 | % Ownership: | 100.0000000000% |
| | | Exemptions: | |
Taxes and Assessment Details
Values
| (+) Improvement Homesite Value: | + | $0 | |
| (+) Improvement Non-Homesite Value: | + | $77,724 | |
| (+) Land Homesite Value: | + | $0 | |
| (+) Land Non-Homesite Value: | + | $360,000 | |
| (+) Curr Use (HS): | + | $0 | $0 |
| (+) Curr Use (NHS): | + | $0 | $0 |
| | | -------------------------- | |
| (=) Market Value: | = | $437,724 | |
| (–) Productivity Loss: | – | $0 | |
| | | -------------------------- | |
| (=) Subtotal: | = | $437,724 | |
| (+) Senior Appraised Value: | + | $0 | |
| (+) Non-Senior Appraised Value: | + | $437,724 | |
| | | -------------------------- | |
| (=) Total Appraised Value: | = | $437,724 | |
| (–) Senior Exemption Loss: | – | $0 | |
| (–) Exemption Loss: | – | $0 | |
| | | -------------------------- | |
| (=) Taxable Value: | = | $437,724 | |
Taxing Jurisdiction
| Owner: | LINDA DEMETRE 2, LLC | | |
| % Ownership: | 100.0000000000% | | |
| Total Value: | $437,724 | | |
| Tax Area: | 510 - APPRAISER-Stan/Cam Schl Dist, improved & 1 acre or less |
| CF | Conservation Futures | 0.0316035091 | $437,724 | $437,724 | $13.83 | | |
| EMS1 | Fire & Rescue Dist #1 Camano GEN (EMS) | 0.3677864386 | $437,724 | $437,724 | $160.99 | | |
| FIRE1 | Fire & Rescue Dist #1 Camano GEN | 1.2502910536 | $437,724 | $437,724 | $547.28 | | |
| FIRE1BOND | Fire & Rescue Dist #1 Camano BOND | 0.1570001679 | $437,724 | $437,724 | $68.72 | | |
| CE | County Current Expense | 0.3708482477 | $437,724 | $437,724 | $162.33 | | |
| CR | County Roads | 0.4584763726 | $437,724 | $437,724 | $200.69 | | |
| LCIB | Library Sno-Isle BOND (Camano Island) | 0.0396325772 | $437,724 | $437,724 | $17.35 | | |
| LIB | Library Sno-Isle GEN | 0.3153421757 | $437,724 | $437,724 | $138.03 | | |
| SCH205_401 | School 205-401 Enrichment | 1.2698420524 | $437,724 | $437,724 | $555.84 | | |
| SCH205BOND | School 205-401 BOND | 0.9396497583 | $437,724 | $437,724 | $411.31 | | |
| ST | State School | 1.3035497053 | $437,724 | $437,724 | $570.59 | | |
| ST2 | State School Part 2 | 0.8169543533 | $437,724 | $437,724 | $357.60 | | |
| | Total Tax Rate: | 7.3209764117 | | | | | |
| | | | | Taxes w/Current Exemptions: | $3,204.56 | | |
| | | | | Taxes w/o Exemptions: | $3,204.56 | | |
Improvement / Building
| Improvement #1: | RESIDENTIAL | State Code: | Y | 967.4 sqft | Value: | $77,724 |
| Bathrooms: | 1 | Bedrooms: | 2 | | Ceiling: | PLYWOOD PAINTED | Exterior Wall/Cover: | PLY/HARDBOARD T-111 | | Floor Covering: | SOFTWOOD 100% | Floor Structure: | WOOD W/SUBFLOOR | | Foundation: | CONCRETE | Heating: | OIL HEATERS | | Interior Finish: | DRYWALL PAINT | Plumbing Fixture Cnt: | 7 | | Roof Slope: | 4" IN 12" | Roof Structure/Cover: | CJ ASPHALT |
|
| | Type | Description | Class CD | Sub Class CD | Year Built | Area |
| | BAS | BASE/MAIN FLOOR | 2 | 0 | 1925 | 631.4 |
| | DWN | DOWNSTAIRS LIVING AREA | 2 | 0 | 1925 | 336.0 |
| | OWP | OPEN WOOD PORCH W/STEPS | 2 | 0 | 1925 | 216.0 |
Sketch
Property Image
Land
| 1 | 12 | SQ (00000-06000) | 0.0000 | 0.00 | 0.00 | 0.00 | 1.00 | $360,000 | $0 |
Roll Value History
| 2026 | N/A | N/A | N/A | N/A | N/A |
| 2025 | $77,724 | $360,000 | $0 | $437,724 | $437,724 |
| 2024 | $79,441 | $360,000 | $0 | $439,441 | $439,441 |
| 2023 | $81,159 | $360,000 | $0 | $441,159 | $441,159 |
| 2022 | $75,049 | $310,000 | $0 | $385,049 | $385,049 |
| 2021 | $66,612 | $250,000 | $0 | $316,612 | $316,612 |
| 2020 | $65,415 | $210,000 | $0 | $275,415 | $275,415 |
| 2019 | $47,299 | $210,000 | $0 | $257,299 | $257,299 |
| 2018 | $47,529 | $180,000 | $0 | $227,529 | $227,529 |
| 2017 | $47,991 | $140,000 | $0 | $187,991 | $187,991 |
| 2016 | $34,634 | $130,000 | $0 | $164,634 | $164,634 |
| 2015 | $35,374 | $92,800 | $0 | $128,174 | $128,174 |
| 2014 | $36,260 | $92,800 | $0 | $129,060 | $129,060 |
| 2013 | $37,143 | $92,800 | $0 | $129,943 | $129,943 |
| 2012 | $38,027 | $92,800 | $0 | $130,827 | $130,827 |
| 2011 | $38,913 | $116,000 | $0 | $154,913 | $154,913 |
| 2010 | $42,113 | $116,000 | $0 | $158,113 | $158,113 |
| 2009 | $44,209 | $195,000 | $0 | $239,209 | $239,209 |
| 2008 | $45,091 | $195,000 | $0 | $240,091 | $240,091 |
| 2007 | $45,972 | $223,000 | $0 | $268,972 | $268,972 |
Deed and Sales History
| 1 | 08/23/2022 | TRUSTEED | Trustee's Deed | DEMETRE TRUSTEE, LINDA L | LINDA DEMETRE 2, LLC | | | $0.00 | 54503 | 4551061 |
| 2 | 05/17/2005 | 5 | DNU - Marriage License/Name Change | DEMETRE, VICTOR | DEMETRE TRUSTEE, LINDA L | | | $0.00 | 52792 | 4137594 |
| 3 | 11/01/1989 | WD | Warranty Deed | CAMERON, MAY H | DEMETRE, VICTOR | | | $45,000.00 | 95306 | 89017065 |
| 4 | 01/01/1900 | OTHER | Other - Misc. Documents | Unknown | CAMERON, MAY H | | | $0.00 | 0 | 0 |
Payout Agreement
| No payout information available.. |