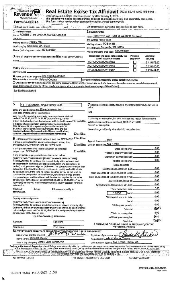
Property
Account |
| Property ID: | 316367 | Abbreviated Legal Description: | MADRONA BCH 1ST LOT 4 BLK 7 |
| Geographic ID: | S7440-01-07004-0 | Agent Code: | |
| Type: | Real | | |
| Tax Area: | 510 - APPRAISER-Stan/Cam Schl Dist, improved & 1 acre or less | Land Use Code | 11 |
| Open Space: | N | DFL | N |
| Historic Property: | N | Remodel Property: | N |
| Multi-Family Redevelopment: | N | | |
| Township: | | Section: | |
| Range: | |
Location |
| Address: | 260 N SUNSET DR CAMANO ISLAND, WA 98282 | Mapsco: | |
| Neighborhood: | North Camano | Map ID: | 574 |
| Neighborhood CD: | 06-C |
Owner |
| Name: | TEAL BEACH HOUSE LLC | Owner ID: | 315691 |
| Mailing Address: | 242 MILE HIGH DR CAMANO ISLAND, WA 98282 | % Ownership: | 100.0000000000% |
| | | Exemptions: | |
Taxes and Assessment Details
Values
| (+) Improvement Homesite Value: | + | $0 | |
| (+) Improvement Non-Homesite Value: | + | $76,174 | |
| (+) Land Homesite Value: | + | $0 | |
| (+) Land Non-Homesite Value: | + | $360,000 | |
| (+) Curr Use (HS): | + | $0 | $0 |
| (+) Curr Use (NHS): | + | $0 | $0 |
| | | -------------------------- | |
| (=) Market Value: | = | $436,174 | |
| (–) Productivity Loss: | – | $0 | |
| | | -------------------------- | |
| (=) Subtotal: | = | $436,174 | |
| (+) Senior Appraised Value: | + | $0 | |
| (+) Non-Senior Appraised Value: | + | $436,174 | |
| | | -------------------------- | |
| (=) Total Appraised Value: | = | $436,174 | |
| (–) Senior Exemption Loss: | – | $0 | |
| (–) Exemption Loss: | – | $0 | |
| | | -------------------------- | |
| (=) Taxable Value: | = | $436,174 | |
Taxing Jurisdiction
| Owner: | TEAL BEACH HOUSE LLC | | |
| % Ownership: | 100.0000000000% | | |
| Total Value: | $436,174 | | |
| Tax Area: | 510 - APPRAISER-Stan/Cam Schl Dist, improved & 1 acre or less |
| CF | Conservation Futures | 0.0316035091 | $436,174 | $436,174 | $13.78 | | |
| EMS1 | Fire & Rescue Dist #1 Camano GEN (EMS) | 0.3677864386 | $436,174 | $436,174 | $160.42 | | |
| FIRE1 | Fire & Rescue Dist #1 Camano GEN | 1.2502910536 | $436,174 | $436,174 | $545.34 | | |
| FIRE1BOND | Fire & Rescue Dist #1 Camano BOND | 0.1570001679 | $436,174 | $436,174 | $68.48 | | |
| CE | County Current Expense | 0.3708482477 | $436,174 | $436,174 | $161.75 | | |
| CR | County Roads | 0.4584763726 | $436,174 | $436,174 | $199.98 | | |
| LCIB | Library Sno-Isle BOND (Camano Island) | 0.0396325772 | $436,174 | $436,174 | $17.29 | | |
| LIB | Library Sno-Isle GEN | 0.3153421757 | $436,174 | $436,174 | $137.54 | | |
| SCH205_401 | School 205-401 Enrichment | 1.2698420524 | $436,174 | $436,174 | $553.87 | | |
| SCH205BOND | School 205-401 BOND | 0.9396497583 | $436,174 | $436,174 | $409.85 | | |
| ST | State School | 1.3035497053 | $436,174 | $436,174 | $568.57 | | |
| ST2 | State School Part 2 | 0.8169543533 | $436,174 | $436,174 | $356.33 | | |
| | Total Tax Rate: | 7.3209764117 | | | | | |
| | | | | Taxes w/Current Exemptions: | $3,193.20 | | |
| | | | | Taxes w/o Exemptions: | $3,193.20 | | |
Improvement / Building
| Improvement #1: | RESIDENTIAL | State Code: | Y | 323.0 sqft | Value: | $76,174 |
| Bathrooms: | 1 | Bedrooms: | 1 | | Ceiling: | TONGUE & GROOVE | Exterior Wall/Cover: | WOOD SIDING | | Floor Covering: | HARDWOOD 100% | Floor Structure: | WOOD W/SUBFLOOR | | Foundation: | PIERS/CONCRETE | Heating: | WALL HEAT ELECTRIC | | Interior Finish: | DRYWALL PAINT | Plumbing Fixture Cnt: | 5 | | Roof Slope: | FLAT | Roof Structure/Cover: | CJ COMP ROLL |
|
| | Type | Description | Class CD | Sub Class CD | Year Built | Area |
| | BAS | BASE/MAIN FLOOR | 3 | 0 | 1952 | 323.0 |
| | OWP | OPEN WOOD PORCH W/STEPS | 3 | 0 | 1952 | 252.0 |
| | UTY | STORAGE/UTILITY | 3 | 0 | 1952 | 160.0 |
Sketch
Property Image
Land
| 1 | 12 | SQ (00000-06000) | 0.0000 | 0.00 | 0.00 | 0.00 | 1.00 | $360,000 | $0 |
Roll Value History
| 2026 | N/A | N/A | N/A | N/A | N/A |
| 2025 | $76,174 | $360,000 | $0 | $436,174 | $436,174 |
| 2024 | $74,470 | $360,000 | $0 | $434,470 | $434,470 |
| 2023 | $75,421 | $360,000 | $0 | $435,421 | $435,421 |
| 2022 | $67,433 | $310,000 | $0 | $377,433 | $377,433 |
| 2021 | $59,386 | $250,000 | $0 | $309,386 | $309,386 |
| 2020 | $57,599 | $210,000 | $0 | $267,599 | $267,599 |
| 2019 | $40,172 | $210,000 | $0 | $250,172 | $250,172 |
| 2018 | $27,109 | $180,000 | $0 | $207,109 | $207,109 |
| 2017 | $27,312 | $130,000 | $0 | $157,312 | $157,312 |
| 2016 | $15,974 | $130,000 | $0 | $145,974 | $145,974 |
| 2015 | $15,974 | $92,800 | $0 | $108,774 | $108,774 |
| 2014 | $15,974 | $92,800 | $0 | $108,774 | $108,774 |
| 2013 | $15,974 | $92,800 | $0 | $108,774 | $108,774 |
| 2012 | $15,974 | $92,800 | $0 | $108,774 | $108,774 |
| 2011 | $15,974 | $116,000 | $0 | $131,974 | $131,974 |
| 2010 | $17,559 | $116,000 | $0 | $133,559 | $133,559 |
| 2009 | $17,931 | $195,000 | $0 | $212,931 | $212,931 |
| 2008 | $17,983 | $195,000 | $0 | $212,983 | $212,983 |
| 2007 | $18,379 | $223,000 | $0 | $241,379 | $241,379 |
Deed and Sales History
| 1 | 03/07/2025 | QCD | Quit Claim Deed | FOGELSONGER, TODD M | TEAL BEACH HOUSE LLC | | | $0.00 | 62751 | 4583011 |
| 2 | 07/24/2024 | WD | Warranty Deed | MADRONA VACATION RENTALS LLC | FOGELSONGER, TODD M | | | $450,000.00 | 60790 | 4575243 |
| 3 | 06/13/2023 | QCD | Quit Claim Deed | JONES, KERRI GILLIAN | MADRONA VACATION RENTALS LLC | | | $0.00 | 57146 | 4561657 |
| 4 | 06/13/2023 | QCD | Quit Claim Deed | JONES, KERRI GILLIAN | JONES, KERRI GILLIAN | | | $200,000.00 | 57143 | 4561633 |
| 5 | 05/31/2023 | WD | Warranty Deed | MASON, STEPHANIE MICHELE | JONES, KERRI GILLIAN | | | $400,000.00 | 56909 | 4560645 |
| 6 | 05/15/2019 | WD | Warranty Deed | BATES, ALEXANDER C | MASON, STEPHANIE MICHELE | | | $271,000.00 | 38652 | 4463980 |
| 7 | 09/20/2018 | QCD | Quit Claim Deed | BATES, ALEXANDER C | BATES, ALEXANDER C | | | $0.00 | 36029 | 4452271 |
| 8 | 06/15/2018 | WD | Warranty Deed | KUTROVICS, CSABA | BATES, ALEXANDER C | | | $259,000.00 | 34534 | 4446192 |
| 9 | 10/21/2016 | WD | Warranty Deed | OLSEN, LAWRENCE R | KUTROVICS, CSABA | | | $134,000.00 | 26695 | 4410267 |
| 10 | 09/12/2016 | PRD | Personal Representatives Deed | OLSEN, PAULINE K | OLSEN, LAWRENCE R | | | $0.00 | 26120 | 4407315 |
| 11 | 07/25/2008 | OTHER | Other - Misc. Documents | OLSEN, WALTER R | OLSEN, PAULINE K | | | $0.00 | 80847 | 0 |
Payout Agreement
| No payout information available.. |