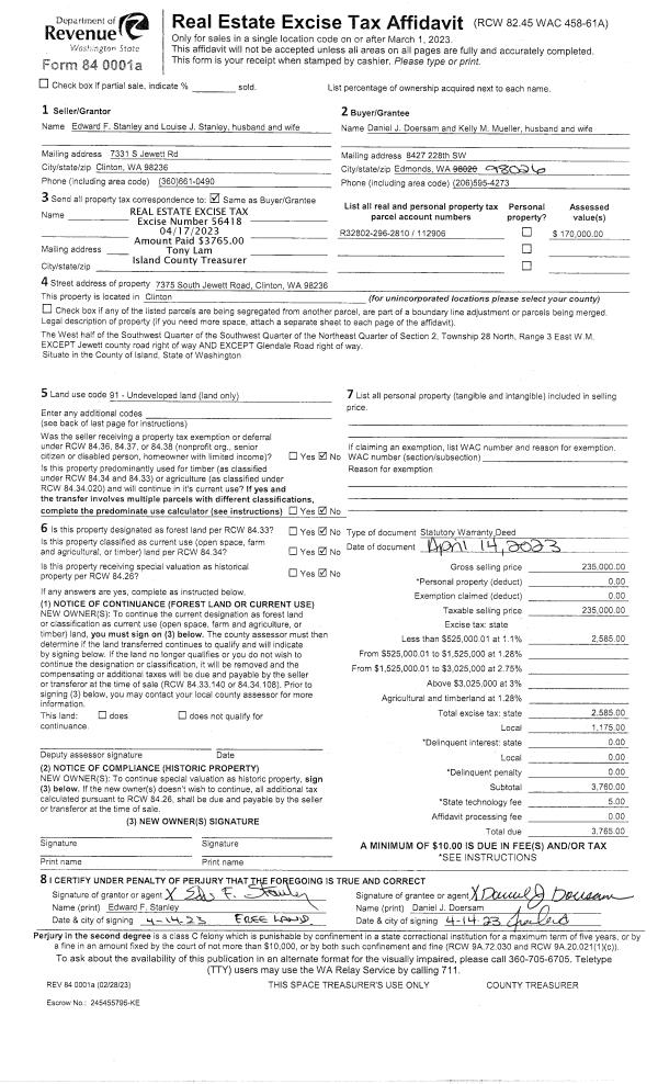
Property
Account |
| Property ID: | 316438 | Abbreviated Legal Description: | MADRONA BCH 1ST LOTS 3 & 4 BLK 9 |
| Geographic ID: | S7440-01-09003-0 | Agent Code: | |
| Type: | Real | | |
| Tax Area: | 510 - APPRAISER-Stan/Cam Schl Dist, improved & 1 acre or less | Land Use Code | 11 |
| Open Space: | N | DFL | N |
| Historic Property: | N | Remodel Property: | N |
| Multi-Family Redevelopment: | N | | |
| Township: | | Section: | |
| Range: | |
Location |
| Address: | 220 N SUNSET DR CAMANO ISLAND, WA 98282 | Mapsco: | |
| Neighborhood: | North Camano | Map ID: | 574 |
| Neighborhood CD: | 06-C |
Owner |
| Name: | KAUTZMAN TTEE, JEROME M | Owner ID: | 307028 |
| Mailing Address: | GAIL H. KAUTZMAN TTEE 1412 144TH ST SE MILL CREEK, WA 98012 | % Ownership: | 100.0000000000% |
| | | Exemptions: | |
Taxes and Assessment Details
Values
| (+) Improvement Homesite Value: | + | $0 | |
| (+) Improvement Non-Homesite Value: | + | $214,197 | |
| (+) Land Homesite Value: | + | $0 | |
| (+) Land Non-Homesite Value: | + | $260,000 | |
| (+) Curr Use (HS): | + | $0 | $0 |
| (+) Curr Use (NHS): | + | $0 | $0 |
| | | -------------------------- | |
| (=) Market Value: | = | $474,197 | |
| (–) Productivity Loss: | – | $0 | |
| | | -------------------------- | |
| (=) Subtotal: | = | $474,197 | |
| (+) Senior Appraised Value: | + | $0 | |
| (+) Non-Senior Appraised Value: | + | $474,197 | |
| | | -------------------------- | |
| (=) Total Appraised Value: | = | $474,197 | |
| (–) Senior Exemption Loss: | – | $0 | |
| (–) Exemption Loss: | – | $0 | |
| | | -------------------------- | |
| (=) Taxable Value: | = | $474,197 | |
Taxing Jurisdiction
| Owner: | KAUTZMAN TTEE, JEROME M | | |
| % Ownership: | 100.0000000000% | | |
| Total Value: | $474,197 | | |
| Tax Area: | 510 - APPRAISER-Stan/Cam Schl Dist, improved & 1 acre or less |
| CF | Conservation Futures | 0.0316035091 | $474,197 | $474,197 | $14.99 | | |
| EMS1 | Fire & Rescue Dist #1 Camano GEN (EMS) | 0.3677864386 | $474,197 | $474,197 | $174.40 | | |
| FIRE1 | Fire & Rescue Dist #1 Camano GEN | 1.2502910536 | $474,197 | $474,197 | $592.88 | | |
| FIRE1BOND | Fire & Rescue Dist #1 Camano BOND | 0.1570001679 | $474,197 | $474,197 | $74.45 | | |
| CE | County Current Expense | 0.3708482477 | $474,197 | $474,197 | $175.86 | | |
| CR | County Roads | 0.4584763726 | $474,197 | $474,197 | $217.41 | | |
| LCIB | Library Sno-Isle BOND (Camano Island) | 0.0396325772 | $474,197 | $474,197 | $18.79 | | |
| LIB | Library Sno-Isle GEN | 0.3153421757 | $474,197 | $474,197 | $149.53 | | |
| SCH205_401 | School 205-401 Enrichment | 1.2698420524 | $474,197 | $474,197 | $602.16 | | |
| SCH205BOND | School 205-401 BOND | 0.9396497583 | $474,197 | $474,197 | $445.58 | | |
| ST | State School | 1.3035497053 | $474,197 | $474,197 | $618.14 | | |
| ST2 | State School Part 2 | 0.8169543533 | $474,197 | $474,197 | $387.40 | | |
| | Total Tax Rate: | 7.3209764117 | | | | | |
| | | | | Taxes w/Current Exemptions: | $3,471.59 | | |
| | | | | Taxes w/o Exemptions: | $3,471.59 | | |
Improvement / Building
| Improvement #1: | RESIDENTIAL | State Code: | Y | 1660.0 sqft | Value: | $214,197 |
| Bathrooms: | 1 | Bedrooms: | 2 | | Ceiling: | DRYWALL PAINTED | Exterior Wall/Cover: | PLY/HARDBOARD T-111 | | Floor Covering: | CARPET/VINYL 60-40 | Floor Structure: | WOOD W/SUBFLOOR | | Foundation: | CONCRETE | Heating: | WALL HEAT ELECTRIC | | Interior Finish: | DRYWALL PAINT | Plumbing Fixture Cnt: | 6 | | Roof Slope: | 5" IN 12" | Roof Structure/Cover: | BEAM ASPHALT |
|
| | Type | Description | Class CD | Sub Class CD | Year Built | Area |
| | BAS | BASE/MAIN FLOOR | 3 | 0 | 1951 | 1340.0 |
| | DWN | DOWNSTAIRS LIVING AREA | 3 | 0 | 1951 | 320.0 |
| | BGR | BASEMENT GARAGE | 3 | 0 | 1951 | 1020.0 |
| | OWP | OPEN WOOD PORCH W/STEPS | 3 | 0 | 1951 | 340.1 |
| | OWR | OPEN WOOD PORCH W/STEPS/ROOF | 3 | 0 | 1951 | 128.0 |
| | UTY | STORAGE/UTILITY | 3 | 0 | 1951 | 196.0 |
Sketch
Property Image
Land
| 1 | 13 | SQ (06001-08000) | 0.0000 | 0.00 | 0.00 | 0.00 | 1.00 | $260,000 | $0 |
Roll Value History
| 2026 | N/A | N/A | N/A | N/A | N/A |
| 2025 | $214,197 | $260,000 | $0 | $474,197 | $474,197 |
| 2024 | $217,586 | $260,000 | $0 | $477,586 | $477,586 |
| 2023 | $220,972 | $260,000 | $0 | $480,972 | $480,972 |
| 2022 | $197,033 | $240,000 | $0 | $437,033 | $437,033 |
| 2021 | $175,745 | $200,000 | $0 | $375,745 | $375,745 |
| 2020 | $172,102 | $160,000 | $0 | $332,102 | $332,102 |
| 2019 | $124,948 | $190,000 | $0 | $314,948 | $314,948 |
| 2018 | $125,413 | $180,000 | $0 | $305,413 | $305,413 |
| 2017 | $126,342 | $120,000 | $0 | $246,342 | $246,342 |
| 2016 | $109,875 | $110,000 | $0 | $219,875 | $219,875 |
| 2015 | $111,608 | $92,800 | $0 | $204,408 | $204,408 |
| 2014 | $113,534 | $92,800 | $0 | $206,334 | $206,334 |
| 2013 | $115,459 | $92,800 | $0 | $208,259 | $208,259 |
| 2012 | $117,381 | $92,800 | $0 | $210,181 | $210,181 |
| 2011 | $119,307 | $116,000 | $0 | $235,307 | $235,307 |
| 2010 | $124,642 | $116,000 | $0 | $240,642 | $240,642 |
| 2009 | $130,195 | $148,000 | $0 | $278,195 | $278,195 |
| 2008 | $130,195 | $148,000 | $0 | $278,195 | $278,195 |
| 2007 | $132,021 | $148,000 | $0 | $280,021 | $280,021 |
Deed and Sales History
| 1 | 12/14/2022 | QCD | Quit Claim Deed | KAUTZMAN, JERRY | KAUTZMAN TTEE, JEROME M | | | $0.00 | 55461 | 4555122 |
| 2 | 07/29/2011 | BARGSLD | Bargain And Sale Deed | SUNDSTROM, EDWIN A | KAUTZMAN, JERRY | | | $206,000.00 | 5167 | 4299202 |
| 3 | 09/01/1982 | TRUSTEED | Trustee's Deed | AALMO, JOHN | SUNDSTROM, EDWIN A | | | $45,000.00 | 22274 | 400932 |
| 4 | 01/01/1900 | OTHER | Other - Misc. Documents | Unknown | AALMO, JOHN | | | $0.00 | 0 | 0 |
Payout Agreement
| No payout information available.. |