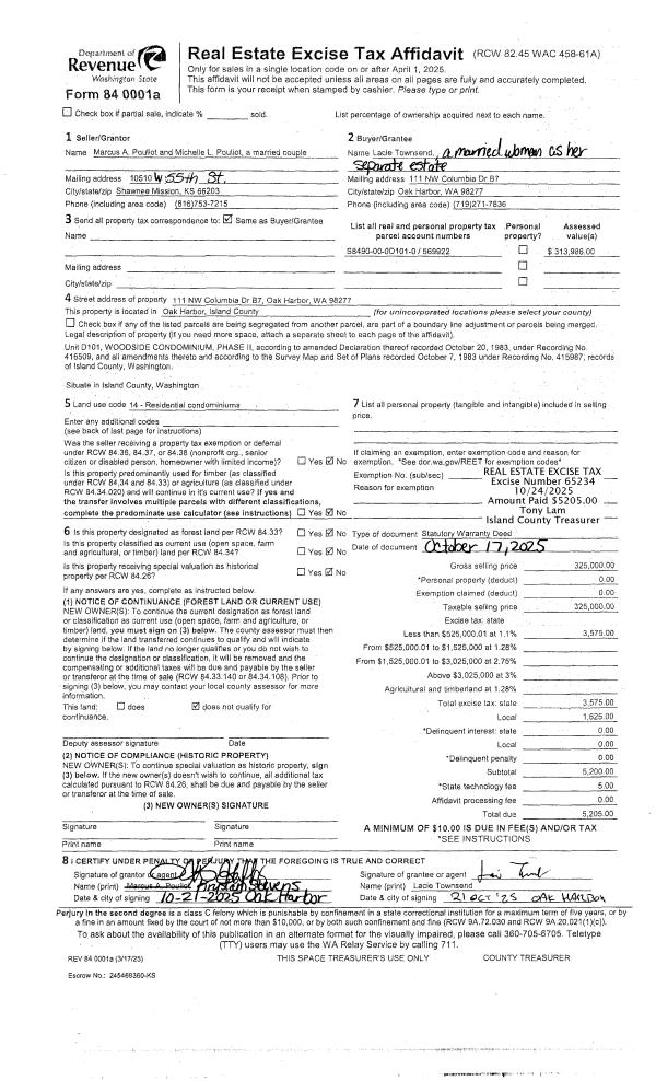
Property
Account |
| Property ID: | 316474 | Abbreviated Legal Description: | MADRONA BCH 1ST LOT 8 BLK 9 |
| Geographic ID: | S7440-01-09008-0 | Agent Code: | |
| Type: | Real | | |
| Tax Area: | 510 - APPRAISER-Stan/Cam Schl Dist, improved & 1 acre or less | Land Use Code | 11 |
| Open Space: | N | DFL | N |
| Historic Property: | N | Remodel Property: | N |
| Multi-Family Redevelopment: | N | | |
| Township: | | Section: | |
| Range: | |
Location |
| Address: | 232 N SUNSET DR CAMANO ISLAND, WA 98282 | Mapsco: | |
| Neighborhood: | North Camano | Map ID: | 574 |
| Neighborhood CD: | 06-C |
Owner |
| Name: | TRONOFF, CHARLES H | Owner ID: | 283526 |
| Mailing Address: | INGRID U SCHWAB 232 N SUNSET DR CAMANO ISLAND, WA 98282 | % Ownership: | 100.0000000000% |
| | | Exemptions: | |
Taxes and Assessment Details
Values
| (+) Improvement Homesite Value: | + | $0 | |
| (+) Improvement Non-Homesite Value: | + | $159,436 | |
| (+) Land Homesite Value: | + | $0 | |
| (+) Land Non-Homesite Value: | + | $260,000 | |
| (+) Curr Use (HS): | + | $0 | $0 |
| (+) Curr Use (NHS): | + | $0 | $0 |
| | | -------------------------- | |
| (=) Market Value: | = | $419,436 | |
| (–) Productivity Loss: | – | $0 | |
| | | -------------------------- | |
| (=) Subtotal: | = | $419,436 | |
| (+) Senior Appraised Value: | + | $0 | |
| (+) Non-Senior Appraised Value: | + | $419,436 | |
| | | -------------------------- | |
| (=) Total Appraised Value: | = | $419,436 | |
| (–) Senior Exemption Loss: | – | $0 | |
| (–) Exemption Loss: | – | $0 | |
| | | -------------------------- | |
| (=) Taxable Value: | = | $419,436 | |
Taxing Jurisdiction
| Owner: | TRONOFF, CHARLES H | | |
| % Ownership: | 100.0000000000% | | |
| Total Value: | $419,436 | | |
| Tax Area: | 510 - APPRAISER-Stan/Cam Schl Dist, improved & 1 acre or less |
| CF | Conservation Futures | 0.0316035091 | $419,436 | $419,436 | $13.26 | | |
| EMS1 | Fire & Rescue Dist #1 Camano GEN (EMS) | 0.3677864386 | $419,436 | $419,436 | $154.26 | | |
| FIRE1 | Fire & Rescue Dist #1 Camano GEN | 1.2502910536 | $419,436 | $419,436 | $524.42 | | |
| FIRE1BOND | Fire & Rescue Dist #1 Camano BOND | 0.1570001679 | $419,436 | $419,436 | $65.85 | | |
| CE | County Current Expense | 0.3708482477 | $419,436 | $419,436 | $155.55 | | |
| CR | County Roads | 0.4584763726 | $419,436 | $419,436 | $192.30 | | |
| LCIB | Library Sno-Isle BOND (Camano Island) | 0.0396325772 | $419,436 | $419,436 | $16.62 | | |
| LIB | Library Sno-Isle GEN | 0.3153421757 | $419,436 | $419,436 | $132.27 | | |
| SCH205_401 | School 205-401 Enrichment | 1.2698420524 | $419,436 | $419,436 | $532.62 | | |
| SCH205BOND | School 205-401 BOND | 0.9396497583 | $419,436 | $419,436 | $394.12 | | |
| ST | State School | 1.3035497053 | $419,436 | $419,436 | $546.76 | | |
| ST2 | State School Part 2 | 0.8169543533 | $419,436 | $419,436 | $342.66 | | |
| | Total Tax Rate: | 7.3209764117 | | | | | |
| | | | | Taxes w/Current Exemptions: | $3,070.69 | | |
| | | | | Taxes w/o Exemptions: | $3,070.69 | | |
Improvement / Building
| Improvement #1: | RESIDENTIAL | State Code: | Y | 1352.0 sqft | Value: | $159,436 |
| Bathrooms: | 1 | Bedrooms: | 1 | | Ceiling: | ACOUSTIC FURRED | Exterior Wall/Cover: | VINYL | | Floor Covering: | VINYL 100% | Floor Structure: | WOOD W/SUBFLOOR | | Foundation: | CONCRETE | Heating: | BASEBOARD ELECTRIC | | Interior Finish: | DRYWALL PAINT | Plumbing Fixture Cnt: | 6 | | Roof Slope: | 3" IN 12" | Roof Structure/Cover: | CJ ASPHALT |
|
| | Type | Description | Class CD | Sub Class CD | Year Built | Area |
| | BAS | BASE/MAIN FLOOR | 3 | 0 | 1929 | 676.0 |
| | DWN | DOWNSTAIRS LIVING AREA | 3 | 0 | 1929 | 676.0 |
| | OWP | OPEN WOOD PORCH W/STEPS | 3 | 0 | 1929 | 270.0 |
| | OWP | OPEN WOOD PORCH W/STEPS | 3 | 0 | 1929 | 48.0 |
Sketch
Property Image
Land
| 1 | 12 | SQ (00000-06000) | 0.0000 | 0.00 | 0.00 | 0.00 | 1.00 | $260,000 | $0 |
Roll Value History
| 2026 | N/A | N/A | N/A | N/A | N/A |
| 2025 | $159,436 | $260,000 | $0 | $419,436 | $419,436 |
| 2024 | $165,213 | $260,000 | $0 | $425,213 | $425,213 |
| 2023 | $167,566 | $260,000 | $0 | $427,566 | $427,566 |
| 2022 | $157,161 | $240,000 | $0 | $397,161 | $397,161 |
| 2021 | $142,081 | $200,000 | $0 | $342,081 | $342,081 |
| 2020 | $138,369 | $160,000 | $0 | $298,369 | $298,369 |
| 2019 | $96,933 | $170,000 | $0 | $266,933 | $266,933 |
| 2018 | $97,265 | $140,000 | $0 | $237,265 | $237,265 |
| 2017 | $67,601 | $130,000 | $0 | $197,601 | $197,601 |
| 2016 | $36,068 | $110,000 | $0 | $146,068 | $146,068 |
| 2015 | $37,042 | $92,800 | $0 | $129,842 | $129,842 |
| 2014 | $38,018 | $92,800 | $0 | $130,818 | $130,818 |
| 2013 | $38,992 | $92,800 | $0 | $131,792 | $131,792 |
| 2012 | $39,967 | $92,800 | $0 | $132,767 | $132,767 |
| 2011 | $40,942 | $116,000 | $0 | $156,942 | $156,942 |
| 2010 | $45,796 | $116,000 | $0 | $161,796 | $161,796 |
| 2009 | $48,062 | $148,000 | $0 | $196,062 | $196,062 |
| 2008 | $49,016 | $148,000 | $0 | $197,016 | $197,016 |
| 2007 | $49,969 | $148,000 | $0 | $197,969 | $197,969 |
Deed and Sales History
| 1 | 07/31/2025 | WD | Warranty Deed | TRONOFF, CHARLES H | WASELL, AMY | | | $515,000.00 | 64398 | 4589249 |
| 2 | 01/08/2018 | WD | Warranty Deed | LINDA DEMETRE, LLC | TRONOFF, CHARLES H | | | $270,000.00 | 32554 | 4437185 |
| 3 | 09/14/2016 | QCD | Quit Claim Deed | DEMETRE, LINDA | LINDA DEMETRE, LLC | | | $0.00 | 27318 | 4413304 |
| 4 | 12/10/2012 | ESTSEPPROP | Establish Separate Property | DEMETRE, LINDA | DEMETRE, LINDA | | | $0.00 | 9765 | 4329223 |
| 5 | 12/10/2012 | WD | Warranty Deed | JOHNSON, LOUISE MAY | DEMETRE, LINDA | | | $115,000.00 | 9764 | 4329222 |
| 6 | 09/01/1997 | OTHER | Other - Misc. Documents | JOHNSON, CAROLL J | JOHNSON, LOUISE M | | | $0.00 | 67590 | 96018981 |
| 7 | 01/01/1900 | OTHER | Other - Misc. Documents | Unknown | JOHNSON, CAROLL J | | | $0.00 | 0 | 0 |
Payout Agreement
| No payout information available.. |