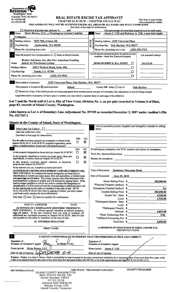
Property
Account |
| Property ID: | 316615 | Abbreviated Legal Description: | MADRONA BCH 1ST N24' LOT 11 BLK 10 |
| Geographic ID: | S7440-01-10011-0 | Agent Code: | |
| Type: | Real | | |
| Tax Area: | 510 - APPRAISER-Stan/Cam Schl Dist, improved & 1 acre or less | Land Use Code | 11 |
| Open Space: | N | DFL | N |
| Historic Property: | N | Remodel Property: | N |
| Multi-Family Redevelopment: | N | | |
| Township: | | Section: | |
| Range: | |
Location |
| Address: | 193 MAPLE ST CAMANO ISLAND, WA 98282 | Mapsco: | |
| Neighborhood: | North Camano | Map ID: | 573 |
| Neighborhood CD: | 06-C |
Owner |
| Name: | DAVIS, CHERYLL | Owner ID: | 284189 |
| Mailing Address: | 193 MAPLE STREET CAMANO ISLAND, WA 98282 | % Ownership: | 100.0000000000% |
| | | Exemptions: | |
Taxes and Assessment Details
Values
| (+) Improvement Homesite Value: | + | $0 | |
| (+) Improvement Non-Homesite Value: | + | $70,239 | |
| (+) Land Homesite Value: | + | $0 | |
| (+) Land Non-Homesite Value: | + | $260,000 | |
| (+) Curr Use (HS): | + | $0 | $0 |
| (+) Curr Use (NHS): | + | $0 | $0 |
| | | -------------------------- | |
| (=) Market Value: | = | $330,239 | |
| (–) Productivity Loss: | – | $0 | |
| | | -------------------------- | |
| (=) Subtotal: | = | $330,239 | |
| (+) Senior Appraised Value: | + | $0 | |
| (+) Non-Senior Appraised Value: | + | $330,239 | |
| | | -------------------------- | |
| (=) Total Appraised Value: | = | $330,239 | |
| (–) Senior Exemption Loss: | – | $0 | |
| (–) Exemption Loss: | – | $0 | |
| | | -------------------------- | |
| (=) Taxable Value: | = | $330,239 | |
Taxing Jurisdiction
| Owner: | DAVIS, CHERYLL | | |
| % Ownership: | 100.0000000000% | | |
| Total Value: | $330,239 | | |
| Tax Area: | 510 - APPRAISER-Stan/Cam Schl Dist, improved & 1 acre or less |
| CF | Conservation Futures | 0.0316035091 | $330,239 | $330,239 | $10.44 | | |
| EMS1 | Fire & Rescue Dist #1 Camano GEN (EMS) | 0.3677864386 | $330,239 | $330,239 | $121.46 | | |
| FIRE1 | Fire & Rescue Dist #1 Camano GEN | 1.2502910536 | $330,239 | $330,239 | $412.89 | | |
| FIRE1BOND | Fire & Rescue Dist #1 Camano BOND | 0.1570001679 | $330,239 | $330,239 | $51.85 | | |
| CE | County Current Expense | 0.3708482477 | $330,239 | $330,239 | $122.47 | | |
| CR | County Roads | 0.4584763726 | $330,239 | $330,239 | $151.41 | | |
| LCIB | Library Sno-Isle BOND (Camano Island) | 0.0396325772 | $330,239 | $330,239 | $13.09 | | |
| LIB | Library Sno-Isle GEN | 0.3153421757 | $330,239 | $330,239 | $104.14 | | |
| SCH205_401 | School 205-401 Enrichment | 1.2698420524 | $330,239 | $330,239 | $419.35 | | |
| SCH205BOND | School 205-401 BOND | 0.9396497583 | $330,239 | $330,239 | $310.31 | | |
| ST | State School | 1.3035497053 | $330,239 | $330,239 | $430.48 | | |
| ST2 | State School Part 2 | 0.8169543533 | $330,239 | $330,239 | $269.79 | | |
| | Total Tax Rate: | 7.3209764117 | | | | | |
| | | | | Taxes w/Current Exemptions: | $2,417.68 | | |
| | | | | Taxes w/o Exemptions: | $2,417.68 | | |
Improvement / Building
| Improvement #1: | RESIDENTIAL | State Code: | Y | 648.0 sqft | Value: | $70,239 |
| Bathrooms: | 1 | Bedrooms: | 1 | | Ceiling: | DRYWALL PAINTED | Exterior Wall/Cover: | WOOD SIDING | | Floor Covering: | CARPET 100% | Floor Structure: | WOOD W/SUBFLOOR | | Foundation: | WOOD BLOCKS | Heating: | BASEBOARD ELECTRIC | | Interior Finish: | DRYWALL PAINT | Plumbing Fixture Cnt: | 5 | | Roof Slope: | 3" IN 12" | Roof Structure/Cover: | CJ ASPHALT |
|
| | Type | Description | Class CD | Sub Class CD | Year Built | Area |
| | BAS | BASE/MAIN FLOOR | 3 | 0 | 1947 | 648.0 |
| | UTY | STORAGE/UTILITY | 3 | 0 | 1947 | 176.0 |
| | OWP | OPEN WOOD PORCH W/STEPS | 3 | 0 | 1947 | 108.0 |
Sketch
Property Image
Land
| 1 | 12 | SQ (00000-06000) | 0.0000 | 0.00 | 0.00 | 0.00 | 1.00 | $260,000 | $0 |
Roll Value History
| 2026 | N/A | N/A | N/A | N/A | N/A |
| 2025 | $70,239 | $260,000 | $0 | $330,239 | $330,239 |
| 2024 | $73,254 | $260,000 | $0 | $333,254 | $333,254 |
| 2023 | $74,712 | $260,000 | $0 | $334,712 | $334,712 |
| 2022 | $56,410 | $240,000 | $0 | $296,410 | $296,410 |
| 2021 | $49,990 | $200,000 | $0 | $249,990 | $249,990 |
| 2020 | $48,941 | $160,000 | $0 | $208,941 | $208,941 |
| 2019 | $34,998 | $100,000 | $0 | $134,998 | $134,998 |
| 2018 | $35,156 | $100,000 | $0 | $135,156 | $135,156 |
| 2017 | $35,473 | $120,000 | $0 | $155,473 | $155,473 |
| 2016 | $35,960 | $90,000 | $0 | $125,960 | $125,960 |
| 2015 | $36,665 | $66,400 | $0 | $103,065 | $103,065 |
| 2014 | $37,370 | $66,400 | $0 | $103,770 | $103,770 |
| 2013 | $38,075 | $66,400 | $0 | $104,475 | $104,475 |
| 2012 | $38,780 | $66,400 | $0 | $105,180 | $105,180 |
| 2011 | $39,485 | $83,000 | $0 | $122,485 | $122,485 |
| 2010 | $41,609 | $83,000 | $0 | $124,609 | $124,609 |
| 2009 | $43,550 | $100,000 | $0 | $143,550 | $143,550 |
| 2008 | $44,343 | $100,000 | $0 | $144,343 | $144,343 |
| 2007 | $45,180 | $100,000 | $0 | $145,180 | $145,180 |
Deed and Sales History
| 1 | 03/03/2018 | QCD | Quit Claim Deed | DAVIS JTWROS, CHERYLL | DAVIS, CHERYLL | | | $0.00 | 33241 | 4440525 |
| 2 | 05/15/2017 | WD | Warranty Deed | BRILLA, PAUL M | DAVIS JTWROS, CHERYLL | | | $130,000.00 | 29317 | 4422655 |
| 3 | 12/08/2003 | WD | Warranty Deed | CONNELLY, STEVEN M | BRILLA, PAUL M | | | $92,500.00 | 35526 | 4085464 |
| 4 | 08/01/1986 | WD | Warranty Deed | FORD, KITTIE E | CONNELLY, STEVEN M | | | $27,000.00 | 62297 | 86010532 |
| 5 | 06/01/1980 | TRUSTEED | Trustee's Deed | SCHMIDT, DAMON D | FORD, KITTIE E | | | $17,500.00 | 2120 | 370340 |
| 6 | 01/01/1900 | OTHER | Other - Misc. Documents | Unknown | SCHMIDT, DAMON D | | | $0.00 | 0 | 0 |
Payout Agreement
| No payout information available.. |