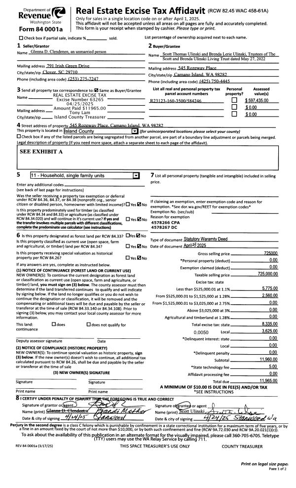
Property
Account |
| Property ID: | 317295 | Abbreviated Legal Description: | MADRONA BCH 2ND LOT 53 |
| Geographic ID: | S7440-02-00053-0 | Agent Code: | |
| Type: | Real | | |
| Tax Area: | 510 - APPRAISER-Stan/Cam Schl Dist, improved & 1 acre or less | Land Use Code | 11 |
| Open Space: | N | DFL | N |
| Historic Property: | N | Remodel Property: | N |
| Multi-Family Redevelopment: | N | | |
| Township: | | Section: | |
| Range: | |
Location |
| Address: | 217 TARRAGON AVE CAMANO ISLAND, WA 98282 | Mapsco: | |
| Neighborhood: | North Camano | Map ID: | 574 |
| Neighborhood CD: | 06-C |
Owner |
| Name: | JOHANSON, KRISTIN L | Owner ID: | 313839 |
| Mailing Address: | 217 NORTH TARRAGON AVE CAMANO ISLAND, WA 98282 | % Ownership: | 100.0000000000% |
| | | Exemptions: | |
Taxes and Assessment Details
Values
| (+) Improvement Homesite Value: | + | $0 | |
| (+) Improvement Non-Homesite Value: | + | $378,445 | |
| (+) Land Homesite Value: | + | $0 | |
| (+) Land Non-Homesite Value: | + | $260,000 | |
| (+) Curr Use (HS): | + | $0 | $0 |
| (+) Curr Use (NHS): | + | $0 | $0 |
| | | -------------------------- | |
| (=) Market Value: | = | $638,445 | |
| (–) Productivity Loss: | – | $0 | |
| | | -------------------------- | |
| (=) Subtotal: | = | $638,445 | |
| (+) Senior Appraised Value: | + | $0 | |
| (+) Non-Senior Appraised Value: | + | $638,445 | |
| | | -------------------------- | |
| (=) Total Appraised Value: | = | $638,445 | |
| (–) Senior Exemption Loss: | – | $0 | |
| (–) Exemption Loss: | – | $0 | |
| | | -------------------------- | |
| (=) Taxable Value: | = | $638,445 | |
Taxing Jurisdiction
| Owner: | JOHANSON, KRISTIN L | | |
| % Ownership: | 100.0000000000% | | |
| Total Value: | $638,445 | | |
| Tax Area: | 510 - APPRAISER-Stan/Cam Schl Dist, improved & 1 acre or less |
| CF | Conservation Futures | 0.0316035091 | $638,445 | $638,445 | $20.18 | | |
| EMS1 | Fire & Rescue Dist #1 Camano GEN (EMS) | 0.3677864386 | $638,445 | $638,445 | $234.81 | | |
| FIRE1 | Fire & Rescue Dist #1 Camano GEN | 1.2502910536 | $638,445 | $638,445 | $798.24 | | |
| FIRE1BOND | Fire & Rescue Dist #1 Camano BOND | 0.1570001679 | $638,445 | $638,445 | $100.24 | | |
| CE | County Current Expense | 0.3708482477 | $638,445 | $638,445 | $236.77 | | |
| CR | County Roads | 0.4584763726 | $638,445 | $638,445 | $292.71 | | |
| LCIB | Library Sno-Isle BOND (Camano Island) | 0.0396325772 | $638,445 | $638,445 | $25.30 | | |
| LIB | Library Sno-Isle GEN | 0.3153421757 | $638,445 | $638,445 | $201.33 | | |
| SCH205_401 | School 205-401 Enrichment | 1.2698420524 | $638,445 | $638,445 | $810.72 | | |
| SCH205BOND | School 205-401 BOND | 0.9396497583 | $638,445 | $638,445 | $599.91 | | |
| ST | State School | 1.3035497053 | $638,445 | $638,445 | $832.24 | | |
| ST2 | State School Part 2 | 0.8169543533 | $638,445 | $638,445 | $521.58 | | |
| | Total Tax Rate: | 7.3209764117 | | | | | |
| | | | | Taxes w/Current Exemptions: | $4,674.03 | | |
| | | | | Taxes w/o Exemptions: | $4,674.03 | | |
Improvement / Building
| Improvement #1: | RESIDENTIAL | State Code: | Y | 1606.2 sqft | Value: | $378,445 |
| Bathrooms: | 2.5 | Bedrooms: | 2 | | Ceiling: | DRYWALL PAINTED | Exterior Wall/Cover: | CEMENT FIBER | | Floor Covering: | CARPET/VINYL 60-40 | Floor Structure: | WOOD W/SUBFLOOR | | Foundation: | CONCRETE | Heating: | FHA ELECTRIC | | Interior Finish: | DRYWALL PAINT | Plumbing Fixture Cnt: | 13 | | Roof Slope: | 6" IN 12" | Roof Structure/Cover: | CJ ASPHALT |
|
| | Type | Description | Class CD | Sub Class CD | Year Built | Area |
| | BAS | BASE/MAIN FLOOR | 4 | 0 | 2019 | 590.0 |
| | UPS | UPPER STORY | 4 | 0 | 2019 | 1016.2 |
| | AGR | ATTACHED GARAGE | 4 | 0 | 2019 | 391.0 |
| | OWR | OPEN WOOD PORCH W/STEPS/ROOF | 4 | 0 | 2019 | 137.6 |
| | OP4 | OPEN PORCH W/CEILING-ROOF | 4 | 0 | 2019 | 37.8 |
| | OP2 | OPEN PORCH W/STEPS | 4 | 0 | 2019 | 112.0 |
Sketch
| No sketches available for this property. |
Property Image
Land
| 1 | 12 | SQ (00000-06000) | 0.0000 | 0.00 | 0.00 | 0.00 | 1.00 | $260,000 | $0 |
Roll Value History
| 2026 | N/A | N/A | N/A | N/A | N/A |
| 2025 | $378,445 | $260,000 | $0 | $638,445 | $638,445 |
| 2024 | $335,314 | $260,000 | $0 | $595,314 | $595,314 |
| 2023 | $337,995 | $260,000 | $0 | $597,995 | $597,995 |
| 2022 | $301,038 | $240,000 | $0 | $541,038 | $541,038 |
| 2021 | $264,530 | $160,000 | $0 | $424,530 | $424,530 |
| 2020 | $258,664 | $160,000 | $0 | $418,664 | $418,664 |
| 2019 | $187,363 | $170,000 | $0 | $357,363 | $357,363 |
| 2018 | $0 | $70,000 | $0 | $70,000 | $70,000 |
| 2017 | $0 | $60,000 | $0 | $60,000 | $60,000 |
| 2016 | $200 | $50,000 | $0 | $50,200 | $50,200 |
| 2015 | $200 | $53,320 | $0 | $53,520 | $53,520 |
| 2014 | $200 | $53,320 | $0 | $53,520 | $53,520 |
| 2013 | $200 | $53,320 | $0 | $53,520 | $53,520 |
| 2012 | $200 | $95,616 | $0 | $95,816 | $95,816 |
| 2011 | $200 | $119,520 | $0 | $119,720 | $119,720 |
| 2010 | $318 | $119,520 | $0 | $119,838 | $119,838 |
| 2009 | $318 | $120,000 | $0 | $120,318 | $120,318 |
| 2008 | $50,904 | $120,000 | $0 | $170,904 | $170,904 |
| 2007 | $51,865 | $100,000 | $0 | $151,865 | $151,865 |
Deed and Sales History
| 1 | 09/06/2024 | WD | Warranty Deed | PALUMBO, MATTHEW M | JOHANSON, KRISTIN L | | | $677,000.00 | 61231 | 4576963 |
| 2 | 01/25/2019 | WD | Warranty Deed | RELIABLE HOLDINGS, INC | PALUMBO, MATTHEW M | | | $318,000.00 | 37505 | 4458783 |
| 3 | 06/29/2017 | WD | Warranty Deed | JOHNSON, ROGER L / SUZANNE M | RELIABLE HOLDINGS, INC | | | $87,000.00 | 30083 | 4425684 |
| 4 | 09/01/1993 | WD | Warranty Deed | HAYES, RODNEY P | JOHNSON, ROGER L | | | $60,000.00 | 33624 | 93018853 |
| 5 | 12/01/1984 | QCD | Quit Claim Deed | GRABLE, CHARLES S | HAYES, RODNEY P | | | $0.00 | 50608 | 85002703 |
| 6 | 09/01/1979 | EXECUTORD | Executor Deed | HAYES, RODNEY P | GRABLE, CHARLES S | | | $33,500.00 | 94686 | 359216 |
| 7 | 01/01/1900 | OTHER | Other - Misc. Documents | Unknown | HAYES, RODNEY P | | | $0.00 | 0 | 0 |
Payout Agreement
| No payout information available.. |