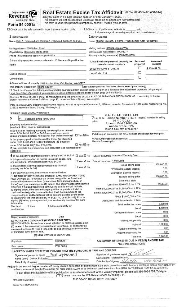
Property
Account |
| Property ID: | 318445 | Abbreviated Legal Description: | MANACO BCH LOT 25 |
| Geographic ID: | S7460-00-00025-0 | Agent Code: | |
| Type: | Real | | |
| Tax Area: | 510 - APPRAISER-Stan/Cam Schl Dist, improved & 1 acre or less | Land Use Code | 11 |
| Open Space: | N | DFL | N |
| Historic Property: | N | Remodel Property: | N |
| Multi-Family Redevelopment: | N | | |
| Township: | | Section: | |
| Range: | |
Location |
| Address: | 661 MANACO BEACH RD CAMANO ISLAND, WA 98282 | Mapsco: | |
| Neighborhood: | Cycle 5 | Map ID: | 500 |
| Neighborhood CD: | 5 |
Owner |
| Name: | FONG, JEFFREY CHENG-YAO TTEE | Owner ID: | 304396 |
| Mailing Address: | JENNIFER DENISE JOHNSON- FONG TTEE 1954 4TH AVENUE WEST SEATTLE, WA 98119 | % Ownership: | 100.0000000000% |
| | | Exemptions: | |
Taxes and Assessment Details
Values
| (+) Improvement Homesite Value: | + | $0 | |
| (+) Improvement Non-Homesite Value: | + | $206,412 | |
| (+) Land Homesite Value: | + | $0 | |
| (+) Land Non-Homesite Value: | + | $675,000 | |
| (+) Curr Use (HS): | + | $0 | $0 |
| (+) Curr Use (NHS): | + | $0 | $0 |
| | | -------------------------- | |
| (=) Market Value: | = | $881,412 | |
| (–) Productivity Loss: | – | $0 | |
| | | -------------------------- | |
| (=) Subtotal: | = | $881,412 | |
| (+) Senior Appraised Value: | + | $0 | |
| (+) Non-Senior Appraised Value: | + | $881,412 | |
| | | -------------------------- | |
| (=) Total Appraised Value: | = | $881,412 | |
| (–) Senior Exemption Loss: | – | $0 | |
| (–) Exemption Loss: | – | $0 | |
| | | -------------------------- | |
| (=) Taxable Value: | = | $881,412 | |
Taxing Jurisdiction
| Owner: | FONG, JEFFREY CHENG-YAO TTEE | | |
| % Ownership: | 100.0000000000% | | |
| Total Value: | $881,412 | | |
| Tax Area: | 510 - APPRAISER-Stan/Cam Schl Dist, improved & 1 acre or less |
| CF | Conservation Futures | 0.0316035091 | $881,412 | $881,412 | $27.86 | | |
| EMS1 | Fire & Rescue Dist #1 Camano GEN (EMS) | 0.3677864386 | $881,412 | $881,412 | $324.17 | | |
| FIRE1 | Fire & Rescue Dist #1 Camano GEN | 1.2502910536 | $881,412 | $881,412 | $1,102.02 | | |
| FIRE1BOND | Fire & Rescue Dist #1 Camano BOND | 0.1570001679 | $881,412 | $881,412 | $138.38 | | |
| CE | County Current Expense | 0.3708482477 | $881,412 | $881,412 | $326.87 | | |
| CR | County Roads | 0.4584763726 | $881,412 | $881,412 | $404.11 | | |
| LCIB | Library Sno-Isle BOND (Camano Island) | 0.0396325772 | $881,412 | $881,412 | $34.93 | | |
| LIB | Library Sno-Isle GEN | 0.3153421757 | $881,412 | $881,412 | $277.95 | | |
| SCH205_401 | School 205-401 Enrichment | 1.2698420524 | $881,412 | $881,412 | $1,119.25 | | |
| SCH205BOND | School 205-401 BOND | 0.9396497583 | $881,412 | $881,412 | $828.22 | | |
| ST | State School | 1.3035497053 | $881,412 | $881,412 | $1,148.96 | | |
| ST2 | State School Part 2 | 0.8169543533 | $881,412 | $881,412 | $720.07 | | |
| | Total Tax Rate: | 7.3209764117 | | | | | |
| | | | | Taxes w/Current Exemptions: | $6,452.79 | | |
| | | | | Taxes w/o Exemptions: | $6,452.79 | | |
Improvement / Building
| Improvement #1: | RESIDENTIAL | State Code: | Y | 1492.0 sqft | Value: | $206,412 |
| Bathrooms: | 2 | Bedrooms: | 2 | | Ceiling: | TONGUE & GROOVE | Exterior Wall/Cover: | WOOD SIDING | | Floor Covering: | CARPET/VINYL 80-20 | Floor Structure: | WOOD W/SUBFLOOR | | Foundation: | CONCRETE | Heating: | WALL HEAT ELECTRIC | | Interior Finish: | DRYWALL PAINT | Plumbing Fixture Cnt: | 8 | | Roof Slope: | 6" IN 12" | Roof Structure/Cover: | CJ ASPHALT |
|
| | Type | Description | Class CD | Sub Class CD | Year Built | Area |
| | BAS | BASE/MAIN FLOOR | 3 | 0 | 1969 | 772.0 |
| | DWN | DOWNSTAIRS LIVING AREA | 3 | 0 | 1969 | 520.0 |
| | OWP | OPEN WOOD PORCH W/STEPS | 3 | 0 | 1969 | 264.0 |
| | OWP | OPEN WOOD PORCH W/STEPS | 3 | 0 | 1969 | 260.0 |
| | OWC | OPEN WOOD PORCH W/STEPS/ROOF/C | 3 | 0 | 1969 | 16.0 |
| | oUTI | UTILITY | 3 | 0 | 1969 | 0.0 |
| | LOF | LOFT | 3 | 0 | 1969 | 200.0 |
Sketch
Property Image
Land
| 1 | MB | MEDIUM BANK | 0.2185 | 9517.86 | 155.00 | 0.00 | 1.00 | $675,000 | $0 |
Roll Value History
| 2026 | N/A | N/A | N/A | N/A | N/A |
| 2025 | $206,412 | $675,000 | $0 | $881,412 | $881,412 |
| 2024 | $209,139 | $675,000 | $0 | $884,139 | $884,139 |
| 2023 | $211,867 | $675,000 | $0 | $886,867 | $886,867 |
| 2022 | $156,300 | $320,000 | $0 | $476,300 | $476,300 |
| 2021 | $133,128 | $150,000 | $0 | $283,128 | $213,128 |
| 2020 | $129,515 | $150,000 | $0 | $279,515 | $279,515 |
| 2019 | $90,134 | $180,000 | $0 | $270,134 | $270,134 |
| 2018 | $90,470 | $150,000 | $0 | $240,470 | $240,470 |
| 2017 | $91,141 | $130,000 | $0 | $221,141 | $221,141 |
| 2016 | $92,483 | $110,000 | $0 | $202,483 | $202,483 |
| 2015 | $80,422 | $70,848 | $0 | $151,270 | $151,270 |
| 2014 | $81,759 | $70,848 | $0 | $152,607 | $152,607 |
| 2013 | $83,094 | $70,848 | $0 | $153,942 | $153,942 |
| 2012 | $84,431 | $70,848 | $0 | $155,279 | $155,279 |
| 2011 | $85,766 | $88,560 | $0 | $174,326 | $174,326 |
| 2010 | $95,692 | $119,308 | $0 | $215,000 | $215,000 |
| 2009 | $62,318 | $197,342 | $0 | $259,660 | $259,660 |
| 2008 | $101,073 | $147,534 | $0 | $248,607 | $248,607 |
| 2007 | $102,486 | $165,239 | $0 | $267,725 | $267,725 |
Deed and Sales History
| 1 | 06/27/2022 | WD | Warranty Deed | GLADU TTEE, FRANCIS H | FONG, JEFFREY CHENG-YAO TTEE | | | $1,000,000.00 | 53663 | 4547477 |
| 2 | 06/24/2021 | QCD | Quit Claim Deed | GLADU, FRANCIS H | GLADU TTEE, FRANCIS H | | | $0.00 | 48909 | 4523054 |
| 3 | 05/01/1984 | WD | Warranty Deed | KIRKPATRICK, LYNN M | GLADU, FRANCIS A | | | $75,000.00 | 41461 | 425009 |
| 4 | 01/01/1900 | OTHER | Other - Misc. Documents | Unknown | KIRKPATRICK, LYNN M | | | $0.00 | 0 | 0 |
Payout Agreement
| No payout information available.. |