Property
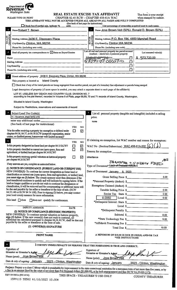
Account |
| Property ID: | 318891 | Abbreviated Legal Description: | MAPLE GROVE BCH LOT 35 |
| Geographic ID: | S7470-00-00035-0 | Agent Code: | |
| Type: | Real | | |
| Tax Area: | 510 - APPRAISER-Stan/Cam Schl Dist, improved & 1 acre or less | Land Use Code | 11 |
| Open Space: | N | DFL | N |
| Historic Property: | N | Remodel Property: | N |
| Multi-Family Redevelopment: | N | | |
| Township: | | Section: | |
| Range: | |
Location |
| Address: | 637 MAPLE GROVE RD CAMANO ISLAND, WA 98282 | Mapsco: | |
| Neighborhood: | North Camano | Map ID: | 556 |
| Neighborhood CD: | 06-C |
Owner |
| Name: | YOUNG, LAURINDA | Owner ID: | 291975 |
| Mailing Address: | NICOLE GAINEY 11806 79TH PL S SEATTLE, WA 98178 | % Ownership: | 100.0000000000% |
| | | Exemptions: | |
Taxes and Assessment Details
Values
| (+) Improvement Homesite Value: | + | $0 | |
| (+) Improvement Non-Homesite Value: | + | $36,755 | |
| (+) Land Homesite Value: | + | $0 | |
| (+) Land Non-Homesite Value: | + | $160,000 | |
| (+) Curr Use (HS): | + | $0 | $0 |
| (+) Curr Use (NHS): | + | $0 | $0 |
| | | -------------------------- | |
| (=) Market Value: | = | $196,755 | |
| (–) Productivity Loss: | – | $0 | |
| | | -------------------------- | |
| (=) Subtotal: | = | $196,755 | |
| (+) Senior Appraised Value: | + | $0 | |
| (+) Non-Senior Appraised Value: | + | $196,755 | |
| | | -------------------------- | |
| (=) Total Appraised Value: | = | $196,755 | |
| (–) Senior Exemption Loss: | – | $0 | |
| (–) Exemption Loss: | – | $0 | |
| | | -------------------------- | |
| (=) Taxable Value: | = | $196,755 | |
Taxing Jurisdiction
| Owner: | YOUNG, LAURINDA | | |
| % Ownership: | 100.0000000000% | | |
| Total Value: | $196,755 | | |
| Tax Area: | 510 - APPRAISER-Stan/Cam Schl Dist, improved & 1 acre or less |
| CF | Conservation Futures | 0.0316035091 | $196,755 | $196,755 | $6.22 | | |
| EMS1 | Fire & Rescue Dist #1 Camano GEN (EMS) | 0.3677864386 | $196,755 | $196,755 | $72.36 | | |
| FIRE1 | Fire & Rescue Dist #1 Camano GEN | 1.2502910536 | $196,755 | $196,755 | $246.00 | | |
| FIRE1BOND | Fire & Rescue Dist #1 Camano BOND | 0.1570001679 | $196,755 | $196,755 | $30.89 | | |
| CE | County Current Expense | 0.3708482477 | $196,755 | $196,755 | $72.97 | | |
| CR | County Roads | 0.4584763726 | $196,755 | $196,755 | $90.21 | | |
| LCIB | Library Sno-Isle BOND (Camano Island) | 0.0396325772 | $196,755 | $196,755 | $7.80 | | |
| LIB | Library Sno-Isle GEN | 0.3153421757 | $196,755 | $196,755 | $62.05 | | |
| SCH205_401 | School 205-401 Enrichment | 1.2698420524 | $196,755 | $196,755 | $249.85 | | |
| SCH205BOND | School 205-401 BOND | 0.9396497583 | $196,755 | $196,755 | $184.88 | | |
| ST | State School | 1.3035497053 | $196,755 | $196,755 | $256.48 | | |
| ST2 | State School Part 2 | 0.8169543533 | $196,755 | $196,755 | $160.74 | | |
| | Total Tax Rate: | 7.3209764117 | | | | | |
| | | | | Taxes w/Current Exemptions: | $1,440.45 | | |
| | | | | Taxes w/o Exemptions: | $1,440.45 | | |
Improvement / Building
| Improvement #1: | RESIDENTIAL | State Code: | Y | 176.0 sqft | Value: | $36,755 |
| Bathrooms: | 0 | Bedrooms: | 0 | | Ceiling: | DRYWALL PAINTED | Exterior Wall/Cover: | PLY/HARDBOARD T-111 | | Floor Covering: | VINYL 100% | Floor Structure: | WOOD W/SUBFLOOR | | Foundation: | PEIRS | Heating: | B/B HOT WATER-GAS | | Interior Finish: | DRYWALL PAINT | Plumbing Fixture Cnt: | 1 | | Roof Slope: | 8" IN 12" | Roof Structure/Cover: | CJ ASPHALT |
|
| | Type | Description | Class CD | Sub Class CD | Year Built | Area |
| | BAS | BASE/MAIN FLOOR | 3 | 0 | 2007 | 176.0 |
| | OWP | OPEN WOOD PORCH W/STEPS | 3 | 0 | 2007 | 352.0 |
Sketch
Property Image
Land
| 1 | 12 | SQ (00000-06000) | 0.0000 | 0.00 | 0.00 | 0.00 | 1.00 | $160,000 | $0 |
Roll Value History
| 2026 | N/A | N/A | N/A | N/A | N/A |
| 2025 | $36,755 | $160,000 | $0 | $196,755 | $196,755 |
| 2024 | $37,202 | $150,000 | $0 | $187,202 | $187,202 |
| 2023 | $37,649 | $125,000 | $0 | $162,649 | $162,649 |
| 2022 | $34,496 | $125,000 | $0 | $159,496 | $159,496 |
| 2021 | $30,348 | $120,000 | $0 | $150,348 | $150,348 |
| 2020 | $29,708 | $120,000 | $0 | $149,708 | $149,708 |
| 2019 | $22,178 | $110,000 | $0 | $132,178 | $132,178 |
| 2018 | $22,241 | $70,000 | $0 | $92,241 | $92,241 |
| 2017 | $20,651 | $70,000 | $0 | $90,651 | $90,651 |
| 2016 | $20,710 | $65,000 | $0 | $85,710 | $85,710 |
| 2015 | $20,940 | $65,000 | $0 | $85,940 | $85,940 |
| 2014 | $19,772 | $65,000 | $0 | $84,772 | $84,772 |
| 2013 | $19,987 | $65,000 | $0 | $84,987 | $84,987 |
| 2012 | $20,201 | $61,752 | $0 | $81,953 | $81,953 |
| 2011 | $20,416 | $77,190 | $0 | $97,606 | $97,606 |
| 2010 | $17,931 | $77,190 | $0 | $95,121 | $95,121 |
| 2009 | $18,611 | $43,000 | $0 | $61,611 | $61,611 |
| 2008 | $18,644 | $50,000 | $0 | $68,644 | $68,644 |
| 2007 | $12,430 | $49,718 | $0 | $62,148 | $62,148 |
Deed and Sales History
| 1 | 08/14/2019 | WD | Warranty Deed | GARTNER, JAMES A | YOUNG, LAURINDA | | | $149,000.00 | 40417 | 4472075 |
|   | |
| 2 | 09/11/2008 | DECREE | Divorce Decree/Legal Separation | GARTNER, JAMES A | GARTNER, JAMES A | | | $0.00 | 3513 | 4289701 |
| 3 | 04/04/2002 | WD | Warranty Deed | HERZOG, HANS K | GARTNER, JAMES A | | | $2,000.00 | 21393 | 4017027 |
| 4 | 10/01/1992 | PRD | Personal Representatives Deed | HERZOG, HANS K | HERZOG, HANS K | | | $0.00 | 24448 | 92021738 |
| 5 | 12/01/1981 | WD | Warranty Deed | SMITH, GEORGE A | HERZOG, HANS K | | | $17,000.00 | 20541 | 393857 |
| 6 | 01/01/1900 | OTHER | Other - Misc. Documents | Unknown | SMITH, GEORGE A | | | $23,000.00 | 81214 | 329726 |
Payout Agreement
| No payout information available.. |