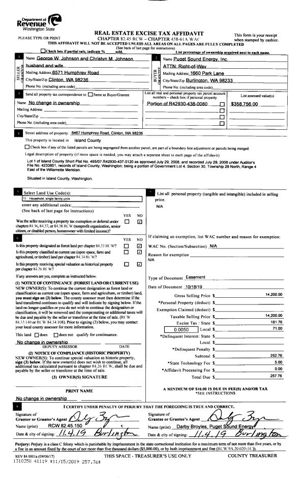
Property
Account |
| Property ID: | 319275 | Abbreviated Legal Description: | MPL GRV BCH 3 LOT 16 |
| Geographic ID: | S7470-30-00016-0 | Agent Code: | |
| Type: | Real | | |
| Tax Area: | 510 - APPRAISER-Stan/Cam Schl Dist, improved & 1 acre or less | Land Use Code | 11 |
| Open Space: | N | DFL | N |
| Historic Property: | N | Remodel Property: | N |
| Multi-Family Redevelopment: | N | | |
| Township: | | Section: | |
| Range: | |
Location |
| Address: | 748 MAPLE GROVE RD CAMANO ISLAND, WA 98282 | Mapsco: | |
| Neighborhood: | North Camano | Map ID: | 556 |
| Neighborhood CD: | 06-C |
Owner |
| Name: | HOLMS TTEE, BRUCE D | Owner ID: | 292198 |
| Mailing Address: | THEONE L HOLMS, TTEE 748 MAPLE GROVE RD CAMANO ISLAND, WA 98282 | % Ownership: | 100.0000000000% |
| | | Exemptions: | |
Taxes and Assessment Details
Values
| (+) Improvement Homesite Value: | + | $0 | |
| (+) Improvement Non-Homesite Value: | + | $322,722 | |
| (+) Land Homesite Value: | + | $0 | |
| (+) Land Non-Homesite Value: | + | $925,000 | |
| (+) Curr Use (HS): | + | $0 | $0 |
| (+) Curr Use (NHS): | + | $0 | $0 |
| | | -------------------------- | |
| (=) Market Value: | = | $1,247,722 | |
| (–) Productivity Loss: | – | $0 | |
| | | -------------------------- | |
| (=) Subtotal: | = | $1,247,722 | |
| (+) Senior Appraised Value: | + | $0 | |
| (+) Non-Senior Appraised Value: | + | $1,247,722 | |
| | | -------------------------- | |
| (=) Total Appraised Value: | = | $1,247,722 | |
| (–) Senior Exemption Loss: | – | $0 | |
| (–) Exemption Loss: | – | $0 | |
| | | -------------------------- | |
| (=) Taxable Value: | = | $1,247,722 | |
Taxing Jurisdiction
| Owner: | HOLMS TTEE, BRUCE D | | |
| % Ownership: | 100.0000000000% | | |
| Total Value: | $1,247,722 | | |
| Tax Area: | 510 - APPRAISER-Stan/Cam Schl Dist, improved & 1 acre or less |
| CF | Conservation Futures | 0.0316035091 | $1,247,722 | $1,247,722 | $39.43 | | |
| EMS1 | Fire & Rescue Dist #1 Camano GEN (EMS) | 0.3677864386 | $1,247,722 | $1,247,722 | $458.90 | | |
| FIRE1 | Fire & Rescue Dist #1 Camano GEN | 1.2502910536 | $1,247,722 | $1,247,722 | $1,560.02 | | |
| FIRE1BOND | Fire & Rescue Dist #1 Camano BOND | 0.1570001679 | $1,247,722 | $1,247,722 | $195.89 | | |
| CE | County Current Expense | 0.3708482477 | $1,247,722 | $1,247,722 | $462.72 | | |
| CR | County Roads | 0.4584763726 | $1,247,722 | $1,247,722 | $572.05 | | |
| LCIB | Library Sno-Isle BOND (Camano Island) | 0.0396325772 | $1,247,722 | $1,247,722 | $49.45 | | |
| LIB | Library Sno-Isle GEN | 0.3153421757 | $1,247,722 | $1,247,722 | $393.46 | | |
| SCH205_401 | School 205-401 Enrichment | 1.2698420524 | $1,247,722 | $1,247,722 | $1,584.41 | | |
| SCH205BOND | School 205-401 BOND | 0.9396497583 | $1,247,722 | $1,247,722 | $1,172.42 | | |
| ST | State School | 1.3035497053 | $1,247,722 | $1,247,722 | $1,626.47 | | |
| ST2 | State School Part 2 | 0.8169543533 | $1,247,722 | $1,247,722 | $1,019.33 | | |
| | Total Tax Rate: | 7.3209764117 | | | | | |
| | | | | Taxes w/Current Exemptions: | $9,134.55 | | |
| | | | | Taxes w/o Exemptions: | $9,134.55 | | |
Improvement / Building
| Improvement #1: | RESIDENTIAL | State Code: | Y | 1138.0 sqft | Value: | $322,722 |
| Bathrooms: | 1.5 | Bedrooms: | 1 | | Ceiling: | ACOUSTIC FURRED | Exterior Wall/Cover: | SHINGLE | | Floor Covering: | TILE CERAMIC | Floor Structure: | WOOD W/SUBFLOOR | | Foundation: | CONCRETE | Heating: | FHA GAS | | Interior Finish: | DRYWALL PAINT | Plumbing Fixture Cnt: | 9 | | Roof Slope: | 6" IN 12" | Roof Structure/Cover: | CJ ASPHALT |
|
| | Type | Description | Class CD | Sub Class CD | Year Built | Area |
| | BAS | BASE/MAIN FLOOR | 4 | 0 | 1938 | 1138.0 |
| | OP4 | OPEN PORCH W/CEILING-ROOF | 4 | 0 | 1938 | 18.0 |
| | OCP | OPEN CARPORT | 4 | 0 | 1938 | 280.0 |
Sketch
Property Image
Land
| 1 | LB | LOW BANK | 0.0000 | 0.00 | 41.00 | 0.00 | 1.00 | $925,000 | $0 |
Roll Value History
| 2026 | N/A | N/A | N/A | N/A | N/A |
| 2025 | $322,722 | $925,000 | $0 | $1,247,722 | $1,247,722 |
| 2024 | $326,508 | $850,000 | $0 | $1,176,508 | $1,176,508 |
| 2023 | $330,293 | $770,000 | $0 | $1,100,293 | $1,100,293 |
| 2022 | $295,656 | $700,000 | $0 | $995,656 | $995,656 |
| 2021 | $260,072 | $475,000 | $0 | $735,072 | $735,072 |
| 2020 | $252,862 | $425,000 | $0 | $677,862 | $677,862 |
| 2019 | $182,137 | $425,000 | $0 | $607,137 | $607,137 |
| 2018 | $182,648 | $375,000 | $0 | $557,648 | $557,648 |
| 2017 | $183,668 | $350,000 | $0 | $533,668 | $533,668 |
| 2016 | $136,122 | $300,000 | $0 | $436,122 | $436,122 |
| 2015 | $137,618 | $300,000 | $0 | $437,618 | $437,618 |
| 2014 | $139,114 | $300,000 | $0 | $439,114 | $439,114 |
| 2013 | $140,610 | $300,000 | $0 | $440,610 | $440,610 |
| 2012 | $142,106 | $386,341 | $0 | $528,447 | $528,447 |
| 2011 | $143,601 | $406,675 | $0 | $550,276 | $550,276 |
| 2010 | $147,776 | $406,675 | $0 | $554,451 | $554,451 |
| 2009 | $152,366 | $458,187 | $0 | $610,553 | $610,553 |
| 2008 | $100,971 | $553,756 | $0 | $654,727 | $654,727 |
| 2007 | $83,023 | $460,898 | $0 | $543,921 | $543,921 |
Deed and Sales History
| 1 | 10/04/2019 | QCD | Quit Claim Deed | HOLMS, BRUCE | HOLMS TTEE, BRUCE D | | | $0.00 | 40673 | 4473284 |
| 2 | 12/17/2016 | WD | Warranty Deed | COHN, GARY D | HOLMS, BRUCE | | | $600,000.00 | 27421 | 4413651 |
| 3 | 09/04/2001 | QCD | Quit Claim Deed | COHN, GARY D | COHN, GARY D | | | $0.00 | 13429 | 20042211 |
| 4 | 06/01/1994 | WD | Warranty Deed | WHITLOW, DAVID H | COHN, GARY D | | | $270,000.00 | 42636 | 94014601 |
| 5 | 06/01/1992 | WD | Warranty Deed | ZUVICH, MARY A | WHITLOW, DAVID H | | | $235,000.00 | 22616 | 92012629 |
| 6 | 10/01/1988 | PACD | Purchaser's Assignment | ZUVICH, LOUIS M | ZUVICH, MARY A | | | $0.00 | 83671 | 88013693 |
| 7 | 01/01/1900 | OTHER | Other - Misc. Documents | Unknown | ZUVICH, LOUIS M | | | $0.00 | 0 | 0 |
Payout Agreement
| No payout information available.. |