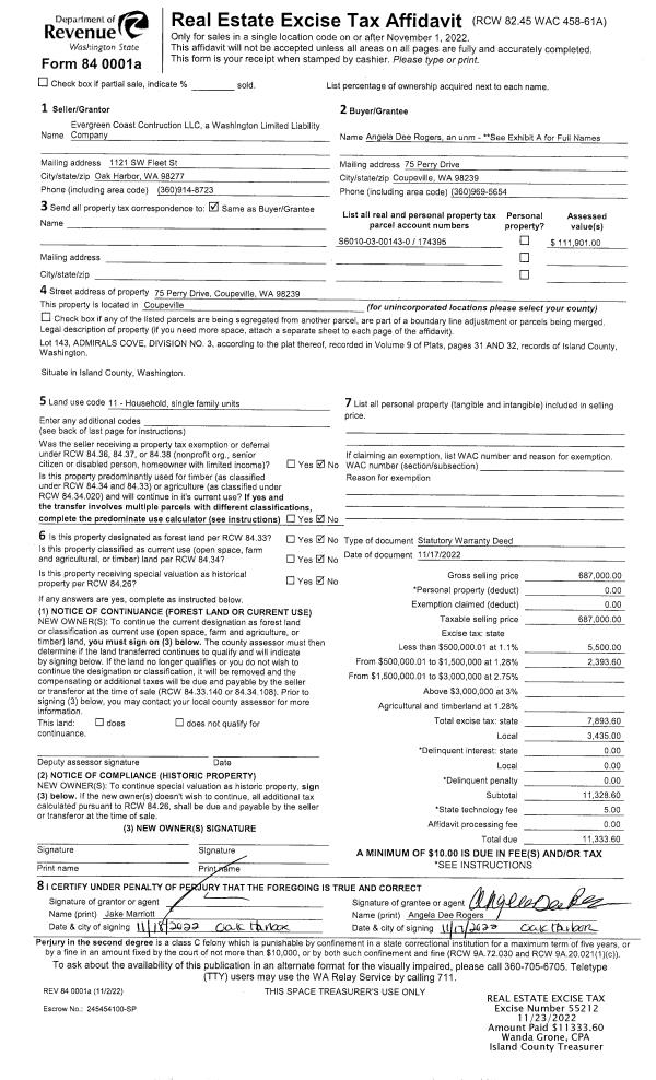
Property
Account |
| Property ID: | 319319 | Abbreviated Legal Description: | MPL GRV BCH 3 LOT 20 |
| Geographic ID: | S7470-30-00020-0 | Agent Code: | |
| Type: | Real | | |
| Tax Area: | 510 - APPRAISER-Stan/Cam Schl Dist, improved & 1 acre or less | Land Use Code | 11 |
| Open Space: | N | DFL | N |
| Historic Property: | N | Remodel Property: | N |
| Multi-Family Redevelopment: | N | | |
| Township: | | Section: | |
| Range: | |
Location |
| Address: | 762 MAPLE GROVE RD CAMANO ISLAND, WA 98282 | Mapsco: | |
| Neighborhood: | North Camano | Map ID: | 556 |
| Neighborhood CD: | 06-C |
Owner |
| Name: | SMITH, GARY WALTER | Owner ID: | 302905 |
| Mailing Address: | 12603 240TH ST NE ARLINGTON, WA 98223 | % Ownership: | 100.0000000000% |
| | | Exemptions: | |
Taxes and Assessment Details
Values
| (+) Improvement Homesite Value: | + | $0 | |
| (+) Improvement Non-Homesite Value: | + | $127,067 | |
| (+) Land Homesite Value: | + | $0 | |
| (+) Land Non-Homesite Value: | + | $925,000 | |
| (+) Curr Use (HS): | + | $0 | $0 |
| (+) Curr Use (NHS): | + | $0 | $0 |
| | | -------------------------- | |
| (=) Market Value: | = | $1,052,067 | |
| (–) Productivity Loss: | – | $0 | |
| | | -------------------------- | |
| (=) Subtotal: | = | $1,052,067 | |
| (+) Senior Appraised Value: | + | $0 | |
| (+) Non-Senior Appraised Value: | + | $1,052,067 | |
| | | -------------------------- | |
| (=) Total Appraised Value: | = | $1,052,067 | |
| (–) Senior Exemption Loss: | – | $0 | |
| (–) Exemption Loss: | – | $0 | |
| | | -------------------------- | |
| (=) Taxable Value: | = | $1,052,067 | |
Taxing Jurisdiction
| Owner: | SMITH, GARY WALTER | | |
| % Ownership: | 100.0000000000% | | |
| Total Value: | $1,052,067 | | |
| Tax Area: | 510 - APPRAISER-Stan/Cam Schl Dist, improved & 1 acre or less |
| CF | Conservation Futures | 0.0316035091 | $1,052,067 | $1,052,067 | $33.25 | | |
| EMS1 | Fire & Rescue Dist #1 Camano GEN (EMS) | 0.3677864386 | $1,052,067 | $1,052,067 | $386.94 | | |
| FIRE1 | Fire & Rescue Dist #1 Camano GEN | 1.2502910536 | $1,052,067 | $1,052,067 | $1,315.39 | | |
| FIRE1BOND | Fire & Rescue Dist #1 Camano BOND | 0.1570001679 | $1,052,067 | $1,052,067 | $165.17 | | |
| CE | County Current Expense | 0.3708482477 | $1,052,067 | $1,052,067 | $390.16 | | |
| CR | County Roads | 0.4584763726 | $1,052,067 | $1,052,067 | $482.35 | | |
| LCIB | Library Sno-Isle BOND (Camano Island) | 0.0396325772 | $1,052,067 | $1,052,067 | $41.70 | | |
| LIB | Library Sno-Isle GEN | 0.3153421757 | $1,052,067 | $1,052,067 | $331.76 | | |
| SCH205_401 | School 205-401 Enrichment | 1.2698420524 | $1,052,067 | $1,052,067 | $1,335.96 | | |
| SCH205BOND | School 205-401 BOND | 0.9396497583 | $1,052,067 | $1,052,067 | $988.57 | | |
| ST | State School | 1.3035497053 | $1,052,067 | $1,052,067 | $1,371.42 | | |
| ST2 | State School Part 2 | 0.8169543533 | $1,052,067 | $1,052,067 | $859.49 | | |
| | Total Tax Rate: | 7.3209764117 | | | | | |
| | | | | Taxes w/Current Exemptions: | $7,702.16 | | |
| | | | | Taxes w/o Exemptions: | $7,702.16 | | |
Improvement / Building
| Improvement #1: | RESIDENTIAL | State Code: | Y | 852.0 sqft | Value: | $127,067 |
| Bathrooms: | 1 | Bedrooms: | 1 | | Ceiling: | TONGUE & GROOVE | Exterior Wall/Cover: | VINYL | | Floor Covering: | CARPET 100% | Floor Structure: | WOOD W/SUBFLOOR | | Foundation: | WOOD BLOCKS | Heating: | BASEBOARD ELECTRIC | | Interior Finish: | DRYWALL PAINT | Plumbing Fixture Cnt: | 7 | | Roof Slope: | 6" IN 12" | Roof Structure/Cover: | CJ ASPHALT |
|
| | Type | Description | Class CD | Sub Class CD | Year Built | Area |
| | BAS | BASE/MAIN FLOOR | 3 | 0 | 1948 | 852.0 |
| | ATF | ATTIC FINISHED | 3 | 0 | 1948 | 320.0 |
| | OP1 | OPEN PORCH SLAB | 3 | 0 | 1948 | 570.0 |
| | OP4 | OPEN PORCH W/CEILING-ROOF | 3 | 0 | 1948 | 168.0 |
| | UTY | STORAGE/UTILITY | 3 | 0 | 1948 | 55.0 |
Sketch
Property Image
Land
| 1 | LB | LOW BANK | 0.0000 | 0.00 | 41.00 | 0.00 | 1.00 | $925,000 | $0 |
Roll Value History
| 2026 | N/A | N/A | N/A | N/A | N/A |
| 2025 | $127,067 | $925,000 | $0 | $1,052,067 | $1,052,067 |
| 2024 | $131,907 | $850,000 | $0 | $981,907 | $981,907 |
| 2023 | $134,095 | $770,000 | $0 | $904,095 | $904,095 |
| 2022 | $119,442 | $700,000 | $0 | $819,442 | $819,442 |
| 2021 | $105,585 | $475,000 | $0 | $580,585 | $580,585 |
| 2020 | $103,012 | $425,000 | $0 | $528,012 | $528,012 |
| 2019 | $72,457 | $425,000 | $0 | $497,457 | $497,457 |
| 2018 | $72,744 | $375,000 | $0 | $447,744 | $447,744 |
| 2017 | $73,316 | $350,000 | $0 | $423,316 | $423,316 |
| 2016 | $43,378 | $300,000 | $0 | $343,378 | $343,378 |
| 2015 | $44,520 | $300,000 | $0 | $344,520 | $344,520 |
| 2014 | $45,660 | $300,000 | $0 | $345,660 | $138,264 |
| 2013 | $46,802 | $300,000 | $0 | $346,802 | $138,721 |
| 2012 | $47,945 | $386,341 | $0 | $434,286 | $173,714 |
| 2011 | $49,086 | $406,675 | $0 | $455,761 | $455,761 |
| 2010 | $60,997 | $406,675 | $0 | $467,672 | $467,672 |
| 2009 | $62,840 | $458,187 | $0 | $521,027 | $521,027 |
| 2008 | $64,081 | $553,756 | $0 | $617,837 | $617,837 |
| 2007 | $58,599 | $460,898 | $0 | $519,497 | $519,497 |
Deed and Sales History
| 1 | 01/10/2022 | QCD | Quit Claim Deed | SMITH, MARK ALAN | SMITH, GARY WALTER | | | $0.00 | 51886 | 4539284 |
| 2 | 12/21/2015 | QCD | Quit Claim Deed | SMITH, BARBARA A | SMITH, MARK ALAN | | | $0.00 | 22630 | 4391621 |
| 3 | 08/11/2000 | OTHER | Other - Misc. Documents | SMITH, JAMES W | SMITH, BARBARA A | | | $0.00 | 68742 | 0 |
| 4 | 08/01/1996 | WD | Warranty Deed | JONES, ROSEMARY R | SMITH, JAMES W | | | $200,000.00 | 63084 | 96015118 |
| 5 | 03/01/1983 | OTHER | Other - Misc. Documents | JONES, WALTER | JONES, ROSEMARY R | | | $0.00 | 59897 | 0 |
| 6 | 01/01/1900 | OTHER | Other - Misc. Documents | Unknown | JONES, WALTER | | | $0.00 | 0 | 0 |
Payout Agreement
| No payout information available.. |