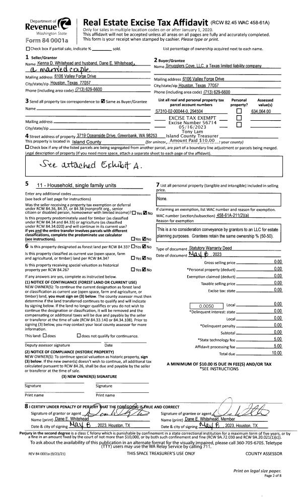
Property
Account |
| Property ID: | 31995 | Abbreviated Legal Description: | W/2 SW SE SW E OF HWY TGW & SUB EZ AF#85012803 REMOVE EZ AF#90001977 EX PT TO ST HWY AF#4134832 |
| Geographic ID: | R13302-033-1500 | Agent Code: | |
| Type: | Real | | |
| Tax Area: | 112 - APPRAISER-OH Schl Dist, outside OH, improved, greater than 1 acre | Land Use Code | 39 |
| Open Space: | N | DFL | N |
| Historic Property: | N | Remodel Property: | N |
| Multi-Family Redevelopment: | N | | |
| Township: | 33 | Section: | 02 |
| Range: | R1 |
Location |
| Address: | 4399 NORTHGATE DR OAK HARBOR, WA 98277 | Mapsco: | |
| Neighborhood: | 61cRR-highway 20 | Map ID: | 193 |
| Neighborhood CD: | 61cRRhwy20 |
Owner |
| Name: | OSWALT, RACHEL | Owner ID: | 308059 |
| Mailing Address: | DAEMON OSWALT 4399 NORTHGATE DR #A OAK HARBOR, WA 98277 | % Ownership: | 100.0000000000% |
| | | Exemptions: | |
Taxes and Assessment Details
Values
| (+) Improvement Homesite Value: | + | $0 | |
| (+) Improvement Non-Homesite Value: | + | $819,242 | |
| (+) Land Homesite Value: | + | $0 | |
| (+) Land Non-Homesite Value: | + | $300,000 | |
| (+) Curr Use (HS): | + | $0 | $0 |
| (+) Curr Use (NHS): | + | $0 | $0 |
| | | -------------------------- | |
| (=) Market Value: | = | $1,119,242 | |
| (–) Productivity Loss: | – | $0 | |
| | | -------------------------- | |
| (=) Subtotal: | = | $1,119,242 | |
| (+) Senior Appraised Value: | + | $0 | |
| (+) Non-Senior Appraised Value: | + | $1,119,242 | |
| | | -------------------------- | |
| (=) Total Appraised Value: | = | $1,119,242 | |
| (–) Senior Exemption Loss: | – | $0 | |
| (–) Exemption Loss: | – | $0 | |
| | | -------------------------- | |
| (=) Taxable Value: | = | $1,119,242 | |
Taxing Jurisdiction
| Owner: | OSWALT, RACHEL | | |
| % Ownership: | 100.0000000000% | | |
| Total Value: | $1,119,242 | | |
| Tax Area: | 112 - APPRAISER-OH Schl Dist, outside OH, improved, greater than 1 acre |
| CF | Conservation Futures | 0.0316035091 | $1,119,242 | $1,119,242 | $35.37 | | |
| CEM1 | Cemetery #1 | 0.0040320932 | $1,119,242 | $1,119,242 | $4.51 | | |
| FIRE2 | Fire & Rescue Dist #2 N Whidbey GEN | 0.5475949600 | $1,119,242 | $1,119,242 | $612.89 | | |
| HOBOND | Hospital BOND | 0.1910887512 | $1,119,242 | $1,119,242 | $213.87 | | |
| HOGEN | Hospital GEN | 0.3902502903 | $1,119,242 | $1,119,242 | $436.78 | | |
| CE | County Current Expense | 0.3708482477 | $1,119,242 | $1,119,242 | $415.07 | | |
| CR | County Roads | 0.4584763726 | $1,119,242 | $1,119,242 | $513.15 | | |
| ISLANDEMS | Hospital GEN (EMS) | 0.5000000000 | $1,119,242 | $1,119,242 | $559.62 | | |
| LIB | Library Sno-Isle GEN | 0.3153421757 | $1,119,242 | $1,119,242 | $352.94 | | |
| NWHIDPRMT | P & R N Whidbey GEN | 0.2004466701 | $1,119,242 | $1,119,242 | $224.35 | | |
| SCH201MO | School 201 Enrichment | 1.8559231640 | $1,119,242 | $1,119,242 | $2,077.23 | | |
| ST | State School | 1.3035497053 | $1,119,242 | $1,119,242 | $1,458.99 | | |
| ST2 | State School Part 2 | 0.8169543533 | $1,119,242 | $1,119,242 | $914.37 | | |
| | Total Tax Rate: | 6.9861102925 | | | | | |
| | | | | Taxes w/Current Exemptions: | $7,819.14 | | |
| | | | | Taxes w/o Exemptions: | $7,819.14 | | |
Improvement / Building
| Improvement #1: | COMMERCIAL | State Code: | F1 | 2016.0 sqft | Value: | $67,697 |
| Bathrooms: | 0 | Bedrooms: | 0 | | Ceiling: | (NONE) | Exterior Wall/Cover: | VINYL | | Floor Covering: | (NONE) | Floor Structure: | SLAB ON GRADE | | Foundation: | SLAB/CONCRETE | Interior Finish: | (NONE) | | Plumbing Fixture Cnt: | 1 | Roof Slope: | 4" IN 12" | | Roof Structure/Cover: | CJ ALUMINIUM HEAVY |   |   |
|
| Improvement #2: | COMMERCIAL | State Code: | F1 | 2016.0 sqft | Value: | $67,697 |
| Bathrooms: | 0 | Bedrooms: | 0 | | Ceiling: | (NONE) | Exterior Wall/Cover: | VINYL | | Floor Covering: | (NONE) | Floor Structure: | SLAB ON GRADE | | Foundation: | SLAB/CONCRETE | Interior Finish: | (NONE) | | Plumbing Fixture Cnt: | 1 | Roof Slope: | 4" IN 12" | | Roof Structure/Cover: | CJ ALUMINIUM HEAVY |   |   |
|
| Improvement #3: | COMMERCIAL | State Code: | F1 | 2016.0 sqft | Value: | $67,697 |
| Bathrooms: | 0 | Bedrooms: | 0 | | Ceiling: | (NONE) | Exterior Wall/Cover: | VINYL | | Floor Covering: | (NONE) | Floor Structure: | SLAB ON GRADE | | Foundation: | SLAB/CONCRETE | Interior Finish: | (NONE) | | Plumbing Fixture Cnt: | 1 | Roof Slope: | 4" IN 12" | | Roof Structure/Cover: | CJ ALUMINIUM HEAVY |   |   |
|
| Improvement #4: | COMMERCIAL | State Code: | F1 | 944.0 sqft | Value: | $212,995 |
| Bathrooms: | 1 | Bedrooms: | 1 | | Ceiling: | DRYWALL PAINTED | Exterior Wall/Cover: | LOG TO 10" | | Floor Covering: | CARPET 100% | Floor Structure: | WOOD W/SUBFLOOR | | Foundation: | CONCRETE | Heating: | WALL HEAT ELECTRIC | | Interior Finish: | DRYWALL PAINT | Plumbing Fixture Cnt: | 3 | | Roof Slope: | 5" IN 12" | Roof Structure/Cover: | CJ ALUMINIUM HEAVY |
|
| | Type | Description | Class CD | Sub Class CD | Year Built | Area |
| | BAS | BASE/MAIN FLOOR | 3 | 0 | 1965 | 720.0 |
| | OWP | OPEN WOOD PORCH W/STEPS | 3 | 0 | 1965 | 144.0 |
| | LOF | LOFT | 3 | 0 | 1965 | 224.0 |
| | OP3 | OPEN PORCH W/ROOF | 3 | 0 | 1965 | 336.0 |
| | oEQU | EQUIP SHED | 3 | 0 | 1965 | 384.0 |
| | oPOL | POLE BARN | 2 | 0 | 1965 | 3528.0 |
| Improvement #5: | RESIDENTIAL | State Code: | F1 | 1985.8 sqft | Value: | $291,459 |
| Bathrooms: | 2 | Bedrooms: | 2 | | Ceiling: | BEAM PAINTED | Exterior Wall/Cover: | PLY/HARDBOARD T-111 | | Floor Covering: | CARPET/VINYL 80-20 | Floor Structure: | WOOD W/SUBFLOOR | | Foundation: | CONCRETE | Heating: | FHA ELECTRIC | | Interior Finish: | DRYWALL PAINT | Plumbing Fixture Cnt: | 9 | | Roof Slope: | 12" IN 12" | Roof Structure/Cover: | BEAM ALUMINUM HEAVY |
|
| | Type | Description | Class CD | Sub Class CD | Year Built | Area |
| | BAS | BASE/MAIN FLOOR | 3 | 0 | 1980 | 1228.4 |
| | BGR | BASEMENT GARAGE | 3 | 0 | 1980 | 1200.0 |
| | UPS | UPPER STORY | 3 | 0 | 1980 | 757.4 |
| | BAR | BALCONY W/ROOF | 3 | 0 | 1980 | 48.0 |
| | OWP | OPEN WOOD PORCH W/STEPS | 3 | 0 | 1980 | 45.6 |
| | OWP | OPEN WOOD PORCH W/STEPS | 3 | 0 | 1980 | 48.0 |
| Improvement #6: | MISC | State Code: | F1 | 1760.0 sqft | Value: | $11,000 |
| Bathrooms: | 0 | Bedrooms: | 0 | | Exterior Wall/Cover: | STL/ALUM/SINGWL ST F | Floor Structure: | CONCRETE ON GROUND | | Foundation: | SLAB | Interior Finish: | MINI-WAREHOUSE | | Plumbing Fixture Cnt: | 1 | Roof Structure/Cover: | STEEL TERNE |
|
| Improvement #7: | COMMERCIAL | State Code: | F1 | 2016.0 sqft | Value: | $67,697 |
| Bathrooms: | 0 | Bedrooms: | 0 | | Ceiling: | (NONE) | Exterior Wall/Cover: | VINYL | | Floor Covering: | (NONE) | Floor Structure: | SLAB ON GRADE | | Foundation: | SLAB | Interior Finish: | (NONE) | | Plumbing Fixture Cnt: | 1 | Roof Slope: | 4" IN 12" | | Roof Structure/Cover: | CJ ALUMINIUM HEAVY |   |   |
|
| Improvement #8: | MISC | State Code: | F1 | 1760.0 sqft | Value: | $11,000 |
| Bathrooms: | 0 | Bedrooms: | 0 | | Exterior Wall/Cover: | STL/ALUM/SINGWL ST F | Floor Structure: | CONCRETE ON GROUND | | Foundation: | SLAB | Interior Finish: | MINI-WAREHOUSE | | Plumbing Fixture Cnt: | 1 | Roof Structure/Cover: | STEEL TERNE |
|
| Improvement #9: | MISC | State Code: | F1 | 1760.0 sqft | Value: | $11,000 |
| Bathrooms: | 0 | Bedrooms: | 0 | | Exterior Wall/Cover: | STL/ALUM/SINGWL ST F | Floor Structure: | CONCRETE ON GROUND | | Foundation: | SLAB | Interior Finish: | MINI-WAREHOUSE | | Plumbing Fixture Cnt: | 1 | Roof Structure/Cover: | STEEL TERNE |
|
| Improvement #10: | MISC | State Code: | F1 | 1760.0 sqft | Value: | $11,000 |
| Bathrooms: | 0 | Bedrooms: | 0 | | Exterior Wall/Cover: | STL/ALUM/SINGWL ST F | Floor Structure: | CONCRETE ON GROUND | | Foundation: | SLAB | Interior Finish: | MINI-WAREHOUSE | | Plumbing Fixture Cnt: | 1 | Roof Structure/Cover: | STEEL TERNE |
|
Sketch
Property Image
Land
| 1 | 72 | INDUSTRIAL STORAGE | 4.0400 | 175982.40 | 0.00 | 0.00 | 1.00 | $300,000 | $0 |
Roll Value History
| 2026 | N/A | N/A | N/A | N/A | N/A |
| 2025 | $819,242 | $300,000 | $0 | $1,119,242 | $1,119,242 |
| 2024 | $803,023 | $270,000 | $0 | $1,073,023 | $1,073,023 |
| 2023 | $833,209 | $270,000 | $0 | $1,103,209 | $1,103,209 |
| 2022 | $748,409 | $140,000 | $0 | $888,409 | $888,409 |
| 2021 | $676,592 | $140,000 | $0 | $816,592 | $756,592 |
| 2020 | $666,525 | $140,000 | $0 | $806,525 | $746,525 |
| 2019 | $549,347 | $200,000 | $0 | $749,347 | $689,250 |
| 2018 | $550,753 | $175,000 | $0 | $725,753 | $581,071 |
| 2017 | $553,543 | $58,778 | $0 | $612,321 | $495,335 |
| 2016 | $692,456 | $58,778 | $0 | $751,234 | $644,268 |
| 2015 | $692,456 | $58,778 | $0 | $751,234 | $644,268 |
| 2014 | $692,456 | $58,778 | $0 | $751,234 | $688,858 |
| 2013 | $692,456 | $58,778 | $0 | $751,234 | $688,858 |
| 2012 | $692,456 | $58,778 | $0 | $751,234 | $751,234 |
| 2011 | $692,456 | $58,778 | $0 | $751,234 | $751,234 |
| 2010 | $821,156 | $58,778 | $0 | $879,934 | $879,934 |
| 2009 | $840,764 | $79,503 | $0 | $920,267 | $920,267 |
| 2008 | $850,292 | $84,095 | $0 | $934,387 | $934,387 |
| 2007 | $863,132 | $85,365 | $0 | $948,497 | $948,497 |
Deed and Sales History
| 1 | 03/22/2023 | WD | Warranty Deed | JENKINS, OSCAR H | OSWALT, RACHEL | | | $1,200,000.00 | 56181 | 4558004 |
|   | |
| 2 | 06/05/2009 | QCD | Quit Claim Deed | JENKINS, OSCAR H | JENKINS, OSCAR H | | | $0.00 | 91241 | 4253020 |
| 3 | 06/01/2005 | QCD | Quit Claim Deed | JENKINS, OSCAR H | JENKINS, OSCAR H | | | $0.00 | 53608 | 4142275 |
| 4 | 04/21/2005 | WD | Warranty Deed | JENKINS, OSCAR H | JENKINS, OSCAR H | | | $310,334.00 | 52229 | 4134832 |
| 5 | 05/01/1979 | OTHER | Other - Misc. Documents | Unknown | JENKINS, OSCAR H | | | $0.00 | 92272 | 352250 |
Payout Agreement
| No payout information available.. |