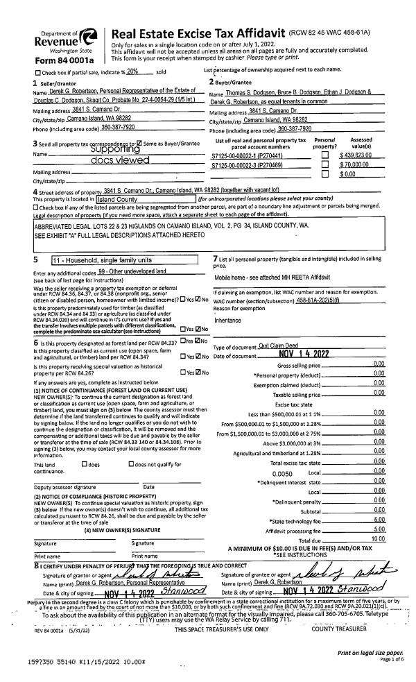
Property
Account |
| Property ID: | 320067 | Abbreviated Legal Description: | MARINERS BCH LOT 1 & 2 |
| Geographic ID: | S7480-00-00001-0 | Agent Code: | |
| Type: | Real | | |
| Tax Area: | 312 - APPRAISER-Cpvl Schl Dist, outside Cpvl, improved, greater than 1 acre | Land Use Code | 11 |
| Open Space: | N | DFL | N |
| Historic Property: | N | Remodel Property: | N |
| Multi-Family Redevelopment: | N | | |
| Township: | | Section: | |
| Range: | |
Location |
| Address: | 643 RACE RD COUPEVILLE, WA 98239 | Mapsco: | |
| Neighborhood: | Cycle 2 | Map ID: | 466 |
| Neighborhood CD: | 2 |
Owner |
| Name: | VORAUER TTEE, CLAIRE | Owner ID: | 314825 |
| Mailing Address: | 643 RACE RD COUPEVILLE, WA 98239 | % Ownership: | 100.0000000000% |
| | | Exemptions: | |
Taxes and Assessment Details
Values
| (+) Improvement Homesite Value: | + | $0 | |
| (+) Improvement Non-Homesite Value: | + | $650,769 | |
| (+) Land Homesite Value: | + | $0 | |
| (+) Land Non-Homesite Value: | + | $677,000 | |
| (+) Curr Use (HS): | + | $0 | $0 |
| (+) Curr Use (NHS): | + | $0 | $0 |
| | | -------------------------- | |
| (=) Market Value: | = | $1,327,769 | |
| (–) Productivity Loss: | – | $0 | |
| | | -------------------------- | |
| (=) Subtotal: | = | $1,327,769 | |
| (+) Senior Appraised Value: | + | $0 | |
| (+) Non-Senior Appraised Value: | + | $1,327,769 | |
| | | -------------------------- | |
| (=) Total Appraised Value: | = | $1,327,769 | |
| (–) Senior Exemption Loss: | – | $0 | |
| (–) Exemption Loss: | – | $0 | |
| | | -------------------------- | |
| (=) Taxable Value: | = | $1,327,769 | |
Taxing Jurisdiction
| Owner: | VORAUER TTEE, CLAIRE | | |
| % Ownership: | 100.0000000000% | | |
| Total Value: | $1,327,769 | | |
| Tax Area: | 312 - APPRAISER-Cpvl Schl Dist, outside Cpvl, improved, greater than 1 acre |
| CF | Conservation Futures | 0.0316035091 | $1,327,769 | $1,327,769 | $41.96 | | |
| CEM2 | Cemetery #2 | 0.0095056933 | $1,327,769 | $1,327,769 | $12.62 | | |
| FIRE5 | Fire & Rescue Dist #5 C Whidbey GEN | 1.2008080668 | $1,327,769 | $1,327,769 | $1,594.40 | | |
| FIRE5BOND | Fire & Rescue Dist #5 C Whidbey BOND | 0.1400090713 | $1,327,769 | $1,327,769 | $185.90 | | |
| HOBOND | Hospital BOND | 0.1910887512 | $1,327,769 | $1,327,769 | $253.72 | | |
| HOGEN | Hospital GEN | 0.3902502903 | $1,327,769 | $1,327,769 | $518.16 | | |
| CE | County Current Expense | 0.3708482477 | $1,327,769 | $1,327,769 | $492.40 | | |
| CR | County Roads | 0.4584763726 | $1,327,769 | $1,327,769 | $608.75 | | |
| ISLANDEMS | Hospital GEN (EMS) | 0.5000000000 | $1,327,769 | $1,327,769 | $663.88 | | |
| LIB | Library Sno-Isle GEN | 0.3153421757 | $1,327,769 | $1,327,769 | $418.70 | | |
| LIBCAP | Library Sno-Isle BOND (Cap Fac Imp Area) | 0.0543427938 | $1,327,769 | $1,327,769 | $72.15 | | |
| POCOUP | Port of Coupeville GEN | 0.1093371703 | $1,327,769 | $1,327,769 | $145.17 | | |
| POCOUPIDD | Port of Coupeville IDD | 0.3409740022 | $1,327,769 | $1,327,769 | $452.73 | | |
| COUPSDTECH | School 204 CP (TECH) | 0.7545480007 | $1,327,769 | $1,327,769 | $1,001.87 | | |
| SCH204MO | School 204 Enrichment | 0.6716186034 | $1,327,769 | $1,327,769 | $891.75 | | |
| ST | State School | 1.3035497053 | $1,327,769 | $1,327,769 | $1,730.81 | | |
| ST2 | State School Part 2 | 0.8169543533 | $1,327,769 | $1,327,769 | $1,084.73 | | |
| | Total Tax Rate: | 7.6592568070 | | | | | |
| | | | | Taxes w/Current Exemptions: | $10,169.70 | | |
| | | | | Taxes w/o Exemptions: | $10,169.70 | | |
Improvement / Building
| Improvement #1: | RESIDENTIAL | State Code: | Y | 1748.2 sqft | Value: | $650,769 |
| Bathrooms: | 2.5 | Bedrooms: | 1 | | Ceiling: | TONGUE & GROOVE | Exterior Wall/Cover: | WOOD SIDING | | Floor Covering: | TILE CERAMIC | Floor Structure: | WOOD W/SUBFLOOR | | Foundation: | CONCRETE | Heating: | RADIANT FLOOR | | Interior Finish: | DRYWALL PAINT | Plumbing Fixture Cnt: | 14 | | Roof Slope: | 6" IN 12" | Roof Structure/Cover: | BEAM ALUMINUM HEAVY |
|
| | Type | Description | Class CD | Sub Class CD | Year Built | Area |
| | BAS | BASE/MAIN FLOOR | 4 | 0 | 2006 | 1748.2 |
| | OP4 | OPEN PORCH W/CEILING-ROOF | 4 | 0 | 2006 | 163.8 |
| | UTY | STORAGE/UTILITY | 4 | 0 | 2006 | 45.0 |
| | OWP | OPEN WOOD PORCH W/STEPS | 4 | 0 | 2006 | 287.5 |
| | OWC | OPEN WOOD PORCH W/STEPS/ROOF/C | 4 | 0 | 2006 | 412.0 |
| | DGR | DETACHED GARAGE | 4 | 0 | 2006 | 864.0 |
| | CPD | OPEN CARPORT DIRT FLOOR | 4 | 0 | 2006 | 264.0 |
Sketch
Property Image
Land
| 1 | HB | HIGH BLUFF | 2.9100 | 126759.60 | 160.00 | 0.00 | 1.00 | $675,000 | $0 |
| 2 | 55 | TIDES | 0.0000 | 0.00 | 200.00 | 0.00 | 1.00 | $2,000 | $0 |
Roll Value History
| 2026 | N/A | N/A | N/A | N/A | N/A |
| 2025 | $650,769 | $677,000 | $0 | $1,327,769 | $1,327,769 |
| 2024 | $639,792 | $652,000 | $0 | $1,291,792 | $1,291,792 |
| 2023 | $645,478 | $627,000 | $0 | $1,272,478 | $1,272,478 |
| 2022 | $588,993 | $502,000 | $0 | $1,090,993 | $1,090,993 |
| 2021 | $516,358 | $452,000 | $0 | $968,358 | $968,358 |
| 2020 | $498,275 | $377,000 | $0 | $875,275 | $875,275 |
| 2019 | $351,944 | $427,000 | $0 | $778,944 | $778,944 |
| 2018 | $342,283 | $375,000 | $0 | $717,283 | $717,283 |
| 2017 | $343,764 | $352,000 | $0 | $695,764 | $695,764 |
| 2016 | $346,723 | $352,000 | $0 | $698,723 | $698,723 |
| 2015 | $349,682 | $352,000 | $0 | $701,682 | $701,682 |
| 2014 | $352,641 | $352,000 | $0 | $704,641 | $704,641 |
| 2013 | $350,929 | $414,923 | $0 | $765,852 | $765,852 |
| 2012 | $352,666 | $414,923 | $0 | $767,589 | $767,589 |
| 2011 | $355,469 | $414,923 | $0 | $770,392 | $770,392 |
| 2010 | $369,411 | $414,923 | $0 | $784,334 | $784,334 |
| 2009 | $382,961 | $464,474 | $0 | $847,435 | $847,435 |
| 2008 | $385,421 | $464,474 | $0 | $849,895 | $849,895 |
| 2007 | $379,994 | $337,133 | $0 | $717,127 | $717,127 |
Deed and Sales History
| 1 | 10/30/2024 | WD | Warranty Deed | VORAUER, CLAIRE | VORAUER TTEE, CLAIRE | | | $0.00 | 62051 | 4580314 |
| 2 | 08/23/2022 | QCD | Quit Claim Deed | VORAUER, GARY K | VORAUER, CLAIRE | | | $0.00 | 54408 | 4550625 |
| 3 | 06/24/2003 | BLA | DNU - Boundary Line Adjustment | VORAUER, GARY | VORAUER, GARY | | | $0.00 | 69910 | 4061720 |
| 4 | 02/25/2003 | WD | Warranty Deed | NELSON, SIDNEY | VORAUER, GARY | | | $90,000.00 | 30829 | 4049567 |
| 5 | 04/01/1979 | OTHER | Other - Misc. Documents | Unknown | NELSON, SIDNEY | | | $40,000.00 | 91853 | 351273 |
Payout Agreement
| No payout information available.. |