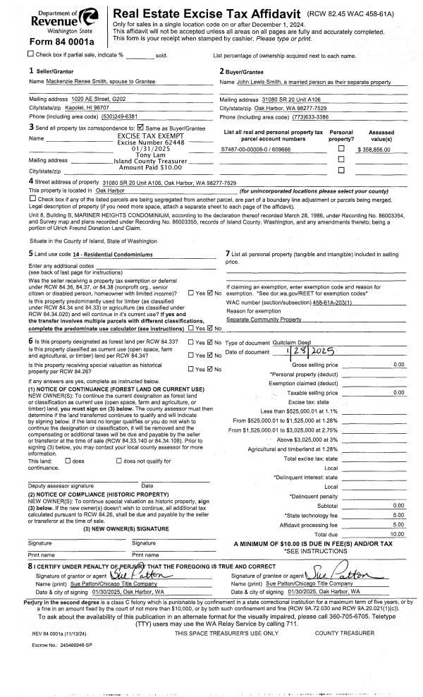
Property
Account |
| Property ID: | 320110 | Abbreviated Legal Description: | MARINERS BCH LOT 6 |
| Geographic ID: | S7480-00-00006-0 | Agent Code: | |
| Type: | Real | | |
| Tax Area: | 312 - APPRAISER-Cpvl Schl Dist, outside Cpvl, improved, greater than 1 acre | Land Use Code | 11 |
| Open Space: | N | DFL | N |
| Historic Property: | N | Remodel Property: | N |
| Multi-Family Redevelopment: | N | | |
| Township: | | Section: | |
| Range: | |
Location |
| Address: | 625 RACE RD COUPEVILLE, WA 98239 | Mapsco: | |
| Neighborhood: | Cycle 2 | Map ID: | 466 |
| Neighborhood CD: | 2 |
Owner |
| Name: | ANDREW DELAIR, RONALD W/ANN/LINDSAY/ | Owner ID: | 10810 |
| Mailing Address: | 2195 MCMILLAN RD ABBOTSFORD BC V2S 4Y4 | % Ownership: | 100.0000000000% |
| | | Exemptions: | |
Taxes and Assessment Details
Values
| (+) Improvement Homesite Value: | + | $0 | |
| (+) Improvement Non-Homesite Value: | + | $16,075 | |
| (+) Land Homesite Value: | + | $0 | |
| (+) Land Non-Homesite Value: | + | $576,000 | |
| (+) Curr Use (HS): | + | $0 | $0 |
| (+) Curr Use (NHS): | + | $0 | $0 |
| | | -------------------------- | |
| (=) Market Value: | = | $592,075 | |
| (–) Productivity Loss: | – | $0 | |
| | | -------------------------- | |
| (=) Subtotal: | = | $592,075 | |
| (+) Senior Appraised Value: | + | $0 | |
| (+) Non-Senior Appraised Value: | + | $592,075 | |
| | | -------------------------- | |
| (=) Total Appraised Value: | = | $592,075 | |
| (–) Senior Exemption Loss: | – | $0 | |
| (–) Exemption Loss: | – | $0 | |
| | | -------------------------- | |
| (=) Taxable Value: | = | $592,075 | |
Taxing Jurisdiction
| Owner: | ANDREW DELAIR, RONALD W/ANN/LINDSAY/ | | |
| % Ownership: | 100.0000000000% | | |
| Total Value: | $592,075 | | |
| Tax Area: | 312 - APPRAISER-Cpvl Schl Dist, outside Cpvl, improved, greater than 1 acre |
| CF | Conservation Futures | 0.0316035091 | $592,075 | $592,075 | $18.71 | | |
| CEM2 | Cemetery #2 | 0.0095056933 | $592,075 | $592,075 | $5.63 | | |
| FIRE5 | Fire & Rescue Dist #5 C Whidbey GEN | 1.2008080668 | $592,075 | $592,075 | $710.97 | | |
| FIRE5BOND | Fire & Rescue Dist #5 C Whidbey BOND | 0.1400090713 | $592,075 | $592,075 | $82.90 | | |
| HOBOND | Hospital BOND | 0.1910887512 | $592,075 | $592,075 | $113.14 | | |
| HOGEN | Hospital GEN | 0.3902502903 | $592,075 | $592,075 | $231.06 | | |
| CE | County Current Expense | 0.3708482477 | $592,075 | $592,075 | $219.57 | | |
| CR | County Roads | 0.4584763726 | $592,075 | $592,075 | $271.45 | | |
| ISLANDEMS | Hospital GEN (EMS) | 0.5000000000 | $592,075 | $592,075 | $296.04 | | |
| LIB | Library Sno-Isle GEN | 0.3153421757 | $592,075 | $592,075 | $186.71 | | |
| LIBCAP | Library Sno-Isle BOND (Cap Fac Imp Area) | 0.0543427938 | $592,075 | $592,075 | $32.18 | | |
| POCOUP | Port of Coupeville GEN | 0.1093371703 | $592,075 | $592,075 | $64.74 | | |
| POCOUPIDD | Port of Coupeville IDD | 0.3409740022 | $592,075 | $592,075 | $201.88 | | |
| COUPSDTECH | School 204 CP (TECH) | 0.7545480007 | $592,075 | $592,075 | $446.75 | | |
| SCH204MO | School 204 Enrichment | 0.6716186034 | $592,075 | $592,075 | $397.65 | | |
| ST | State School | 1.3035497053 | $592,075 | $592,075 | $771.80 | | |
| ST2 | State School Part 2 | 0.8169543533 | $592,075 | $592,075 | $483.70 | | |
| | Total Tax Rate: | 7.6592568070 | | | | | |
| | | | | Taxes w/Current Exemptions: | $4,534.88 | | |
| | | | | Taxes w/o Exemptions: | $4,534.88 | | |
Improvement / Building
| Improvement #1: | MANUFACTURED HOME | State Code: | Y | 396.0 sqft | Value: | $16,075 |
| Bathrooms: | 0 | Bedrooms: | 0 | | Ceiling: | PLASTER PAINTED | Cooling: | EVAP NO DUCT | | Exterior Wall/Cover: | VINYL | Floor Covering: | CARPET 100% | | Floor Structure: | SLAB ON GRADE | Foundation: | SLAB | | Heating: | FHA ELECTRIC | Interior Finish: | PLASTER | | Plumbing Fixture Cnt: | 1 | Roof Slope: | FLAT | | Roof Structure/Cover: | CJ ALUMINIUM HEAVY |   |   |
|
| | Type | Description | Class CD | Sub Class CD | Year Built | Area |
| | BAS | BASE/MAIN FLOOR | 3 | 0 | 1991 | 396.0 |
| | OWR | OPEN WOOD PORCH W/STEPS/ROOF | 3 | 0 | 1991 | 120.0 |
| | OWP | OPEN WOOD PORCH W/STEPS | 3 | 0 | 1991 | 80.0 |
Sketch
Property Image
Land
| 1 | HB | HIGH BLUFF | 1.1700 | 50965.20 | 80.00 | 0.00 | 1.00 | $575,000 | $0 |
| 2 | 55 | TIDES | 0.0000 | 0.00 | 100.00 | 0.00 | 1.00 | $1,000 | $0 |
Roll Value History
| 2026 | N/A | N/A | N/A | N/A | N/A |
| 2025 | $16,075 | $576,000 | $0 | $592,075 | $592,075 |
| 2024 | $18,953 | $551,000 | $0 | $569,953 | $569,953 |
| 2023 | $17,102 | $526,000 | $0 | $543,102 | $543,102 |
| 2022 | $16,050 | $401,000 | $0 | $417,050 | $417,050 |
| 2021 | $14,691 | $351,000 | $0 | $365,691 | $365,691 |
| 2020 | $14,736 | $276,000 | $0 | $290,736 | $290,736 |
| 2019 | $11,986 | $326,000 | $0 | $337,986 | $337,986 |
| 2018 | $8,860 | $275,000 | $0 | $283,860 | $283,860 |
| 2017 | $9,326 | $251,000 | $0 | $260,326 | $260,326 |
| 2016 | $9,637 | $251,000 | $0 | $260,637 | $260,637 |
| 2015 | $9,948 | $201,000 | $0 | $210,948 | $210,948 |
| 2014 | $10,258 | $201,000 | $0 | $211,258 | $211,258 |
| 2013 | $10,569 | $207,462 | $0 | $218,031 | $218,031 |
| 2012 | $21,846 | $207,462 | $0 | $229,308 | $229,308 |
| 2011 | $22,130 | $207,462 | $0 | $229,592 | $229,592 |
| 2010 | $22,848 | $207,462 | $0 | $230,310 | $230,310 |
| 2009 | $23,623 | $169,266 | $0 | $192,889 | $192,889 |
| 2008 | $24,270 | $169,266 | $0 | $193,536 | $193,536 |
| 2007 | $24,614 | $168,566 | $0 | $193,180 | $193,180 |
Deed and Sales History
| 1 | 07/09/2002 | QCD | Quit Claim Deed | Unknown | DELAIR, RONALD W | | | $0.00 | 22632 | 4025053 |
Payout Agreement
| No payout information available.. |