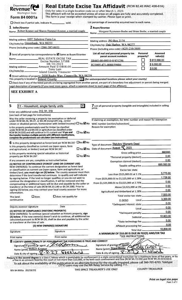
Property
Account |
| Property ID: | 32020 | Abbreviated Legal Description: | 29 - W/2 SE SE SW TGW & SUB EZ |
| Geographic ID: | R13302-033-2150 | Agent Code: | |
| Type: | Real | | |
| Tax Area: | 112 - APPRAISER-OH Schl Dist, outside OH, improved, greater than 1 acre | Land Use Code | 11 |
| Open Space: | N | DFL | N |
| Historic Property: | N | Remodel Property: | N |
| Multi-Family Redevelopment: | N | | |
| Township: | 33 | Section: | 02 |
| Range: | R1 |
Location |
| Address: | 643 RICHARDSON CT OAK HARBOR, WA 98277 | Mapsco: | |
| Neighborhood: | Cycle 6 | Map ID: | 193 |
| Neighborhood CD: | 6 |
Owner |
| Name: | RICHARDSON, MARLIE O | Owner ID: | 256628 |
| Mailing Address: | 643 RICHARDSON COURT OAK HARBOR, WA 98277 | % Ownership: | 100.0000000000% |
| | | Exemptions: | |
Taxes and Assessment Details
Values
| (+) Improvement Homesite Value: | + | $0 | |
| (+) Improvement Non-Homesite Value: | + | $203,190 | |
| (+) Land Homesite Value: | + | $0 | |
| (+) Land Non-Homesite Value: | + | $300,000 | |
| (+) Curr Use (HS): | + | $0 | $0 |
| (+) Curr Use (NHS): | + | $0 | $0 |
| | | -------------------------- | |
| (=) Market Value: | = | $503,190 | |
| (–) Productivity Loss: | – | $0 | |
| | | -------------------------- | |
| (=) Subtotal: | = | $503,190 | |
| (+) Senior Appraised Value: | + | $0 | |
| (+) Non-Senior Appraised Value: | + | $503,190 | |
| | | -------------------------- | |
| (=) Total Appraised Value: | = | $503,190 | |
| (–) Senior Exemption Loss: | – | $0 | |
| (–) Exemption Loss: | – | $0 | |
| | | -------------------------- | |
| (=) Taxable Value: | = | $503,190 | |
Taxing Jurisdiction
| Owner: | RICHARDSON, MARLIE O | | |
| % Ownership: | 100.0000000000% | | |
| Total Value: | $503,190 | | |
| Tax Area: | 112 - APPRAISER-OH Schl Dist, outside OH, improved, greater than 1 acre |
| CF | Conservation Futures | 0.0316035091 | $503,190 | $503,190 | $15.90 | | |
| CEM1 | Cemetery #1 | 0.0040320932 | $503,190 | $503,190 | $2.03 | | |
| FIRE2 | Fire & Rescue Dist #2 N Whidbey GEN | 0.5475949600 | $503,190 | $503,190 | $275.54 | | |
| HOBOND | Hospital BOND | 0.1910887512 | $503,190 | $503,190 | $96.15 | | |
| HOGEN | Hospital GEN | 0.3902502903 | $503,190 | $503,190 | $196.37 | | |
| CE | County Current Expense | 0.3708482477 | $503,190 | $503,190 | $186.61 | | |
| CR | County Roads | 0.4584763726 | $503,190 | $503,190 | $230.70 | | |
| ISLANDEMS | Hospital GEN (EMS) | 0.5000000000 | $503,190 | $503,190 | $251.60 | | |
| LIB | Library Sno-Isle GEN | 0.3153421757 | $503,190 | $503,190 | $158.68 | | |
| NWHIDPRMT | P & R N Whidbey GEN | 0.2004466701 | $503,190 | $503,190 | $100.86 | | |
| SCH201MO | School 201 Enrichment | 1.8559231640 | $503,190 | $503,190 | $933.88 | | |
| ST | State School | 1.3035497053 | $503,190 | $503,190 | $655.93 | | |
| ST2 | State School Part 2 | 0.8169543533 | $503,190 | $503,190 | $411.08 | | |
| | Total Tax Rate: | 6.9861102925 | | | | | |
| | | | | Taxes w/Current Exemptions: | $3,515.33 | | |
| | | | | Taxes w/o Exemptions: | $3,515.33 | | |
Improvement / Building
| Improvement #1: | RESIDENTIAL | State Code: | Y | 1464.0 sqft | Value: | $203,190 |
| Bathrooms: | 2 | Bedrooms: | 3 | | Ceiling: | DRY WALL SPRAYED | Exterior Wall/Cover: | PLY/HARDBOARD T-111 | | Floor Covering: | CARPET/VINYL 80-20 | Floor Structure: | WOOD W/SUBFLOOR | | Foundation: | CONCRETE | Heating: | BASEBOARD ELECTRIC | | Interior Finish: | DRYWALL PAINT | Plumbing Fixture Cnt: | 9 | | Roof Slope: | 5" IN 12" | Roof Structure/Cover: | CJ ASPHALT |
|
| | Type | Description | Class CD | Sub Class CD | Year Built | Area |
| | BAS | BASE/MAIN FLOOR | 3 | 0 | 1978 | 944.0 |
| | UB8 | BASEMENT UNFINISHED 8" | 3 | 0 | 1978 | 780.0 |
| | UPS | UPPER STORY | 3 | 0 | 1978 | 520.0 |
| | OWP | OPEN WOOD PORCH W/STEPS | 3 | 0 | 1978 | 70.0 |
| | OWP | OPEN WOOD PORCH W/STEPS | 3 | 0 | 1978 | 156.0 |
| | DGR | DETACHED GARAGE | 3 | 0 | 1978 | 676.0 |
Sketch
Property Image
Land
| 1 | 32 | AC (03.01-09.99) | 5.0000 | 0.00 | 0.00 | 0.00 | 1.00 | $300,000 | $0 |
Roll Value History
| 2026 | N/A | N/A | N/A | N/A | N/A |
| 2025 | $203,190 | $300,000 | $0 | $503,190 | $503,190 |
| 2024 | $210,894 | $280,000 | $0 | $490,894 | $490,894 |
| 2023 | $214,228 | $270,000 | $0 | $484,228 | $484,228 |
| 2022 | $197,004 | $240,000 | $0 | $437,004 | $437,004 |
| 2021 | $173,930 | $175,000 | $0 | $348,930 | $348,930 |
| 2020 | $169,931 | $140,000 | $0 | $309,931 | $309,931 |
| 2019 | $122,177 | $200,000 | $0 | $322,177 | $322,177 |
| 2018 | $122,624 | $175,000 | $0 | $297,624 | $297,624 |
| 2017 | $123,520 | $140,000 | $0 | $263,520 | $263,520 |
| 2016 | $116,819 | $140,000 | $0 | $256,819 | $256,819 |
| 2015 | $118,644 | $120,000 | $0 | $238,644 | $238,644 |
| 2014 | $120,469 | $112,500 | $0 | $232,969 | $232,969 |
| 2013 | $122,295 | $112,500 | $0 | $234,795 | $234,795 |
| 2012 | $124,120 | $112,500 | $0 | $236,620 | $236,620 |
| 2011 | $125,944 | $125,000 | $0 | $250,944 | $250,944 |
| 2010 | $137,531 | $125,000 | $0 | $262,531 | $262,531 |
| 2009 | $143,356 | $125,000 | $0 | $268,356 | $268,356 |
| 2008 | $150,671 | $147,500 | $0 | $298,171 | $298,171 |
| 2007 | $151,678 | $147,500 | $0 | $299,178 | $299,178 |
Deed and Sales History
| 1 | 12/22/2011 | ESTSEPPROP | Establish Separate Property | RICHARDSON, MARLIE O | RICHARDSON, MARLIE O | | | $0.00 | 6623 | 4308112 |
| 2 | 11/01/1979 | WD | Warranty Deed | OSTRUM, DALE | RICHARDSON, MARLIE O | | | $68,000.00 | 95633 | 362225 |
| 3 | 01/01/1900 | OTHER | Other - Misc. Documents | Unknown | OSTRUM, DALE | | | $0.00 | 0 | 0 |
Payout Agreement
| No payout information available.. |