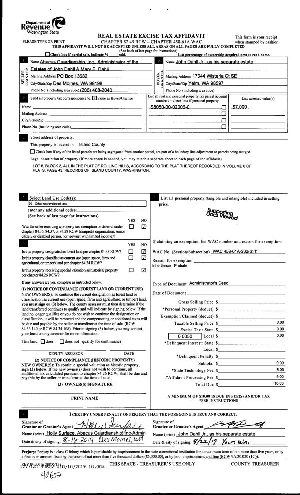
Property
Account |
| Property ID: | 320469 | Abbreviated Legal Description: | MARINERS CV 3 LOT 18 |
| Geographic ID: | S7485-00-00018-0 | Agent Code: | |
| Type: | Real | | |
| Tax Area: | 110 - APPRAISER-OH Schl Dist, outside OH, improved & 1 acre or less | Land Use Code | 11 |
| Open Space: | N | DFL | N |
| Historic Property: | N | Remodel Property: | N |
| Multi-Family Redevelopment: | N | | |
| Township: | | Section: | |
| Range: | |
Location |
| Address: | 2287 MARINER BEACH DR OAK HARBOR, WA 98277 | Mapsco: | |
| Neighborhood: | Cycle 6 | Map ID: | 538 |
| Neighborhood CD: | 6 |
Owner |
| Name: | YANABU, DIANE | Owner ID: | 314922 |
| Mailing Address: | GARRICK YANABU 2287 MARINER BEACH DRIVE OAK HARBOR, WA 98277 | % Ownership: | 100.0000000000% |
| | | Exemptions: | |
Taxes and Assessment Details
Values
| (+) Improvement Homesite Value: | + | $0 | |
| (+) Improvement Non-Homesite Value: | + | $488,803 | |
| (+) Land Homesite Value: | + | $0 | |
| (+) Land Non-Homesite Value: | + | $295,000 | |
| (+) Curr Use (HS): | + | $0 | $0 |
| (+) Curr Use (NHS): | + | $0 | $0 |
| | | -------------------------- | |
| (=) Market Value: | = | $783,803 | |
| (–) Productivity Loss: | – | $0 | |
| | | -------------------------- | |
| (=) Subtotal: | = | $783,803 | |
| (+) Senior Appraised Value: | + | $0 | |
| (+) Non-Senior Appraised Value: | + | $783,803 | |
| | | -------------------------- | |
| (=) Total Appraised Value: | = | $783,803 | |
| (–) Senior Exemption Loss: | – | $0 | |
| (–) Exemption Loss: | – | $0 | |
| | | -------------------------- | |
| (=) Taxable Value: | = | $783,803 | |
Taxing Jurisdiction
| Owner: | YANABU, DIANE | | |
| % Ownership: | 100.0000000000% | | |
| Total Value: | $783,803 | | |
| Tax Area: | 110 - APPRAISER-OH Schl Dist, outside OH, improved & 1 acre or less |
| CF | Conservation Futures | 0.0316035091 | $783,803 | $783,803 | $24.77 | | |
| CEM1 | Cemetery #1 | 0.0040320932 | $783,803 | $783,803 | $3.16 | | |
| FIRE2 | Fire & Rescue Dist #2 N Whidbey GEN | 0.5475949600 | $783,803 | $783,803 | $429.21 | | |
| HOBOND | Hospital BOND | 0.1910887512 | $783,803 | $783,803 | $149.78 | | |
| HOGEN | Hospital GEN | 0.3902502903 | $783,803 | $783,803 | $305.88 | | |
| CE | County Current Expense | 0.3708482477 | $783,803 | $783,803 | $290.67 | | |
| CR | County Roads | 0.4584763726 | $783,803 | $783,803 | $359.36 | | |
| ISLANDEMS | Hospital GEN (EMS) | 0.5000000000 | $783,803 | $783,803 | $391.90 | | |
| LIB | Library Sno-Isle GEN | 0.3153421757 | $783,803 | $783,803 | $247.17 | | |
| NWHIDPRMT | P & R N Whidbey GEN | 0.2004466701 | $783,803 | $783,803 | $157.11 | | |
| SCH201MO | School 201 Enrichment | 1.8559231640 | $783,803 | $783,803 | $1,454.68 | | |
| ST | State School | 1.3035497053 | $783,803 | $783,803 | $1,021.73 | | |
| ST2 | State School Part 2 | 0.8169543533 | $783,803 | $783,803 | $640.33 | | |
| | Total Tax Rate: | 6.9861102925 | | | | | |
| | | | | Taxes w/Current Exemptions: | $5,475.75 | | |
| | | | | Taxes w/o Exemptions: | $5,475.75 | | |
Improvement / Building
| Improvement #1: | RESIDENTIAL | State Code: | Y | 2572.7 sqft | Value: | $488,803 |
| Bathrooms: | 2.5 | Bedrooms: | 2 | | Ceiling: | DRYWALL PAINTED | Exterior Wall/Cover: | VINYL | | Floor Covering: | VINYL TILE | Floor Structure: | SLAB ON GRADE | | Foundation: | SLAB | Heating: | FHA GAS | | Interior Finish: | DRYWALL PAINT | Plumbing Fixture Cnt: | 14 | | Roof Slope: | 4" IN 12" | Roof Structure/Cover: | CJ ASPHALT |
|
| | Type | Description | Class CD | Sub Class CD | Year Built | Area |
| | BAS | BASE/MAIN FLOOR | 4 | 0 | 1982 | 1532.7 |
| | OP3 | OPEN PORCH W/ROOF | 4 | 0 | 1982 | 144.1 |
| | AGR | ATTACHED GARAGE | 4 | 0 | 1982 | 720.0 |
| | UTY | STORAGE/UTILITY | 4 | 0 | 1982 | 96.0 |
| | DWN | DOWNSTAIRS LIVING AREA | 4 | 0 | 1982 | 1040.0 |
| | OP3 | OPEN PORCH W/ROOF | 4 | 0 | 1982 | 251.2 |
| | ENP | ENCLOSED PORCH | 4 | 0 | 1982 | 136.0 |
| | ENP | ENCLOSED PORCH | 4 | 0 | 1982 | 224.0 |
Sketch
| No sketches available for this property. |
Property Image
Land
| 1 | 15 | SQ (12001-21780) | 0.0000 | 0.00 | 0.00 | 0.00 | 1.00 | $295,000 | $0 |
Roll Value History
| 2026 | N/A | N/A | N/A | N/A | N/A |
| 2025 | $488,803 | $295,000 | $0 | $783,803 | $783,803 |
| 2024 | $443,757 | $270,000 | $0 | $713,757 | $713,757 |
| 2023 | $449,428 | $270,000 | $0 | $719,428 | $719,428 |
| 2022 | $398,765 | $240,000 | $0 | $638,765 | $638,765 |
| 2021 | $351,564 | $170,000 | $0 | $521,564 | $521,564 |
| 2020 | $239,108 | $140,000 | $0 | $379,108 | $379,108 |
| 2019 | $186,815 | $170,000 | $0 | $356,815 | $356,815 |
| 2018 | $187,470 | $165,000 | $0 | $352,470 | $352,470 |
| 2017 | $188,781 | $150,000 | $0 | $338,781 | $338,781 |
| 2016 | $186,784 | $120,000 | $0 | $306,784 | $306,784 |
| 2015 | $189,658 | $120,000 | $0 | $309,658 | $309,658 |
| 2014 | $192,531 | $90,000 | $0 | $282,531 | $282,531 |
| 2013 | $195,405 | $90,000 | $0 | $285,405 | $285,405 |
| 2012 | $198,279 | $90,000 | $0 | $288,279 | $288,279 |
| 2011 | $201,151 | $100,000 | $0 | $301,151 | $301,151 |
| 2010 | $204,859 | $163,000 | $0 | $367,859 | $367,859 |
| 2009 | $213,811 | $190,000 | $0 | $403,811 | $403,811 |
| 2008 | $216,564 | $190,000 | $0 | $406,564 | $406,564 |
| 2007 | $219,317 | $203,000 | $0 | $422,317 | $422,317 |
Deed and Sales History
| 1 | 06/24/2024 | WD | Warranty Deed | KATHLEEN HALE, ADMINISTRATOR | YANABU, DIANE | | | $785,000.00 | 60470 | 4573981 |
| 2 | 05/29/2020 | WD | Warranty Deed | TANT TTEE, JUNE H | PICCININO, LARRY | | | $525,000.00 | 43215 | 4487987 |
| 3 | 09/03/2019 | QCD | Quit Claim Deed | TANT, JUNE H | TANT TTEE, JUNE H | | | $0.00 | 40196 | 4471078 |
| 4 | 05/06/2008 | OTHER | Other - Misc. Documents | TANT SR, ROBERT B | TANT, JUNE H | | | $0.00 | 80727 | 0 |
| 5 | 02/04/2002 | TRUSTEED | Trustee's Deed | REISDORFF, CHARLES J | TANT SR, ROBERT B | | | $272,000.00 | 20610 | 4011739 |
| 6 | 11/01/1982 | PACD | Purchaser's Assignment | CHARLES, REISDORFF C | REISDORFF, CHARLES J | | | $5,570.00 | 22793 | 402817 |
| 7 | 01/01/1900 | OTHER | Other - Misc. Documents | Unknown | CHARLES, REISDORFF C | | | $0.00 | 0 | 0 |
Payout Agreement
| No payout information available.. |