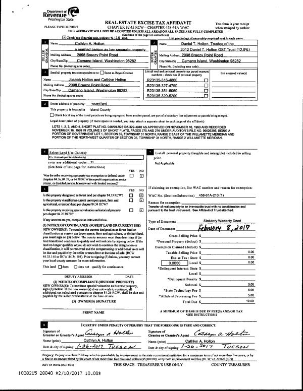
Property
Account |
| Property ID: | 320566 | Abbreviated Legal Description: | MARINERS CV 3 |
| Geographic ID: | S7485-00-00028-0 | Agent Code: | |
| Type: | Real | | |
| Tax Area: | 110 - APPRAISER-OH Schl Dist, outside OH, improved & 1 acre or less | Land Use Code | 11 |
| Open Space: | N | DFL | N |
| Historic Property: | N | Remodel Property: | N |
| Multi-Family Redevelopment: | N | | |
| Township: | | Section: | |
| Range: | |
Location |
| Address: | 2190 AURORA CT OAK HARBOR, WA 98277 | Mapsco: | |
| Neighborhood: | Cycle 6 | Map ID: | 537 |
| Neighborhood CD: | 6 |
Owner |
| Name: | NETTLES, VIOLET A | Owner ID: | 269917 |
| Mailing Address: | 2190 AURORA COURT OAK HARBOR, WA 98277 | % Ownership: | 100.0000000000% |
| | | Exemptions: | SNR/DSBL |
Taxes and Assessment Details
Values
| (+) Improvement Homesite Value: | + | $303,690 | |
| (+) Improvement Non-Homesite Value: | + | $0 | |
| (+) Land Homesite Value: | + | $255,000 | |
| (+) Land Non-Homesite Value: | + | $0 | |
| (+) Curr Use (HS): | + | $0 | $0 |
| (+) Curr Use (NHS): | + | $0 | $0 |
| | | -------------------------- | |
| (=) Market Value: | = | $558,690 | |
| (–) Productivity Loss: | – | $0 | |
| | | -------------------------- | |
| (=) Subtotal: | = | $558,690 | |
| (+) Senior Appraised Value: | + | $558,690 | |
| (+) Non-Senior Appraised Value: | + | $0 | |
| | | -------------------------- | |
| (=) Total Appraised Value: | = | $558,690 | |
| (–) Senior Exemption Loss: | – | $0 | |
| (–) Exemption Loss: | – | $0 | |
| | | -------------------------- | |
| (=) Taxable Value: | = | $558,690 | |
Taxing Jurisdiction
| Owner: | NETTLES, VIOLET A | | |
| % Ownership: | 100.0000000000% | | |
| Total Value: | $558,690 | | |
| Tax Area: | 110 - APPRAISER-OH Schl Dist, outside OH, improved & 1 acre or less |
| CF | Conservation Futures | 0.0316035091 | $558,690 | $558,690 | $17.66 | | |
| CEM1 | Cemetery #1 | 0.0040320932 | $558,690 | $558,690 | $2.25 | | |
| FIRE2 | Fire & Rescue Dist #2 N Whidbey GEN | 0.5475949600 | $558,690 | $558,690 | $305.94 | | |
| HOBOND | Hospital BOND | 0.0000000000 | $558,690 | $0 | $0.00 | | |
| HOGEN | Hospital GEN | 0.3902502903 | $558,690 | $558,690 | $218.03 | | |
| CE | County Current Expense | 0.3708482477 | $558,690 | $558,690 | $207.19 | | |
| CR | County Roads | 0.4584763726 | $558,690 | $558,690 | $256.15 | | |
| ISLANDEMS | Hospital GEN (EMS) | 0.5000000000 | $558,690 | $558,690 | $279.35 | | |
| LIB | Library Sno-Isle GEN | 0.3153421757 | $558,690 | $558,690 | $176.18 | | |
| NWHIDPRMT | P & R N Whidbey GEN | 0.2004466701 | $558,690 | $558,690 | $111.99 | | |
| SCH201MO | School 201 Enrichment | 0.0000000000 | $558,690 | $0 | $0.00 | | |
| ST | State School | 1.3035497053 | $558,690 | $558,690 | $728.28 | | |
| ST2 | State School Part 2 | 0.0000000000 | $558,690 | $0 | $0.00 | | |
| | Total Tax Rate: | 4.1221440240 | | | | | |
| | | | | Taxes w/Current Exemptions: | $2,303.02 | | |
| | | | | Taxes w/o Exemptions: | $3,903.09 | | |
Improvement / Building
| Improvement #1: | RESIDENTIAL | State Code: | Y | 2950.0 sqft | Value: | $303,690 |
| Bathrooms: | 2.5 | Bedrooms: | 4 | | Ceiling: | DRY WALL SPRAYED | Exterior Wall/Cover: | WOOD SIDING | | Floor Covering: | CARPET/VINYL 80-20 | Floor Structure: | WOOD W/SUBFLOOR | | Foundation: | CONCRETE | Heating: | FHA GAS | | Interior Finish: | DRYWALL PAINT | Plumbing Fixture Cnt: | 11 | | Roof Slope: | 4" IN 12" | Roof Structure/Cover: | CJ ASPHALT |
|
| | Type | Description | Class CD | Sub Class CD | Year Built | Area |
| | BAS | BASE/MAIN FLOOR | 3 | 0 | 1979 | 1510.0 |
| | AGR | ATTACHED GARAGE | 3 | 0 | 1979 | 624.0 |
| | OWP | OPEN WOOD PORCH W/STEPS | 3 | 0 | 1979 | 400.0 |
| | DWN | DOWNSTAIRS LIVING AREA | 3 | 0 | 1979 | 1440.0 |
Sketch
Property Image
Land
| 1 | 15 | SQ (12001-21780) | 0.0000 | 0.00 | 0.00 | 0.00 | 1.00 | $255,000 | $0 |
Roll Value History
| 2026 | N/A | N/A | N/A | N/A | N/A |
| 2025 | $303,690 | $255,000 | $0 | $558,690 | $558,690 |
| 2024 | $308,075 | $250,000 | $0 | $558,075 | $558,075 |
| 2023 | $312,461 | $250,000 | $0 | $562,461 | $562,461 |
| 2022 | $270,226 | $220,000 | $0 | $490,226 | $490,226 |
| 2021 | $238,423 | $170,000 | $0 | $408,423 | $408,423 |
| 2020 | $233,513 | $140,000 | $0 | $373,513 | $373,513 |
| 2019 | $187,695 | $170,000 | $0 | $357,695 | $357,695 |
| 2018 | $188,354 | $165,000 | $0 | $353,354 | $353,354 |
| 2017 | $189,670 | $150,000 | $0 | $339,670 | $339,670 |
| 2016 | $179,519 | $120,000 | $0 | $299,519 | $299,519 |
| 2015 | $182,282 | $120,000 | $0 | $302,282 | $302,282 |
| 2014 | $185,043 | $90,000 | $0 | $275,043 | $275,043 |
| 2013 | $187,805 | $90,000 | $0 | $277,805 | $277,805 |
| 2012 | $190,567 | $90,000 | $0 | $280,567 | $280,567 |
| 2011 | $193,329 | $100,000 | $0 | $293,329 | $293,329 |
| 2010 | $199,329 | $163,000 | $0 | $362,329 | $362,329 |
| 2009 | $208,156 | $190,000 | $0 | $398,156 | $398,156 |
| 2008 | $210,951 | $190,000 | $0 | $400,951 | $400,951 |
| 2007 | $213,747 | $203,000 | $0 | $416,747 | $416,747 |
Deed and Sales History
| 1 | 03/06/2015 | PRD | Personal Representatives Deed | NETTLES, MICHAEL P | NETTLES, VIOLET A | | | $0.00 | 18735 | 4374661 |
| 2 | 07/01/1983 | EZ | Easement | NETTLES, MICHAEL P | NETTLES, MICHAEL P | | | $0.00 | 60303 | 412563 |
| 3 | 01/01/1900 | OTHER | Other - Misc. Documents | Unknown | NETTLES, MICHAEL P | | | $0.00 | 0 | 0 |
Payout Agreement
| No payout information available.. |