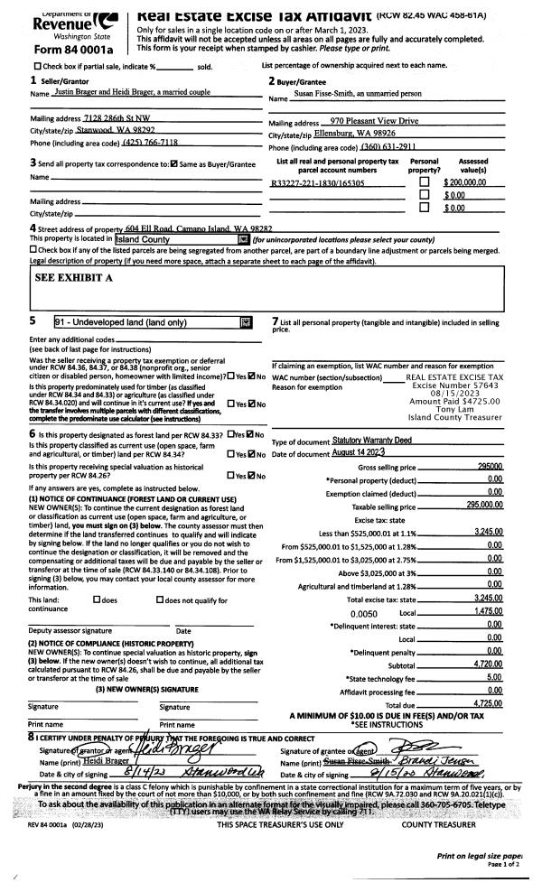
Property
Account |
| Property ID: | 320824 | Abbreviated Legal Description: | MARINERS CV 3 LOT 53 |
| Geographic ID: | S7485-00-00053-0 | Agent Code: | |
| Type: | Real | | |
| Tax Area: | 119 - APPRAISER-OH Schl Dist, outside OH, vacant & 50 acres or less | Land Use Code | 99 |
| Open Space: | N | DFL | N |
| Historic Property: | N | Remodel Property: | N |
| Multi-Family Redevelopment: | N | | |
| Township: | | Section: | |
| Range: | |
Location |
| Address: | | Mapsco: | |
| Neighborhood: | Cycle 6 | Map ID: | 537 |
| Neighborhood CD: | 6 |
Owner |
| Name: | PARRY, MARIANNE | Owner ID: | 179937 |
| Mailing Address: | WILLIAM G PARRY 6731 153RD PL SE BELLEVUE, WA 98006-5422 | % Ownership: | 100.0000000000% |
| | | Exemptions: | |
Taxes and Assessment Details
Values
| (+) Improvement Homesite Value: | + | $0 | |
| (+) Improvement Non-Homesite Value: | + | $0 | |
| (+) Land Homesite Value: | + | $0 | |
| (+) Land Non-Homesite Value: | + | $100,000 | |
| (+) Curr Use (HS): | + | $0 | $0 |
| (+) Curr Use (NHS): | + | $0 | $0 |
| | | -------------------------- | |
| (=) Market Value: | = | $100,000 | |
| (–) Productivity Loss: | – | $0 | |
| | | -------------------------- | |
| (=) Subtotal: | = | $100,000 | |
| (+) Senior Appraised Value: | + | $0 | |
| (+) Non-Senior Appraised Value: | + | $100,000 | |
| | | -------------------------- | |
| (=) Total Appraised Value: | = | $100,000 | |
| (–) Senior Exemption Loss: | – | $0 | |
| (–) Exemption Loss: | – | $0 | |
| | | -------------------------- | |
| (=) Taxable Value: | = | $100,000 | |
Taxing Jurisdiction
| Owner: | PARRY, MARIANNE | | |
| % Ownership: | 100.0000000000% | | |
| Total Value: | $100,000 | | |
| Tax Area: | 119 - APPRAISER-OH Schl Dist, outside OH, vacant & 50 acres or less |
| CF | Conservation Futures | 0.0316035091 | $100,000 | $100,000 | $3.16 | | |
| CEM1 | Cemetery #1 | 0.0040320932 | $100,000 | $100,000 | $0.40 | | |
| HOBOND | Hospital BOND | 0.1910887512 | $100,000 | $100,000 | $19.11 | | |
| HOGEN | Hospital GEN | 0.3902502903 | $100,000 | $100,000 | $39.03 | | |
| CE | County Current Expense | 0.3708482477 | $100,000 | $100,000 | $37.08 | | |
| CR | County Roads | 0.4584763726 | $100,000 | $100,000 | $45.85 | | |
| ISLANDEMS | Hospital GEN (EMS) | 0.5000000000 | $100,000 | $100,000 | $50.00 | | |
| LIB | Library Sno-Isle GEN | 0.3153421757 | $100,000 | $100,000 | $31.53 | | |
| NWHIDPRMT | P & R N Whidbey GEN | 0.2004466701 | $100,000 | $100,000 | $20.04 | | |
| SCH201MO | School 201 Enrichment | 1.8559231640 | $100,000 | $100,000 | $185.59 | | |
| ST | State School | 1.3035497053 | $100,000 | $100,000 | $130.35 | | |
| ST2 | State School Part 2 | 0.8169543533 | $100,000 | $100,000 | $81.70 | | |
| | Total Tax Rate: | 6.4385153325 | | | | | |
| | | | | Taxes w/Current Exemptions: | $643.84 | | |
| | | | | Taxes w/o Exemptions: | $643.84 | | |
Improvement / Building
Sketch
| No sketches available for this property. |
Property Image
Land
| 1 | LB | LOW BANK | 0.0200 | 871.20 | 60.00 | 0.00 | 1.00 | $100,000 | $0 |
Roll Value History
| 2026 | N/A | N/A | N/A | N/A | N/A |
| 2025 | $0 | $100,000 | $0 | $100,000 | $100,000 |
| 2024 | $0 | $100,000 | $0 | $100,000 | $100,000 |
| 2023 | $0 | $75,000 | $0 | $75,000 | $75,000 |
| 2022 | $0 | $75,000 | $0 | $75,000 | $75,000 |
| 2021 | $0 | $70,000 | $0 | $70,000 | $70,000 |
| 2020 | $0 | $50,000 | $0 | $50,000 | $50,000 |
| 2019 | $0 | $50,000 | $0 | $50,000 | $50,000 |
| 2018 | $0 | $40,000 | $0 | $40,000 | $40,000 |
| 2017 | $0 | $40,000 | $0 | $40,000 | $40,000 |
| 2016 | $0 | $40,000 | $0 | $40,000 | $40,000 |
| 2015 | $0 | $40,000 | $0 | $40,000 | $40,000 |
| 2014 | $0 | $40,000 | $0 | $40,000 | $40,000 |
| 2013 | $0 | $27,464 | $0 | $27,464 | $27,464 |
| 2012 | $0 | $27,464 | $0 | $27,464 | $27,464 |
| 2011 | $0 | $27,464 | $0 | $27,464 | $27,464 |
| 2010 | $0 | $27,464 | $0 | $27,464 | $27,464 |
| 2009 | $0 | $27,464 | $0 | $27,464 | $27,464 |
| 2008 | $0 | $27,625 | $0 | $27,625 | $27,625 |
| 2007 | $0 | $27,625 | $0 | $27,625 | $27,625 |
Deed and Sales History
| 1 | 04/29/1999 | WD | Warranty Deed | RICHARDS, MARIO W | PARRY, MARIANNE | | | $29,865.00 | 91628 | 99010391 |
| 2 | 09/01/1995 | QCD | Quit Claim Deed | RICHARDS, MARIO W | RICHARDS, MARIO W | | | $0.00 | 53180 | 95014624 |
| 3 | 08/01/1995 | WD | Warranty Deed | RICHARDS, MARIO W | RICHARDS, MARIO W | | | $4,600.00 | 53179 | 95014623 |
| 4 | 07/01/1995 | QCD | Quit Claim Deed | RICHARDS, MARIO W | RICHARDS, MARIO W | | | $0.00 | 52332 | 95010737 |
| 5 | 01/01/1994 | PRD | Personal Representatives Deed | RICHARDS, MARIO W | RICHARDS, MARIO W | | | $0.00 | 40348 | 94002237 |
| 6 | 01/01/1900 | OTHER | Other - Misc. Documents | Unknown | RICHARDS, MARIO W | | | $0.00 | 0 | 0 |
Payout Agreement
| No payout information available.. |