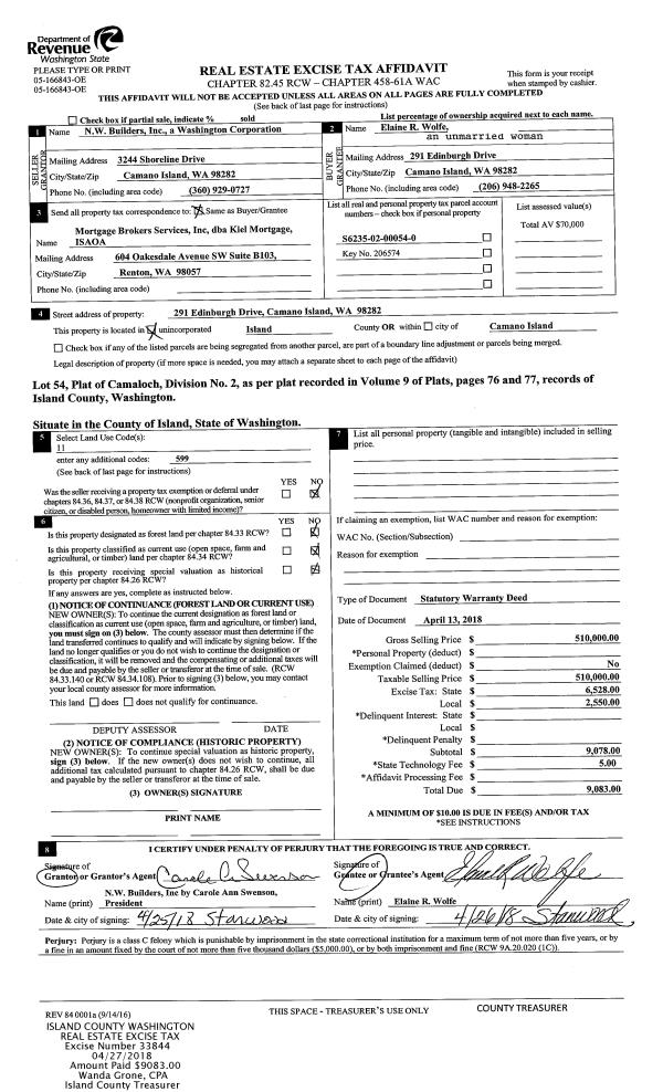
Property
Account |
| Property ID: | 320986 | Abbreviated Legal Description: | MARINERS CV 3 LOT 69 |
| Geographic ID: | S7485-00-00069-0 | Agent Code: | |
| Type: | Real | | |
| Tax Area: | 110 - APPRAISER-OH Schl Dist, outside OH, improved & 1 acre or less | Land Use Code | 11 |
| Open Space: | N | DFL | N |
| Historic Property: | N | Remodel Property: | N |
| Multi-Family Redevelopment: | N | | |
| Township: | | Section: | |
| Range: | |
Location |
| Address: | 2164 STONEY BEACH LN OAK HARBOR, WA 98277 | Mapsco: | |
| Neighborhood: | Cycle 6 | Map ID: | 537 |
| Neighborhood CD: | 6 |
Owner |
| Name: | BEEZHOLD TTEE, JEANNE | Owner ID: | 284371 |
| Mailing Address: | 2164 STONEY BEACH LN OAK HARBOR, WA 98277 | % Ownership: | 100.0000000000% |
| | | Exemptions: | |
Taxes and Assessment Details
Values
| (+) Improvement Homesite Value: | + | $0 | |
| (+) Improvement Non-Homesite Value: | + | $228,981 | |
| (+) Land Homesite Value: | + | $0 | |
| (+) Land Non-Homesite Value: | + | $675,600 | |
| (+) Curr Use (HS): | + | $0 | $0 |
| (+) Curr Use (NHS): | + | $0 | $0 |
| | | -------------------------- | |
| (=) Market Value: | = | $904,581 | |
| (–) Productivity Loss: | – | $0 | |
| | | -------------------------- | |
| (=) Subtotal: | = | $904,581 | |
| (+) Senior Appraised Value: | + | $0 | |
| (+) Non-Senior Appraised Value: | + | $904,581 | |
| | | -------------------------- | |
| (=) Total Appraised Value: | = | $904,581 | |
| (–) Senior Exemption Loss: | – | $0 | |
| (–) Exemption Loss: | – | $0 | |
| | | -------------------------- | |
| (=) Taxable Value: | = | $904,581 | |
Taxing Jurisdiction
| Owner: | BEEZHOLD TTEE, JEANNE | | |
| % Ownership: | 100.0000000000% | | |
| Total Value: | $904,581 | | |
| Tax Area: | 110 - APPRAISER-OH Schl Dist, outside OH, improved & 1 acre or less |
| CF | Conservation Futures | 0.0316035091 | $904,581 | $904,581 | $28.59 | | |
| CEM1 | Cemetery #1 | 0.0040320932 | $904,581 | $904,581 | $3.65 | | |
| FIRE2 | Fire & Rescue Dist #2 N Whidbey GEN | 0.5475949600 | $904,581 | $904,581 | $495.34 | | |
| HOBOND | Hospital BOND | 0.1910887512 | $904,581 | $904,581 | $172.86 | | |
| HOGEN | Hospital GEN | 0.3902502903 | $904,581 | $904,581 | $353.01 | | |
| CE | County Current Expense | 0.3708482477 | $904,581 | $904,581 | $335.46 | | |
| CR | County Roads | 0.4584763726 | $904,581 | $904,581 | $414.73 | | |
| ISLANDEMS | Hospital GEN (EMS) | 0.5000000000 | $904,581 | $904,581 | $452.29 | | |
| LIB | Library Sno-Isle GEN | 0.3153421757 | $904,581 | $904,581 | $285.25 | | |
| NWHIDPRMT | P & R N Whidbey GEN | 0.2004466701 | $904,581 | $904,581 | $181.32 | | |
| SCH201MO | School 201 Enrichment | 1.8559231640 | $904,581 | $904,581 | $1,678.83 | | |
| ST | State School | 1.3035497053 | $904,581 | $904,581 | $1,179.17 | | |
| ST2 | State School Part 2 | 0.8169543533 | $904,581 | $904,581 | $739.00 | | |
| | Total Tax Rate: | 6.9861102925 | | | | | |
| | | | | Taxes w/Current Exemptions: | $6,319.50 | | |
| | | | | Taxes w/o Exemptions: | $6,319.50 | | |
Improvement / Building
| Improvement #1: | RESIDENTIAL | State Code: | Y | 1405.0 sqft | Value: | $228,981 |
| Bathrooms: | 2 | Bedrooms: | 2 | | Ceiling: | BEAM PAINTED | Exterior Wall/Cover: | WOOD SIDING | | Floor Covering: | HARDWOOD/CARP 20-80 | Floor Structure: | WOOD W/SUBFLOOR | | Foundation: | CONCRETE | Heating: | BASEBOARD ELECTRIC | | Interior Finish: | DRYWALL PAINT | Plumbing Fixture Cnt: | 9 | | Roof Slope: | 3" IN 12" | Roof Structure/Cover: | BEAM ASPHALT |
|
| | Type | Description | Class CD | Sub Class CD | Year Built | Area |
| | BAS | BASE/MAIN FLOOR | 3 | 0 | 1974 | 1405.0 |
| | DGR | DETACHED GARAGE | 3 | 0 | 1974 | 528.0 |
| | ENP | ENCLOSED PORCH | 3 | 0 | 1974 | 35.0 |
| | OP1 | OPEN PORCH SLAB | 3 | 0 | 1974 | 714.0 |
Sketch
Property Image
Land
| 1 | LB | LOW BANK | 0.0000 | 0.00 | 60.00 | 0.00 | 1.00 | $675,000 | $0 |
| 2 | 55 | TIDES | 0.0000 | 0.00 | 60.00 | 0.00 | 1.00 | $600 | $0 |
Roll Value History
| 2026 | N/A | N/A | N/A | N/A | N/A |
| 2025 | $228,981 | $675,600 | $0 | $904,581 | $904,581 |
| 2024 | $232,877 | $675,600 | $0 | $908,477 | $908,477 |
| 2023 | $236,193 | $625,600 | $0 | $861,793 | $861,793 |
| 2022 | $194,909 | $525,600 | $0 | $720,509 | $720,509 |
| 2021 | $171,972 | $450,600 | $0 | $622,572 | $622,572 |
| 2020 | $167,877 | $375,600 | $0 | $543,477 | $543,477 |
| 2019 | $121,524 | $425,600 | $0 | $547,124 | $547,124 |
| 2018 | $121,950 | $400,600 | $0 | $522,550 | $522,550 |
| 2017 | $122,803 | $350,000 | $0 | $472,803 | $472,803 |
| 2016 | $103,677 | $250,600 | $0 | $354,277 | $354,277 |
| 2015 | $105,350 | $250,600 | $0 | $355,950 | $355,950 |
| 2014 | $107,021 | $250,600 | $0 | $357,621 | $357,621 |
| 2013 | $108,694 | $265,722 | $0 | $374,416 | $374,416 |
| 2012 | $110,367 | $265,722 | $0 | $376,089 | $376,089 |
| 2011 | $112,039 | $265,722 | $0 | $377,761 | $377,761 |
| 2010 | $123,847 | $265,722 | $0 | $389,569 | $389,569 |
| 2009 | $129,288 | $362,130 | $0 | $491,418 | $491,418 |
| 2008 | $131,042 | $295,386 | $0 | $426,428 | $426,428 |
| 2007 | $98,383 | $329,370 | $0 | $427,753 | $427,753 |
Deed and Sales History
| 1 | 03/29/2018 | QCD | Quit Claim Deed | BEEZHOLD TTEE, JEANNE | BEEZHOLD TTEE, JEANNE | | | $0.00 | 33471 | 4441650 |
| 2 | 03/26/2018 | QCD | Quit Claim Deed | BEEZHOLD, WENDLAND | BEEZHOLD TTEE, JEANNE | | | $0.00 | 33434 | 4441476 |
| 3 | 04/27/2006 | WD | Warranty Deed | NORDLUND, JEAN F | BEEZHOLD, WENDLAND | | | $545,000.00 | 62183 | 4170811 |
| 4 | 11/08/2001 | 5 | DNU - Marriage License/Name Change | Unknown | NORDLUND, JEAN F | | | $0.00 | 69201 | 0 |
Payout Agreement
| No payout information available.. |