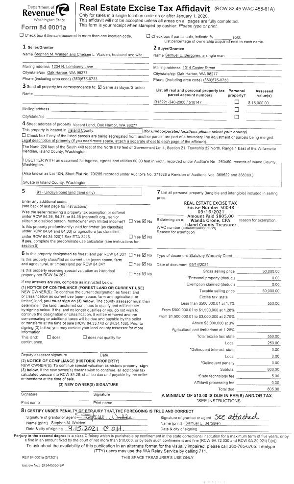
Property
Account |
| Property ID: | 321020 | Abbreviated Legal Description: | MARINERS CV 3 LOT 73 |
| Geographic ID: | S7485-00-00073-0 | Agent Code: | |
| Type: | Real | | |
| Tax Area: | 110 - APPRAISER-OH Schl Dist, outside OH, improved & 1 acre or less | Land Use Code | 11 |
| Open Space: | N | DFL | N |
| Historic Property: | N | Remodel Property: | N |
| Multi-Family Redevelopment: | N | | |
| Township: | | Section: | |
| Range: | |
Location |
| Address: | 2180 COVE DR OAK HARBOR, WA 98277 | Mapsco: | |
| Neighborhood: | Cycle 6 | Map ID: | 537 |
| Neighborhood CD: | 6 |
Owner |
| Name: | HU TTEE, ELIZABETH | Owner ID: | 298365 |
| Mailing Address: | 4957 LAKEMONT BLVD SE STE C4-375 BELLEVUE, WA 98006 | % Ownership: | 100.0000000000% |
| | | Exemptions: | |
Taxes and Assessment Details
Values
| (+) Improvement Homesite Value: | + | $0 | |
| (+) Improvement Non-Homesite Value: | + | $659,688 | |
| (+) Land Homesite Value: | + | $0 | |
| (+) Land Non-Homesite Value: | + | $340,000 | |
| (+) Curr Use (HS): | + | $0 | $0 |
| (+) Curr Use (NHS): | + | $0 | $0 |
| | | -------------------------- | |
| (=) Market Value: | = | $999,688 | |
| (–) Productivity Loss: | – | $0 | |
| | | -------------------------- | |
| (=) Subtotal: | = | $999,688 | |
| (+) Senior Appraised Value: | + | $0 | |
| (+) Non-Senior Appraised Value: | + | $999,688 | |
| | | -------------------------- | |
| (=) Total Appraised Value: | = | $999,688 | |
| (–) Senior Exemption Loss: | – | $0 | |
| (–) Exemption Loss: | – | $0 | |
| | | -------------------------- | |
| (=) Taxable Value: | = | $999,688 | |
Taxing Jurisdiction
| Owner: | HU TTEE, ELIZABETH | | |
| % Ownership: | 100.0000000000% | | |
| Total Value: | $999,688 | | |
| Tax Area: | 110 - APPRAISER-OH Schl Dist, outside OH, improved & 1 acre or less |
| CF | Conservation Futures | 0.0316035091 | $999,688 | $999,688 | $31.59 | | |
| CEM1 | Cemetery #1 | 0.0040320932 | $999,688 | $999,688 | $4.03 | | |
| FIRE2 | Fire & Rescue Dist #2 N Whidbey GEN | 0.5475949600 | $999,688 | $999,688 | $547.42 | | |
| HOBOND | Hospital BOND | 0.1910887512 | $999,688 | $999,688 | $191.03 | | |
| HOGEN | Hospital GEN | 0.3902502903 | $999,688 | $999,688 | $390.13 | | |
| CE | County Current Expense | 0.3708482477 | $999,688 | $999,688 | $370.73 | | |
| CR | County Roads | 0.4584763726 | $999,688 | $999,688 | $458.33 | | |
| ISLANDEMS | Hospital GEN (EMS) | 0.5000000000 | $999,688 | $999,688 | $499.84 | | |
| LIB | Library Sno-Isle GEN | 0.3153421757 | $999,688 | $999,688 | $315.24 | | |
| NWHIDPRMT | P & R N Whidbey GEN | 0.2004466701 | $999,688 | $999,688 | $200.38 | | |
| SCH201MO | School 201 Enrichment | 1.8559231640 | $999,688 | $999,688 | $1,855.34 | | |
| ST | State School | 1.3035497053 | $999,688 | $999,688 | $1,303.14 | | |
| ST2 | State School Part 2 | 0.8169543533 | $999,688 | $999,688 | $816.70 | | |
| | Total Tax Rate: | 6.9861102925 | | | | | |
| | | | | Taxes w/Current Exemptions: | $6,983.90 | | |
| | | | | Taxes w/o Exemptions: | $6,983.90 | | |
Improvement / Building
| Improvement #1: | RESIDENTIAL | State Code: | Y | 2586.0 sqft | Value: | $659,688 |
| Bathrooms: | 3 | Bedrooms: | 3 | | Ceiling: | TONGUE & GROOVE | Exterior Wall/Cover: | SHINGLE | | Floor Covering: | CERAMIC TILE/HWD 40/60 | Floor Structure: | WOOD W/SUBFLOOR | | Foundation: | CONCRETE | Heating: | FHA GAS | | Interior Finish: | DRYWALL PAINT | Plumbing Fixture Cnt: | 15 | | Roof Slope: | 6" IN 12" | Roof Structure/Cover: | BEAM WOOD SHINGLE |
|
| | Type | Description | Class CD | Sub Class CD | Year Built | Area |
| | BAS | BASE/MAIN FLOOR | 5 | 0 | 1975 | 1547.9 |
| | DGR | DETACHED GARAGE | 5 | 0 | 1975 | 484.0 |
| | UTY | STORAGE/UTILITY | 5 | 0 | 1975 | 484.0 |
| | UPS | UPPER STORY | 5 | 0 | 1975 | 1038.1 |
| | BAW | BALCONY WOOD RAIL | 5 | 0 | 1975 | 48.0 |
| | OWP | OPEN WOOD PORCH W/STEPS | 5 | 0 | 1975 | 60.0 |
| | OWR | OPEN WOOD PORCH W/STEPS/ROOF | 5 | 0 | 1975 | 90.0 |
| | oRAF | RAMP/FLOAT | 5 | 0 | 1975 | 0.0 |
| | oFLT | FLOAT/DECK/PILING | 5 | 0 | 1975 | 0.0 |
Sketch
Property Image
Land
| 1 | 13 | SQ (06001-08000) | 0.0000 | 0.00 | 0.00 | 0.00 | 1.00 | $340,000 | $0 |
Roll Value History
| 2026 | N/A | N/A | N/A | N/A | N/A |
| 2025 | $659,688 | $340,000 | $0 | $999,688 | $999,688 |
| 2024 | $667,788 | $330,000 | $0 | $997,788 | $997,788 |
| 2023 | $675,890 | $330,000 | $0 | $1,005,890 | $1,005,890 |
| 2022 | $584,103 | $300,000 | $0 | $884,103 | $884,103 |
| 2021 | $370,384 | $280,000 | $0 | $650,384 | $650,384 |
| 2020 | $329,696 | $250,000 | $0 | $579,696 | $579,696 |
| 2019 | $248,890 | $295,000 | $0 | $543,890 | $543,890 |
| 2018 | $249,726 | $285,000 | $0 | $534,726 | $534,726 |
| 2017 | $251,398 | $270,000 | $0 | $521,398 | $521,398 |
| 2016 | $226,535 | $245,000 | $0 | $471,535 | $471,535 |
| 2015 | $230,074 | $245,000 | $0 | $475,074 | $475,074 |
| 2014 | $233,613 | $245,000 | $0 | $478,613 | $478,613 |
| 2013 | $237,153 | $270,000 | $0 | $507,153 | $507,153 |
| 2012 | $240,693 | $270,000 | $0 | $510,693 | $510,693 |
| 2011 | $244,232 | $300,000 | $0 | $544,232 | $544,232 |
| 2010 | $273,704 | $300,000 | $0 | $573,704 | $573,704 |
| 2009 | $285,426 | $350,000 | $0 | $635,426 | $635,426 |
| 2008 | $289,070 | $400,000 | $0 | $689,070 | $689,070 |
| 2007 | $292,714 | $300,000 | $0 | $592,714 | $592,714 |
Deed and Sales History
| 1 | 03/03/2021 | WD | Warranty Deed | MILLS, MYRA A | HU TTEE, ELIZABETH | | | $1,111,500.00 | 47219 | 4512782 |
| 2 | 11/15/2017 | CPADC | Comm Prop Agmnt & Death Cert | MILLS, TERRY V. | MILLS, MYRA A | | | | 87682 | |
| 3 | 06/07/2013 | WD | Warranty Deed | BORGFORD, MAURINE E | MILLS, TERRY V. | | | $500,000.00 | 11570 | 4341467 |
| 4 | 06/07/2012 | ESTSEPPROP | Establish Separate Property | BORGFORD, THOMAS A | BORGFORD, MAURINE E | | | $0.00 | 7912 | 4317113 |
| 5 | 11/14/2011 | 5 | DNU - Marriage License/Name Change | GOSENFELD, MAURINE E | BORGFORD, MAURINE E | | | | 82215 | |
| 6 | 06/11/2007 | PRD | Personal Representatives Deed | GOSENFELD, NORMAN H | GOSENFELD, MAURINE E | | | $0.00 | 71958 | 4204559 |
| 7 | 08/01/1991 | WD | Warranty Deed | BORGFORD, THOMAS A | GOSENFELD, NORMAN H | | | $315,000.00 | 13113 | 91013264 |
| 8 | 01/01/1900 | OTHER | Other - Misc. Documents | Unknown | BORGFORD, THOMAS A | | | $0.00 | 0 | 0 |
Payout Agreement
| No payout information available.. |