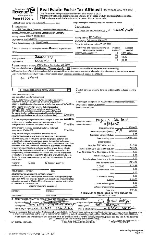
Property
Account |
| Property ID: | 321930 | Abbreviated Legal Description: | MARINERS CV 3 LOT 165 |
| Geographic ID: | S7485-00-00165-0 | Agent Code: | |
| Type: | Real | | |
| Tax Area: | 110 - APPRAISER-OH Schl Dist, outside OH, improved & 1 acre or less | Land Use Code | 11 |
| Open Space: | N | DFL | N |
| Historic Property: | N | Remodel Property: | N |
| Multi-Family Redevelopment: | N | | |
| Township: | | Section: | |
| Range: | |
Location |
| Address: | 2254 MARINERS WAY OAK HARBOR, WA 98277 | Mapsco: | |
| Neighborhood: | Cycle 6 | Map ID: | 538 |
| Neighborhood CD: | 6 |
Owner |
| Name: | YVETTE CHANTAL DUBEE REVOCABLE TRUST | Owner ID: | 307621 |
| Mailing Address: | 2254 MARINERS WAY OAK HARBOR, WA 98277 | % Ownership: | 100.0000000000% |
| | | Exemptions: | |
Taxes and Assessment Details
Values
| (+) Improvement Homesite Value: | + | $0 | |
| (+) Improvement Non-Homesite Value: | + | $487,018 | |
| (+) Land Homesite Value: | + | $0 | |
| (+) Land Non-Homesite Value: | + | $300,000 | |
| (+) Curr Use (HS): | + | $0 | $0 |
| (+) Curr Use (NHS): | + | $0 | $0 |
| | | -------------------------- | |
| (=) Market Value: | = | $787,018 | |
| (–) Productivity Loss: | – | $0 | |
| | | -------------------------- | |
| (=) Subtotal: | = | $787,018 | |
| (+) Senior Appraised Value: | + | $0 | |
| (+) Non-Senior Appraised Value: | + | $787,018 | |
| | | -------------------------- | |
| (=) Total Appraised Value: | = | $787,018 | |
| (–) Senior Exemption Loss: | – | $0 | |
| (–) Exemption Loss: | – | $0 | |
| | | -------------------------- | |
| (=) Taxable Value: | = | $787,018 | |
Taxing Jurisdiction
| Owner: | YVETTE CHANTAL DUBEE REVOCABLE TRUST | | |
| % Ownership: | 100.0000000000% | | |
| Total Value: | $787,018 | | |
| Tax Area: | 110 - APPRAISER-OH Schl Dist, outside OH, improved & 1 acre or less |
| CF | Conservation Futures | 0.0316035091 | $787,018 | $787,018 | $24.87 | | |
| CEM1 | Cemetery #1 | 0.0040320932 | $787,018 | $787,018 | $3.17 | | |
| FIRE2 | Fire & Rescue Dist #2 N Whidbey GEN | 0.5475949600 | $787,018 | $787,018 | $430.97 | | |
| HOBOND | Hospital BOND | 0.1910887512 | $787,018 | $787,018 | $150.39 | | |
| HOGEN | Hospital GEN | 0.3902502903 | $787,018 | $787,018 | $307.13 | | |
| CE | County Current Expense | 0.3708482477 | $787,018 | $787,018 | $291.86 | | |
| CR | County Roads | 0.4584763726 | $787,018 | $787,018 | $360.83 | | |
| ISLANDEMS | Hospital GEN (EMS) | 0.5000000000 | $787,018 | $787,018 | $393.51 | | |
| LIB | Library Sno-Isle GEN | 0.3153421757 | $787,018 | $787,018 | $248.18 | | |
| NWHIDPRMT | P & R N Whidbey GEN | 0.2004466701 | $787,018 | $787,018 | $157.76 | | |
| SCH201MO | School 201 Enrichment | 1.8559231640 | $787,018 | $787,018 | $1,460.64 | | |
| ST | State School | 1.3035497053 | $787,018 | $787,018 | $1,025.92 | | |
| ST2 | State School Part 2 | 0.8169543533 | $787,018 | $787,018 | $642.96 | | |
| | Total Tax Rate: | 6.9861102925 | | | | | |
| | | | | Taxes w/Current Exemptions: | $5,498.19 | | |
| | | | | Taxes w/o Exemptions: | $5,498.19 | | |
Improvement / Building
| Improvement #1: | RESIDENTIAL | State Code: | Y | 1720.3 sqft | Value: | $487,018 |
| Bathrooms: | 2 | Bedrooms: | 2 | | Ceiling: | DRYWALL PAINTED | Cooling: | FHA AND AC | | Exterior Wall/Cover: | WOOD SIDING | Floor Covering: | HARDWOOD/CARP 60-40 | | Floor Structure: | WOOD W/SUBFLOOR | Foundation: | CONCRETE | | Interior Finish: | DRYWALL PAINT | Plumbing Fixture Cnt: | 11 | | Roof Slope: | 5" IN 12" | Roof Structure/Cover: | CJ ASPHALT |
|
| | Type | Description | Class CD | Sub Class CD | Year Built | Area |
| | BAS | BASE/MAIN FLOOR | 4 | 0 | 2005 | 1720.3 |
| | AGR | ATTACHED GARAGE | 4 | 0 | 2005 | 426.8 |
| | OWP | OPEN WOOD PORCH W/STEPS | 4 | 0 | 2005 | 108.0 |
| | OWP | OPEN WOOD PORCH W/STEPS | 4 | 0 | 2005 | 78.8 |
| | oRAF | RAMP/FLOAT | 4 | 0 | 2005 | 0.0 |
| | oFLT | FLOAT/DECK/PILING | 4 | 0 | 2005 | 266.0 |
| | OP2 | OPEN PORCH W/STEPS | 4 | 0 | 2005 | 1957.0 |
Sketch
Property Image
Land
| 1 | 13 | SQ (06001-08000) | 0.0000 | 0.00 | 0.00 | 0.00 | 1.00 | $300,000 | $0 |
Roll Value History
| 2026 | N/A | N/A | N/A | N/A | N/A |
| 2025 | $487,018 | $300,000 | $0 | $787,018 | $787,018 |
| 2024 | $492,296 | $280,000 | $0 | $772,296 | $772,296 |
| 2023 | $490,772 | $270,000 | $0 | $760,772 | $760,772 |
| 2022 | $399,364 | $270,000 | $0 | $669,364 | $669,364 |
| 2021 | $353,589 | $250,000 | $0 | $603,589 | $603,589 |
| 2020 | $298,530 | $240,000 | $0 | $538,530 | $538,530 |
| 2019 | $224,402 | $295,000 | $0 | $519,402 | $519,402 |
| 2018 | $224,994 | $285,000 | $0 | $509,994 | $509,994 |
| 2017 | $226,175 | $270,000 | $0 | $496,175 | $496,175 |
| 2016 | $202,757 | $230,000 | $0 | $432,757 | $432,757 |
| 2015 | $205,061 | $230,000 | $0 | $435,061 | $435,061 |
| 2014 | $207,366 | $230,000 | $0 | $437,366 | $437,366 |
| 2013 | $209,669 | $270,000 | $0 | $479,669 | $479,669 |
| 2012 | $211,974 | $270,000 | $0 | $481,974 | $481,974 |
| 2011 | $214,278 | $300,000 | $0 | $514,278 | $514,278 |
| 2010 | $229,823 | $300,000 | $0 | $529,823 | $529,823 |
| 2009 | $237,638 | $350,000 | $0 | $587,638 | $587,638 |
| 2008 | $241,036 | $400,000 | $0 | $641,036 | $641,036 |
| 2007 | $239,191 | $300,000 | $0 | $539,191 | $539,191 |
Deed and Sales History
| 1 | 02/02/2023 | WD | Warranty Deed | PREMIER LOTS 2, LLC | YVETTE CHANTAL DUBEE REVOCABLE TRUST | | | $0.00 | 55853 | 4556711 |
| 2 | 12/17/2020 | QCD | Quit Claim Deed | LOT 165, LLC | PREMIER LOTS 2, LLC | | | $0.00 | 46267 | 4506140 |
| 3 | 09/21/2020 | WD | Warranty Deed | JASWAL, FAISAL SAEED | LOT 165, LLC | | | $765,000.00 | 44909 | 4497597 |
| 4 | 02/18/2015 | ESTSEPPROP | Establish Separate Property | JASWAL, FAISAL | JASWAL, FAISAL SAEED | | | $0.00 | 18622 | 4374043 |
| 5 | 09/22/2005 | WD | Warranty Deed | PACIFIC LUMBER PRODUCTS INC, | JASWAL, FAISAL | | | $496,500.00 | 54830 | 4148969 |
| 6 | 10/06/2004 | WD | Warranty Deed | WAGNER, WILLARD G | PACIFIC LUMBER PRODUCTS INC, | | | $143,000.00 | 44776 | 4115191 |
| 7 | 09/01/1989 | REC | Real Estate Contract | COCHRAN, GEORGE L | WAGNER, WILLARD G | | | $40,000.00 | 94093 | 89013537 |
| 8 | 11/01/1980 | REC | Real Estate Contract | WILLARD, WILLIAM L | COCHRAN, GEORGE L | | | $20,000.00 | 3700 | 375924 |
| 9 | 01/01/1900 | OTHER | Other - Misc. Documents | Unknown | WILLARD, WILLIAM L | | | $0.00 | 0 | 0 |
Payout Agreement
| No payout information available.. |