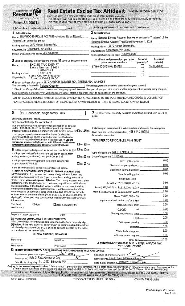
Property
Account |
| Property ID: | 3221 | Abbreviated Legal Description: | 16 J CROCKETT DC - BG NE CR TR DESC 1D21 S418' E TO ELN SD DC N TO RD ALG RD TPB SUB TO EZ |
| Geographic ID: | R13103-248-1810 | Agent Code: | |
| Type: | Real | | |
| Tax Area: | 312 - APPRAISER-Cpvl Schl Dist, outside Cpvl, improved, greater than 1 acre | Land Use Code | 11 |
| Open Space: | N | DFL | N |
| Historic Property: | N | Remodel Property: | N |
| Multi-Family Redevelopment: | N | | |
| Township: | 31 | Section: | 03 |
| Range: | R1 |
Location |
| Address: | 200 FORT CASEY RD COUPEVILLE, WA 98239 | Mapsco: | |
| Neighborhood: | Cycle 2 | Map ID: | 25 |
| Neighborhood CD: | 2 |
Owner |
| Name: | GONZALEZ, YAJAIRA DE JESUS | Owner ID: | 308355 |
| Mailing Address: | BRENDEN SICKLER-HOMAN 200 FORT CASEY RD COUPEVILLE, WA 98239 | % Ownership: | 100.0000000000% |
| | | Exemptions: | |
Taxes and Assessment Details
Values
| (+) Improvement Homesite Value: | + | $0 | |
| (+) Improvement Non-Homesite Value: | + | $107,217 | |
| (+) Land Homesite Value: | + | $0 | |
| (+) Land Non-Homesite Value: | + | $317,944 | |
| (+) Curr Use (HS): | + | $0 | $0 |
| (+) Curr Use (NHS): | + | $0 | $0 |
| | | -------------------------- | |
| (=) Market Value: | = | $425,161 | |
| (–) Productivity Loss: | – | $0 | |
| | | -------------------------- | |
| (=) Subtotal: | = | $425,161 | |
| (+) Senior Appraised Value: | + | $0 | |
| (+) Non-Senior Appraised Value: | + | $425,161 | |
| | | -------------------------- | |
| (=) Total Appraised Value: | = | $425,161 | |
| (–) Senior Exemption Loss: | – | $0 | |
| (–) Exemption Loss: | – | $0 | |
| | | -------------------------- | |
| (=) Taxable Value: | = | $425,161 | |
Taxing Jurisdiction
| Owner: | GONZALEZ, YAJAIRA DE JESUS | | |
| % Ownership: | 100.0000000000% | | |
| Total Value: | $425,161 | | |
| Tax Area: | 312 - APPRAISER-Cpvl Schl Dist, outside Cpvl, improved, greater than 1 acre |
| CF | Conservation Futures | 0.0316035091 | $425,161 | $425,161 | $13.44 | | |
| CEM2 | Cemetery #2 | 0.0095056933 | $425,161 | $425,161 | $4.04 | | |
| FIRE5 | Fire & Rescue Dist #5 C Whidbey GEN | 1.2008080668 | $425,161 | $425,161 | $510.54 | | |
| FIRE5BOND | Fire & Rescue Dist #5 C Whidbey BOND | 0.1400090713 | $425,161 | $425,161 | $59.53 | | |
| HOBOND | Hospital BOND | 0.1910887512 | $425,161 | $425,161 | $81.24 | | |
| HOGEN | Hospital GEN | 0.3902502903 | $425,161 | $425,161 | $165.92 | | |
| CE | County Current Expense | 0.3708482477 | $425,161 | $425,161 | $157.67 | | |
| CR | County Roads | 0.4584763726 | $425,161 | $425,161 | $194.93 | | |
| ISLANDEMS | Hospital GEN (EMS) | 0.5000000000 | $425,161 | $425,161 | $212.58 | | |
| LIB | Library Sno-Isle GEN | 0.3153421757 | $425,161 | $425,161 | $134.07 | | |
| LIBCAP | Library Sno-Isle BOND (Cap Fac Imp Area) | 0.0543427938 | $425,161 | $425,161 | $23.10 | | |
| POCOUP | Port of Coupeville GEN | 0.1093371703 | $425,161 | $425,161 | $46.49 | | |
| POCOUPIDD | Port of Coupeville IDD | 0.3409740022 | $425,161 | $425,161 | $144.97 | | |
| COUPSDTECH | School 204 CP (TECH) | 0.7545480007 | $425,161 | $425,161 | $320.80 | | |
| SCH204MO | School 204 Enrichment | 0.6716186034 | $425,161 | $425,161 | $285.55 | | |
| ST | State School | 1.3035497053 | $425,161 | $425,161 | $554.22 | | |
| ST2 | State School Part 2 | 0.8169543533 | $425,161 | $425,161 | $347.34 | | |
| | Total Tax Rate: | 7.6592568070 | | | | | |
| | | | | Taxes w/Current Exemptions: | $3,256.43 | | |
| | | | | Taxes w/o Exemptions: | $3,256.43 | | |
Improvement / Building
| Improvement #1: | MANUFACTURED HOME | State Code: | Y | 1188.0 sqft | Value: | $107,217 |
| Bathrooms: | 0 | Bedrooms: | 0 | | Ceiling: | PLASTER PAINTED | Cooling: | EVAP NO DUCT | | Exterior Wall/Cover: | VINYL | Floor Covering: | CARPET 100% | | Floor Structure: | SLAB ON GRADE | Foundation: | SLAB | | Heating: | FHA ELECTRIC | Interior Finish: | PLASTER | | Plumbing Fixture Cnt: | 1 | Roof Slope: | FLAT | | Roof Structure/Cover: | CJ ALUMINIUM HEAVY |   |   |
|
| | Type | Description | Class CD | Sub Class CD | Year Built | Area |
| | BAS | BASE/MAIN FLOOR | 5 | 0 | 2001 | 1188.0 |
| | OWP | OPEN WOOD PORCH W/STEPS | 5 | 0 | 2001 | 144.0 |
Sketch
Property Image
Land
| 1 | HS | HOMESITE | 1.0000 | 43560.00 | 0.00 | 0.00 | 1.00 | $220,000 | $0 |
| 2 | 91 | UNDEVELOPED LAND-METES AND BOUNDS | 2.1300 | 92782.80 | 0.00 | 0.00 | 1.00 | $97,944 | $0 |
Roll Value History
| 2026 | N/A | N/A | N/A | N/A | N/A |
| 2025 | $107,217 | $317,944 | $0 | $425,161 | $425,161 |
| 2024 | $104,239 | $300,000 | $0 | $404,239 | $404,239 |
| 2023 | $93,227 | $280,000 | $0 | $373,227 | $373,227 |
| 2022 | $85,591 | $260,000 | $0 | $345,591 | $345,591 |
| 2021 | $76,467 | $170,000 | $0 | $246,467 | $246,467 |
| 2020 | $76,212 | $160,000 | $0 | $236,212 | $236,212 |
| 2019 | $61,595 | $230,000 | $0 | $291,595 | $291,595 |
| 2018 | $77,566 | $150,000 | $0 | $227,566 | $227,566 |
| 2017 | $77,602 | $150,000 | $0 | $227,602 | $227,602 |
| 2016 | $77,618 | $120,000 | $0 | $197,618 | $197,618 |
| 2015 | $77,633 | $78,250 | $0 | $155,883 | $155,883 |
| 2014 | $77,648 | $78,250 | $0 | $155,898 | $155,898 |
| 2013 | $77,664 | $80,750 | $0 | $158,414 | $158,414 |
| 2012 | $70,766 | $80,750 | $0 | $151,516 | $151,516 |
| 2011 | $71,489 | $95,000 | $0 | $166,489 | $166,489 |
| 2010 | $77,763 | $95,000 | $0 | $172,763 | $172,763 |
| 2009 | $80,847 | $135,000 | $0 | $215,847 | $215,847 |
| 2008 | $81,762 | $92,335 | $0 | $174,097 | $174,097 |
| 2007 | $82,666 | $92,335 | $0 | $175,001 | $175,001 |
Deed and Sales History
| 1 | 04/06/2023 | WD | Warranty Deed | FREDRICKSON, MARK K | GONZALEZ, YAJAIRA DE JESUS | | | $385,000.00 | 56411 | 4558815 |
| 2 | 12/28/2001 | WD | Warranty Deed | NORMOYLE, KIM | FREDRICKSON, MARK K | | | $50,000.00 | 20010 | 4007187 |
| 3 | 02/09/1999 | WD | Warranty Deed | ENGLE, LEONARD C | NORMOYLE, KIM | | | $45,000.00 | 90546 | 99003758 |
| 4 | 06/01/1978 | OTHER | Other - Misc. Documents | , | ENGLE, LEONARD C | | | $38,500.00 | 82984 | 335108 |
| 5 | 05/01/1973 | CD | DNU - Correction Deed | Unknown | , | | | $0.00 | 47154 | 0 |
Payout Agreement
| No payout information available.. |