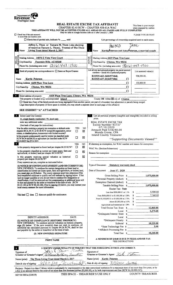
Property
Account |
| Property ID: | 322859 | Abbreviated Legal Description: | MENLO BCH W/2 LOT 20 INCL ADJ TIDES |
| Geographic ID: | S7505-00-00020-1 | Agent Code: | |
| Type: | Real | | |
| Tax Area: | 710 - APPRAISER-S Whid Schl Dist, outside Langley, improved & 1 acre or less | Land Use Code | 11 |
| Open Space: | N | DFL | N |
| Historic Property: | N | Remodel Property: | N |
| Multi-Family Redevelopment: | N | | |
| Township: | | Section: | |
| Range: | |
Location |
| Address: | 5746 MUTINY BAY RD FREELAND, WA 98249 | Mapsco: | |
| Neighborhood: | Cycle 3 | Map ID: | 331 |
| Neighborhood CD: | 3 |
Owner |
| Name: | DICKSON UNDIV 25% INT, ROBERT JEROME | Owner ID: | 263302 |
| Mailing Address: | ROBERT JEROME DICKSON TRUSTEE UNDIV 75% INT 5746 MUTINY BAY RD FREELAND, WA 98249-9548 | % Ownership: | 100.0000000000% |
| | | Exemptions: | |
Taxes and Assessment Details
Values
| (+) Improvement Homesite Value: | + | $0 | |
| (+) Improvement Non-Homesite Value: | + | $432,717 | |
| (+) Land Homesite Value: | + | $0 | |
| (+) Land Non-Homesite Value: | + | $2,475,500 | |
| (+) Curr Use (HS): | + | $0 | $0 |
| (+) Curr Use (NHS): | + | $0 | $0 |
| | | -------------------------- | |
| (=) Market Value: | = | $2,908,217 | |
| (–) Productivity Loss: | – | $0 | |
| | | -------------------------- | |
| (=) Subtotal: | = | $2,908,217 | |
| (+) Senior Appraised Value: | + | $0 | |
| (+) Non-Senior Appraised Value: | + | $2,908,217 | |
| | | -------------------------- | |
| (=) Total Appraised Value: | = | $2,908,217 | |
| (–) Senior Exemption Loss: | – | $0 | |
| (–) Exemption Loss: | – | $0 | |
| | | -------------------------- | |
| (=) Taxable Value: | = | $2,908,217 | |
Taxing Jurisdiction
| Owner: | DICKSON UNDIV 25% INT, ROBERT JEROME | | |
| % Ownership: | 100.0000000000% | | |
| Total Value: | $2,908,217 | | |
| Tax Area: | 710 - APPRAISER-S Whid Schl Dist, outside Langley, improved & 1 acre or less |
| CF | Conservation Futures | 0.0316035091 | $2,908,217 | $2,908,217 | $91.91 | | |
| FIRE3 | Fire & Rescue Dist #3 S Whidbey GEN | 1.2004855531 | $2,908,217 | $2,908,217 | $3,491.27 | | |
| HOBOND | Hospital BOND | 0.1910887512 | $2,908,217 | $2,908,217 | $555.73 | | |
| HOGEN | Hospital GEN | 0.3902502903 | $2,908,217 | $2,908,217 | $1,134.93 | | |
| CE | County Current Expense | 0.3708482477 | $2,908,217 | $2,908,217 | $1,078.51 | | |
| CR | County Roads | 0.4584763726 | $2,908,217 | $2,908,217 | $1,333.35 | | |
| ISLANDEMS | Hospital GEN (EMS) | 0.5000000000 | $2,908,217 | $2,908,217 | $1,454.11 | | |
| LIB | Library Sno-Isle GEN | 0.3153421757 | $2,908,217 | $2,908,217 | $917.08 | | |
| PORTWHID | Port of S Whidbey GEN | 0.1094540357 | $2,908,217 | $2,908,217 | $318.32 | | |
| SCH206BOND | School 206 BOND | 0.3161759235 | $2,908,217 | $2,908,217 | $919.51 | | |
| SCH206MO | School 206 Enrichment | 0.4547169547 | $2,908,217 | $2,908,217 | $1,322.42 | | |
| ST | State School | 1.3035497053 | $2,908,217 | $2,908,217 | $3,791.01 | | |
| ST2 | State School Part 2 | 0.8169543533 | $2,908,217 | $2,908,217 | $2,375.88 | | |
| SWHIDPRBD | P & R S Whidbey BOND | 0.0152817568 | $2,908,217 | $2,908,217 | $44.44 | | |
| SWHIDPRBD2 | P & R S Whidbey BOND2 | 0.0138911264 | $2,908,217 | $2,908,217 | $40.40 | | |
| SWHIDPRMT | P & R S Whidbey GEN | 0.2053334452 | $2,908,217 | $2,908,217 | $597.15 | | |
| | Total Tax Rate: | 6.6934522006 | | | | | |
| | | | | Taxes w/Current Exemptions: | $19,466.02 | | |
| | | | | Taxes w/o Exemptions: | $19,466.02 | | |
Improvement / Building
| Improvement #1: | RESIDENTIAL | State Code: | Y | 3005.5 sqft | Value: | $432,717 |
| Bathrooms: | 3 | Bedrooms: | 4 | | Ceiling: | BEAM PAINTED | Cooling: | HEAT PUMP/CONV/V | | Exterior Wall/Cover: | SHINGLE | Floor Covering: | VINYL TILE/CARP 20-80 | | Floor Structure: | WOOD W/SUBFLOOR | Foundation: | CONCRETE | | Interior Finish: | DRYWALL PAINT | Plumbing Fixture Cnt: | 13 | | Roof Slope: | 6" IN 12" | Roof Structure/Cover: | BEAM ALUMINUM HEAVY |
|
| | Type | Description | Class CD | Sub Class CD | Year Built | Area |
| | BAS | BASE/MAIN FLOOR | 4 | 0 | 1974 | 1613.3 |
| | OP1 | OPEN PORCH SLAB | 4 | 0 | 1974 | 75.5 |
| | OWP | OPEN WOOD PORCH W/STEPS | 4 | 0 | 1974 | 54.2 |
| | OWP | OPEN WOOD PORCH W/STEPS | 4 | 0 | 1974 | 447.4 |
| | DWN | DOWNSTAIRS LIVING AREA | 4 | 0 | 1974 | 1392.2 |
Sketch
Property Image
Land
| 1 | LB | LOW BANK | 0.0000 | 0.00 | 50.00 | 0.00 | 1.00 | $2,475,000 | $0 |
| 2 | 55 | TIDES | 0.0000 | 0.00 | 50.00 | 0.00 | 1.00 | $500 | $0 |
Roll Value History
| 2026 | N/A | N/A | N/A | N/A | N/A |
| 2025 | $432,717 | $2,475,500 | $0 | $2,908,217 | $2,908,217 |
| 2024 | $431,582 | $2,475,500 | $0 | $2,907,082 | $2,907,082 |
| 2023 | $436,346 | $2,475,500 | $0 | $2,911,846 | $2,911,846 |
| 2022 | $400,109 | $2,150,500 | $0 | $2,550,609 | $2,550,609 |
| 2021 | $352,258 | $1,400,500 | $0 | $1,752,758 | $1,752,758 |
| 2020 | $344,055 | $1,150,500 | $0 | $1,494,555 | $1,494,555 |
| 2019 | $301,245 | $1,200,500 | $0 | $1,501,745 | $1,501,745 |
| 2018 | $302,151 | $950,500 | $0 | $1,252,651 | $1,252,651 |
| 2017 | $279,198 | $700,500 | $0 | $979,698 | $979,698 |
| 2016 | $282,778 | $700,500 | $0 | $983,278 | $983,278 |
| 2015 | $286,358 | $700,500 | $0 | $986,858 | $986,858 |
| 2014 | $289,937 | $700,500 | $0 | $990,437 | $990,437 |
| 2013 | $292,457 | $889,428 | $0 | $1,181,885 | $1,181,885 |
| 2012 | $296,049 | $889,428 | $0 | $1,185,477 | $1,185,477 |
| 2011 | $299,639 | $889,428 | $0 | $1,189,067 | $1,189,067 |
| 2010 | $309,991 | $889,428 | $0 | $1,199,419 | $1,199,419 |
| 2009 | $323,290 | $1,058,748 | $0 | $1,382,038 | $1,382,038 |
| 2008 | $326,606 | $1,058,748 | $0 | $1,385,354 | $1,385,354 |
| 2007 | $366,757 | $1,058,398 | $0 | $1,425,155 | $1,425,155 |
Deed and Sales History
| 1 | 07/31/2013 | PRD | Personal Representatives Deed | DICKSON, ROBERT J & CAROL | DICKSON UNDIV 25% INT, ROBERT JEROME | | | $0.00 | 12265 | 4345667 |
| 2 | 06/01/1995 | WD | Warranty Deed | PETERSEN, ARLYS J | DICKSON, ROBERT J | | | $412,000.00 | 51896 | 95008781 |
| 3 | 07/01/1991 | DECREE | Divorce Decree/Legal Separation | PETERSEN, HOWARD F | PETERSEN, ARLYS J | | | $0.00 | 64345 | 0 |
| 4 | 01/01/1900 | OTHER | Other - Misc. Documents | Unknown | PETERSEN, HOWARD F | | | $0.00 | 0 | 0 |
Payout Agreement
| No payout information available.. |