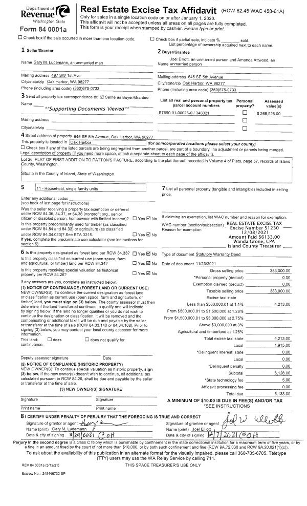
Property
Account |
| Property ID: | 322975 | Abbreviated Legal Description: | MENLO BCH PT LOT 27: BG SECR LOT 27 TPB NELY ALG ELN LOT 27 260 N44*W43' SWLY TO SLN LOT 27 TP 60' NWLY OF TPB SELY ALG SLN LOT 27 TPB INCL ADJ TIDES |
| Geographic ID: | S7505-00-00027-0 | Agent Code: | |
| Type: | Real | | |
| Tax Area: | 710 - APPRAISER-S Whid Schl Dist, outside Langley, improved & 1 acre or less | Land Use Code | 11 |
| Open Space: | N | DFL | N |
| Historic Property: | N | Remodel Property: | N |
| Multi-Family Redevelopment: | N | | |
| Township: | | Section: | |
| Range: | |
Location |
| Address: | 5726 MUTINY BAY RD FREELAND, WA 98249 | Mapsco: | |
| Neighborhood: | Cycle 3 | Map ID: | 331 |
| Neighborhood CD: | 3 |
Owner |
| Name: | GONGAWARE, BRYON | Owner ID: | 300624 |
| Mailing Address: | ELIZABETH GONGAWARE 8030 DENSMORE AVE N SEATTLE, WA 98103 | % Ownership: | 100.0000000000% |
| | | Exemptions: | |
Taxes and Assessment Details
Values
| (+) Improvement Homesite Value: | + | $0 | |
| (+) Improvement Non-Homesite Value: | + | $467,740 | |
| (+) Land Homesite Value: | + | $0 | |
| (+) Land Non-Homesite Value: | + | $2,300,600 | |
| (+) Curr Use (HS): | + | $0 | $0 |
| (+) Curr Use (NHS): | + | $0 | $0 |
| | | -------------------------- | |
| (=) Market Value: | = | $2,768,340 | |
| (–) Productivity Loss: | – | $0 | |
| | | -------------------------- | |
| (=) Subtotal: | = | $2,768,340 | |
| (+) Senior Appraised Value: | + | $0 | |
| (+) Non-Senior Appraised Value: | + | $2,768,340 | |
| | | -------------------------- | |
| (=) Total Appraised Value: | = | $2,768,340 | |
| (–) Senior Exemption Loss: | – | $0 | |
| (–) Exemption Loss: | – | $0 | |
| | | -------------------------- | |
| (=) Taxable Value: | = | $2,768,340 | |
Taxing Jurisdiction
| Owner: | GONGAWARE, BRYON | | |
| % Ownership: | 100.0000000000% | | |
| Total Value: | $2,768,340 | | |
| Tax Area: | 710 - APPRAISER-S Whid Schl Dist, outside Langley, improved & 1 acre or less |
| CF | Conservation Futures | 0.0316035091 | $2,768,340 | $2,768,340 | $87.49 | | |
| FIRE3 | Fire & Rescue Dist #3 S Whidbey GEN | 1.2004855531 | $2,768,340 | $2,768,340 | $3,323.35 | | |
| HOBOND | Hospital BOND | 0.1910887512 | $2,768,340 | $2,768,340 | $529.00 | | |
| HOGEN | Hospital GEN | 0.3902502903 | $2,768,340 | $2,768,340 | $1,080.35 | | |
| CE | County Current Expense | 0.3708482477 | $2,768,340 | $2,768,340 | $1,026.63 | | |
| CR | County Roads | 0.4584763726 | $2,768,340 | $2,768,340 | $1,269.22 | | |
| ISLANDEMS | Hospital GEN (EMS) | 0.5000000000 | $2,768,340 | $2,768,340 | $1,384.17 | | |
| LIB | Library Sno-Isle GEN | 0.3153421757 | $2,768,340 | $2,768,340 | $872.97 | | |
| PORTWHID | Port of S Whidbey GEN | 0.1094540357 | $2,768,340 | $2,768,340 | $303.01 | | |
| SCH206BOND | School 206 BOND | 0.3161759235 | $2,768,340 | $2,768,340 | $875.28 | | |
| SCH206MO | School 206 Enrichment | 0.4547169547 | $2,768,340 | $2,768,340 | $1,258.81 | | |
| ST | State School | 1.3035497053 | $2,768,340 | $2,768,340 | $3,608.67 | | |
| ST2 | State School Part 2 | 0.8169543533 | $2,768,340 | $2,768,340 | $2,261.61 | | |
| SWHIDPRBD | P & R S Whidbey BOND | 0.0152817568 | $2,768,340 | $2,768,340 | $42.31 | | |
| SWHIDPRBD2 | P & R S Whidbey BOND2 | 0.0138911264 | $2,768,340 | $2,768,340 | $38.46 | | |
| SWHIDPRMT | P & R S Whidbey GEN | 0.2053334452 | $2,768,340 | $2,768,340 | $568.43 | | |
| | Total Tax Rate: | 6.6934522006 | | | | | |
| | | | | Taxes w/Current Exemptions: | $18,529.76 | | |
| | | | | Taxes w/o Exemptions: | $18,529.76 | | |
Improvement / Building
| Improvement #1: | RESIDENTIAL | State Code: | Y | 1687.3 sqft | Value: | $467,740 |
| Bathrooms: | 2 | Bedrooms: | 3 | | Ceiling: | TONGUE & GROOVE | Cooling: | HEAT PUMP/CONV/V | | Exterior Wall/Cover: | WOOD SIDING | Floor Covering: | CERAMIC TILE/HWD 40/60 | | Floor Structure: | WOOD W/SUBFLOOR | Foundation: | CONCRETE | | Interior Finish: | DRYWALL PAINT | Plumbing Fixture Cnt: | 11 | | Roof Slope: | 8" IN 12" | Roof Structure/Cover: | BEAM ASPHALT |
|
| | Type | Description | Class CD | Sub Class CD | Year Built | Area |
| | BAS | BASE/MAIN FLOOR | 4 | 0 | 1963 | 1687.3 |
| | OWP | OPEN WOOD PORCH W/STEPS | 4 | 0 | 1963 | 1091.5 |
| | ENP | ENCLOSED PORCH | 4 | 0 | 1963 | 384.0 |
| | DGR | DETACHED GARAGE | 4 | 0 | 1963 | 576.0 |
| | OWP | OPEN WOOD PORCH W/STEPS | 4 | 0 | 1963 | 116.0 |
Sketch
Property Image
Land
| 1 | LB | LOW BANK | 0.0000 | 0.00 | 60.00 | 0.00 | 1.00 | $2,300,000 | $0 |
| 2 | 55 | TIDES | 0.0000 | 0.00 | 60.00 | 0.00 | 1.00 | $600 | $0 |
Roll Value History
| 2026 | N/A | N/A | N/A | N/A | N/A |
| 2025 | $467,740 | $2,300,600 | $0 | $2,768,340 | $2,768,340 |
| 2024 | $473,642 | $2,300,600 | $0 | $2,774,242 | $2,774,242 |
| 2023 | $479,544 | $2,300,600 | $0 | $2,780,144 | $2,780,144 |
| 2022 | $425,275 | $2,000,600 | $0 | $2,425,875 | $2,425,875 |
| 2021 | $263,462 | $1,300,600 | $0 | $1,564,062 | $1,564,062 |
| 2020 | $257,213 | $1,050,600 | $0 | $1,307,813 | $523,125 |
| 2019 | $184,342 | $1,100,600 | $0 | $1,284,942 | $513,977 |
| 2018 | $184,964 | $950,600 | $0 | $1,135,564 | $454,226 |
| 2017 | $186,222 | $950,600 | $0 | $1,136,822 | $454,729 |
| 2016 | $188,706 | $950,600 | $0 | $1,139,306 | $455,722 |
| 2015 | $191,189 | $950,600 | $0 | $1,141,789 | $456,716 |
| 2014 | $193,672 | $950,600 | $0 | $1,144,272 | $1,074,272 |
| 2013 | $178,330 | $1,036,244 | $0 | $1,214,574 | $1,214,574 |
| 2012 | $180,533 | $1,036,244 | $0 | $1,216,777 | $486,711 |
| 2011 | $182,733 | $1,036,244 | $0 | $1,218,977 | $487,591 |
| 2010 | $196,625 | $1,036,244 | $0 | $1,232,869 | $1,232,869 |
| 2009 | $204,897 | $1,233,510 | $0 | $1,438,407 | $1,368,407 |
| 2008 | $208,266 | $1,233,510 | $0 | $1,441,776 | $1,441,776 |
| 2007 | $221,867 | $1,233,090 | $0 | $1,454,957 | $1,454,957 |
Deed and Sales History
| 1 | 08/03/2021 | WD | Warranty Deed | MCKAY, MARY VIRGINIA | GONGAWARE, BRYON | | | $3,322,870.00 | 49515 | 4526232 |
| 2 | 05/22/2006 | QCD | Quit Claim Deed | MCKAY, MARY VIRGINIA | MCKAY, MARY VIRGINIA | | | $0.00 | 62247 | 4171311 |
| 3 | 03/09/2006 | QCD | Quit Claim Deed | MCKAY ET AL, MARY VIRGINIA | MCKAY, MARY VIRGINIA | | | $0.00 | 61202 | 4165449 |
| 4 | 03/06/2006 | QCD | Quit Claim Deed | MCKAY ET AL, MARY | MCKAY ET AL, MARY VIRGINIA | | | $0.00 | 61200 | 4165447 |
| 5 | 03/04/2006 | QCD | Quit Claim Deed | MCKAY ET AL, MARY VIRGINIA | MCKAY ET AL, MARY VIRGINIA | | | $0.00 | 61201 | 4165448 |
| 6 | 03/25/2002 | QCD | Quit Claim Deed | MCKAY, MARY E | MCKAY ET AL, MARY | | | $0.00 | 21479 | 4017744 |
| 7 | 10/01/1997 | QCD | Quit Claim Deed | MCKAY, MARY E | MCKAY, MARY E | | | $0.00 | 73623 | 97017059 |
| 8 | 10/01/1997 | QCD | Quit Claim Deed | MCKAY, MARY E | MCKAY, MARY E | | | $0.00 | 73624 | 97017060 |
| 9 | 10/01/1997 | QCD | Quit Claim Deed | MCKAY, MARY E | MCKAY, MARY E | | | $0.00 | 73627 | 97017061 |
| 10 | 10/01/1997 | QCD | Quit Claim Deed | MCKAY, MARY E | MCKAY, MARY E | | | $0.00 | 73628 | 97017062 |
| 11 | 06/01/1996 | QCD | Quit Claim Deed | MCKAY, MARY E | MCKAY, MARY E | | | $0.00 | 62563 | 96013158 |
| 12 | 06/01/1996 | QCD | Quit Claim Deed | MCKAY, MARY E | MCKAY, MARY E | | | $0.00 | 62564 | 96013159 |
| 13 | 06/01/1996 | QCD | Quit Claim Deed | MCKAY, MARY E | MCKAY, MARY E | | | $0.00 | 62565 | 96013160 |
| 14 | 06/01/1996 | QCD | Quit Claim Deed | Unknown | MCKAY, MARY E | | | $0.00 | 62566 | 96013161 |
| 15 | 03/01/1995 | QCD | Quit Claim Deed | MCKAY, MARY E | MCKAY, MARY & | | | $0.00 | 51047 | 95004983 |
| 16 | 03/01/1995 | QCD | Quit Claim Deed | MCKAY, MARY E | MCKAY, MARY E | | | $0.00 | 51048 | 95004984 |
| 17 | 03/01/1995 | QCD | Quit Claim Deed | MCKAY, MARY E | MCKAY, MARY E | | | $0.00 | 51049 | 95004985 |
| 18 | 03/01/1995 | QCD | Quit Claim Deed | MCKAY, MARY | MCKAY, MARY E | | | $0.00 | 51050 | 95004986 |
| 19 | 01/01/1900 | OTHER | Other - Misc. Documents | Unknown | MCKAY, MARY | | | $0.00 | 0 | 0 |
Payout Agreement
| No payout information available.. |