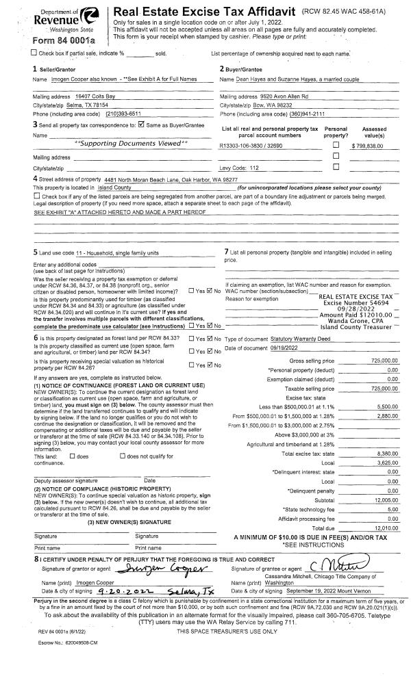
Property
Account |
| Property ID: | 323215 | Abbreviated Legal Description: | MIRAMAR TERR LOTS 20 & 21 BLK 1 INCL ADJ TIDES |
| Geographic ID: | S7510-00-01020-0 | Agent Code: | |
| Type: | Real | | |
| Tax Area: | 540 - APPRAISER-Stan/Cam Schl Dist, Special Dist, improved & less than 1 acre | Land Use Code | 11 |
| Open Space: | N | DFL | N |
| Historic Property: | N | Remodel Property: | N |
| Multi-Family Redevelopment: | N | | |
| Township: | | Section: | |
| Range: | |
Location |
| Address: | 2054 BREEZY POINT RD CAMANO ISLAND, WA 98282 | Mapsco: | |
| Neighborhood: | Cycle 5 | Map ID: | 532 |
| Neighborhood CD: | 5 |
Owner |
| Name: | MALONEY, KARINA N. | Owner ID: | 307102 |
| Mailing Address: | 2054 BREEZY POINT RD CAMANO ISLAND, WA 98282 | % Ownership: | 100.0000000000% |
| | | Exemptions: | |
Taxes and Assessment Details
Values
| (+) Improvement Homesite Value: | + | $0 | |
| (+) Improvement Non-Homesite Value: | + | $657,512 | |
| (+) Land Homesite Value: | + | $0 | |
| (+) Land Non-Homesite Value: | + | $700,810 | |
| (+) Curr Use (HS): | + | $0 | $0 |
| (+) Curr Use (NHS): | + | $0 | $0 |
| | | -------------------------- | |
| (=) Market Value: | = | $1,358,322 | |
| (–) Productivity Loss: | – | $0 | |
| | | -------------------------- | |
| (=) Subtotal: | = | $1,358,322 | |
| (+) Senior Appraised Value: | + | $0 | |
| (+) Non-Senior Appraised Value: | + | $1,358,322 | |
| | | -------------------------- | |
| (=) Total Appraised Value: | = | $1,358,322 | |
| (–) Senior Exemption Loss: | – | $0 | |
| (–) Exemption Loss: | – | $0 | |
| | | -------------------------- | |
| (=) Taxable Value: | = | $1,358,322 | |
Taxing Jurisdiction
| Owner: | MALONEY, KARINA N. | | |
| % Ownership: | 100.0000000000% | | |
| Total Value: | $1,358,322 | | |
| Tax Area: | 540 - APPRAISER-Stan/Cam Schl Dist, Special Dist, improved & less than 1 acre |
| CF | Conservation Futures | 0.0316035091 | $1,358,322 | $1,358,322 | $42.93 | | |
| EMS1 | Fire & Rescue Dist #1 Camano GEN (EMS) | 0.3677864386 | $1,358,322 | $1,358,322 | $499.57 | | |
| FIRE1 | Fire & Rescue Dist #1 Camano GEN | 1.2502910536 | $1,358,322 | $1,358,322 | $1,698.30 | | |
| FIRE1BOND | Fire & Rescue Dist #1 Camano BOND | 0.1570001679 | $1,358,322 | $1,358,322 | $213.26 | | |
| CE | County Current Expense | 0.3708482477 | $1,358,322 | $1,358,322 | $503.73 | | |
| CR | County Roads | 0.4584763726 | $1,358,322 | $1,358,322 | $622.76 | | |
| LCIB | Library Sno-Isle BOND (Camano Island) | 0.0396325772 | $1,358,322 | $1,358,322 | $53.83 | | |
| LIB | Library Sno-Isle GEN | 0.3153421757 | $1,358,322 | $1,358,322 | $428.34 | | |
| SCH205_401 | School 205-401 Enrichment | 1.2698420524 | $1,358,322 | $1,358,322 | $1,724.85 | | |
| SCH205BOND | School 205-401 BOND | 0.9396497583 | $1,358,322 | $1,358,322 | $1,276.35 | | |
| ST | State School | 1.3035497053 | $1,358,322 | $1,358,322 | $1,770.64 | | |
| ST2 | State School Part 2 | 0.8169543533 | $1,358,322 | $1,358,322 | $1,109.69 | | |
| | Total Tax Rate: | 7.3209764117 | | | | | |
| | | | | Taxes w/Current Exemptions: | $9,944.25 | | |
| | | | | Taxes w/o Exemptions: | $9,944.25 | | |
Improvement / Building
| Improvement #1: | RESIDENTIAL | State Code: | Y | 2200.0 sqft | Value: | $657,512 |
| Bathrooms: | 2 | Bedrooms: | 3 | | Ceiling: | DRYWALL PAINTED | Cooling: | HEAT PUMP/CONV/V | | Exterior Wall/Cover: | CEMENT FIBER | Floor Covering: | HARDWOOD 100% | | Floor Structure: | WOOD W/SUBFLOOR | Foundation: | CONCRETE | | Interior Finish: | DRYWALL PAINT | Plumbing Fixture Cnt: | 11 | | Roof Slope: | FLAT | Roof Structure/Cover: | CJ ALUMINIUM HEAVY |
|
| | Type | Description | Class CD | Sub Class CD | Year Built | Area |
| | BAS | BASE/MAIN FLOOR | 5 | 0 | 2018 | 1012.0 |
| | AGR | ATTACHED GARAGE | 5 | 0 | 2018 | 312.0 |
| | DWN | DOWNSTAIRS LIVING AREA | 5 | 0 | 2018 | 1188.0 |
| | OP1 | OPEN PORCH SLAB | 5 | 0 | 2018 | 587.5 |
| | OWC | OPEN WOOD PORCH W/STEPS/ROOF/C | 5 | 0 | 2018 | 88.0 |
| | OWC | OPEN WOOD PORCH W/STEPS/ROOF/C | 5 | 0 | 2018 | 88.0 |
| | BGR | BASEMENT GARAGE | 5 | 0 | 2018 | 288.0 |
| | OWC | OPEN WOOD PORCH W/STEPS/ROOF/C | 5 | 0 | 2018 | 38.7 |
| | OWP | OPEN WOOD PORCH W/STEPS | 5 | 0 | 2018 | 656.0 |
Sketch
Property Image
Land
| 1 | 55 | TIDES | 0.0000 | 0.00 | 81.00 | 0.00 | 1.00 | $810 | $0 |
| 2 | MB | MEDIUM BANK | 0.0000 | 0.00 | 80.00 | 0.00 | 1.00 | $700,000 | $0 |
Roll Value History
| 2026 | N/A | N/A | N/A | N/A | N/A |
| 2025 | $657,512 | $700,810 | $0 | $1,358,322 | $1,358,322 |
| 2024 | $662,859 | $675,810 | $0 | $1,338,669 | $1,338,669 |
| 2023 | $668,204 | $675,810 | $0 | $1,344,014 | $1,344,014 |
| 2022 | $609,899 | $750,810 | $0 | $1,360,709 | $1,360,709 |
| 2021 | $535,051 | $350,810 | $0 | $885,861 | $885,861 |
| 2020 | $520,817 | $350,810 | $0 | $871,627 | $871,627 |
| 2019 | $312,543 | $350,810 | $0 | $663,353 | $663,353 |
| 2018 | $119,419 | $350,810 | $0 | $470,229 | $470,229 |
| 2017 | $4,000 | $350,810 | $0 | $354,810 | $354,810 |
| 2016 | $59,314 | $350,810 | $0 | $410,124 | $410,124 |
| 2015 | $33,925 | $350,810 | $0 | $384,735 | $384,735 |
| 2014 | $34,837 | $250,810 | $0 | $285,647 | $285,647 |
| 2013 | $35,749 | $448,360 | $0 | $484,109 | $484,109 |
| 2012 | $36,663 | $448,360 | $0 | $485,023 | $485,023 |
| 2011 | $37,575 | $560,247 | $0 | $597,822 | $597,822 |
| 2010 | $46,816 | $560,247 | $0 | $607,063 | $607,063 |
| 2009 | $48,330 | $603,736 | $0 | $652,066 | $652,066 |
| 2008 | $49,368 | $603,736 | $0 | $653,104 | $653,104 |
| 2007 | $50,449 | $603,169 | $0 | $653,618 | $653,618 |
Deed and Sales History
| 1 | 01/31/2022 | QCD | Quit Claim Deed | LOTHROP, LINDA KAY | MALONEY, KARINA N. | | | $0.00 | 52447 | 4542156 |
| 2 | 02/09/2012 | WD | Warranty Deed | LOTHROP, JACK W | LOTHROP, LINDA KAY | | | $0.00 | 6867 | 4309946 |
| 3 | 09/27/2011 | WD | Warranty Deed | LOTHROP, JACK W | LOTHROP, JACK W | | | $0.00 | 5744 | 4302449 |
Payout Agreement
| No payout information available.. |