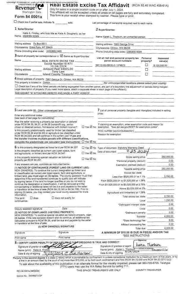
Property
Account |
| Property ID: | 323518 | Abbreviated Legal Description: | MOONWINK LOT 5 |
| Geographic ID: | S7515-00-00005-0 | Agent Code: | |
| Type: | Real | | |
| Tax Area: | 710 - APPRAISER-S Whid Schl Dist, outside Langley, improved & 1 acre or less | Land Use Code | 11 |
| Open Space: | N | DFL | N |
| Historic Property: | N | Remodel Property: | N |
| Multi-Family Redevelopment: | N | | |
| Township: | | Section: | |
| Range: | |
Location |
| Address: | 4415 WITTER RD LANGLEY, WA 98260 | Mapsco: | |
| Neighborhood: | Cycle 4 | Map ID: | 763 |
| Neighborhood CD: | 4 |
Owner |
| Name: | BROWN, PETER C | Owner ID: | 278607 |
| Mailing Address: | CATHY J BROWN 4415 WITTER RD LANGLEY, WA 98260 | % Ownership: | 100.0000000000% |
| | | Exemptions: | |
Taxes and Assessment Details
Values
| (+) Improvement Homesite Value: | + | $0 | |
| (+) Improvement Non-Homesite Value: | + | $421,766 | |
| (+) Land Homesite Value: | + | $0 | |
| (+) Land Non-Homesite Value: | + | $625,000 | |
| (+) Curr Use (HS): | + | $0 | $0 |
| (+) Curr Use (NHS): | + | $0 | $0 |
| | | -------------------------- | |
| (=) Market Value: | = | $1,046,766 | |
| (–) Productivity Loss: | – | $0 | |
| | | -------------------------- | |
| (=) Subtotal: | = | $1,046,766 | |
| (+) Senior Appraised Value: | + | $0 | |
| (+) Non-Senior Appraised Value: | + | $1,046,766 | |
| | | -------------------------- | |
| (=) Total Appraised Value: | = | $1,046,766 | |
| (–) Senior Exemption Loss: | – | $0 | |
| (–) Exemption Loss: | – | $0 | |
| | | -------------------------- | |
| (=) Taxable Value: | = | $1,046,766 | |
Taxing Jurisdiction
| Owner: | BROWN, PETER C | | |
| % Ownership: | 100.0000000000% | | |
| Total Value: | $1,046,766 | | |
| Tax Area: | 710 - APPRAISER-S Whid Schl Dist, outside Langley, improved & 1 acre or less |
| CF | Conservation Futures | 0.0316035091 | $1,046,766 | $1,046,766 | $33.08 | | |
| FIRE3 | Fire & Rescue Dist #3 S Whidbey GEN | 1.2004855531 | $1,046,766 | $1,046,766 | $1,256.63 | | |
| HOBOND | Hospital BOND | 0.1910887512 | $1,046,766 | $1,046,766 | $200.03 | | |
| HOGEN | Hospital GEN | 0.3902502903 | $1,046,766 | $1,046,766 | $408.50 | | |
| CE | County Current Expense | 0.3708482477 | $1,046,766 | $1,046,766 | $388.19 | | |
| CR | County Roads | 0.4584763726 | $1,046,766 | $1,046,766 | $479.92 | | |
| ISLANDEMS | Hospital GEN (EMS) | 0.5000000000 | $1,046,766 | $1,046,766 | $523.38 | | |
| LIB | Library Sno-Isle GEN | 0.3153421757 | $1,046,766 | $1,046,766 | $330.09 | | |
| PORTWHID | Port of S Whidbey GEN | 0.1094540357 | $1,046,766 | $1,046,766 | $114.57 | | |
| SCH206BOND | School 206 BOND | 0.3161759235 | $1,046,766 | $1,046,766 | $330.96 | | |
| SCH206MO | School 206 Enrichment | 0.4547169547 | $1,046,766 | $1,046,766 | $475.98 | | |
| ST | State School | 1.3035497053 | $1,046,766 | $1,046,766 | $1,364.51 | | |
| ST2 | State School Part 2 | 0.8169543533 | $1,046,766 | $1,046,766 | $855.16 | | |
| SWHIDPRBD | P & R S Whidbey BOND | 0.0152817568 | $1,046,766 | $1,046,766 | $16.00 | | |
| SWHIDPRBD2 | P & R S Whidbey BOND2 | 0.0138911264 | $1,046,766 | $1,046,766 | $14.54 | | |
| SWHIDPRMT | P & R S Whidbey GEN | 0.2053334452 | $1,046,766 | $1,046,766 | $214.94 | | |
| | Total Tax Rate: | 6.6934522006 | | | | | |
| | | | | Taxes w/Current Exemptions: | $7,006.48 | | |
| | | | | Taxes w/o Exemptions: | $7,006.48 | | |
Improvement / Building
| Improvement #1: | RESIDENTIAL | State Code: | Y | 2165.5 sqft | Value: | $421,766 |
| Bathrooms: | 2.5 | Bedrooms: | 2 | | Ceiling: | DRYWALL PAINTED | Cooling: | HEAT PUMP/CONV/V | | Exterior Wall/Cover: | WOOD SIDING | Floor Covering: | HARDWOOD/CARP 80-20 | | Floor Structure: | WOOD W/SUBFLOOR | Foundation: | CONCRETE | | Interior Finish: | DRYWALL PAINT | Plumbing Fixture Cnt: | 12 | | Roof Slope: | 4" IN 12" | Roof Structure/Cover: | CJ ALUMINIUM HEAVY |
|
| | Type | Description | Class CD | Sub Class CD | Year Built | Area |
| | BAS | BASE/MAIN FLOOR | 3 | 0 | 1987 | 1798.5 |
| | OP2 | OPEN PORCH W/STEPS | 3 | 0 | 1987 | 36.0 |
| | OP4 | OPEN PORCH W/CEILING-ROOF | 3 | 0 | 1987 | 36.0 |
| | AGR | ATTACHED GARAGE | 3 | 0 | 1987 | 78.0 |
| | BIG | BUILT IN GARAGE | 3 | 0 | 1987 | 382.0 |
| | OWP | OPEN WOOD PORCH W/STEPS | 3 | 0 | 1987 | 581.1 |
| | DWN | DOWNSTAIRS LIVING AREA | 3 | 0 | 1987 | 367.0 |
Sketch
Property Image
Land
| 1 | HB | HIGH BLUFF | 0.0000 | 0.00 | 64.00 | 0.00 | 1.00 | $625,000 | $0 |
Roll Value History
| 2026 | N/A | N/A | N/A | N/A | N/A |
| 2025 | $421,766 | $625,000 | $0 | $1,046,766 | $1,046,766 |
| 2024 | $442,311 | $625,000 | $0 | $1,067,311 | $1,067,311 |
| 2023 | $414,816 | $625,000 | $0 | $1,039,816 | $1,039,816 |
| 2022 | $378,779 | $575,000 | $0 | $953,779 | $953,779 |
| 2021 | $332,303 | $300,000 | $0 | $632,303 | $632,303 |
| 2020 | $304,503 | $250,000 | $0 | $554,503 | $554,503 |
| 2019 | $232,775 | $300,000 | $0 | $532,775 | $532,775 |
| 2018 | $230,547 | $250,000 | $0 | $480,547 | $480,547 |
| 2017 | $231,825 | $200,000 | $0 | $431,825 | $431,825 |
| 2016 | $234,400 | $200,000 | $0 | $434,400 | $434,400 |
| 2015 | $236,975 | $200,000 | $0 | $436,975 | $436,975 |
| 2014 | $239,551 | $200,000 | $0 | $439,551 | $439,551 |
| 2013 | $242,126 | $200,000 | $0 | $442,126 | $442,126 |
| 2012 | $268,752 | $128,441 | $0 | $397,193 | $397,193 |
| 2011 | $271,772 | $142,712 | $0 | $414,484 | $414,484 |
| 2010 | $276,509 | $142,712 | $0 | $419,221 | $419,221 |
| 2009 | $288,163 | $142,858 | $0 | $431,021 | $431,021 |
| 2008 | $284,614 | $142,858 | $0 | $427,472 | $427,472 |
| 2007 | $287,707 | $172,858 | $0 | $460,565 | $460,565 |
Deed and Sales History
| 1 | 02/16/2017 | SPWARDEED | Special Warranty Deed | BROWN TRUSTEE, PETER C | BROWN, PETER C | | | $0.00 | 28165 | 4417578 |
| 2 | 03/12/2012 | WD | Warranty Deed | TAYLOR, ROBERT W | BROWN TRUSTEE, PETER C | | | $425,000.00 | 7125 | 4311697 |
| 3 | 09/01/1995 | WD | Warranty Deed | JONES, WILLIAM | TAYLOR, ROBERT W | | | $295,000.00 | 53260 | 95014990 |
| 4 | 09/01/1983 | WD | Warranty Deed | WORTHY, E & | JONES, WILLIAM | | | $22,600.00 | 32672 | 415028 |
Payout Agreement
| No payout information available.. |