Property
Account |
| Property ID: | 323527 | Abbreviated Legal Description: | MOONWINK LOT 6 |
| Geographic ID: | S7515-00-00006-0 | Agent Code: | |
| Type: | Real | | |
| Tax Area: | 710 - APPRAISER-S Whid Schl Dist, outside Langley, improved & 1 acre or less | Land Use Code | 11 |
| Open Space: | N | DFL | N |
| Historic Property: | N | Remodel Property: | N |
| Multi-Family Redevelopment: | N | | |
| Township: | | Section: | |
| Range: | |
Location |
| Address: | 4419 WITTER RD LANGLEY, WA 98260 | Mapsco: | |
| Neighborhood: | Cycle 4 | Map ID: | 763 |
| Neighborhood CD: | 4 |
Owner |
| Name: | STOEL-GAMMON, CAROL | Owner ID: | 279961 |
| Mailing Address: | RICHARD H GAMMON PO BOX 1489 LANGLEY, WA 98260 | % Ownership: | 100.0000000000% |
| | | Exemptions: | |
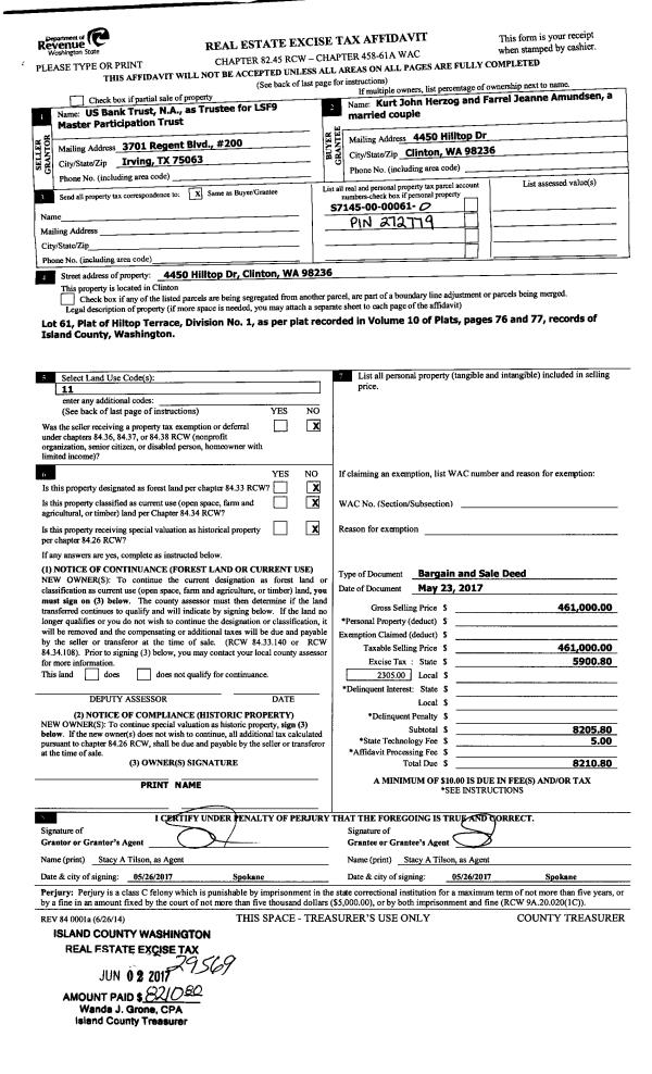
Taxes and Assessment Details
Values
| (+) Improvement Homesite Value: | + | $0 | |
| (+) Improvement Non-Homesite Value: | + | $669,806 | |
| (+) Land Homesite Value: | + | $0 | |
| (+) Land Non-Homesite Value: | + | $625,000 | |
| (+) Curr Use (HS): | + | $0 | $0 |
| (+) Curr Use (NHS): | + | $0 | $0 |
| | | -------------------------- | |
| (=) Market Value: | = | $1,294,806 | |
| (–) Productivity Loss: | – | $0 | |
| | | -------------------------- | |
| (=) Subtotal: | = | $1,294,806 | |
| (+) Senior Appraised Value: | + | $0 | |
| (+) Non-Senior Appraised Value: | + | $1,294,806 | |
| | | -------------------------- | |
| (=) Total Appraised Value: | = | $1,294,806 | |
| (–) Senior Exemption Loss: | – | $0 | |
| (–) Exemption Loss: | – | $0 | |
| | | -------------------------- | |
| (=) Taxable Value: | = | $1,294,806 | |
Taxing Jurisdiction
| Owner: | STOEL-GAMMON, CAROL | | |
| % Ownership: | 100.0000000000% | | |
| Total Value: | $1,294,806 | | |
| Tax Area: | 710 - APPRAISER-S Whid Schl Dist, outside Langley, improved & 1 acre or less |
| CF | Conservation Futures | 0.0316035091 | $1,294,806 | $1,294,806 | $40.92 | | |
| FIRE3 | Fire & Rescue Dist #3 S Whidbey GEN | 1.2004855531 | $1,294,806 | $1,294,806 | $1,554.40 | | |
| HOBOND | Hospital BOND | 0.1910887512 | $1,294,806 | $1,294,806 | $247.42 | | |
| HOGEN | Hospital GEN | 0.3902502903 | $1,294,806 | $1,294,806 | $505.30 | | |
| CE | County Current Expense | 0.3708482477 | $1,294,806 | $1,294,806 | $480.18 | | |
| CR | County Roads | 0.4584763726 | $1,294,806 | $1,294,806 | $593.64 | | |
| ISLANDEMS | Hospital GEN (EMS) | 0.5000000000 | $1,294,806 | $1,294,806 | $647.40 | | |
| LIB | Library Sno-Isle GEN | 0.3153421757 | $1,294,806 | $1,294,806 | $408.31 | | |
| PORTWHID | Port of S Whidbey GEN | 0.1094540357 | $1,294,806 | $1,294,806 | $141.72 | | |
| SCH206BOND | School 206 BOND | 0.3161759235 | $1,294,806 | $1,294,806 | $409.39 | | |
| SCH206MO | School 206 Enrichment | 0.4547169547 | $1,294,806 | $1,294,806 | $588.77 | | |
| ST | State School | 1.3035497053 | $1,294,806 | $1,294,806 | $1,687.84 | | |
| ST2 | State School Part 2 | 0.8169543533 | $1,294,806 | $1,294,806 | $1,057.80 | | |
| SWHIDPRBD | P & R S Whidbey BOND | 0.0152817568 | $1,294,806 | $1,294,806 | $19.79 | | |
| SWHIDPRBD2 | P & R S Whidbey BOND2 | 0.0138911264 | $1,294,806 | $1,294,806 | $17.99 | | |
| SWHIDPRMT | P & R S Whidbey GEN | 0.2053334452 | $1,294,806 | $1,294,806 | $265.87 | | |
| | Total Tax Rate: | 6.6934522006 | | | | | |
| | | | | Taxes w/Current Exemptions: | $8,666.74 | | |
| | | | | Taxes w/o Exemptions: | $8,666.74 | | |
Improvement / Building
| Improvement #1: | RESIDENTIAL | State Code: | Y | 3234.0 sqft | Value: | $669,806 |
| Bathrooms: | 2.5 | Bedrooms: | 3 | | Ceiling: | TONGUE & GROOVE | Cooling: | HEAT PUMP/CONV/V | | Exterior Wall/Cover: | SHINGLE | Floor Covering: | HARDWOOD/CARP 80-20 | | Floor Structure: | WOOD W/SUBFLOOR | Foundation: | CONCRETE | | Interior Finish: | DRYWALL PAINT | Plumbing Fixture Cnt: | 14 | | Roof Slope: | 6" IN 12" | Roof Structure/Cover: | CJ ASPHALT |
|
| | Type | Description | Class CD | Sub Class CD | Year Built | Area |
| | BAS | BASE/MAIN FLOOR | 4 | 0 | 1992 | 2298.0 |
| | DWN | DOWNSTAIRS LIVING AREA | 4 | 0 | 1992 | 936.0 |
| | OP4 | OPEN PORCH W/CEILING-ROOF | 4 | 0 | 1992 | 104.0 |
| | AGR | ATTACHED GARAGE | 4 | 0 | 1992 | 504.0 |
| | OWP | OPEN WOOD PORCH W/STEPS | 4 | 0 | 1992 | 305.0 |
| | OWP | OPEN WOOD PORCH W/STEPS | 4 | 0 | 1992 | 234.0 |
| | OWP | OPEN WOOD PORCH W/STEPS | 4 | 0 | 1992 | 245.0 |
Sketch
Property Image
Land
| 1 | HB | HIGH BLUFF | 0.0000 | 0.00 | 85.00 | 0.00 | 1.00 | $625,000 | $0 |
Roll Value History
| 2026 | N/A | N/A | N/A | N/A | N/A |
| 2025 | $669,806 | $625,000 | $0 | $1,294,806 | $1,294,806 |
| 2024 | $677,757 | $625,000 | $0 | $1,302,757 | $1,302,757 |
| 2023 | $685,706 | $625,000 | $0 | $1,310,706 | $1,310,706 |
| 2022 | $628,133 | $575,000 | $0 | $1,203,133 | $1,203,133 |
| 2021 | $552,453 | $300,000 | $0 | $852,453 | $852,453 |
| 2020 | $504,379 | $250,000 | $0 | $754,379 | $754,379 |
| 2019 | $402,918 | $300,000 | $0 | $702,918 | $702,918 |
| 2018 | $404,086 | $250,000 | $0 | $654,086 | $654,086 |
| 2017 | $321,153 | $200,000 | $0 | $521,153 | $521,153 |
| 2016 | $325,167 | $200,000 | $0 | $525,167 | $525,167 |
| 2015 | $329,181 | $200,000 | $0 | $529,181 | $529,181 |
| 2014 | $328,933 | $200,000 | $0 | $528,933 | $528,933 |
| 2013 | $333,128 | $200,000 | $0 | $533,128 | $533,128 |
| 2012 | $338,535 | $175,767 | $0 | $514,302 | $514,302 |
| 2011 | $342,729 | $195,297 | $0 | $538,026 | $538,026 |
| 2010 | $356,972 | $195,297 | $0 | $552,269 | $552,269 |
| 2009 | $372,287 | $195,424 | $0 | $567,711 | $567,711 |
| 2008 | $373,398 | $195,424 | $0 | $568,822 | $568,822 |
| 2007 | $377,812 | $236,463 | $0 | $614,275 | $614,275 |
Deed and Sales History
| 1 | 05/17/2017 | WD | Warranty Deed | HANNAH, LOWELL | STOEL-GAMMON, CAROL | | | $722,500.00 | 29355 | 4422800 |
| 2 | 05/18/2015 | CPADC | Comm Prop Agmnt & Death Cert | HANNAH, LOWELL AND JOANNE | HANNAH, LOWELL | | | | 86140 | |
| 3 | 09/10/1998 | WD | Warranty Deed | COLE, SALLY N | HANNAH, LOWELL AND JOANNE | | | $355,000.00 | 83646 | 98019028 |
| 4 | 04/01/1997 | DECREE | Divorce Decree/Legal Separation | COLE, STANLEIGH H | COLE, SALLY N | | | $0.00 | 71453 | 97006676 |
| 5 | 10/01/1991 | WD | Warranty Deed | SHELTON, MICHAEL & | COLE, STANLEIGH H | | | $100,000.00 | 13798 | 91016193 |
| 6 | 04/01/1991 | WD | Warranty Deed | HEINEMANN, EDITH | SHELTON, MICHAEL & | | | $65,000.00 | 11063 | 91004570 |
| 7 | 01/01/1900 | OTHER | Other - Misc. Documents | Unknown | HEINEMANN, EDITH | | | $0.00 | 0 | 0 |
Payout Agreement
| No payout information available.. |