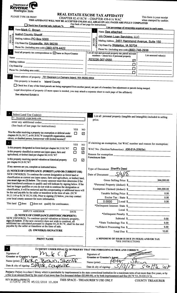
Property
Account |
| Property ID: | 323572 | Abbreviated Legal Description: | MOONWINK LOT 11 |
| Geographic ID: | S7515-00-00011-0 | Agent Code: | |
| Type: | Real | | |
| Tax Area: | 710 - APPRAISER-S Whid Schl Dist, outside Langley, improved & 1 acre or less | Land Use Code | 11 |
| Open Space: | N | DFL | N |
| Historic Property: | N | Remodel Property: | N |
| Multi-Family Redevelopment: | N | | |
| Township: | | Section: | |
| Range: | |
Location |
| Address: | | Mapsco: | |
| Neighborhood: | Cycle 4 | Map ID: | 717 |
| Neighborhood CD: | 4 |
Owner |
| Name: | WINSNES, FREDRIK H | Owner ID: | 292662 |
| Mailing Address: | SUE O WINSNES 4399 WITTER RD LANGLEY, WA 98260 | % Ownership: | 100.0000000000% |
| | | Exemptions: | |
Taxes and Assessment Details
Values
| (+) Improvement Homesite Value: | + | $0 | |
| (+) Improvement Non-Homesite Value: | + | $726,512 | |
| (+) Land Homesite Value: | + | $0 | |
| (+) Land Non-Homesite Value: | + | $340,000 | |
| (+) Curr Use (HS): | + | $0 | $0 |
| (+) Curr Use (NHS): | + | $0 | $0 |
| | | -------------------------- | |
| (=) Market Value: | = | $1,066,512 | |
| (–) Productivity Loss: | – | $0 | |
| | | -------------------------- | |
| (=) Subtotal: | = | $1,066,512 | |
| (+) Senior Appraised Value: | + | $0 | |
| (+) Non-Senior Appraised Value: | + | $1,066,512 | |
| | | -------------------------- | |
| (=) Total Appraised Value: | = | $1,066,512 | |
| (–) Senior Exemption Loss: | – | $0 | |
| (–) Exemption Loss: | – | $0 | |
| | | -------------------------- | |
| (=) Taxable Value: | = | $1,066,512 | |
Taxing Jurisdiction
| Owner: | WINSNES, FREDRIK H | | |
| % Ownership: | 100.0000000000% | | |
| Total Value: | $1,066,512 | | |
| Tax Area: | 710 - APPRAISER-S Whid Schl Dist, outside Langley, improved & 1 acre or less |
| CF | Conservation Futures | 0.0316035091 | $1,066,512 | $1,066,512 | $33.71 | | |
| FIRE3 | Fire & Rescue Dist #3 S Whidbey GEN | 1.2004855531 | $1,066,512 | $1,066,512 | $1,280.33 | | |
| HOBOND | Hospital BOND | 0.1910887512 | $1,066,512 | $1,066,512 | $203.80 | | |
| HOGEN | Hospital GEN | 0.3902502903 | $1,066,512 | $1,066,512 | $416.21 | | |
| CE | County Current Expense | 0.3708482477 | $1,066,512 | $1,066,512 | $395.51 | | |
| CR | County Roads | 0.4584763726 | $1,066,512 | $1,066,512 | $488.97 | | |
| ISLANDEMS | Hospital GEN (EMS) | 0.5000000000 | $1,066,512 | $1,066,512 | $533.26 | | |
| LIB | Library Sno-Isle GEN | 0.3153421757 | $1,066,512 | $1,066,512 | $336.32 | | |
| PORTWHID | Port of S Whidbey GEN | 0.1094540357 | $1,066,512 | $1,066,512 | $116.73 | | |
| SCH206BOND | School 206 BOND | 0.3161759235 | $1,066,512 | $1,066,512 | $337.21 | | |
| SCH206MO | School 206 Enrichment | 0.4547169547 | $1,066,512 | $1,066,512 | $484.96 | | |
| ST | State School | 1.3035497053 | $1,066,512 | $1,066,512 | $1,390.25 | | |
| ST2 | State School Part 2 | 0.8169543533 | $1,066,512 | $1,066,512 | $871.29 | | |
| SWHIDPRBD | P & R S Whidbey BOND | 0.0152817568 | $1,066,512 | $1,066,512 | $16.30 | | |
| SWHIDPRBD2 | P & R S Whidbey BOND2 | 0.0138911264 | $1,066,512 | $1,066,512 | $14.82 | | |
| SWHIDPRMT | P & R S Whidbey GEN | 0.2053334452 | $1,066,512 | $1,066,512 | $218.99 | | |
| | Total Tax Rate: | 6.6934522006 | | | | | |
| | | | | Taxes w/Current Exemptions: | $7,138.66 | | |
| | | | | Taxes w/o Exemptions: | $7,138.66 | | |
Improvement / Building
| Improvement #1: | RESIDENTIAL | State Code: | Y | 3311.1 sqft | Value: | $726,512 |
| Bathrooms: | 2.5 | Bedrooms: | 2 | | Ceiling: | BEAM PAINTED | Cooling: | HEAT PUMP/CONV/V | | Exterior Wall/Cover: | CEMENT FIBER | Floor Covering: | VINYL 100% | | Floor Structure: | WOOD W/SUBFLOOR | Foundation: | CONCRETE | | Interior Finish: | DRYWALL PAINT | Plumbing Fixture Cnt: | 12 | | Roof Slope: | 5" IN 12" | Roof Structure/Cover: | CJ ALUMINIUM HEAVY |
|
| | Type | Description | Class CD | Sub Class CD | Year Built | Area |
| | BAS | BASE/MAIN FLOOR | 4 | 0 | 2023 | 1700.9 |
| | UPS | UPPER STORY | 4 | 0 | 2023 | 1610.2 |
| | OWC | OPEN WOOD PORCH W/STEPS/ROOF/C | 4 | 0 | 2023 | 588.0 |
| | OWC | OPEN WOOD PORCH W/STEPS/ROOF/C | 4 | 0 | 2023 | 249.8 |
| | OWC | OPEN WOOD PORCH W/STEPS/ROOF/C | 4 | 0 | 2023 | 684.0 |
| | ENP | ENCLOSED PORCH | 4 | 0 | 2023 | 194.7 |
| | OCP | OPEN CARPORT | 4 | 0 | 2023 | 660.0 |
Sketch
Property Image
Land
| 1 | 15 | SQ (12001-21780) | 0.0000 | 0.00 | 0.00 | 0.00 | 1.00 | $340,000 | $0 |
Roll Value History
| 2026 | N/A | N/A | N/A | N/A | N/A |
| 2025 | $726,512 | $340,000 | $0 | $1,066,512 | $1,066,512 |
| 2024 | $727,888 | $300,000 | $0 | $1,027,888 | $1,027,888 |
| 2023 | $49,127 | $120,000 | $0 | $169,127 | $169,127 |
| 2022 | $0 | $120,000 | $0 | $120,000 | $120,000 |
| 2021 | $0 | $120,000 | $0 | $120,000 | $120,000 |
| 2020 | $0 | $120,000 | $0 | $120,000 | $120,000 |
| 2019 | $0 | $135,000 | $0 | $135,000 | $135,000 |
| 2018 | $0 | $125,000 | $0 | $125,000 | $125,000 |
| 2017 | $0 | $125,000 | $0 | $125,000 | $125,000 |
| 2016 | $0 | $125,000 | $0 | $125,000 | $125,000 |
| 2015 | $0 | $125,000 | $0 | $125,000 | $125,000 |
| 2014 | $0 | $125,000 | $0 | $125,000 | $125,000 |
| 2013 | $0 | $125,000 | $0 | $125,000 | $125,000 |
| 2012 | $0 | $135,000 | $0 | $135,000 | $135,000 |
| 2011 | $0 | $175,000 | $0 | $175,000 | $175,000 |
| 2010 | $0 | $175,000 | $0 | $175,000 | $175,000 |
| 2009 | $0 | $175,000 | $0 | $175,000 | $175,000 |
| 2008 | $0 | $174,000 | $0 | $174,000 | $174,000 |
| 2007 | $0 | $174,000 | $0 | $174,000 | $174,000 |
Deed and Sales History
| 1 | 02/02/2021 | WD | Warranty Deed | MASCHMEDT, COLLEEN | WINSNES, FREDRIK H | | | $335,000.00 | 46861 | 4510260 |
| 2 | 08/01/2018 | WD | Warranty Deed | RADECKI, DOUGLAS J | MASCHMEDT, COLLEEN | | | $135,000.00 | 35457 | 4449922 |
| 3 | 08/19/2013 | WD | Warranty Deed | RADECKI, FRANCES | RADECKI, DOUGLAS J | | | $0.00 | 12477 | 4346672 |
| 4 | 11/01/2005 | 5 | DNU - Marriage License/Name Change | RADECKI, W J | RADECKI, FRANCES | | | $0.00 | 70730 | 0 |
| 5 | 01/01/1900 | OTHER | Other - Misc. Documents | Unknown | RADECKI, W J | | | $0.00 | 0 | 0 |
Payout Agreement
| No payout information available.. |